アプリで簡単 物件探し 通知 共有 アプリならではの機能を使ってみる
賃貸マンション

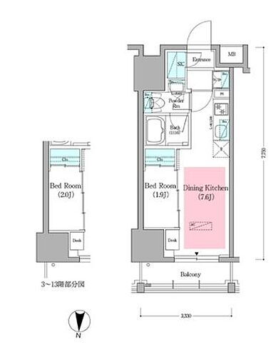
アーバネックス深川住吉III 住吉駅 1DK 賃貸(賃貸マンション・アパート)

情報提供元
LIFULL HOME'S
アーバネックス深川住吉III
賃料 13.5万円  (管理費等:10000円)
礼金・敷金 なし / 1ヶ月 保証金/敷引・償却 - / -
交通
所在地 東京都江東区住吉2丁目24-2周辺地図
間取り 1DK 専有面積 25.16m2
築年月 2021年11月 築年数 築4年1ヶ月
おすすめポイント
礼金0 住吉駅徒歩2分 ペット相談可 オートロック 宅配BOX 床暖房 独立洗面台 追焚 浴室乾燥機
お問い合わせ先
スタートライン 清澄白河資料館通り店(スタートライングループ株式会社)
お問い合わせ先
スタートライン 清澄白河資料館通り店(スタートライングループ株式会社)

詳細情報

賃料 13.5万円 管理費等 10000円
敷金 1ヶ月 礼金 なし
保証金 - 敷引・償却 -
更新料 新賃料の1ヶ月分 契約期間 2年
カード決済 -
所在地 東京都江東区住吉2丁目24-2周辺地図
交通
  • 東京メトロ半蔵門線 住吉駅 徒歩2分乗換案内
  • 都営地下鉄新宿線 菊川駅 徒歩12分乗換案内
建物名 アーバネックス深川住吉III 
間取り 1DK 築年月(築年数) 2021年11月(築4年1ヶ月)
専有面積 25.16㎡ 所在階/階数 10階/14階建
建物構造 RC  方位 北 
現況 居住中  駐車場 無    近くの駐車場を探す
入居可能時期 2026年1月中旬 住宅保険
情報提供元 LIFULL HOME'S[1352110379811] 情報公開日
情報更新日 次回更新予定日 2025年11月29日

設備など

2階以上 最上階 - 角部屋 -
駐車場(近隣含) - エアコン付き バス・トイレ別
室内洗濯機置き場 追焚機能 オートロック付き
モニタ付インターホン フローリング バルコニー
ガスコンロ可 浴室乾燥機 24時間セキュリティ -
宅配ボックス ペット相談可 二人入居可 -
設備 上水道・都市ガス・本下水・バス・トイレ別・シャワー・ガスコンロ可・コンロ2口以上・システムキッチン・追焚機能・エアコン・室内洗濯機置き場・CS・BS端子・オートロック・エレベーター・バルコニー・フローリング・宅配BOX・駐輪場・バイク置き場・光ファイバー(ブロードバンド)・床暖房・モニタ付インターホン・温水洗浄便座・浴室乾燥機・洗面所独立・防犯カメラ・クローゼット・シューズボックス・オートバス 
リフォーム履歴 -
リノベーション履歴 -
備考 1年未満解約違約金あり 【設備・特記事項備考】専用バス・専用トイレ/口座振替手数料/月 110円/保証会社の利用:加入要/保証会社名:その他/保証会社費用:初回保証委託料:月額賃料等の50%、2年目以降:10000円/年/鍵交換費用:44000円/室内清掃費用:44000円 
特記事項 ペット相談可・保証人不要/代行 ・外観タイル張り・24時間ゴミ出し可

省エネ性能

エネルギー消費性能 -
断熱性能 -
目安光熱費 -

東京都江東区住吉2丁目24-2 周辺地図情報

地図
※地図上に表示される物件の位置は付近住所に所在することを表すものであり、実際の物件所在地とは異なる場合がございます。
   正確な物件所在地は、取扱い不動産会社にお問い合わせください。
お問い合わせ先
スタートライン 清澄白河資料館通り店(スタートライングループ株式会社)

不動産会社情報

お問い合わせ先 商号:スタートライン 清澄白河資料館通り店(スタートライングループ株式会社)
免許番号:東京都知事(6)第76891号
所在地:東京都江東区白河2丁目2-1 kiyosumi terrace1階
TEL:03-5809-8595
取引態様:仲介
管理コード:379811
所属協会など:(公財)東日本不動産流通機構、(公社)首都圏不動産公正取引協議会、(公社)全日本不動産協会東京都本部
共有する
QRコード

お電話でのお問い合わせ

電話をかける(携帯・PHS可)
お問い合わせダイヤル
通話無料0037-634-71122
営業時間 10:00~19:00 (定休日:受付:年中無休 店舗:毎週水曜定休日)
音声案内に従って数字を入力
お問い合わせ番号
38839-2974
不動産会社につながります
不動産会社のスタッフと
直接電話で話せます。
※不動産会社がお電話に出られなかった場合、株式会社LIFULLは電話会社が提供するサービスを介してお客様の発信者番号を受領後、折り返し専用の電話番号を発番してお問合せの不動産会社に通知します(お客様の発信者番号がお問合せの不動産会社に通知されることはございません)
※光IP電話、及びIP電話からはご利用になれません
※0037で始まる電話番号に携帯電話からお問合せいただいた方には、ショートメッセージ(SMS)によるお問合せ完了通知をお届けする場合があります
お問い合わせ先
スタートライン 清澄白河資料館通り店(スタートライングループ株式会社)

江東区の暮らしデータ

人口などの統計情報

世帯数 264111世帯
人口総数 539108人
転入者数 43873人
転入率(人口1000人当たり)
81.38人
転出者数 36037人
転出率(人口1000人当たり)
66.85人
土地平均価格
住宅地
605357円/m2
商業地
996545円/m2

結婚・育児の助成金

子育て関連の独自の取り組み 2017年度より、民有地を認可保育園として整備するため、区に相談のあった物件情報を保育施設運営事業者に提供するマッチングサポート事業を新たに開始。
出産祝い あり
公立保育所数 44所(うち0歳児保育を実施している保育所:28所)
私立保育所数 137所(うち0歳児保育を実施している保育所:94所)
保育所入所待機児童数 0人
認定こども園数 4園 預かり保育実施園数 公立:2園 私立:11園
学校給食 【小学校】完全給食【中学校】完全給食
公立中学校の学校選択制 実施
子ども・学生等医療費助成<通院>対象年齢 18歳3月末まで 子ども・学生等医療費助成<入院>対象年齢 18歳3月末まで

江東区の治安・ごみ収集情報

公共料金・インフラ

ガス料金(22m3使用した場合の月額) 東京瓦斯株式会社(東京地区等)3926円
水道料金(口径20mmで20m3の月額) 東京都水道局2816円
下水道料金(20m3を使用した場合の月額) 東京都下水道局2068円
下水道普及率 100.0%

安心・安全

建物火災出火件数 122件
人口10000人当たり
2.33件
刑法犯認知件数 3254件
人口1000人当たり
6.21件
ハザード・防災マップ あり

医療

一般病院総数 20ヶ所
一般診療所総数 471ヶ所
小児科医師数 111人
小児人口10000人当たり
16.88人
産婦人科医師数 53人
15~49歳女性人口1万人当たり
4.27人
介護保険料基準額(月額) 6200円

ごみ

家庭ごみ収集(可燃ごみ) 無料
備考
1回の収集では45リットル袋で3袋まで無料。4袋以上は1袋300円。
家庭ごみの分別方式 3分別10種〔燃やすごみ 燃やさないごみ 資源(プラスチック、古紙[新聞紙、雑誌・雑紙、段ボール]、びん、かん、ペットボトル、発泡トレイ・発泡スチロール)〕 拠点回収:使用済小型家電 古着 余剰食品 集団回収:古紙類 缶類 布類 ビン類
家庭ごみの戸別収集 一部実施
粗大ごみ収集 あり
備考
有料。事前申込制。
生ごみ処理機助成金制度 あり
上限金額
20000円
上限比率
50.0%
暮らしデータ提供元:生活ガイド.com
※行政機関により公表していない地域及びデータがございます。東京23区以外の政令指定都市は、市全体のデータとして表示しています。
※提供データには細心の注意を払っておりますが、調査後に変更がある場合があります。 最新の情報につきましては各市区役所までお問い合わせいただくか、自治体HPなどをご確認ください。
OCN×ドコモ光新規お申込みで合計最大137,280円相当おトク!特典の内訳・適用条件など詳細はこちら

掲載情報の著作権は提供元企業等に帰属します。
Copyright:(C) 2025 LIFULL Co.,Ltd.
アプリで簡単 物件探し 大手不動産サイトの情報から一括検!プッシュ通知で物件を見逃さない
App Storeからダウンロード Google Playで手に入れよう QRコード