アプリで簡単 物件探し 通知 共有 アプリならではの機能を使ってみる
賃貸アパート

浅田メゾネット 向洋駅 3DK 賃貸(賃貸マンション・アパート)

情報提供元
SUUMO
浅田メゾネット
賃料 4万円  (管理費等:なし)
礼金・敷金 1ヶ月 / 1ヶ月 保証金/敷引・償却 なし / -
交通
所在地 広島県広島市南区本浦町周辺地図
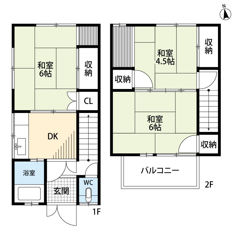
間取り 3DK 専有面積 45.54m2
築年月 1971年9月 築年数 築54年4ヶ月
おすすめポイント
閑静な住宅街のメゾネット!ペット飼育相談可能です! ペット飼育相談可!なんでもご相談ください!この機会にお問合せください!【部屋店横川駅前店】082-503-3150

詳細情報

賃料 4万円 管理費等 なし
敷金 1ヶ月 礼金 1ヶ月
保証金 なし 敷引・償却 -
更新料 - 契約期間
カード決済 初期費用カード決済可
所在地 広島県広島市南区本浦町周辺地図
交通
  • JR山陽本線 向洋駅 徒歩29分乗換案内
  • 広島電鉄宇品線 県病院前駅 徒歩31分乗換案内
  • 広島電鉄皆実線 皆実町二丁目駅 徒歩33分乗換案内
建物名 浅田メゾネット 
間取り 3DK(和6 和6 和4.5 DK) 築年月(築年数) 1971年9月(築54年4ヶ月)
専有面積 45.54㎡ 所在階/階数 1階/2階建
建物構造 木造  方位 南 
現況   駐車場 有 5,000円
入居可能時期 相談 住宅保険 あり 2年 16000円
情報提供元 SUUMO[080H100436762027] 情報公開日
情報更新日 次回更新予定日 随時

設備など

2階以上 - 最上階 - 角部屋
駐車場(近隣含) エアコン付き バス・トイレ別
室内洗濯機置き場 - 追焚機能 - オートロック付き -
モニタ付インターホン - フローリング バルコニー
ガスコンロ可 浴室乾燥機 - 24時間セキュリティ -
宅配ボックス - ペット相談可 二人入居可
設備 冷房・暖房・エアコン・バルコニー・バス・トイレ別・トイレ・収納スペース・フローリング・ガスコンロ可・プロパンガス・浴トイレ別・リノベーション 
リフォーム履歴 -
リノベーション履歴 -
備考 ■口座振替手数料330円/月/保証会社利用必:初回:賃料総額の50% 更新:10000円/年/二人入居可/子供可/ペット相談/バストイレ別/バルコニー/エアコン/ガスコンロ対応/フローリング/陽当り良好/南向き/角住戸/押入/閑静な住宅地/ペット相談/グリル付/保証人不要/敷金1ヶ月/二人入居相談/ガスレンジ付/玄関ホール/キッチンに窓/緑豊かな住宅地/眺望良好/浴室に窓/一部フローリング/和室/続き和室/プロパンガス/ワイドバルコニー/リノベーション/礼金1ヶ月/保証会社利用可/IT重説 対応物件/初期費用カード決済可/通風良好/万惣本浦店(スーパー)まで872m/ウォンツ本浦店(ドラッグストア)まで890m/広島市立仁保中学校(中学校)まで1004m/広島市立黄金山小学校(小学校)まで521m/本浦幼稚園(幼稚園・保育園)まで932m/広島本浦郵便局(郵便局)まで944m 
特記事項 ペット相談可・二人入居可・角部屋・日当り良好・閑静な住宅街・保証人不要/代行 ・初期費用カード決済可

省エネ性能

エネルギー消費性能 -
断熱性能 -
目安光熱費 -

広島県広島市南区本浦町 周辺地図情報

地図
※地図上に表示される物件の位置は付近住所に所在することを表すものであり、実際の物件所在地とは異なる場合がございます。
   正確な物件所在地は、取扱い不動産会社にお問い合わせください。

不動産会社情報

お問い合わせ先 商号:(株)部屋店横川駅前店
免許番号:広島県知事(4)第8987号
所在地:広島県広島市西区横川町3-12-18 2階
TEL:082-503-3150
取引態様:仲介
管理コード:
所属協会など: 中国地区不動産公正取引協議会加盟、(公社)全日本不動産協会広島県本部会員
共有する
QRコード

広島市南区の暮らしデータ

人口などの統計情報

世帯数 554462世帯
人口総数 1178773人
転入者数 61028人
転入率(人口1000人当たり)
51.77人
転出者数 62233人
転出率(人口1000人当たり)
52.79人
土地平均価格
住宅地
115999円/m2
商業地
556537円/m2

結婚・育児の助成金

子育て関連の独自の取り組み 地域の身近な場所でおむつ替え・授乳等が出来る赤ちゃん安心おでかけ事業「にこにこベビールーム」を実施。
出産祝い なし
公立保育所数 87所(うち0歳児保育を実施している保育所:69所)
私立保育所数 95所(うち0歳児保育を実施している保育所:94所)
保育所入所待機児童数 0人
認定こども園数 70園 預かり保育実施園数 公立:- 私立:50園
学校給食 【小学校】完全給食【中学校】完全給食 家庭弁当等との選択制/デリバリー形式[運搬:ランチボックス、内容:完全給食]
公立中学校の学校選択制 一部実施
子ども・学生等医療費助成<通院>対象年齢 小学校卒業まで 子ども・学生等医療費助成<入院>対象年齢 中学校卒業まで

広島市南区の治安・ごみ収集情報

公共料金・インフラ

ガス料金(22m3使用した場合の月額) 広島ガス株式会社5505円
水道料金(口径20mmで20m3の月額) 広島市2453円
下水道料金(20m3を使用した場合の月額) 広島市2260円
下水道普及率 96.5%

安心・安全

建物火災出火件数 147件
人口10000人当たり
1.22件
刑法犯認知件数 7080件
人口1000人当たり
5.90件
ハザード・防災マップ あり

医療

一般病院総数 73ヶ所
一般診療所総数 1206ヶ所
小児科医師数 261人
小児人口10000人当たり
17.38人
産婦人科医師数 126人
15~49歳女性人口1万人当たり
5.32人
介護保険料基準額(月額) 6400円

ごみ

家庭ごみ収集(可燃ごみ) 無料
備考
-
家庭ごみの分別方式 7分別12種〔可燃ごみ ペットボトル リサイクルプラ その他プラ 不燃ごみ(ライター、陶磁器・その他不燃ごみ) 資源ごみ(紙類[新聞紙、ダンボール、雑誌・チラシ・菓子箱等]、ガラス類、金属類、布類) 有害ごみ〕
家庭ごみの戸別収集 未実施
粗大ごみ収集 あり
備考
有料。事前申込制。大型ごみ受付センターへの予約が必要。納付券を貼り付けたものを収集。大型ごみあんしんサポート(住宅内からの搬出を支援)あり。
生ごみ処理機助成金制度 なし
上限金額
-
上限比率
-
暮らしデータ提供元:生活ガイド.com
※行政機関により公表していない地域及びデータがございます。東京23区以外の政令指定都市は、市全体のデータとして表示しています。
※提供データには細心の注意を払っておりますが、調査後に変更がある場合があります。 最新の情報につきましては各市区役所までお問い合わせいただくか、自治体HPなどをご確認ください。

他のエリアから探す

広島市南区の詳細地域から賃貸物件を探す

青崎稲荷町宇品海岸宇品神田宇品西宇品東宇品御幸猿猴橋町黄金山町大須賀町大州上東雲町北大河町京橋町金屋町楠那町荒神町東雲東雲本町丹那新町丹那町段原段原日出段原南段原山崎出汐出島西旭町西霞町西蟹屋西荒神町西本浦町西翠町仁保仁保新町仁保南日宇那町東青崎町東霞町東荒神町東本浦町比治山町比治山本町堀越本浦町松川町松原町的場町南大河町南蟹屋皆実町向洋大原町向洋新町向洋中町向洋本町元宇品町山城町

近辺の市区から探す

広島市中区広島市東区広島市西区広島市安佐南区広島市安芸区広島市佐伯区安芸郡府中町安芸郡海田町安芸郡熊野町安芸郡坂町

周辺の駅から探す

山陽本線
瀬野中野東安芸中野海田市向洋天神川広島新白島横川
広島電鉄宇品線
広電本社前御幸橋皆実町六丁目広大附属学校前県病院前宇品二丁目宇品三丁目宇品四丁目宇品五丁目
広島電鉄皆実線
松川町比治山下比治山橋南区役所前皆実町二丁目皆実町六丁目

掲載情報の著作権は提供元企業等に帰属します。
Copyright:(C) 2025 Recruit Co., Ltd.
アプリで簡単 物件探し 大手不動産サイトの情報から一括検!プッシュ通知で物件を見逃さない
App Storeからダウンロード Google Playで手に入れよう QRコード