アプリで簡単 物件探し 通知 共有 アプリならではの機能を使ってみる
賃貸マンション

サンメゾン16 瑞光四丁目駅 1LDK 賃貸(賃貸マンション・アパート)

情報提供元
SUUMO
サンメゾン16
賃料 6.7万円  (管理費等:5000円)
礼金・敷金 2ヶ月 / 1ヶ月 保証金/敷引・償却 なし / -
交通
所在地 大阪府大阪市東淀川区小松4周辺地図
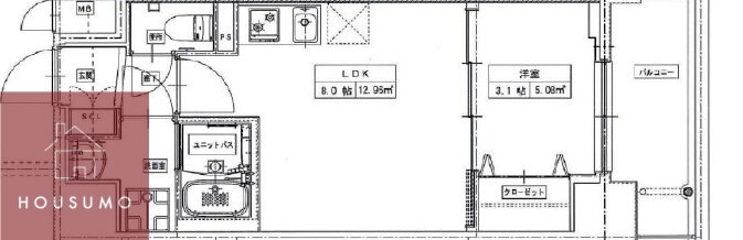
間取り 1LDK 専有面積 28.8m2
築年月 2019年4月 築年数 築6年9ヶ月
おすすめポイント
☆上新庄駅徒歩10分☆3口システムキッチン☆大型CL☆ ハウスモ江坂店では全ての物件、現地待ち合わせ案内可能です。スタッフまでお気軽にお申し付け下さいませ。06-6310-1962まで。
お問い合わせ先
ハウスモ不動産江坂店(株)Rリビングカンパニー
お問い合わせ先
ハウスモ不動産江坂店(株)Rリビングカンパニー

詳細情報

賃料 6.7万円 管理費等 5000円
敷金 1ヶ月 礼金 2ヶ月
保証金 なし 敷引・償却 -
更新料 - 契約期間
カード決済 初期費用カード決済可
所在地 大阪府大阪市東淀川区小松4周辺地図
交通
建物名 サンメゾン16 
間取り 1LDK(洋3.5 LDK8.0) 築年月(築年数) 2019年4月(築6年9ヶ月)
専有面積 28.8㎡ 所在階/階数 3階/10階建
建物構造 RC  方位  
現況   駐車場 近有 16,500円
入居可能時期 即時 住宅保険 あり
情報提供元 SUUMO[060H100447205152] 情報公開日
情報更新日 次回更新予定日 随時

設備など

2階以上 最上階 - 角部屋
駐車場(近隣含) エアコン付き バス・トイレ別
室内洗濯機置き場 追焚機能 - オートロック付き
モニタ付インターホン フローリング バルコニー
ガスコンロ可 浴室乾燥機 - 24時間セキュリティ -
宅配ボックス ペット相談可 - 二人入居可
設備 冷房・暖房・エアコン・オートロック・バルコニー・バス・トイレ別・トイレ・収納スペース・洗濯機置場・洗面所・エレベーター・CATV・BS端子・フローリング・照明器具・ガスコンロ可・シャンプードレッサ・温水洗浄便座・システムキッチン・モニタ付インターホン・宅配BOX・駐輪場・クローゼット・CS・都市ガス・ディンプルキー・浴トイレ別・防犯カメラ・洗面所独立・バイク置き場・コンロ2口以上・シューズボックス・インターネット対応・室内洗濯機置き場 
リフォーム履歴 -
リノベーション履歴 -
備考 損保要/鍵交換代1.32万円/室内清掃費用 33000円/保証会社利用必:保証会社に基づく。/普通借家01年0ヶ月/二人入居可/子供可/ルームシェア相談/ハウスモ江坂店では経験豊富なスタッフが在籍しており、大阪府内全域でお部屋探しが可能です。インターネットに掲載している物件はごく一部ですので是非お気軽にお問い合わせ下さいませ。各種クレジットカードも利用可能です。賃貸、売買、事務所、店舗、全て対応可能ですのでお気軽にお尋ね下さいませ。/バストイレ別/バルコニー/エアコン/ガスコンロ対応/クロゼット/フローリング/シャワー付洗面台/TVインターホン/オートロック/室内洗濯置/シューズボックス/システムキッチン/角住戸/温水洗浄便座/脱衣所/エレベーター/洗面所独立/洗面化粧台/2口コンロ/駐輪場/宅配ボックス/CATV/外壁タイル張り/即入居可/閑静な住宅地/BS・CS/防犯カメラ/照明付/全居室洋室/保証人不要/単身者相談/敷金1ヶ月/二人入居相談/バイク置場/全居室フローリング/2沿線利用可/ディンプルキー/CS/緑豊かな住宅地/保証金不要/24時間換気システム/ルームシェア相談/学生相談/耐火構造/2駅利用可/3駅以上利用可/駅徒歩5分以内/駅徒歩10分以内/24時間ゴミ出し可/敷地内ごみ置き場/都市ガス/洗面所にドア/ワイドバルコニー/BS/高速ネット対応/礼金2ヶ月/保証会社利用可/IT重説 対応物件/LGBTフレンドリー/初期費用カード決済可/関西スーパー 南江口店(スーパー)まで423m/ココカラファイン 南江口店(ドラッグストア)まで403m/ローソン 東淀川小松四丁目店(コンビニ)まで42m/東淀川下新庄四郵便局(郵便局)まで2521m/ザ・ダイソー 吹田泉町店(その他)まで3395m/マクドナルド 吹田さんくす店(飲食店)まで2238m/賃貸戸数:27戸 
特記事項 二人入居可・角部屋・外観タイル張り・閑静な住宅街・保証人不要/代行 ・ルームシェア可・初期費用カード決済可

省エネ性能

エネルギー消費性能 -
断熱性能 -
目安光熱費 -

大阪府大阪市東淀川区小松4 周辺地図情報

地図
※地図上に表示される物件の位置は付近住所に所在することを表すものであり、実際の物件所在地とは異なる場合がございます。
   正確な物件所在地は、取扱い不動産会社にお問い合わせください。
お問い合わせ先
ハウスモ不動産江坂店(株)Rリビングカンパニー

不動産会社情報

お問い合わせ先 商号:ハウスモ不動産江坂店(株)Rリビングカンパニー
免許番号:大阪府知事(2)第59901号
所在地:大阪府吹田市豊津町 9-16 第1ロンヂェビル4階A1号室
TEL:06-6310-1962
取引態様:仲介
管理コード:786785
共有する
QRコード
お問い合わせ先
ハウスモ不動産江坂店(株)Rリビングカンパニー

    大阪市東淀川区の暮らしデータ

    人口などの統計情報

    世帯数 1464615世帯
    人口総数 2757642人
    転入者数 225000人
    転入率(人口1000人当たり)
    81.59人
    転出者数 188180人
    転出率(人口1000人当たり)
    68.24人
    土地平均価格
    住宅地
    270839円/m2
    商業地
    1966607円/m2

    結婚・育児の助成金

    子育て関連の独自の取り組み (1)子ども・子育てプラザ(在宅での子育て家庭や地域での子育て活動を支援し、また乳幼児期の親子や子育て支援者、就学期の子どもが集い交流する機会を提供する等、地域福祉活動の推進を図る)。(2)習い事・塾代助成事業(学習塾や家庭教師、文化・スポーツ教室等学校外教育にかかる費用を、1人当たり月額1万円まで助成。所得制限あり)。
    出産祝い なし
    公立保育所数 53所(うち0歳児保育を実施している保育所:52所)
    私立保育所数 395所(うち0歳児保育を実施している保育所:385所)
    保育所入所待機児童数 2人
    認定こども園数 117園 預かり保育実施園数 公立:52園 私立:-
    学校給食 【小学校】完全給食【中学校】完全給食
    公立中学校の学校選択制 実施
    子ども・学生等医療費助成<通院>対象年齢 18歳3月末まで 子ども・学生等医療費助成<入院>対象年齢 18歳3月末まで

    大阪市東淀川区の治安・ごみ収集情報

    公共料金・インフラ

    ガス料金(22m3使用した場合の月額) 大阪瓦斯株式会社4544円
    水道料金(口径20mmで20m3の月額) 大阪市2112円
    下水道料金(20m3を使用した場合の月額) 大阪市1276円
    下水道普及率 100.0%

    安心・安全

    建物火災出火件数 553件
    人口10000人当たり
    2.01件
    刑法犯認知件数 39408件
    人口1000人当たり
    14.32件
    ハザード・防災マップ あり

    医療

    一般病院総数 170ヶ所
    一般診療所総数 3734ヶ所
    小児科医師数 659人
    小児人口10000人当たり
    22.80人
    産婦人科医師数 380人
    15~49歳女性人口1万人当たり
    6.15人
    介護保険料基準額(月額) 9249円

    ごみ

    家庭ごみ収集(可燃ごみ) 無料
    備考
    -
    家庭ごみの分別方式 4分別11種〔普通ごみ(普通ごみ、危険ごみ[竹串、ガラス片、カミソリの刃]) 資源ごみ(空き缶・空きびん・金属製の生活用品・ペットボトル、スプレー缶・カセットボンベ) 容器包装プラスチック 古紙・衣類(新聞紙・折込チラシ、段ボール、紙パック、雑誌、衣類、その他の紙類)〕
    家庭ごみの戸別収集 一部実施(【ふれあい収集】65歳以上の一人暮らしの高齢者または高齢者だけの世帯、障がいがある方が居住される家庭で、ごみ出しが困難な人が対象)
    粗大ごみ収集 あり
    備考
    有料。戸別収集。事前申込制。申込時に収集日を決定。
    生ごみ処理機助成金制度 なし
    上限金額
    -
    上限比率
    -
    暮らしデータ提供元:生活ガイド.com
    ※行政機関により公表していない地域及びデータがございます。東京23区以外の政令指定都市は、市全体のデータとして表示しています。
    ※提供データには細心の注意を払っておりますが、調査後に変更がある場合があります。 最新の情報につきましては各市区役所までお問い合わせいただくか、自治体HPなどをご確認ください。
    OCN×ドコモ光新規お申込みで合計最大137,280円相当おトク!特典の内訳・適用条件など詳細はこちら

    大阪市東淀川区内の各駅の住みやすさ

    他のエリアから探す

    大阪市東淀川区の詳細地域から賃貸物件を探す

    相川淡路井高野大隅上新庄北江口柴島小松下新庄菅原瑞光大桐大道南豊里西淡路東淡路東中島豊新南江口

    近辺の市区から探す

    大阪市都島区大阪市福島区大阪市此花区大阪市西区大阪市港区大阪市大正区大阪市天王寺区大阪市浪速区大阪市西淀川区大阪市東成区大阪市生野区大阪市旭区大阪市城東区大阪市阿倍野区大阪市西成区大阪市淀川区大阪市鶴見区大阪市北区大阪市中央区豊中市池田市吹田市守口市茨木市寝屋川市大東市箕面市摂津市東大阪市四條畷市

    周辺の駅から探す

    大阪市今里筋線
    井高野瑞光四丁目だいどう豊里太子橋今市清水新森古市
    阪急電鉄京都線
    南茨木摂津市正雀相川上新庄淡路崇禅寺南方十三

    大阪府大阪市東淀川区で他のジャンルから探す


    掲載情報の著作権は提供元企業等に帰属します。
    Copyright:(C) 2025 Recruit Co., Ltd.
    アプリで簡単 物件探し 大手不動産サイトの情報から一括検!プッシュ通知で物件を見逃さない
    App Storeからダウンロード Google Playで手に入れよう QRコード