アプリで簡単 物件探し 通知 共有 アプリならではの機能を使ってみる
賃貸マンション

京都府京都市右京区太秦下刑部町 太秦天神川駅 3LDK 賃貸(賃貸マンション・アパート)

情報提供元
SUUMO
賃料 9.5万円  (管理費等:11000円)
礼金・敷金 2ヶ月 / なし 保証金/敷引・償却 なし / -
交通
所在地 京都府京都市右京区太秦下刑部町周辺地図
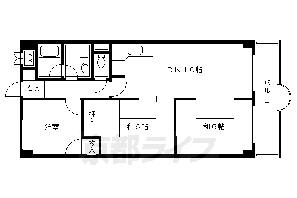
間取り 3LDK 専有面積 61.05m2
築年月 1984年2月 築年数 築41年11ヶ月
おすすめポイント
目の前が駅の物件です。 目の前が駅(地下鉄太秦天神駅)の物件です。 物件情報からエリア情報まで京都の賃貸物件紹介はお任せください!

詳細情報

賃料 9.5万円 管理費等 11000円
敷金 なし 礼金 2ヶ月
保証金 なし 敷引・償却 -
更新料 - 契約期間
カード決済 -
所在地 京都府京都市右京区太秦下刑部町周辺地図
交通
建物名  
間取り 3LDK(和6 和6 洋6 LDK10) 築年月(築年数) 1984年2月(築41年11ヶ月)
専有面積 61.05㎡ 所在階/階数 9階/11階建
建物構造 SRC  方位 南 
現況   駐車場 有 19,800円
入居可能時期 即時 住宅保険 あり 2年 38500円
情報提供元 SUUMO[060H100470158026] 情報公開日
情報更新日 次回更新予定日 随時

設備など

2階以上 最上階 - 角部屋 -
駐車場(近隣含) エアコン付き バス・トイレ別
室内洗濯機置き場 追焚機能 - オートロック付き
モニタ付インターホン フローリング バルコニー
ガスコンロ可 浴室乾燥機 - 24時間セキュリティ -
宅配ボックス - ペット相談可 - 二人入居可
設備 冷房・暖房・エアコン・オートロック・バルコニー・バス・トイレ別・トイレ・収納スペース・洗濯機置場・洗面所・エレベーター・フローリング・ガスコンロ可・シャンプードレッサ・システムキッチン・モニタ付インターホン・駐輪場・都市ガス・浄水器・浴トイレ別・防犯カメラ・洗面所独立・バイク置き場・インターネット対応・室内洗濯機置き場 
リフォーム履歴 -
リノベーション履歴 -
備考 書類代1.3万円/ガス警報機1100円/月 ハウスクリーニング代3.3万円/退去時 口座振替手数料220円/月/保証会社利用必:初回:月額賃料等の50%、更新時:2.2万円/2年/二人入居可/子供可/駐車料金:19800円~22000円 更新料:新家賃1ヶ月 更新手数料:無/バストイレ別/バルコニー/エアコン/ガスコンロ対応/フローリング/シャワー付洗面台/TVインターホン/オートロック/室内洗濯置/システムキッチン/南向き/エレベーター/洗面所独立/駐輪場/押入/光ファイバー/即入居可/敷金不要/防犯カメラ/二人入居相談/バイク置場/浄水器/3駅以上利用可/駅徒歩5分以内/和室/全居室6畳以上/都市ガス/高速ネット対応/礼金2ヶ月/IT重説 対応物件/巡回管理/セブンイレブン天神川三条店(コンビニ)まで84m/フレスコ 天神川店(スーパー)まで187m/京都民医連中央病院(病院)まで495m/ライフ 太秦店(スーパー)まで605m/京都山ノ内郵便局(郵便局)まで610m/中央仏教学院(その他)まで560m/地下鉄東西線西大路御池駅徒歩15分/賃貸戸数:52戸 
特記事項 二人入居可・管理人巡回

省エネ性能

エネルギー消費性能 -
断熱性能 -
目安光熱費 -

京都府京都市右京区太秦下刑部町 周辺地図情報

地図
※地図上に表示される物件の位置は付近住所に所在することを表すものであり、実際の物件所在地とは異なる場合がございます。
   正確な物件所在地は、取扱い不動産会社にお問い合わせください。

不動産会社情報

お問い合わせ先 商号:(株)京都ライフ京田辺店
免許番号:京都府知事(11)第6353号
所在地:京都府京田辺市田辺中央1-7-11
TEL:0774-68-5300
取引態様:仲介
管理コード:K00601-09-C
所属協会など:(公社)近畿地区不動産公正取引協議会加盟、(公社)京都府宅地建物取引業協会会員
共有する
QRコード

    京都市右京区の暮らしデータ

    人口などの統計情報

    世帯数 728744世帯
    人口総数 1379529人
    転入者数 85315人
    転入率(人口1000人当たり)
    61.84人
    転出者数 80567人
    転出率(人口1000人当たり)
    58.40人
    土地平均価格
    住宅地
    220880円/m2
    商業地
    1290411円/m2

    結婚・育児の助成金

    子育て関連の独自の取り組み (1)乳幼児の子育て支援機能や学童クラブ機能等を有する児童館設置。(2)こんにちはプレママ事業。(3)児童虐待未然防止に係る医療機関と子どもはぐくみ室及び京北出張所の連携。(4)子ども保健医療相談・事故防止センター設置。(5)京都はぐくみアプリ配信。(6)子育て支援コンシェルジュ育成。(7)骨髄移植手術等により免疫を喪失した子どもへのワクチン再接種費用助成制度。(8)子どもを共に育む京都市民憲章の制定、憲章の実践・普及の促進。(9)【京都安心すまい応援金】未就学の子どもがいる世帯を対象に、自己居住用として既存住宅を購入し、リフォームを行う場合に、最大200万円の応援金を交付。
    出産祝い あり
    公立保育所数 14所(うち0歳児保育を実施している保育所:13所)
    私立保育所数 196所(うち0歳児保育を実施している保育所:188所)
    保育所入所待機児童数 0人
    認定こども園数 83園 預かり保育実施園数 公立:15園 私立:81園
    学校給食 【小学校】完全給食【中学校】完全給食 家庭弁当等との選択制/デリバリー形式[運搬:ランチボックス、内容:完全給食] 給食なし
    公立中学校の学校選択制 未実施
    子ども・学生等医療費助成<通院>対象年齢 中学校卒業まで 子ども・学生等医療費助成<入院>対象年齢 中学校卒業まで

    京都市右京区の治安・ごみ収集情報

    公共料金・インフラ

    ガス料金(22m3使用した場合の月額) 大阪瓦斯株式会社4544円
    水道料金(口径20mmで20m3の月額) 京都市3014円
    下水道料金(20m3を使用した場合の月額) 京都市2013円
    下水道普及率 99.5%

    安心・安全

    建物火災出火件数 158件
    人口10000人当たり
    1.08件
    刑法犯認知件数 8104件
    人口1000人当たり
    5.54件
    ハザード・防災マップ あり

    医療

    一般病院総数 89ヶ所
    一般診療所総数 1622ヶ所
    小児科医師数 397人
    小児人口10000人当たり
    27.26人
    産婦人科医師数 201人
    15~49歳女性人口1万人当たり
    7.16人
    介護保険料基準額(月額) 7160円

    ごみ

    家庭ごみ収集(可燃ごみ) 有料
    備考
    指定ごみ袋有料。
    家庭ごみの分別方式 5分別8種〔燃やすごみ 缶・びん・ペットボトル プラスチック類 小型金属類・スプレー缶 雑がみ〕 拠点回収:移動式拠点回収):古紙(新聞・ダンボール) 雑がみ 紙パック 使用済てんぷら油 古着類 乾電池 ボタン電池 充電式電池 蛍光管 水銀体温計・水銀血圧計 小型家電 磁気テープ類 インクカートリッジ リユースびん 刃物類 使い捨てライター 陶磁器製の食器 せん定枝木の枝 石油類 医薬品・農薬 化学薬品・塗料・ワックス・絵の具 洗浄剤
    家庭ごみの戸別収集 一部実施(原則定点としているが、一部地域で狭路等やむを得ない事情がある場合のみ実施。また、ごみ出しが困難な高齢者や障害のある方などの生活支援の一つとして、御自宅の玄関先までごみの収集に伺う「ごみ収集福祉サービス[まごころ収集]」を実施)
    粗大ごみ収集 あり
    備考
    有料。事前申込制。
    生ごみ処理機助成金制度 なし
    上限金額
    -
    上限比率
    -
    暮らしデータ提供元:生活ガイド.com
    ※行政機関により公表していない地域及びデータがございます。東京23区以外の政令指定都市は、市全体のデータとして表示しています。
    ※提供データには細心の注意を払っておりますが、調査後に変更がある場合があります。 最新の情報につきましては各市区役所までお問い合わせいただくか、自治体HPなどをご確認ください。
    OCN×ドコモ光新規お申込みで合計最大137,280円相当おトク!特典の内訳・適用条件など詳細はこちら

    京都市右京区内の各駅の住みやすさ

    他のエリアから探す

    京都市右京区の詳細地域から賃貸物件を探す

    太秦青木ケ原町太秦青木元町太秦荒木町太秦石垣町太秦和泉式部町太秦一ノ井町太秦一町芝町太秦井戸ケ尻町太秦乾町太秦馬塚町太秦奥殿町太秦面影町太秦開日町太秦帷子ケ辻町太秦桂ケ原町太秦桂木町太秦上刑部町太秦上ノ段町太秦北路町太秦木ノ下町太秦京ノ道町太秦組石町太秦御所ノ内町太秦三尾町太秦下角田町太秦下刑部町太秦朱雀町太秦椙ケ本町太秦滝ケ花町太秦多藪町太秦垂箕山町太秦辻ケ本町太秦土本町太秦中筋町太秦西野町太秦西蜂岡町太秦野元町太秦蜂岡町太秦八反田町太秦東蜂岡町太秦樋ノ内町太秦藤ケ森町太秦堀池町太秦堀ケ内町太秦前ノ田町太秦松本町太秦皆正寺町太秦宮ノ前町太秦森ケ西町太秦森ケ東町太秦森ケ前町太秦門田町太秦安井池田町太秦安井一町田町太秦安井馬塚町太秦安井奥畑町太秦安井春日町太秦安井北御所町太秦安井車道町太秦安井小山町太秦安井辰巳町太秦安井辻ノ内町太秦安井西裏町太秦安井西沢町太秦安井二条裏町太秦安井東裏町太秦安井藤ノ木町太秦安井松本町太秦安井水戸田町太秦安井柳通町太秦百合ケ本町宇多野御池町宇多野御屋敷町宇多野長尾町宇多野馬場町宇多野福王子町梅ケ畑奥殿町梅ケ畑高鼻町梅ケ畑中田町梅ケ畑広芝町梅ケ畑向ノ地町梅津石灘町梅津上田町梅津大縄場町梅津構口町梅津神田町梅津北浦町梅津北川町梅津北町梅津後藤町梅津尻溝町梅津高畝町梅津段町梅津堤上町梅津徳丸町梅津中倉町梅津中村町梅津西浦町梅津林口町梅津東構口町梅津開キ町梅津フケノ川町梅津罧原町梅津前田町梅津南上田町梅津南広町梅津南町御室岡ノ裾町御室芝橋町御室竪町北嵯峨北ノ段町北嵯峨名古曽町京北周山町西院乾町西院太田町西院笠目町西院春日町西院上今田町西院上花田町西院北井御料町西院北矢掛町西院久田町西院久保田町西院小米町西院寿町西院三蔵町西院四条畑町西院清水町西院下花田町西院春栄町西院高田町西院巽町西院月双町西院西今田町西院西貝川町西院西寿町西院西三蔵町西院西淳和院町西院西高田町西院西田町西院西平町西院西溝崎町西院西矢掛町西院東今田町西院東貝川町西院東淳和院町西院東中水町西院坤町西院日照町西院平町西院松井町西院南井御料町西院南高田町西院矢掛町西院安塚町西院六反田町嵯峨朝日町嵯峨石ケ坪町嵯峨梅ノ木町嵯峨小倉山堂ノ前町嵯峨折戸町嵯峨甲塚町嵯峨苅分町嵯峨観空寺岡崎町嵯峨北堀町嵯峨五島町嵯峨釈迦堂大門町嵯峨釈迦堂藤ノ木町嵯峨釈迦堂門前裏柳町嵯峨釈迦堂門前瀬戸川町嵯峨釈迦堂門前南中院町嵯峨新宮町嵯峨大覚寺門前井頭町嵯峨大覚寺門前堂ノ前町嵯峨大覚寺門前登リ町嵯峨大覚寺門前八軒町嵯峨大覚寺門前宮ノ下町嵯峨大覚寺門前六道町嵯峨天龍寺油掛町嵯峨天龍寺今堀町嵯峨天龍寺北造路町嵯峨天龍寺車道町嵯峨天龍寺椎野町嵯峨天龍寺瀬戸川町嵯峨天龍寺立石町嵯峨天龍寺造路町嵯峨天龍寺中島町嵯峨天龍寺広道町嵯峨天龍寺若宮町嵯峨鳥居本中筋町嵯峨蜻蛉尻町嵯峨中通町嵯峨中又町嵯峨中山町嵯峨二尊院門前北中院町嵯峨二尊院門前善光寺山町嵯峨野秋街道町嵯峨野有栖川町嵯峨野神ノ木町嵯峨野北野町嵯峨野嵯峨ノ段町嵯峨野芝野町嵯峨野清水町嵯峨野高田町嵯峨野千代ノ道町嵯峨野西ノ藤町嵯峨野東田町嵯峨野開町嵯峨野南浦町嵯峨野宮ノ元町嵯峨野六反田町嵯峨広沢池下町嵯峨広沢北下馬野町嵯峨広沢御所ノ内町嵯峨広沢西裏町嵯峨広沢南下馬野町嵯峨広沢南野町嵯峨罧原町嵯峨明星町嵯峨柳田町谷口梅津間町谷口円成寺町谷口唐田ノ内町谷口園町常盤一ノ井町常盤馬塚町常盤御池町常盤柏ノ木町常盤北裏町常盤草木町常盤窪町常盤下田町常盤出口町常盤仲之町常盤西町常盤東ノ町常盤古御所町常盤村ノ内町常盤山下町鳴滝音戸山町鳴滝川西町鳴滝桐ケ淵町鳴滝嵯峨園町鳴滝中道町鳴滝蓮池町鳴滝般若寺町鳴滝藤ノ木町鳴滝本町鳴滝松本町鳴滝蓮花寺町西京極畔勝町西京極午塚町西京極葛野町西京極河原町西京極北裏町西京極北大入町西京極北衣手町西京極北庄境町西京極郡沢町西京極郡町西京極三反田町西京極芝ノ下町西京極下沢町西京極新田町西京極新明町西京極末広町西京極大門町西京極町ノ坪町西京極佃田町西京極堤下町西京極堤外町西京極堤町西京極徳大寺団子田町西京極殿田町西京極中沢町西京極中町西京極南方町西京極西池田町西京極西大丸町西京極西川町西京極西衣手町西京極西向河原町西京極野田町西京極橋詰町西京極畑田町西京極浜ノ本町西京極東池田町西京極東大丸町西京極東側町西京極東衣手町西京極東町西京極前田町西京極豆田町西京極南大入町西京極南衣手町西京極南庄境町花園一条田町花園伊町花園内畑町花園円成寺町花園扇野町花園春日町花園木辻南町花園坤南町花園艮北町花園巽南町花園鷹司町花園段ノ岡町花園土堂町花園寺ノ内町花園寺ノ前町花園天授ケ岡町花園中御門町花園宮ノ上町花園八ツ口町花園藪ノ下町山ノ内荒木町山ノ内池尻町山ノ内大町山ノ内北ノ口町山ノ内五反田町山ノ内赤山町山ノ内瀬戸畑町山ノ内苗町山ノ内中畑町山ノ内西裏町山ノ内西八反田町山ノ内御堂殿町山ノ内宮前町山ノ内宮脇町山ノ内山ノ下町山ノ内養老町龍安寺池ノ下町龍安寺衣笠下町龍安寺五反田町龍安寺斎宮町龍安寺住吉町龍安寺玉津芝町龍安寺塔ノ下町龍安寺西ノ川町

    近辺の市区から探す

    大津市京都市北区京都市上京区京都市左京区京都市中京区京都市東山区京都市下京区京都市南区京都市伏見区京都市山科区京都市西京区亀岡市向日市長岡京市乙訓郡大山崎町

    周辺の駅から探す

    山陰本線
    梅小路京都西丹波口二条円町花園太秦嵯峨嵐山保津峡馬堀
    京都市東西線
    太秦天神川西大路御池二条二条城前烏丸御池
    阪急電鉄京都線
    京都河原町烏丸大宮西院西京極洛西口東向日

    京都府京都市右京区で他のジャンルから探す


    掲載情報の著作権は提供元企業等に帰属します。
    Copyright:(C) 2025 Recruit Co., Ltd.
    アプリで簡単 物件探し 大手不動産サイトの情報から一括検!プッシュ通知で物件を見逃さない
    App Storeからダウンロード Google Playで手に入れよう QRコード