賃貸マンション
プレサンス桜通グレイス 高岳駅 1K 賃貸(賃貸マンション・アパート)
| 賃料 |
5.28万円 (管理費等:8290円) |
| 礼金・敷金 |
なし / なし |
保証金/敷引・償却 |
なし / - |
| 交通 |
|
| 所在地 |
愛知県名古屋市東区東桜2周辺地図
|
| 間取り |
1K |
専有面積 |
20.94m2 |
| 築年月 |
2011年4月 |
築年数 |
築14年7ヶ月 |
- おすすめポイント
- 【見学予約受付中】独立洗面台★高岳駅前の好立地分譲マンション 内見代行・写真撮影/動画撮影/WEB契約等来店不要でご契約可能です。お気軽にご相談下さい。
- お問い合わせ先
- フォーディールーム 名古屋店(株)Four D
- お問い合わせ先
- フォーディールーム 名古屋店(株)Four D
| 賃料 |
5.28万円 |
管理費等 |
8290円 |
| 敷金 |
なし |
礼金 |
なし |
| 保証金 |
なし |
敷引・償却 |
- |
| 更新料 |
- |
契約期間 |
|
| カード決済 |
初期費用カード決済可 |
| 所在地 |
愛知県名古屋市東区東桜2周辺地図
|
| 交通 |
- 地下鉄桜通線 高岳駅 徒歩1分乗換案内
- 地下鉄東山線 新栄町駅 徒歩10分乗換案内
- 地下鉄名城線 久屋大通駅 徒歩8分乗換案内
|
| 建物名 |
プレサンス桜通グレイス |
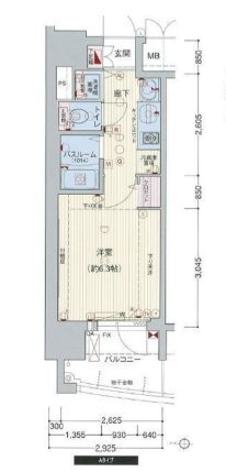
| 間取り |
1K(洋6.1) |
築年月(築年数) |
2011年4月(築14年7ヶ月)
|
| 専有面積 |
20.94㎡ |
所在階/階数 |
6階/14階建
|
| 建物構造 |
RC |
方位 |
西 |
| 現況 |
|
駐車場 |
近有 18,000円 |
| 入居可能時期 |
即時 |
住宅保険 |
あり |
| 情報提供元 |
SUUMO[050H100461448696] |
情報公開日 |
|
| 情報更新日 |
|
次回更新予定日 |
随時 |
設備など
| 2階以上 |
○ |
最上階 |
- |
角部屋 |
- |
| 駐車場(近隣含) |
○ |
エアコン付き |
○ |
バス・トイレ別 |
○ |
| 室内洗濯機置き場 |
○ |
追焚機能 |
- |
オートロック付き |
○ |
| モニタ付インターホン |
○ |
フローリング |
○ |
バルコニー |
○ |
| ガスコンロ可 |
○ |
浴室乾燥機 |
○ |
24時間セキュリティ |
- |
| 宅配ボックス |
○ |
ペット相談可 |
- |
二人入居可 |
- |
| 設備 |
冷房・暖房・エアコン・オートロック・バルコニー・バス・トイレ別・トイレ・収納スペース・洗濯機置場・洗面所・エレベーター・BS端子・フローリング・浴室乾燥機・照明器具・ガスコンロ可・シャンプードレッサ・システムキッチン・モニタ付インターホン・宅配BOX・駐輪場・クローゼット・衣類乾燥機・都市ガス・浴トイレ別・防犯カメラ・洗面所独立・コンロ2口以上・シューズボックス・インターネット無料・インターネット対応・室内洗濯機置き場 |
| リフォーム履歴 |
- |
| リノベーション履歴 |
- |
| 備考 |
損保要/鍵交換代 29700円/保証会社利用必:初回保証料総賃料:50%/普通借家01年/単身者可/バストイレ別/バルコニー/エアコン/ガスコンロ対応/クロゼット/フローリング/シャワー付洗面台/TVインターホン/浴室乾燥機/オートロック/室内洗濯置/シューズボックス/システムキッチン/エレベーター/洗面所独立/洗面化粧台/2口コンロ/駐輪場/宅配ボックス/光ファイバー/外壁タイル張り/即入居可/防犯カメラ/照明付/全居室収納/分譲賃貸/保証人不要/全居室フローリング/デザイナーズ/ネット専用回線/駅まで平坦/ネット使用料不要/エアコン全室/保証金不要/雨戸/24時間換気システム/平坦地/人感照明センサー/耐火構造/耐震構造/3駅以上利用可/3沿線以上利用可/駅前/駅徒歩5分以内/24時間ゴミ出し可/敷地内ごみ置き場/都市ガス/縦型照明付洗面化粧台/玄関収納/間接照明/オートライト/ダウンライト/フットライト/BS/高速ネット対応/LAN/マルチメディアコンセント/敷金・礼金不要/IT重説 対応物件/初期費用カード決済可/巡回管理/ローソンストア100 LS東新町店(スーパー)まで594m/セブンイレブン 名古屋東桜1丁目店(コンビニ)まで194m/ファミリーマート 地下鉄高岳駅前店(コンビニ)まで149m/ローソン 高岳駅南店(コンビニ)まで266m/スギドラッグ 東新町店(ドラッグストア)まで499m/マツモトキヨシ オアシス21店(ドラッグストア)まで776m/賃貸戸数:60戸 |
| 特記事項 |
分譲タイプ・外観タイル張り・管理人巡回・デザイナーズ物件・保証人不要/代行 ・初期費用カード決済可 |
愛知県名古屋市東区東桜2 周辺地図情報
※地図上に表示される物件の位置は付近住所に所在することを表すものであり、実際の物件所在地とは異なる場合がございます。
正確な物件所在地は、取扱い不動産会社にお問い合わせください。
- お問い合わせ先
- フォーディールーム 名古屋店(株)Four D
不動産会社情報
| お問い合わせ先 |
商号:フォーディールーム 名古屋店(株)Four D 免許番号:国土交通大臣(1)第10082号 所在地:愛知県名古屋市中村区名駅4-5-26ユニモール桜ビル5階 TEL:052-583-5610 取引態様:仲介 管理コード:0000053352 所属協会など: 東海不動産公正取引協議会加盟、(公社)全日本不動産協会愛知県本部会員
|
共有する |
|
- お問い合わせ先
- フォーディールーム 名古屋店(株)Four D
人口などの統計情報
| 世帯数 |
1119847世帯 |
| 人口総数 |
2297745人 |
| 転入者数 |
168667人
- 転入率(人口1000人当たり)
- 73.41人
|
| 転出者数 |
154544人
- 転出率(人口1000人当たり)
- 67.26人
|
| 土地平均価格 |
- 住宅地
- 223115円/m2
- 商業地
- 1106619円/m2
|
結婚・育児の助成金
| 子育て関連の独自の取り組み |
(1)なごや子育てアプリ「NAGOMii(なごみー)」による子育て支援情報の提供。(2)子育て家庭優待カード「ぴよか」の交付。(3)子どもを出産、育児する家庭に5万ポイント(5万円相当)分のカタログギフトを進呈する、ナゴヤわくわくプレゼント事業の実施。 |
| 出産祝い |
あり |
| 公立保育所数 |
84所(うち0歳児保育を実施している保育所:84所) |
| 私立保育所数 |
367所(うち0歳児保育を実施している保育所:365所) |
| 保育所入所待機児童数 |
0人 |
| 認定こども園数 |
107園 |
預かり保育実施園数 |
公立:20園 私立:- |
| 学校給食 |
【小学校】完全給食【中学校】家庭弁当等との選択制/デリバリー形式[運搬:食缶等、内容:完全給食(献立選択制)] |
| 公立中学校の学校選択制 |
未実施 |
| 子ども・学生等医療費助成<通院>対象年齢 |
18歳3月末まで |
子ども・学生等医療費助成<入院>対象年齢 |
18歳3月末まで |
名古屋市東区の治安・ごみ収集情報
公共料金・インフラ
| ガス料金(22m3使用した場合の月額) |
東邦瓦斯株式会社5307円 |
| 水道料金(口径20mmで20m3の月額) |
名古屋市2915円 |
| 下水道料金(20m3を使用した場合の月額) |
名古屋市1804円 |
| 下水道普及率 |
99.4% |
安心・安全
| 建物火災出火件数 |
355件
- 人口10000人当たり
- 1.52件
|
| 刑法犯認知件数 |
19857件
- 人口1000人当たり
- 8.51件
|
| ハザード・防災マップ |
あり |
医療
| 一般病院総数 |
110ヶ所 |
| 一般診療所総数 |
2272ヶ所 |
| 小児科医師数 |
770人
- 小児人口10000人当たり
- 28.40人
|
| 産婦人科医師数 |
319人
- 15~49歳女性人口1万人当たり
- 6.72人
|
| 介護保険料基準額(月額) |
6951円 |
ごみ
| 家庭ごみ収集(可燃ごみ) |
無料
|
| 家庭ごみの分別方式 |
5分別9種〔可燃ごみ 不燃ごみ 発火性危険物 電池類 資源(プラスチック資源、紙製容器包装・雑がみ、ペットボトル、空きびん、空き缶)〕 拠点回収:資源(ペットボトル 紙パック 食用油 小型家電 充電式家電 蛍光管・水銀体温計・水銀温度計) |
| 家庭ごみの戸別収集 |
実施(可燃ごみ、不燃ごみ、発火性危険物、電池類、プラスチック資源のみ。紙製容器包装・雑がみ、ペットボトル、空きびん、空き缶はステーション収集) |
| 粗大ごみ収集 |
あり
|
| 生ごみ処理機助成金制度 |
なし
- 上限金額
- -
- 上限比率
- -
|
※行政機関により公表していない地域及びデータがございます。東京23区以外の政令指定都市は、市全体のデータとして表示しています。
※提供データには細心の注意を払っておりますが、調査後に変更がある場合があります。 最新の情報につきましては各市区役所までお問い合わせいただくか、自治体HPなどをご確認ください。
名古屋市東区の暮らしデータをもっと見る