アプリで簡単 物件探し 通知 共有 アプリならではの機能を使ってみる
賃貸一戸建て

長野県長野市川中島町原 今井駅 4SLDK 賃貸(賃貸マンション・アパート)

情報提供元
SUUMO
賃料 12万円  (管理費等:なし)
礼金・敷金 12万円 / 24万円 保証金/敷引・償却 なし / -
交通
所在地 長野県長野市川中島町原周辺地図
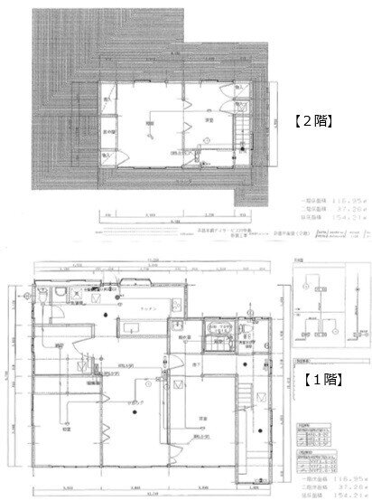
間取り 4SLDK 専有面積 154.21m2
築年月 1979年10月 築年数 築46年2ヶ月
おすすめポイント
◇上下の音を気にせずに過ごせる4LDK+S戸建◇ ◇カーポート&テラス付専用庭◇トイレ2ヶ所あり◇3台駐車可能◇
お問い合わせ先
ピタットハウス長野南店(株)東邦不動産プラザ
お問い合わせ先
ピタットハウス長野南店(株)東邦不動産プラザ

詳細情報

賃料 12万円 管理費等 なし
敷金 24万円 礼金 12万円
保証金 なし 敷引・償却 -
更新料 - 契約期間
カード決済 -
所在地 長野県長野市川中島町原周辺地図
交通
建物名  
間取り 4SLDK 築年月(築年数) 1979年10月(築46年2ヶ月)
専有面積 154.21㎡ 所在階/階数 1階/2階建
建物構造 木造  方位 南 
現況   駐車場 有 無料
入居可能時期 即時 住宅保険 あり 2年 20000円
情報提供元 SUUMO[040H100416322788] 情報公開日
情報更新日 次回更新予定日 随時

設備など

2階以上 - 最上階 - 角部屋 -
駐車場(近隣含) エアコン付き バス・トイレ別
室内洗濯機置き場 追焚機能 - オートロック付き -
モニタ付インターホン - フローリング - バルコニー
ガスコンロ可 - 浴室乾燥機 - 24時間セキュリティ -
宅配ボックス - ペット相談可 - 二人入居可 -
設備 冷房・暖房・エアコン・バルコニー・バス・トイレ別・トイレ・収納スペース・洗濯機置場・洗面所・システムキッチン・トイレ2ヶ所・トランクルーム・プロパンガス・浴トイレ別・洗面所独立・シューズボックス・室内洗濯機置き場 
リフォーム履歴 -
リノベーション履歴 -
備考 24時間緊急サポート1.98万円/保証会社利用必:日本セーフティー株式会社 初回保証料 賃料等総額50%(最低2万円) 継続保証料毎月800円+引落手数料毎月550円/仲介手数料13.2万円/駐3台可/※事業用としての使用可(保証料は異なります)※1F:116.95平米・2F:37.26平米※物置(平屋建):6.02平米/バストイレ別/バルコニー/エアコン/室内洗濯置/シューズボックス/システムキッチン/南向き/洗面所独立/洗面化粧台/即入居可/2沿線利用可/トランクルーム/トイレ2ヶ所/駐車3台可/専有面積30坪以上/プロパンガス/西友川中島店(スーパー)まで828m/御厨簡易郵便局(郵便局)まで1221m/御厨公園(公園)まで1238m/ながの東急百貨店(ショッピングセンター)まで7694m 
特記事項 駐車場3台分以上

省エネ性能

エネルギー消費性能 -
断熱性能 -
目安光熱費 -

長野県長野市川中島町原 周辺地図情報

地図
※地図上に表示される物件の位置は付近住所に所在することを表すものであり、実際の物件所在地とは異なる場合がございます。
   正確な物件所在地は、取扱い不動産会社にお問い合わせください。
お問い合わせ先
ピタットハウス長野南店(株)東邦不動産プラザ

不動産会社情報

お問い合わせ先 商号:ピタットハウス長野南店(株)東邦不動産プラザ
免許番号:長野県知事(6)第4521号
所在地:長野県長野市稲里町中氷鉋 628-2
TEL:026-219-2121
取引態様:仲介
管理コード:11133892-593
所属協会など:(公社)首都圏不動産公正取引協議会加盟、(公社)長野県宅地建物取引業協会会員
共有する
QRコード
お問い合わせ先
ピタットハウス長野南店(株)東邦不動産プラザ

長野市の暮らしデータ

人口などの統計情報

世帯数 156645世帯
人口総数 365572人
転入者数 10932人
転入率(人口1000人当たり)
29.90人
転出者数 11383人
転出率(人口1000人当たり)
31.14人
土地平均価格
住宅地
43034円/m2
商業地
97788円/m2

結婚・育児の助成金

子育て関連の独自の取り組み (1)公私立保育園と私立幼稚園が「おひさま広場」という名称で、未就園児とその保護者に園開放や育児相談、子育て情報の提供等の支援を実施。(2)妊産婦とそのパートナー、6歳までの子育て世帯を対象に、妊娠・出産から子育てに関する基礎知識や長野市からの子育て支援情報をLINEで配信。(3)妊娠・出産・乳幼児期の子育て情報や予防接種の予定等をスマートフォンで確認・管理ができるアプリを配信。(4)1歳以上2歳未満の人を対象に、おたふくかぜ予防接種費の一部を助成。
出産祝い なし
公立保育所数 32所(うち0歳児保育を実施している保育所:32所)
私立保育所数 30所(うち0歳児保育を実施している保育所:30所)
保育所入所待機児童数 2人
認定こども園数 26園 預かり保育実施園数 公立:- 私立:19園
学校給食 【小学校】完全給食【中学校】完全給食
公立中学校の学校選択制 一部実施(長野市鬼無里地区小規模特認校制度:被災した長野市立鬼無里中学校を小規模特認校とし、特認校の通学区域外からの就学が可能。特定地域学校選択制度:特定地域に住所を有する者は選択可能学校への就学が可能)
子ども・学生等医療費助成<通院>対象年齢 18歳3月末まで 子ども・学生等医療費助成<入院>対象年齢 18歳3月末まで

長野市の治安・ごみ収集情報

公共料金・インフラ

ガス料金(22m3使用した場合の月額) 長野都市ガス株式会社3928円
水道料金(口径20mmで20m3の月額) 長野市4081円
長野県企業局3313円
下水道料金(20m3を使用した場合の月額) 長野市3534円
下水道普及率 94.7%

安心・安全

建物火災出火件数 64件
人口10000人当たり
1.72件
刑法犯認知件数 1693件
人口1000人当たり
4.54件
ハザード・防災マップ あり

医療

一般病院総数 22ヶ所
一般診療所総数 297ヶ所
小児科医師数 69人
小児人口10000人当たり
16.40人
産婦人科医師数 30人
15~49歳女性人口1万人当たり
4.53人
介護保険料基準額(月額) 5670円

ごみ

家庭ごみ収集(可燃ごみ) 有料
備考
指定ごみ袋有料。
家庭ごみの分別方式 8分別14種〔可燃ごみ 不燃ごみ プラスチック製容器包装 紙(新聞・折込ちらし、ダンボール、紙パック、雑誌・その他古紙) カン ビン(無色透明、茶色、その他の色、乾電池) ペットボトル 剪定枝葉等〕 拠点回収:蛍光灯 廃食用油 使用済小型家電 携帯電話・スマートフォン
家庭ごみの戸別収集 未実施
粗大ごみ収集 あり
備考
有料。指定のシール(有料)を貼り、ごみ収集カレンダーで定められた日に地区で決められたごみ集積所へ。ただし、可燃ごみ、不燃ごみとも大きさ1m×50cm×50cm以内のものに限る。
生ごみ処理機助成金制度 あり
上限金額
30000円
上限比率
50.0%
暮らしデータ提供元:生活ガイド.com
※行政機関により公表していない地域及びデータがございます。東京23区以外の政令指定都市は、市全体のデータとして表示しています。
※提供データには細心の注意を払っておりますが、調査後に変更がある場合があります。 最新の情報につきましては各市区役所までお問い合わせいただくか、自治体HPなどをご確認ください。
OCN×ドコモ光新規お申込みで合計最大137,280円相当おトク!特典の内訳・適用条件など詳細はこちら

長野市内の各駅の住みやすさ

他のエリアから探す

長野市の詳細地域から賃貸物件を探す

青木島青木島町青木島青木島町大塚青木島町綱島浅川浅川押田浅川西条安茂里小市伊勢宮稲里稲里町下氷鉋稲里町田牧稲里町中央稲里町中氷鉋稲田居町上松上野大字安茂里大字石渡大字稲葉大字風間大字金箱大字上駒沢大字川合新田大字北尾張部大字北長池大字北堀大字栗田大字小柴見大字小島大字三才大字下駒沢大字高田大字鶴賀大字徳間大字富竹大字中御所大字長野大字西尾張部大字西長野大字西和田大字東和田大字平柴大字平林大字大豆島大字檀田大字南長池大字南長野大字南堀大字三輪大字屋島大字柳原大字若里大字若槻団地大字若槻東条大橋南小島田町神楽橋金井田川中島町今井川中島町今井原川中島町上氷鉋川中島町原川中島町御厨川中島町四ツ屋合戦場北条町桐原坂中桜新町差出南里島早苗町三本柳西三本柳東篠ノ井会篠ノ井岡田篠ノ井御幣川篠ノ井杵淵篠ノ井小森篠ノ井塩崎篠ノ井東福寺篠ノ井西寺尾篠ノ井布施五明篠ノ井布施高田篠ノ井二ツ柳下氷鉋伺去真光寺信更町氷ノ田信州新町上条新諏訪神明丹波島戸隠豊岡徳間豊野町浅野豊野町蟹沢豊野町豊野中越中御所七瀬西三才西和田箱清水東鶴賀町平柴台平林広田真島町真島松岡松代町豊栄松代町西条松代町東条松代町松代檀田みこと川南高田南千歳宮沖三輪柳町吉田若里若穂川田若穂保科若穂綿内若宮

近辺の市区から探す

須坂市上高井郡小布施町上水内郡飯綱町

周辺の駅から探す

信越本線
篠ノ井今井川中島安茂里長野直江津
篠ノ井線
聖高原|冠着|姨捨稲荷山篠ノ井今井川中島安茂里長野

掲載情報の著作権は提供元企業等に帰属します。
Copyright:(C) 2025 Recruit Co., Ltd.
アプリで簡単 物件探し 大手不動産サイトの情報から一括検!プッシュ通知で物件を見逃さない
App Storeからダウンロード Google Playで手に入れよう QRコード