賃貸マンション
SYFORME MACHIDA 町田駅 1LDK 賃貸(賃貸マンション・アパート)
| 賃料 |
12.5万円 (管理費等:12000円) |
| 礼金・敷金 |
1ヶ月 / 1ヶ月 |
保証金/敷引・償却 |
なし / - |
| 交通 |
|
| 所在地 |
東京都町田市原町田4周辺地図
|
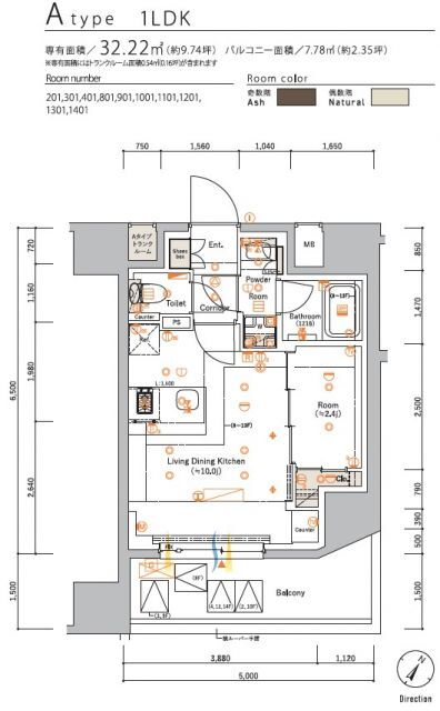
| 間取り |
1LDK |
専有面積 |
32.22m2 |
| 築年月 |
2025年11月 |
築年数 |
新築 |
- おすすめポイント
- 成約者特典BOOKOFF買取価格10%UP(景品限度額内) 収納はクロゼット・シューズボックスなど豊富なので、広々と空間を利用することも可能です。セキュリティ面は、オートロック・TVインターホンなどを備え付けているので安心して暮らせます。
- お問い合わせ先
- ハウスコム西神奈川(株)相模大野店
- お問い合わせ先
- ハウスコム西神奈川(株)相模大野店
| 賃料 |
12.5万円 |
管理費等 |
12000円 |
| 敷金 |
1ヶ月 |
礼金 |
1ヶ月 |
| 保証金 |
なし |
敷引・償却 |
- |
| 更新料 |
- |
契約期間 |
|
| カード決済 |
- |
| 所在地 |
東京都町田市原町田4周辺地図
|
| 交通 |
|
| 建物名 |
SYFORME MACHIDA |
| 間取り |
1LDK(洋2.4 LDK10.0) |
築年月(築年数) |
2025年11月
新築 |
| 専有面積 |
32.22㎡ |
所在階/階数 |
6階/14階建
|
| 建物構造 |
RC |
方位 |
南東 |
| 現況 |
|
駐車場 |
無 近くの駐車場を探す
|
| 入居可能時期 |
2025年12月上旬 |
住宅保険 |
あり 2年 20000円 |
| 情報提供元 |
SUUMO[030H100470068955] |
情報公開日 |
|
| 情報更新日 |
|
次回更新予定日 |
随時 |
設備など
| 2階以上 |
○ |
最上階 |
- |
角部屋 |
○ |
| 駐車場(近隣含) |
- |
エアコン付き |
○ |
バス・トイレ別 |
○ |
| 室内洗濯機置き場 |
○ |
追焚機能 |
○ |
オートロック付き |
○ |
| モニタ付インターホン |
○ |
フローリング |
○ |
バルコニー |
○ |
| ガスコンロ可 |
○ |
浴室乾燥機 |
○ |
24時間セキュリティ |
- |
| 宅配ボックス |
○ |
ペット相談可 |
○ |
二人入居可 |
○ |
| 設備 |
冷房・暖房・エアコン・オートロック・バルコニー・バス・トイレ別・トイレ・収納スペース・洗濯機置場・洗面所・エレベーター・BS端子・追焚機能・フローリング・浴室乾燥機・ガスコンロ可・シャンプードレッサ・温水洗浄便座・システムキッチン・カウンターキッチン・モニタ付インターホン・宅配BOX・駐輪場・風呂・対面K・クローゼット・CS・衣類乾燥機・食器洗浄乾燥機・都市ガス・食器乾燥機・浴トイレ別・防犯カメラ・洗面所独立・バイク置き場・コンロ2口以上・シューズボックス・インターネット無料・インターネット対応・室内洗濯機置き場 |
| リフォーム履歴 |
- |
| リノベーション履歴 |
- |
| 備考 |
SYLAプレミアムクラブ2.42万円 ペット2匹目飼育時退去時清掃費用/匹1.1万円/更新料 新賃料1.00ヶ月分 室内清掃費用 59400円 バイク置場5500円/月 駐輪場800円/月/保証会社利用必:初回保証料:総賃料40% 年間保証料:10000円~(総賃料15万円以上:14000円~) 外国籍の方:エポスGTNを利用。 初回保証料:総賃料60%、月額保証料:総賃料2%/二人入居可/ペット相談/事務所利用不可/ルームシェア不可/◆SYLAプレミアムクラブ加入要:24200円(税込)/2年 ・更新時より26400円(税込)/2年 ◆ルームクリーニング代(退去時):59400円 ※ペット2匹飼育時退去時清掃費用:11000円追加/匹 ◆ミニバイク置場(3台):5500円/月、駐輪場(ラック式40台)800円/月 ◆ペット飼育:小型犬または猫2匹まで可(敷金1ヶ月追加)/バストイレ別/バルコニー/エアコン/ガスコンロ対応/クロゼット/フローリング/シャワー付洗面台/TVインターホン/浴室乾燥機/オートロック/室内洗濯置/シューズボックス/システムキッチン/追焚機能浴室/角住戸/温水洗浄便座/エレベーター/洗面所独立/2口コンロ/駐輪場/宅配ボックス/対面式キッチン/防犯カメラ/ペット相談/分譲賃貸/全居室洋室/保証人不要/敷金1ヶ月/二人入居相談/バイク置場/全居室フローリング/2沿線利用可/CS/駅まで平坦/ネット使用料不要/食器洗乾燥機/2駅利用可/24時間ゴミ出し可/東南向き/都市ガス/BS/年内入居可/礼金1ヶ月/IT重説 対応物件/ファミリーマート版画美術館入口店(コンビニ)まで233m/賃貸戸数:40戸 |
| 特記事項 |
ペット相談可・二人入居可・分譲タイプ・角部屋・保証人不要/代行 |
東京都町田市原町田4 周辺地図情報
※地図上に表示される物件の位置は付近住所に所在することを表すものであり、実際の物件所在地とは異なる場合がございます。
正確な物件所在地は、取扱い不動産会社にお問い合わせください。
- お問い合わせ先
- ハウスコム西神奈川(株)相模大野店
不動産会社情報
| お問い合わせ先 |
商号:ハウスコム西神奈川(株)相模大野店 免許番号:神奈川県知事(1)第31770号 所在地:神奈川県相模原市南区相模大野3-12-6 アポロ相模大野ビル1階 TEL:0800-1701137 取引態様:仲介 管理コード:HC2-5186490-601-0076 所属協会など:(公社)首都圏不動産公正取引協議会加盟、(公財)日本賃貸住宅管理協会会員
|
共有する |
|
- お問い合わせ先
- ハウスコム西神奈川(株)相模大野店
人口などの統計情報
| 世帯数 |
191703世帯 |
| 人口総数 |
430380人 |
| 転入者数 |
18835人
- 転入率(人口1000人当たり)
- 43.76人
|
| 転出者数 |
16447人
- 転出率(人口1000人当たり)
- 38.22人
|
| 土地平均価格 |
- 住宅地
- 153542円/m2
- 商業地
- 593091円/m2
|
結婚・育児の助成金
| 子育て関連の独自の取り組み |
(1)子育て家庭が気軽に相談等を行える場所として、身近な保育園を利用登録する「マイ保育園事業」を実施。(2)認可外幼児教育施設に通う児童(4・5歳児)の保護者に対し、経済的負担軽減のために補助金を交付。(3)市内の待機児童解消と利用者の選択肢拡充のため、2017年度から駅近くに送迎保育ステーションを開設。(4)2021年度から学童保育クラブで高学年児童の受け入れを開始。(5)保育園や幼稚園等の余裕スペースを活用して、小学生を一時的に預かる「学童一時預かり事業」を実施。(6)ひとり親家庭への宅食事業では、ふるさと納税やガバメントクラウドファンディングによる寄附を活用。 |
| 出産祝い |
あり |
| 公立保育所数 |
5所(うち0歳児保育を実施している保育所:5所) |
| 私立保育所数 |
71所(うち0歳児保育を実施している保育所:59所) |
| 保育所入所待機児童数 |
28人 |
| 認定こども園数 |
14園 |
預かり保育実施園数 |
公立:- 私立:24園 |
| 学校給食 |
【小学校】完全給食【中学校】完全給食(1校※小中一貫校) 家庭弁当等との選択制/デリバリー形式[運搬:ランチボックス、内容:完全給食](19校) 2025年度までに、中学校給食センター方式により、デリバリー形式[運搬:食缶、内容:完全給食]となります。 |
| 公立中学校の学校選択制 |
実施(自由選択制[受入枠の範囲で選択可能/受入枠のない場合は希望不可]) |
| 子ども・学生等医療費助成<通院>対象年齢 |
18歳3月末まで |
子ども・学生等医療費助成<入院>対象年齢 |
18歳3月末まで |
町田市の治安・ごみ収集情報
公共料金・インフラ
| ガス料金(22m3使用した場合の月額) |
東京瓦斯株式会社(東京地区等)3926円 |
| 水道料金(口径20mmで20m3の月額) |
東京都水道局2816円 |
| 下水道料金(20m3を使用した場合の月額) |
町田市2068円 |
| 下水道普及率 |
99.1% |
安心・安全
| 建物火災出火件数 |
75件
- 人口10000人当たり
- 1.74件
|
| 刑法犯認知件数 |
2396件
- 人口1000人当たり
- 5.56件
|
| ハザード・防災マップ |
あり |
医療
| 一般病院総数 |
16ヶ所 |
| 一般診療所総数 |
341ヶ所 |
| 小児科医師数 |
55人
- 小児人口10000人当たり
- 11.11人
|
| 産婦人科医師数 |
21人
- 15~49歳女性人口1万人当たり
- 2.54人
|
| 介護保険料基準額(月額) |
6040円 |
ごみ
| 家庭ごみ収集(可燃ごみ) |
有料
|
| 家庭ごみの分別方式 |
4分別17種〔可燃ごみ 不燃ごみ 有害ごみ(乾電池、蛍光管、水銀体温計、ライター) 資源(剪定枝、ビン、カン、ペットボトル、古紙[新聞、雑誌、ダンボール、雑がみ、シュレッダーにかけた紙、紙パック]、古着)〕【JR横浜線以南地域】5分別18種〔上記+容器包装プラスチック〕ただし、拠点回収は除く。 |
| 家庭ごみの戸別収集 |
実施(ただし集合住宅は集積所収集) |
| 粗大ごみ収集 |
あり
|
| 生ごみ処理機助成金制度 |
あり
- 上限金額
- 20000円
- 上限比率
- 50.0%
|
※行政機関により公表していない地域及びデータがございます。東京23区以外の政令指定都市は、市全体のデータとして表示しています。
※提供データには細心の注意を払っておりますが、調査後に変更がある場合があります。 最新の情報につきましては各市区役所までお問い合わせいただくか、自治体HPなどをご確認ください。
町田市の暮らしデータをもっと見る