アプリで簡単 物件探し 通知 共有 アプリならではの機能を使ってみる
賃貸マンション

東京都品川区西五反田2 五反田駅 1LDK 賃貸(賃貸マンション・アパート)

情報提供元
SUUMO
賃料 20.1万円  (管理費等:10000円)
礼金・敷金 なし / 1ヶ月 保証金/敷引・償却 なし / -
交通
所在地 東京都品川区西五反田2周辺地図
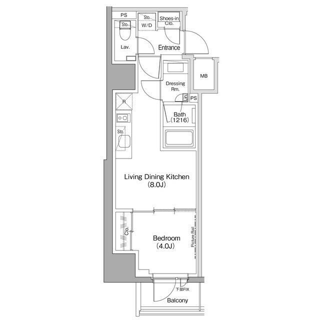
間取り 1LDK 専有面積 32.31m2
築年月 2022年11月 築年数 築3年2ヶ月

詳細情報

賃料 20.1万円 管理費等 10000円
敷金 1ヶ月 礼金 なし
保証金 なし 敷引・償却 -
更新料 - 契約期間
カード決済 -
所在地 東京都品川区西五反田2周辺地図
交通
建物名  
間取り 1LDK(洋4 LDK8) 築年月(築年数) 2022年11月(築3年2ヶ月)
専有面積 32.31㎡ 所在階/階数 6階/14階建
建物構造 RC  方位 南東 
現況   駐車場 無    近くの駐車場を探す
入居可能時期 即時 住宅保険 あり 2年 15000円
情報提供元 SUUMO[030H100474747698] 情報公開日
情報更新日 次回更新予定日 随時

設備など

2階以上 最上階 - 角部屋 -
駐車場(近隣含) - エアコン付き バス・トイレ別
室内洗濯機置き場 追焚機能 オートロック付き
モニタ付インターホン フローリング バルコニー
ガスコンロ可 浴室乾燥機 24時間セキュリティ -
宅配ボックス ペット相談可 二人入居可 -
設備 冷房・暖房・エアコン・オートロック・バルコニー・バス・トイレ別・トイレ・収納スペース・洗濯機置場・エレベーター・CATV・追焚機能・フローリング・浴室乾燥機・ガスコンロ可・温水洗浄便座・モニタ付インターホン・宅配BOX・風呂・衣類乾燥機・浴トイレ別・防犯カメラ・コンロ2口以上・インターネット対応・室内洗濯機置き場・シューズボックス 
リフォーム履歴 -
リノベーション履歴 -
備考 保証会社利用必:SBIギャランティ 初年度保証料:賃料等合計額の40%(最低保証料2万円)2年目以降:1年毎8千円/普通借家2年/ペット相談/楽器相談/更新料 新賃料 1ヶ月/バストイレ別/バルコニー/エアコン/ガスコンロ対応/フローリング/TVインターホン/浴室乾燥機/オートロック/室内洗濯置/追焚機能浴室/温水洗浄便座/エレベーター/2口コンロ/宅配ボックス/CATV/光ファイバー/即入居可/礼金不要/防犯カメラ/ペット相談/エアコン2台/ネット専用回線/楽器相談/築3年以内/3沿線以上利用可/駅徒歩5分以内/シューズWIC/保証会社利用可/ユニクロアトレ五反田店(ショッピングセンター)まで305m/まいばすけっと西五反田2丁目店(スーパー)まで140m/成城石井アトレ五反田1店(スーパー)まで252m/まいばすけっと品川西五反田2丁目店(スーパー)まで311m/セブンイレブン西五反田2丁目店(コンビニ)まで156m/ローソン西五反田2丁目店(コンビニ)まで119m 
特記事項 ペット相談可・楽器相談

省エネ性能

エネルギー消費性能 -
断熱性能 -
目安光熱費 -

東京都品川区西五反田2 周辺地図情報

地図
※地図上に表示される物件の位置は付近住所に所在することを表すものであり、実際の物件所在地とは異なる場合がございます。
   正確な物件所在地は、取扱い不動産会社にお問い合わせください。

不動産会社情報

お問い合わせ先 商号:(株)AsuxiA
免許番号:東京都知事(2)第104814号
所在地:東京都港区芝大門1-2-9 ポートビル2階
TEL:03-6452-8056
取引態様:仲介
管理コード:
所属協会など:(公社)首都圏不動産公正取引協議会加盟、(公社)東京都宅地建物取引業協会会員
共有する
QRコード

    品川区の暮らしデータ

    人口などの統計情報

    世帯数 237447世帯
    人口総数 408280人
    転入者数 35306人
    転入率(人口1000人当たり)
    86.47人
    転出者数 30642人
    転出率(人口1000人当たり)
    75.05人
    土地平均価格
    住宅地
    966818円/m2
    商業地
    1410833円/m2

    結婚・育児の助成金

    子育て関連の独自の取り組み (1)特別保育(延長保育・休日保育・年末保育・病後児保育・病児保育)の実施。(2)育児休業明け入園予約制度。(3)短時間就労対応型保育。(4)子育てかんがるープラン(子育てプランを作成する支援)。(5)幼保一体施設。(6)園児の保護者による一日保育士体験。(7)9年間の一貫したカリキュラム(品川区立学校教育要領)。(8)すまいるスクール。(9)保育園・幼稚園・小学校の保幼小ジョイント事業。(10)しながわこどもぽけっと。(11)産後の家事・育児支援のヘルパー等の利用助成。(12)区立学校における給食および補助教材費の無償化。特別支援学校給食費補助事業(13)多胎児家庭の家事・育児支援のヘルパー等の利用助成。(14)医療的ケア児受入れ(常時の人工呼吸器を除く)。
    出産祝い あり
    公立保育所数 41所(うち0歳児保育を実施している保育所:32所)
    私立保育所数 98所(うち0歳児保育を実施している保育所:94所)
    保育所入所待機児童数 0人
    認定こども園数 11園 預かり保育実施園数 公立:9園 私立:16園
    学校給食 【小学校】完全給食【中学校】完全給食
    公立中学校の学校選択制 実施(新入学時のみ自由選択制により実施)
    子ども・学生等医療費助成<通院>対象年齢 18歳3月末まで 子ども・学生等医療費助成<入院>対象年齢 18歳3月末まで

    品川区の治安・ごみ収集情報

    公共料金・インフラ

    ガス料金(22m3使用した場合の月額) 東京瓦斯株式会社(東京地区等)3926円
    水道料金(口径20mmで20m3の月額) 東京都水道局2816円
    下水道料金(20m3を使用した場合の月額) 東京都下水道局2068円
    下水道普及率 100.0%

    安心・安全

    建物火災出火件数 106件
    人口10000人当たり
    2.51件
    刑法犯認知件数 2146件
    人口1000人当たり
    5.08件
    ハザード・防災マップ あり

    医療

    一般病院総数 15ヶ所
    一般診療所総数 498ヶ所
    小児科医師数 123人
    小児人口10000人当たり
    26.07人
    産婦人科医師数 75人
    15~49歳女性人口1万人当たり
    7.59人
    介護保険料基準額(月額) 6500円

    ごみ

    家庭ごみ収集(可燃ごみ) 無料
    備考
    1回45リットル4袋まで無料。超えた分は46円/kg。
    家庭ごみの分別方式 3分別14種〔燃やすごみ 陶器・ガラス・金属ごみ 資源(製品プラスチック・プラスチック製容器包装、ペットボトル、飲食用びん、飲食用缶、新聞、段ボール、雑誌、紙パック、雑がみ、蛍光灯、水銀体温計・水銀血圧計、乾電池)〕 拠点回収:資源4種(古着・古布 廃食用油 不用園芸土 小型家電)
    家庭ごみの戸別収集 実施
    粗大ごみ収集 あり
    備考
    有料。事前申込制。一部収集できない品目あり。
    生ごみ処理機助成金制度 あり
    上限金額
    20000円
    上限比率
    33.3%
    暮らしデータ提供元:生活ガイド.com
    ※行政機関により公表していない地域及びデータがございます。東京23区以外の政令指定都市は、市全体のデータとして表示しています。
    ※提供データには細心の注意を払っておりますが、調査後に変更がある場合があります。 最新の情報につきましては各市区役所までお問い合わせいただくか、自治体HPなどをご確認ください。
    OCN×ドコモ光新規お申込みで合計最大137,280円相当おトク!特典の内訳・適用条件など詳細はこちら

    他のエリアから探す

    品川区の詳細地域から賃貸物件を探す

    荏原大井大崎勝島上大崎北品川小山小山台戸越中延西大井西五反田西品川西中延旗の台東大井東五反田東品川東中延平塚二葉南大井南品川八潮豊町

    近辺の市区から探す

    千代田区中央区港区新宿区文京区台東区江東区目黒区大田区世田谷区渋谷区中野区横浜市鶴見区川崎市川崎区川崎市幸区川崎市中原区川崎市高津区

    周辺の駅から探す

    山手線
    田町高輪ゲートウェイ品川大崎五反田目黒恵比寿渋谷原宿
    都営地下鉄浅草線
    大門三田泉岳寺高輪台五反田戸越中延馬込西馬込
    東急池上線
    五反田大崎広小路戸越銀座荏原中延旗の台

    東京都品川区で他のジャンルから探す


    掲載情報の著作権は提供元企業等に帰属します。
    Copyright:(C) 2025 Recruit Co., Ltd.
    アプリで簡単 物件探し 大手不動産サイトの情報から一括検!プッシュ通知で物件を見逃さない
    App Storeからダウンロード Google Playで手に入れよう QRコード