アプリで簡単 物件探し 通知 共有 アプリならではの機能を使ってみる
賃貸マンション

メインステージ住吉 住吉駅 1K 賃貸(賃貸マンション・アパート)

情報提供元
SUUMO
メインステージ住吉
賃料 8.3万円  (管理費等:10000円)
礼金・敷金 なし / なし 保証金/敷引・償却 1ヶ月 / -
交通
所在地 東京都江東区住吉2周辺地図
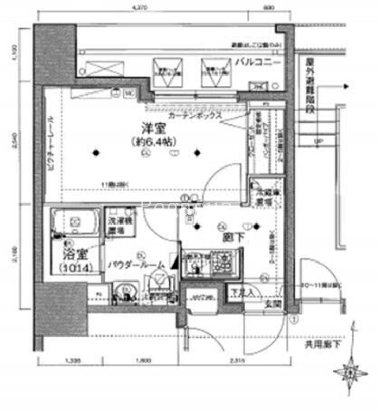
間取り 1K 専有面積 23.76m2
築年月 2009年5月 築年数 築16年8ヶ月
おすすめポイント
★【仲介手数料半額】対象物件★TEL03-5645-5358 駅徒歩2分、角部屋,B・T別,浴室乾燥機,トイレ,洗面所独立,収納スペース,オートロック,モニタ付インターホン,24時間セキュリティー,エレベーター,宅配BOX ★【仲介手数料半額】対象物件★

詳細情報

賃料 8.3万円 管理費等 10000円
敷金 なし 礼金 なし
保証金 1ヶ月 敷引・償却 -
更新料 - 契約期間
カード決済 初期費用カード決済可
所在地 東京都江東区住吉2周辺地図
交通
建物名 メインステージ住吉 
間取り 1K 築年月(築年数) 2009年5月(築16年8ヶ月)
専有面積 23.76㎡ 所在階/階数 6階/13階建
建物構造 RC  方位 北 
現況   駐車場 無    近くの駐車場を探す
入居可能時期 2026年2月下旬 住宅保険 あり 2年 20000円
情報提供元 SUUMO[030H100476866303] 情報公開日
情報更新日 次回更新予定日 随時

設備など

2階以上 最上階 - 角部屋
駐車場(近隣含) - エアコン付き バス・トイレ別
室内洗濯機置き場 - 追焚機能 - オートロック付き
モニタ付インターホン フローリング - バルコニー
ガスコンロ可 浴室乾燥機 24時間セキュリティ -
宅配ボックス ペット相談可 - 二人入居可 -
設備 冷房・暖房・エアコン・オートロック・バルコニー・バス・トイレ別・トイレ・収納スペース・洗面所・エレベーター・浴室乾燥機・ガスコンロ可・システムキッチン・モニタ付インターホン・宅配BOX・衣類乾燥機・浴トイレ別・防犯カメラ・洗面所独立・コンロ2口以上・シューズボックス 
リフォーム履歴 -
リノベーション履歴 -
備考 償却金1ヶ月/鍵交換代 25300円税込/更新料 1ヶ月/保証会社利用必:初回契約時:50%/仲介手数料0.55ヶ月/普通借家02年/★【仲介手数料半額】対象物件★駅徒歩2分、角部屋,B・T別,浴室乾燥機,トイレ,洗面所独立,エアコン,オートロック,モニタ付オートロック,モニタ付インターホン,防犯カメラ,24時間セキュリティー,バルコニー,エレベーター,宅配BOX  詳細は株式会社ペガサスへ【TEL03-5645-535】★ご来店、現地待ち合わせ、ご選択可能♪ネットに掲載されている他社様のお部屋もまとめてご紹介可能です!/バストイレ別/バルコニー/エアコン/ガスコンロ対応/TVインターホン/浴室乾燥機/オートロック/シューズボックス/システムキッチン/角住戸/エレベーター/洗面所独立/2口コンロ/宅配ボックス/礼金不要/防犯カメラ/保証人不要/2沿線利用可/仲手0.55ヶ月/3駅以上利用可/駅徒歩5分以内/セキュリティ会社加入済/初期費用カード決済可/セブンイレブン(コンビニ)まで130m 
特記事項 角部屋・保証人不要/代行 ・初期費用カード決済可

省エネ性能

エネルギー消費性能 -
断熱性能 -
目安光熱費 -

東京都江東区住吉2 周辺地図情報

地図
※地図上に表示される物件の位置は付近住所に所在することを表すものであり、実際の物件所在地とは異なる場合がございます。
   正確な物件所在地は、取扱い不動産会社にお問い合わせください。

不動産会社情報

お問い合わせ先 商号:(株)ペガサス
免許番号:東京都知事(1)第108348号
所在地:東京都中央区日本橋浜町2-55-1 1階
TEL:03-5645-5358
取引態様:仲介
管理コード:pgs-sc-ks06d
所属協会など:(公社)首都圏不動産公正取引協議会加盟、(公社)東京都宅地建物取引業協会会員
共有する
QRコード

    江東区の暮らしデータ

    人口などの統計情報

    世帯数 264111世帯
    人口総数 539108人
    転入者数 43873人
    転入率(人口1000人当たり)
    81.38人
    転出者数 36037人
    転出率(人口1000人当たり)
    66.85人
    土地平均価格
    住宅地
    605357円/m2
    商業地
    996545円/m2

    結婚・育児の助成金

    子育て関連の独自の取り組み 2017年度より、民有地を認可保育園として整備するため、区に相談のあった物件情報を保育施設運営事業者に提供するマッチングサポート事業を新たに開始。
    出産祝い あり
    公立保育所数 44所(うち0歳児保育を実施している保育所:28所)
    私立保育所数 137所(うち0歳児保育を実施している保育所:94所)
    保育所入所待機児童数 0人
    認定こども園数 4園 預かり保育実施園数 公立:2園 私立:11園
    学校給食 【小学校】完全給食【中学校】完全給食
    公立中学校の学校選択制 実施
    子ども・学生等医療費助成<通院>対象年齢 18歳3月末まで 子ども・学生等医療費助成<入院>対象年齢 18歳3月末まで

    江東区の治安・ごみ収集情報

    公共料金・インフラ

    ガス料金(22m3使用した場合の月額) 東京瓦斯株式会社(東京地区等)3926円
    水道料金(口径20mmで20m3の月額) 東京都水道局2816円
    下水道料金(20m3を使用した場合の月額) 東京都下水道局2068円
    下水道普及率 100.0%

    安心・安全

    建物火災出火件数 122件
    人口10000人当たり
    2.33件
    刑法犯認知件数 3254件
    人口1000人当たり
    6.21件
    ハザード・防災マップ あり

    医療

    一般病院総数 20ヶ所
    一般診療所総数 471ヶ所
    小児科医師数 111人
    小児人口10000人当たり
    16.88人
    産婦人科医師数 53人
    15~49歳女性人口1万人当たり
    4.27人
    介護保険料基準額(月額) 6200円

    ごみ

    家庭ごみ収集(可燃ごみ) 無料
    備考
    1回の収集では45リットル袋で3袋まで無料。4袋以上は1袋300円。
    家庭ごみの分別方式 3分別10種〔燃やすごみ 燃やさないごみ 資源(プラスチック、古紙[新聞紙、雑誌・雑紙、段ボール]、びん、かん、ペットボトル、発泡トレイ・発泡スチロール)〕 拠点回収:使用済小型家電 古着 余剰食品 集団回収:古紙類 缶類 布類 ビン類
    家庭ごみの戸別収集 一部実施
    粗大ごみ収集 あり
    備考
    有料。事前申込制。
    生ごみ処理機助成金制度 あり
    上限金額
    20000円
    上限比率
    50.0%
    暮らしデータ提供元:生活ガイド.com
    ※行政機関により公表していない地域及びデータがございます。東京23区以外の政令指定都市は、市全体のデータとして表示しています。
    ※提供データには細心の注意を払っておりますが、調査後に変更がある場合があります。 最新の情報につきましては各市区役所までお問い合わせいただくか、自治体HPなどをご確認ください。
    OCN×ドコモ光新規お申込みで合計最大137,280円相当おトク!特典の内訳・適用条件など詳細はこちら

    他のエリアから探す

    江東区の詳細地域から賃貸物件を探す

    青海有明石島海辺永代枝川越中島扇橋大島亀戸北砂木場清澄佐賀猿江塩浜潮見東雲白河新大橋新砂住吉千石千田高橋辰巳東陽常盤富岡豊洲東砂平野深川福住冬木古石場牡丹南砂三好毛利森下門前仲町

    近辺の市区から探す

    市川市浦安市千代田区中央区港区新宿区文京区台東区墨田区品川区目黒区渋谷区豊島区北区荒川区足立区葛飾区江戸川区

    周辺の駅から探す

    都営地下鉄新宿線
    馬喰横山浜町森下菊川住吉西大島大島東大島船堀
    東京メトロ半蔵門線
    大手町三越前水天宮前清澄白河住吉錦糸町押上

    マンションライブラリーを見る

    メインステージ住吉

    東京都江東区で他のジャンルから探す


    掲載情報の著作権は提供元企業等に帰属します。
    Copyright:(C) 2025 Recruit Co., Ltd.
    アプリで簡単 物件探し 大手不動産サイトの情報から一括検!プッシュ通知で物件を見逃さない
    App Storeからダウンロード Google Playで手に入れよう QRコード