賃貸マンション
パークアクシス辰巳ステージ 辰巳駅 1K 賃貸(賃貸マンション・アパート)
| 賃料 |
12.2万円 (管理費等:8000円) |
| 礼金・敷金 |
1ヶ月 / 1ヶ月 |
保証金/敷引・償却 |
なし / - |
| 交通 |
|
| 所在地 |
東京都江東区辰巳2周辺地図
|
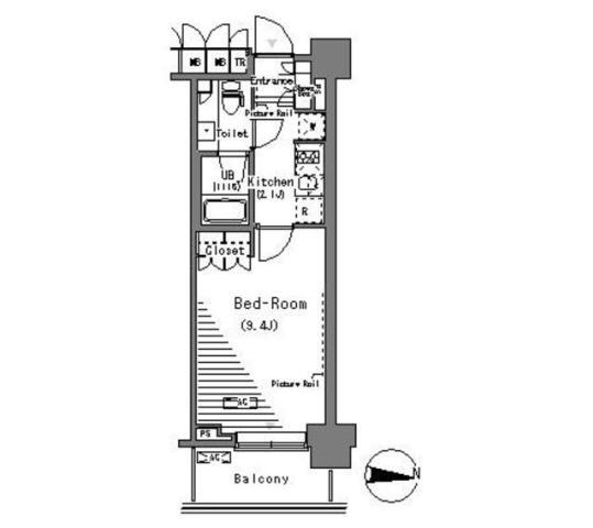
| 間取り |
1K |
専有面積 |
28.48m2 |
| 築年月 |
2008年1月 |
築年数 |
築17年11ヶ月 |
- おすすめポイント
- お部屋探しはアパマンショップ門前仲町駅前店まで♪ 初期費用分割も相談可!ご来店不要!オンラインでのご内覧、お申込みも承ります!江東区、墨田区、中央区、台東区その他どこでもご案内します!個人契約・法人契約共に対応可能です!
- お問い合わせ先
- アパマンショップ門前仲町駅前店(株)アップル
- お問い合わせ先
- アパマンショップ門前仲町駅前店(株)アップル
| 賃料 |
12.2万円 |
管理費等 |
8000円 |
| 敷金 |
1ヶ月 |
礼金 |
1ヶ月 |
| 保証金 |
なし |
敷引・償却 |
- |
| 更新料 |
- |
契約期間 |
|
| カード決済 |
- |
| 所在地 |
東京都江東区辰巳2周辺地図
|
| 交通 |
- 東京メトロ有楽町線 辰巳駅 徒歩5分乗換案内
- JR京葉線 新木場駅 徒歩15分乗換案内
|
| 建物名 |
パークアクシス辰巳ステージ |
| 間取り |
1K(K) |
築年月(築年数) |
2008年1月(築17年11ヶ月)
|
| 専有面積 |
28.48㎡ |
所在階/階数 |
2階/13階建
|
| 建物構造 |
RC |
方位 |
東 |
| 現況 |
|
駐車場 |
無 近くの駐車場を探す
|
| 入居可能時期 |
2026年1月下旬 |
住宅保険 |
あり |
| 情報提供元 |
SUUMO[030H100473223693] |
情報公開日 |
|
| 情報更新日 |
|
次回更新予定日 |
随時 |
設備など
| 2階以上 |
○ |
最上階 |
- |
角部屋 |
- |
| 駐車場(近隣含) |
- |
エアコン付き |
○ |
バス・トイレ別 |
○ |
| 室内洗濯機置き場 |
○ |
追焚機能 |
- |
オートロック付き |
○ |
| モニタ付インターホン |
- |
フローリング |
○ |
バルコニー |
○ |
| ガスコンロ可 |
- |
浴室乾燥機 |
○ |
24時間セキュリティ |
- |
| 宅配ボックス |
○ |
ペット相談可 |
○ |
二人入居可 |
- |
| 設備 |
冷房・暖房・エアコン・オートロック・バルコニー・バス・トイレ別・トイレ・洗濯機置場・洗面所・エレベーター・BS端子・フローリング・浴室乾燥機・システムキッチン・宅配BOX・CS・衣類乾燥機・浴トイレ別・洗面所独立・バイク置き場・室内洗濯機置き場 |
| リフォーム履歴 |
- |
| リノベーション履歴 |
- |
| 備考 |
損保要/鍵交換費/口座振替事務手数料 110円(月額)/保証会社利用可:初回:月額賃料(共益費・駐車場料金含む)の50%、年間:9,600円/ペット相談/楽器相談/[退去時費用 室内清掃費:55,000円※故意・過失等別途実費]/バストイレ別/バルコニー/エアコン/フローリング/浴室乾燥機/オートロック/室内洗濯置/システムキッチン/エレベーター/洗面所独立/宅配ボックス/ペット相談/保証人不要/敷金1ヶ月/バイク置場/2沿線利用可/CS/耐震構造/2駅利用可/駅徒歩5分以内/駅徒歩10分以内/24時間ゴミ出し可/敷地内ごみ置き場/BS/礼金1ヶ月/保証会社利用可/アリオ北砂(スーパー)まで5232m/ファミリーマート(コンビニ)まで5671m/ダイエー・西大島店 取り壊し閉店中(スーパー)まで6030m/ローソン(コンビニ)まで5975m/西大島駅(その他)まで6008m/ファミリーマート(コンビニ)まで6545m |
| 特記事項 |
ペット相談可・楽器相談・保証人不要/代行 |
東京都江東区辰巳2 周辺地図情報
※地図上に表示される物件の位置は付近住所に所在することを表すものであり、実際の物件所在地とは異なる場合がございます。
正確な物件所在地は、取扱い不動産会社にお問い合わせください。
- お問い合わせ先
- アパマンショップ門前仲町駅前店(株)アップル
不動産会社情報
| お問い合わせ先 |
商号:アパマンショップ門前仲町駅前店(株)アップル 免許番号:国土交通大臣(5)第6971号 所在地:東京都江東区門前仲町1-8-8 TEL:03-5621-1700 取引態様:仲介 管理コード:69483002 所属協会など:(公社)首都圏不動産公正取引協議会加盟、(公社)東京都宅地建物取引業協会会員
|
共有する |
|
- お問い合わせ先
- アパマンショップ門前仲町駅前店(株)アップル
人口などの統計情報
| 世帯数 |
264111世帯 |
| 人口総数 |
539108人 |
| 転入者数 |
43873人
- 転入率(人口1000人当たり)
- 81.38人
|
| 転出者数 |
36037人
- 転出率(人口1000人当たり)
- 66.85人
|
| 土地平均価格 |
- 住宅地
- 605357円/m2
- 商業地
- 996545円/m2
|
結婚・育児の助成金
| 子育て関連の独自の取り組み |
2017年度より、民有地を認可保育園として整備するため、区に相談のあった物件情報を保育施設運営事業者に提供するマッチングサポート事業を新たに開始。 |
| 出産祝い |
あり |
| 公立保育所数 |
44所(うち0歳児保育を実施している保育所:28所) |
| 私立保育所数 |
137所(うち0歳児保育を実施している保育所:94所) |
| 保育所入所待機児童数 |
0人 |
| 認定こども園数 |
4園 |
預かり保育実施園数 |
公立:2園 私立:11園 |
| 学校給食 |
【小学校】完全給食【中学校】完全給食 |
| 公立中学校の学校選択制 |
実施 |
| 子ども・学生等医療費助成<通院>対象年齢 |
18歳3月末まで |
子ども・学生等医療費助成<入院>対象年齢 |
18歳3月末まで |
江東区の治安・ごみ収集情報
公共料金・インフラ
| ガス料金(22m3使用した場合の月額) |
東京瓦斯株式会社(東京地区等)3926円 |
| 水道料金(口径20mmで20m3の月額) |
東京都水道局2816円 |
| 下水道料金(20m3を使用した場合の月額) |
東京都下水道局2068円 |
| 下水道普及率 |
100.0% |
安心・安全
| 建物火災出火件数 |
122件
- 人口10000人当たり
- 2.33件
|
| 刑法犯認知件数 |
3254件
- 人口1000人当たり
- 6.21件
|
| ハザード・防災マップ |
あり |
医療
| 一般病院総数 |
20ヶ所 |
| 一般診療所総数 |
471ヶ所 |
| 小児科医師数 |
111人
- 小児人口10000人当たり
- 16.88人
|
| 産婦人科医師数 |
53人
- 15~49歳女性人口1万人当たり
- 4.27人
|
| 介護保険料基準額(月額) |
6200円 |
ごみ
| 家庭ごみ収集(可燃ごみ) |
無料
|
| 家庭ごみの分別方式 |
3分別10種〔燃やすごみ 燃やさないごみ 資源(プラスチック、古紙[新聞紙、雑誌・雑紙、段ボール]、びん、かん、ペットボトル、発泡トレイ・発泡スチロール)〕 拠点回収:使用済小型家電 古着 余剰食品 集団回収:古紙類 缶類 布類 ビン類 |
| 家庭ごみの戸別収集 |
一部実施 |
| 粗大ごみ収集 |
あり
|
| 生ごみ処理機助成金制度 |
あり
- 上限金額
- 20000円
- 上限比率
- 50.0%
|
※行政機関により公表していない地域及びデータがございます。東京23区以外の政令指定都市は、市全体のデータとして表示しています。
※提供データには細心の注意を払っておりますが、調査後に変更がある場合があります。 最新の情報につきましては各市区役所までお問い合わせいただくか、自治体HPなどをご確認ください。
江東区の暮らしデータをもっと見る