アプリで簡単 物件探し 通知 共有 アプリならではの機能を使ってみる
賃貸マンション

ルフォンプログレ本郷三丁目 本郷三丁目駅 2LDK 賃貸(賃貸マンション・アパート)

情報提供元
SUUMO
ルフォンプログレ本郷三丁目
賃料 28万円  (管理費等:15000円)
礼金・敷金 なし / 28万円 保証金/敷引・償却 なし / -
交通
所在地 東京都文京区本郷3周辺地図
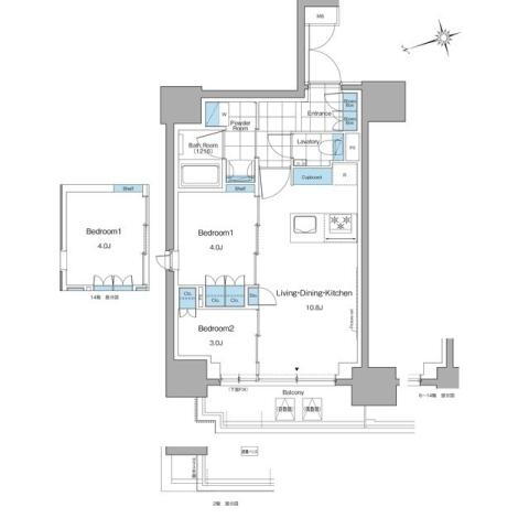
間取り 2LDK 専有面積 42.61m2
築年月 2025年11月 築年数 新築
おすすめポイント
~都心を見渡すスカイラウンジ~ ◆指定保証会社利用必須※一部法人契約除く・敷金積増1ヶ月◆礼金0ヶ月※1年未満解約時賃料1ヶ月分違約金有◆退居時エアコン・室内清掃費有◆禁止事項(楽器演奏、SOHO利用)◆ペット飼育時敷金1ヶ月分積増
お問い合わせ先
アパマンショップ東陽町店(株)大田ハウス
お問い合わせ先
アパマンショップ東陽町店(株)大田ハウス

詳細情報

賃料 28万円 管理費等 15000円
敷金 28万円 礼金 なし
保証金 なし 敷引・償却 -
更新料 - 契約期間 定期借家 2年
カード決済 -
所在地 東京都文京区本郷3周辺地図
交通
  • 東京メトロ丸ノ内線 本郷三丁目駅 徒歩4分乗換案内
  • 東京メトロ千代田線 湯島駅 徒歩10分乗換案内
  • JR中央線 御茶ノ水駅 徒歩12分乗換案内
建物名 ルフォンプログレ本郷三丁目 
間取り 2LDK(洋4 洋3 LDK10.8) 築年月(築年数) 2025年11月 新築
専有面積 42.61㎡ 所在階/階数 11階/14階建
建物構造 RC  方位 西 
現況   駐車場 無    近くの駐車場を探す
入居可能時期 2025年11月下旬 住宅保険 あり
情報提供元 SUUMO[030H100468085371] 情報公開日
情報更新日 次回更新予定日 随時

設備など

2階以上 最上階 - 角部屋 -
駐車場(近隣含) - エアコン付き - バス・トイレ別
室内洗濯機置き場 追焚機能 オートロック付き
モニタ付インターホン フローリング - バルコニー -
ガスコンロ可 - 浴室乾燥機 24時間セキュリティ -
宅配ボックス ペット相談可 二人入居可 -
設備 オートロック・バス・トイレ別・トイレ・収納スペース・洗濯機置場・洗面所・エレベーター・BS端子・追焚機能・浴室乾燥機・システムキッチン・モニタ付インターホン・宅配BOX・駐輪場・風呂・CS・衣類乾燥機・ディンプルキー・浴トイレ別・防犯カメラ・洗面所独立・シューズボックス・室内洗濯機置き場 
リフォーム履歴 -
リノベーション履歴 -
備考 損保要/エアコン清掃費/清掃費等/保証会社利用必:保証料:賃料等の50%(最低2万)、月額保証・事務手数料:賃料等の1%(更新料無)/定期借家2年0ヶ月/ペット相談/[退去時費用 退去費用実費精算※故意・過失等別途実費]敷金積み増し:ペット飼育 2.00カ月、小型犬:可、大型犬:不可、猫:可、その他:小型1匹又は猫1匹迄 保証会社:レジデンシャルパートナーズ/バストイレ別/TVインターホン/浴室乾燥機/オートロック/室内洗濯置/シューズボックス/システムキッチン/追焚機能浴室/エレベーター/洗面所独立/駐輪場/宅配ボックス/礼金不要/防犯カメラ/ペット相談/全居室洋室/保証人不要/敷金1ヶ月/2沿線利用可/ディンプルキー/CS/築2年以内/築3年以内/トイレ未使用/防犯ガラス/2駅利用可/駅徒歩5分以内/駅徒歩10分以内/築5年以内/BS/保証会社利用可/賃貸戸数:59戸 
特記事項 ペット相談可・保証人不要/代行

省エネ性能

エネルギー消費性能 -
断熱性能 -
目安光熱費 -

東京都文京区本郷3 周辺地図情報

地図
※地図上に表示される物件の位置は付近住所に所在することを表すものであり、実際の物件所在地とは異なる場合がございます。
   正確な物件所在地は、取扱い不動産会社にお問い合わせください。
お問い合わせ先
アパマンショップ東陽町店(株)大田ハウス

不動産会社情報

お問い合わせ先 商号:アパマンショップ東陽町店(株)大田ハウス
免許番号:東京都知事(4)第89428号
所在地:東京都江東区東陽4-6-17 TSビル4階
TEL:0120-549333
取引態様:仲介
管理コード:111147832
所属協会など:(公社)首都圏不動産公正取引協議会加盟、(公社)全日本不動産協会東京都本部会員
共有する
QRコード
お問い合わせ先
アパマンショップ東陽町店(株)大田ハウス

    文京区の暮らしデータ

    人口などの統計情報

    世帯数 133564世帯
    人口総数 232177人
    転入者数 23087人
    転入率(人口1000人当たり)
    99.44人
    転出者数 20326人
    転出率(人口1000人当たり)
    87.55人
    土地平均価格
    住宅地
    1119571円/m2
    商業地
    1933636円/m2

    結婚・育児の助成金

    子育て関連の独自の取り組み (1)おうち家事・育児サポート事業(区が指定した事業者の家事・育児サポートを一定の負担で利用できる[おうち・家事育児サポート券]を希望者に配布。満3歳未満の乳幼児を養育する世帯が対象)。(2)ひとり親家庭子育て訪問支援券(区が指定した事業者のベビーシッターサービスを一定の負担で利用できる[子育て訪問支援券])を希望者に配付。(3)ネウボラ事業(妊娠から出産、子育て期にわたる切れ目ない支援を行う妊娠・出産包括支援事業)。(4)文京版スターティング・ストロング・プロジェクト(区教育センターを中心とした医師、教員、心理職等で構成された専門家チームが、区内の幼稚園・保育園等を訪問し、職員と協働して子どもに専門的発達支援を行い、子どもたちの健やかな育ちを支える)。
    出産祝い なし
    公立保育所数 19所(うち0歳児保育を実施している保育所:14所)
    私立保育所数 77所(うち0歳児保育を実施している保育所:67所)
    保育所入所待機児童数 2人
    認定こども園数 1園 預かり保育実施園数 公立:10園 私立:14園
    学校給食 【小学校】完全給食【中学校】完全給食
    公立中学校の学校選択制 実施(新入学時又は他市区町村からの転入時[一人につき一度]のみ)
    子ども・学生等医療費助成<通院>対象年齢 18歳3月末まで 子ども・学生等医療費助成<入院>対象年齢 18歳3月末まで

    文京区の治安・ごみ収集情報

    公共料金・インフラ

    ガス料金(22m3使用した場合の月額) 東京瓦斯株式会社(東京地区等)3926円
    水道料金(口径20mmで20m3の月額) 東京都水道局2816円
    下水道料金(20m3を使用した場合の月額) 東京都下水道局2068円
    下水道普及率 100.0%

    安心・安全

    建物火災出火件数 61件
    人口10000人当たり
    2.54件
    刑法犯認知件数 1104件
    人口1000人当たり
    4.60件
    ハザード・防災マップ あり

    医療

    一般病院総数 9ヶ所
    一般診療所総数 309ヶ所
    小児科医師数 253人
    小児人口10000人当たり
    85.84人
    産婦人科医師数 159人
    15~49歳女性人口1万人当たり
    27.49人
    介護保険料基準額(月額) 6107円

    ごみ

    家庭ごみ収集(可燃ごみ) 無料
    備考
    1回当たりに45リットル袋で4袋を超えるごみは有料。
    家庭ごみの分別方式 3分別9種〔可燃ごみ 不燃ごみ 資源(新聞、雑誌、ダンボール、雑がみ、ビン、カン、ペットボトル)〕 拠点回収:資源(紙パック 乾電池 発泡スチロール食品トレイ 衣類 プラスチック製ボトル容器 インクカートリッジ 蛍光管 水銀使用計器類、携帯電話、スマートフォン)
    家庭ごみの戸別収集 一部実施(訪問収集)
    粗大ごみ収集 あり
    備考
    有料。事前申込制。
    生ごみ処理機助成金制度 あり
    上限金額
    20000円
    上限比率
    50.0%
    暮らしデータ提供元:生活ガイド.com
    ※行政機関により公表していない地域及びデータがございます。東京23区以外の政令指定都市は、市全体のデータとして表示しています。
    ※提供データには細心の注意を払っておりますが、調査後に変更がある場合があります。 最新の情報につきましては各市区役所までお問い合わせいただくか、自治体HPなどをご確認ください。
    OCN×ドコモ光新規お申込みで合計最大137,280円相当おトク!特典の内訳・適用条件など詳細はこちら

    文京区内の各駅の住みやすさ

    他のエリアから探す

    文京区の詳細地域から賃貸物件を探す

    大塚音羽春日小石川後楽小日向水道関口千石千駄木西片根津白山本駒込本郷向丘目白台弥生湯島

    近辺の市区から探す

    川口市千代田区中央区港区新宿区台東区墨田区江東区品川区目黒区世田谷区渋谷区中野区杉並区豊島区北区荒川区板橋区練馬区足立区葛飾区江戸川区

    周辺の駅から探す

    中央本線
    東京神田御茶ノ水四ツ谷新宿中野高円寺
    東京メトロ丸ノ内線
    池袋新大塚茗荷谷後楽園本郷三丁目御茶ノ水淡路町大手町東京
    東京メトロ千代田線
    町屋西日暮里千駄木根津湯島新御茶ノ水大手町|二重橋前|日比谷

    東京都文京区で他のジャンルから探す


    掲載情報の著作権は提供元企業等に帰属します。
    Copyright:(C) 2025 Recruit Co., Ltd.
    アプリで簡単 物件探し 大手不動産サイトの情報から一括検!プッシュ通知で物件を見逃さない
    App Storeからダウンロード Google Playで手に入れよう QRコード