アプリで簡単 物件探し 通知 共有 アプリならではの機能を使ってみる
賃貸マンション

サージュ赤坂 赤坂駅 1DK 賃貸(賃貸マンション・アパート)

情報提供元
SUUMO
サージュ赤坂
賃料 12.8万円  (管理費等:10000円)
礼金・敷金 1ヶ月 / 1ヶ月 保証金/敷引・償却 なし / -
交通
所在地 東京都港区赤坂6周辺地図
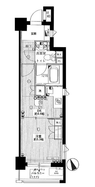
間取り 1DK 専有面積 27.64m2
築年月 2000年2月 築年数 築25年10ヶ月
おすすめポイント
人気の赤坂エリア。希少な1DKタイプ。分譲マンション。 Wiz株式会社は無店舗型不動産です。オンラインでの物件提案・内見などITを活用することで、自宅や会社にいながら、従来の店舗型と同等のサービスを受けることができ、効率的にお部屋探しをすることができます。

詳細情報

賃料 12.8万円 管理費等 10000円
敷金 1ヶ月 礼金 1ヶ月
保証金 なし 敷引・償却 -
更新料 - 契約期間
カード決済 初期費用カード決済可
所在地 東京都港区赤坂6周辺地図
交通
  • 東京メトロ千代田線 赤坂駅 徒歩1分乗換案内
  • 東京メトロ銀座線 溜池山王駅 徒歩9分乗換案内
  • 東京メトロ銀座線 赤坂見附駅 徒歩13分乗換案内
建物名 サージュ赤坂 
間取り 1DK 築年月(築年数) 2000年2月(築25年10ヶ月)
専有面積 27.64㎡ 所在階/階数 4階/7階建
建物構造 RC  方位 南西 
現況   駐車場 無    近くの駐車場を探す
入居可能時期 相談 住宅保険 なし
情報提供元 SUUMO[030H100475268346] 情報公開日
情報更新日 次回更新予定日 随時

設備など

2階以上 最上階 - 角部屋
駐車場(近隣含) - エアコン付き バス・トイレ別
室内洗濯機置き場 追焚機能 - オートロック付き
モニタ付インターホン フローリング バルコニー
ガスコンロ可 浴室乾燥機 24時間セキュリティ -
宅配ボックス ペット相談可 - 二人入居可 -
設備 冷房・暖房・エアコン・オートロック・バルコニー・バス・トイレ別・トイレ・収納スペース・洗濯機置場・洗面所・エレベーター・CATV・BS端子・フローリング・浴室乾燥機・照明器具・ガスコンロ可・温水洗浄便座・システムキッチン・モニタ付インターホン・宅配BOX・駐輪場・クローゼット・CS・衣類乾燥機・都市ガス・浴トイレ別・防犯カメラ・洗面所独立・コンロ2口以上・シューズボックス・インターネット対応・室内洗濯機置き場 
リフォーム履歴 -
リノベーション履歴 -
備考 鍵交換費用:22000円/火災保険:月額850円 安心サポート:月額880円/保証会社利用必:初回保証料:総賃料の50%/普通借家2年/更新料:新賃料の1.5ヶ月/バストイレ別/バルコニー/エアコン/ガスコンロ対応/クロゼット/フローリング/TVインターホン/浴室乾燥機/オートロック/室内洗濯置/シューズボックス/システムキッチン/角住戸/温水洗浄便座/脱衣所/エレベーター/洗面所独立/2口コンロ/駐輪場/宅配ボックス/CATV/光ファイバー/外壁タイル張り/2面採光/BS・CS/防犯カメラ/分譲賃貸/保証人不要/CATVインターネット/24時間緊急通報システム/全居室フローリング/デザイナーズ/保証金不要/24時間換気システム/耐震構造/3駅以上利用可/3沿線以上利用可/駅徒歩5分以内/24時間ゴミ出し可/敷地内ごみ置き場/南西向き/セキュリティ会社加入済/都市ガス/間接照明/LAN/保証会社利用可/初期費用カード決済可/通風良好/赤坂BizタワーSHOPS&DINING(ショッピングセンター)まで487m/赤坂サカス(ショッピングセンター)まで362m/ファミリーマート赤坂駅前店(コンビニ)まで300m/マツモトキヨシ赤坂Bizタワー店(ドラッグストア)まで415m/TSUTAYA赤坂店(レンタルビデオ)まで418m/三井住友銀行赤坂支店(銀行)まで503m 
特記事項 分譲タイプ・角部屋・外観タイル張り・デザイナーズ物件・保証人不要/代行 ・初期費用カード決済可

省エネ性能

エネルギー消費性能 -
断熱性能 -
目安光熱費 -

東京都港区赤坂6 周辺地図情報

地図
※地図上に表示される物件の位置は付近住所に所在することを表すものであり、実際の物件所在地とは異なる場合がございます。
   正確な物件所在地は、取扱い不動産会社にお問い合わせください。

不動産会社情報

お問い合わせ先 商号:Wiz(株)
免許番号:東京都知事(1)第107258号
所在地:東京都港区南青山2-2-8 DFビル624
TEL:03-5413-0012
取引態様:仲介
管理コード:251128Y
所属協会など:(公社)首都圏不動産公正取引協議会加盟、(公社)全日本不動産協会東京都本部会員
共有する
QRコード

    港区の暮らしデータ

    人口などの統計情報

    世帯数 146084世帯
    人口総数 266306人
    転入者数 29747人
    転入率(人口1000人当たり)
    111.70人
    転出者数 25086人
    転出率(人口1000人当たり)
    94.20人
    土地平均価格
    住宅地
    2313000円/m2
    商業地
    6411852円/m2

    結婚・育児の助成金

    子育て関連の独自の取り組み (1)ひとり親世帯等の経済的負担や家事負担が軽減できるよう、提供する食料品を掲載したカタログを送付し、利用者が選択した食料品を自宅に配送(2)在宅子育て家庭等の一時保育ニーズに対応するため、小規模保育事業所の空き定員を活用した「余裕活用型一時保育」を実施。(3)延長保育料の上限額の設定し、常時延長保育を利用しなければならない世帯の経済的な負担を軽減。(4)未就学児が2人以上いる世帯に、子どもタクシー利用券を支給(5)出産費用助成の算出上限額を81万円に増額(6)全ての子育て家庭が安心して生き生きと子育てができるよう、0歳から高校生世代までのお子さんを対象に、臨時に港区商店街振興組合連合会の電子スマイル商品券を「港区子育て応援分」として、子ども一人当たり5万円配付。
    出産祝い あり
    公立保育所数 21所(うち0歳児保育を実施している保育所:21所)
    私立保育所数 62所(うち0歳児保育を実施している保育所:62所)
    保育所入所待機児童数 0人
    認定こども園数 1園 預かり保育実施園数 公立:12園 私立:6園
    学校給食 【小学校】完全給食【中学校】完全給食
    公立中学校の学校選択制 実施
    子ども・学生等医療費助成<通院>対象年齢 18歳3月末まで 子ども・学生等医療費助成<入院>対象年齢 18歳3月末まで

    港区の治安・ごみ収集情報

    公共料金・インフラ

    ガス料金(22m3使用した場合の月額) 東京瓦斯株式会社(東京地区等)3926円
    水道料金(口径20mmで20m3の月額) 東京都水道局2816円
    下水道料金(20m3を使用した場合の月額) 東京都下水道局2068円
    下水道普及率 100.0%

    安心・安全

    建物火災出火件数 225件
    人口10000人当たり
    8.64件
    刑法犯認知件数 2980件
    人口1000人当たり
    11.44件
    ハザード・防災マップ あり

    医療

    一般病院総数 13ヶ所
    一般診療所総数 953ヶ所
    小児科医師数 144人
    小児人口10000人当たり
    39.84人
    産婦人科医師数 191人
    15~49歳女性人口1万人当たり
    28.68人
    介護保険料基準額(月額) 6400円

    ごみ

    家庭ごみ収集(可燃ごみ) 無料
    備考
    区条例により、10kgを超える一時多量ごみについては有料。
    家庭ごみの分別方式 4分別7種〔可燃ごみ 不燃ごみ 資源プラスチック 資源(ペットボトル、びん、かん、古紙[新聞、ダンボール、紙パック、雑誌、その他再生可能紙])〕
    家庭ごみの戸別収集 一部実施(65歳以上の高齢者、介護保険法[1997年法律第123号]に規定する要介護認定を受けている方、身体障害者手帳、愛の手帳又は精神障害者保健福祉手帳の交付を受けている方、難病の患者に対する医療等に関する法律[2014年法律第50号]第5条第1項に規定する指定難病又は東京都難病患者等に係る医療費等の助成に関する規則[2000年東京都規則第94号]別表第1の第2類に定める特殊疾病に罹患している方、母子健康手帳の交付を受けた妊婦の方、産後1年を経過する月の前月末日までの子どもを養育する者ひとり親世帯の方)
    粗大ごみ収集 あり
    備考
    有料。戸別収集。事前申込制。有料粗大ごみ処理券の貼付が必要。直接持ち込みも可能で、粗大ごみ料金が400円以下であれば無料。
    生ごみ処理機助成金制度 あり
    上限金額
    20000円
    上限比率
    50.0%
    暮らしデータ提供元:生活ガイド.com
    ※行政機関により公表していない地域及びデータがございます。東京23区以外の政令指定都市は、市全体のデータとして表示しています。
    ※提供データには細心の注意を払っておりますが、調査後に変更がある場合があります。 最新の情報につきましては各市区役所までお問い合わせいただくか、自治体HPなどをご確認ください。
    OCN×ドコモ光新規お申込みで合計最大137,280円相当おトク!特典の内訳・適用条件など詳細はこちら

    他のエリアから探す

    港区の詳細地域から賃貸物件を探す

    赤坂麻布十番麻布台麻布永坂町麻布狸穴町愛宕海岸北青山港南芝浦芝公園芝大門白金白金台新橋高輪台場虎ノ門西麻布西新橋浜松町東麻布東新橋三田南青山南麻布元赤坂元麻布六本木

    近辺の市区から探す

    千代田区中央区新宿区文京区台東区墨田区江東区品川区目黒区大田区世田谷区渋谷区中野区杉並区豊島区北区荒川区板橋区練馬区葛飾区江戸川区川崎市中原区

    周辺の駅から探す

    東京メトロ千代田線
    二重橋前|日比谷霞ケ関国会議事堂前赤坂乃木坂表参道明治神宮前代々木公園
    東京メトロ銀座線
    京橋銀座新橋虎ノ門溜池山王赤坂見附青山一丁目外苑前表参道

    マンションライブラリーを見る

    サージュ赤坂

    東京都港区で他のジャンルから探す


    掲載情報の著作権は提供元企業等に帰属します。
    Copyright:(C) 2025 Recruit Co., Ltd.
    アプリで簡単 物件探し 大手不動産サイトの情報から一括検!プッシュ通知で物件を見逃さない
    App Storeからダウンロード Google Playで手に入れよう QRコード