賃貸マンション
東京都港区白金3 白金高輪駅 1K 賃貸(賃貸マンション・アパート)
| 賃料 |
12.9万円 (管理費等:8000円) |
| 礼金・敷金 |
1ヶ月 / なし |
保証金/敷引・償却 |
なし / - |
| 交通 |
|
| 所在地 |
東京都港区白金3周辺地図
|
| 間取り |
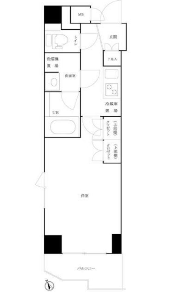
1K |
専有面積 |
25.9m2 |
| 築年月 |
2017年9月 |
築年数 |
築8年3ヶ月 |
- おすすめポイント
- ☆敷金0☆築浅☆南向き☆角部屋☆宅配BOX☆ 初期費用クレカ決済可能☆オンライン内覧、契約も可能!お引越しはクラスホームにお任せください!!
| 賃料 |
12.9万円 |
管理費等 |
8000円 |
| 敷金 |
なし |
礼金 |
1ヶ月 |
| 保証金 |
なし |
敷引・償却 |
- |
| 更新料 |
- |
契約期間 |
|
| カード決済 |
初期費用カード決済可 |
| 所在地 |
東京都港区白金3周辺地図
|
| 交通 |
- 東京メトロ南北線 白金高輪駅 徒歩8分乗換案内
- 東京メトロ南北線 白金台駅 徒歩15分乗換案内
- 東京メトロ日比谷線 広尾駅 徒歩18分乗換案内
|
| 建物名 |
|
| 間取り |
1K(洋7.6 K2.0) |
築年月(築年数) |
2017年9月(築8年3ヶ月)
|
| 専有面積 |
25.9㎡ |
所在階/階数 |
1階/8階建
|
| 建物構造 |
RC |
方位 |
南 |
| 現況 |
|
駐車場 |
無 近くの駐車場を探す
|
| 入居可能時期 |
相談 |
住宅保険 |
あり 2年 18000円 |
| 情報提供元 |
SUUMO[030H100469737756] |
情報公開日 |
|
| 情報更新日 |
|
次回更新予定日 |
随時 |
設備など
| 2階以上 |
- |
最上階 |
- |
角部屋 |
○ |
| 駐車場(近隣含) |
- |
エアコン付き |
○ |
バス・トイレ別 |
○ |
| 室内洗濯機置き場 |
○ |
追焚機能 |
○ |
オートロック付き |
○ |
| モニタ付インターホン |
○ |
フローリング |
○ |
バルコニー |
○ |
| ガスコンロ可 |
○ |
浴室乾燥機 |
○ |
24時間セキュリティ |
- |
| 宅配ボックス |
○ |
ペット相談可 |
- |
二人入居可 |
- |
| 設備 |
冷房・暖房・エアコン・オートロック・バルコニー・バス・トイレ別・トイレ・収納スペース・洗濯機置場・管理人常駐・洗面所・エレベーター・BS端子・追焚機能・管理人日勤・フローリング・浴室乾燥機・ガスコンロ可・温水洗浄便座・システムキッチン・モニタ付インターホン・宅配BOX・駐輪場・風呂・クローゼット・CS・衣類乾燥機・都市ガス・ディンプルキー・浴トイレ別・防犯カメラ・オートバス・洗面所独立・コンロ2口以上・シューズボックス・インターネット対応・室内洗濯機置き場 |
| リフォーム履歴 |
- |
| リノベーション履歴 |
- |
| 備考 |
保証会社利用必:初回保証料30%(家賃+共益費)年間保証料10000円/※短期解約時、違約金が発生する場合がございます。 ※同タイプ・別階の内観写真を掲載している場合があります。図面と現況が異なる場合は現況を優先いたします。/バストイレ別/バルコニー/エアコン/ガスコンロ対応/クロゼット/フローリング/TVインターホン/浴室乾燥機/オートロック/室内洗濯置/陽当り良好/シューズボックス/システムキッチン/南向き/角住戸/温水洗浄便座/エレベーター/洗面所独立/2口コンロ/駐輪場/宅配ボックス/光ファイバー/外壁タイル張り/閑静な住宅地/防犯カメラ/オートバス/保証人不要/24時間緊急通報システム/全居室フローリング/ディンプルキー/CS/24時間換気システム/免震構造/耐震構造/防犯ガラス/24時間ゴミ出し可/敷地内ごみ置き場/日勤管理/都市ガス/ワイドバルコニー/南面バルコニー/BS/初期費用カード決済可/ローソン 白金三光店(コンビニ)まで120m/ナショナル麻布 National Azabu(スーパー)まで842m/白金の丘小学校(小学校)まで413m/白金の丘中学校(中学校)まで229m/東京都立広尾病院(病院)まで701m |
| 特記事項 |
角部屋・外観タイル張り・管理人常駐・管理人日勤・日当り良好・閑静な住宅街・保証人不要/代行 ・免震構造・初期費用カード決済可 |
東京都港区白金3 周辺地図情報
※地図上に表示される物件の位置は付近住所に所在することを表すものであり、実際の物件所在地とは異なる場合がございます。
正確な物件所在地は、取扱い不動産会社にお問い合わせください。
不動産会社情報
| お問い合わせ先 |
商号:(株)DAC 免許番号:東京都知事(1)第110899号 所在地:東京都渋谷区神泉町 20-21 クロスシー渋谷神泉ビル7-17 TEL:03-6277-5825 取引態様:仲介 管理コード:228014 所属協会など:(公社)首都圏不動産公正取引協議会加盟、(公社)全日本不動産協会東京都本部会員
|
共有する |
|
人口などの統計情報
| 世帯数 |
146084世帯 |
| 人口総数 |
266306人 |
| 転入者数 |
29747人
- 転入率(人口1000人当たり)
- 111.70人
|
| 転出者数 |
25086人
- 転出率(人口1000人当たり)
- 94.20人
|
| 土地平均価格 |
- 住宅地
- 2313000円/m2
- 商業地
- 6411852円/m2
|
結婚・育児の助成金
| 子育て関連の独自の取り組み |
(1)ひとり親世帯等の経済的負担や家事負担が軽減できるよう、提供する食料品を掲載したカタログを送付し、利用者が選択した食料品を自宅に配送(2)在宅子育て家庭等の一時保育ニーズに対応するため、小規模保育事業所の空き定員を活用した「余裕活用型一時保育」を実施。(3)延長保育料の上限額の設定し、常時延長保育を利用しなければならない世帯の経済的な負担を軽減。(4)未就学児が2人以上いる世帯に、子どもタクシー利用券を支給(5)出産費用助成の算出上限額を81万円に増額(6)全ての子育て家庭が安心して生き生きと子育てができるよう、0歳から高校生世代までのお子さんを対象に、臨時に港区商店街振興組合連合会の電子スマイル商品券を「港区子育て応援分」として、子ども一人当たり5万円配付。 |
| 出産祝い |
あり |
| 公立保育所数 |
21所(うち0歳児保育を実施している保育所:21所) |
| 私立保育所数 |
62所(うち0歳児保育を実施している保育所:62所) |
| 保育所入所待機児童数 |
0人 |
| 認定こども園数 |
1園 |
預かり保育実施園数 |
公立:12園 私立:6園 |
| 学校給食 |
【小学校】完全給食【中学校】完全給食 |
| 公立中学校の学校選択制 |
実施 |
| 子ども・学生等医療費助成<通院>対象年齢 |
18歳3月末まで |
子ども・学生等医療費助成<入院>対象年齢 |
18歳3月末まで |
港区の治安・ごみ収集情報
公共料金・インフラ
| ガス料金(22m3使用した場合の月額) |
東京瓦斯株式会社(東京地区等)3926円 |
| 水道料金(口径20mmで20m3の月額) |
東京都水道局2816円 |
| 下水道料金(20m3を使用した場合の月額) |
東京都下水道局2068円 |
| 下水道普及率 |
100.0% |
安心・安全
| 建物火災出火件数 |
225件
- 人口10000人当たり
- 8.64件
|
| 刑法犯認知件数 |
2980件
- 人口1000人当たり
- 11.44件
|
| ハザード・防災マップ |
あり |
医療
| 一般病院総数 |
13ヶ所 |
| 一般診療所総数 |
953ヶ所 |
| 小児科医師数 |
144人
- 小児人口10000人当たり
- 39.84人
|
| 産婦人科医師数 |
191人
- 15~49歳女性人口1万人当たり
- 28.68人
|
| 介護保険料基準額(月額) |
6400円 |
ごみ
| 家庭ごみ収集(可燃ごみ) |
無料
|
| 家庭ごみの分別方式 |
4分別7種〔可燃ごみ 不燃ごみ 資源プラスチック 資源(ペットボトル、びん、かん、古紙[新聞、ダンボール、紙パック、雑誌、その他再生可能紙])〕 |
| 家庭ごみの戸別収集 |
一部実施(65歳以上の高齢者、介護保険法[1997年法律第123号]に規定する要介護認定を受けている方、身体障害者手帳、愛の手帳又は精神障害者保健福祉手帳の交付を受けている方、難病の患者に対する医療等に関する法律[2014年法律第50号]第5条第1項に規定する指定難病又は東京都難病患者等に係る医療費等の助成に関する規則[2000年東京都規則第94号]別表第1の第2類に定める特殊疾病に罹患している方、母子健康手帳の交付を受けた妊婦の方、産後1年を経過する月の前月末日までの子どもを養育する者ひとり親世帯の方) |
| 粗大ごみ収集 |
あり
|
| 生ごみ処理機助成金制度 |
あり
- 上限金額
- 20000円
- 上限比率
- 50.0%
|
※行政機関により公表していない地域及びデータがございます。東京23区以外の政令指定都市は、市全体のデータとして表示しています。
※提供データには細心の注意を払っておりますが、調査後に変更がある場合があります。 最新の情報につきましては各市区役所までお問い合わせいただくか、自治体HPなどをご確認ください。
港区の暮らしデータをもっと見る