アプリで簡単 物件探し 通知 共有 アプリならではの機能を使ってみる
賃貸マンション

白金タワー 白金高輪駅 1SLDK 賃貸(賃貸マンション・アパート)

情報提供元
SUUMO
白金タワー 外観
賃料 45万円  (管理費等:なし)
礼金・敷金 1ヶ月 / 2ヶ月 保証金/敷引・償却 なし / -
交通
所在地 東京都港区白金1周辺地図
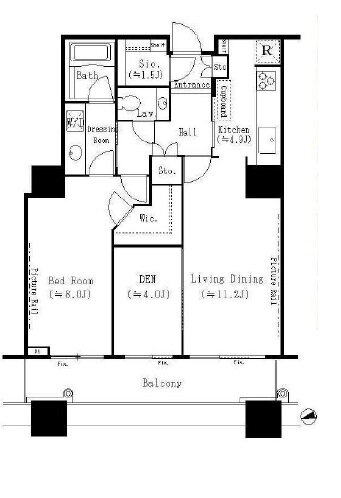
間取り 1SLDK 専有面積 71.09m2
築年月 2005年11月 築年数 築20年4ヶ月
おすすめポイント
白金高輪駅直結の超高層分譲マンション。 人気のある白金エリアで駅直結という交通利便性に優れており、また24時間有人管理をはじめコンシェルジュサービス、フィットネスジム、スカイラウンジ、ゲストルーム等も兼ね備えた超高層タワーマンションです。
お問い合わせ先
東京プレミアム不動産(株)
お問い合わせ先
東京プレミアム不動産(株)

詳細情報

賃料 45万円 管理費等 なし
敷金 2ヶ月 礼金 1ヶ月
保証金 なし 敷引・償却 -
更新料 - 契約期間 定期借家 4年
カード決済 -
所在地 東京都港区白金1周辺地図
交通
  • 東京メトロ南北線 白金高輪駅 徒歩1分乗換案内
  • 東京メトロ南北線 麻布十番駅 徒歩14分乗換案内
  • 東京メトロ南北線 白金台駅 徒歩15分乗換案内
建物名 白金タワー 
間取り 1SLDK(洋8 LDK16.1 書斎 4) 築年月(築年数) 2005年11月(築20年4ヶ月)
専有面積 71.09㎡ 所在階/階数 34階/地上42階地下3階建
建物構造 RC  方位 西 
現況   駐車場 無    近くの駐車場を探す
入居可能時期 2026年3月中旬 住宅保険 あり 2年 20000円
情報提供元 SUUMO[030H100190440407] 情報公開日
情報更新日 次回更新予定日 随時

設備など

2階以上 最上階 - 角部屋 -
駐車場(近隣含) エアコン付き バス・トイレ別
室内洗濯機置き場 - 追焚機能 オートロック付き
モニタ付インターホン フローリング バルコニー
ガスコンロ可 浴室乾燥機 24時間セキュリティ -
宅配ボックス ペット相談可 - 二人入居可
設備 冷房・暖房・エアコン・オートロック・バルコニー・バス・トイレ別・トイレ・収納スペース・管理人常駐・洗面所・エレベーター・CATV・BS端子・追焚機能・フローリング・浴室乾燥機・ウォークインクローゼット・ガスコンロ可・温水洗浄便座・システムキッチン・モニタ付インターホン・宅配BOX・駐輪場・風呂・クローゼット・駐車場2台分・CS・床暖房・衣類乾燥機・ディスポーザー・浄水器・浴トイレ別・車庫・防犯カメラ・オートバス・洗面所独立・バイク置き場・コンロ2口以上・インターネット対応 
リフォーム履歴 -
リノベーション履歴 -
備考 保証会社利用必:指定保証会社加入要(初回保証料50%~)/定期借家4年/単身者可/二人入居可/子供可/☆コンシェルジュサービス、フィットネスジム、ゲストルーム、スカイラウンジ等☆24時間有人管理☆下平置き駐車場(中型区画)空きあり☆/バストイレ別/バルコニー/TVインターホン/浴室乾燥機/オートロック/システムキッチン/追焚機能浴室/温水洗浄便座/エレベーター/洗面所独立/駐輪場/宅配ボックス/CATV/光ファイバー/3口以上コンロ/防犯カメラ/24時間有人管理/分譲賃貸/オートバス/グリル付/ウォークインクロゼット/保証人不要/駐車2台可/バイク置場/全居室フローリング/ガスレンジ付/デザイナーズ/2沿線利用可/CS/洗濯機/浄水器/床暖房/エアコン全室/ダブルロックキー/ディスポーザー/フロントサービス/耐火構造/耐震構造/ノンホルムアルデヒド/2駅利用可/駅前/駅徒歩5分以内/タワー型マンション/天井高2.5m以上/高層階/ゲストルーム/敷地内遊び場/24時間ゴミ出し可/敷地内ごみ置き場/築5年以内/地下車庫/平面駐車場/寝室8畳以上/全居室8畳以上/ビルトインエアコン/ウォークスルークロゼット/BS/保証会社利用可/常駐管理/白金アエルシティまで165m/クイーンズ伊勢丹白金高輪店まで102m/スターバックス(飲食店)まで165m/クイーンズ伊勢丹白金高輪店(スーパー)まで102m/サンクス港区白金プラザ店(コンビニ)まで30m/トモズエクスプレス白金プラザ店(ドラッグストア)まで149m/大丸ピーコック(スーパー)まで500m/白金高輪図書館(図書館)まで404m/賃貸戸数:581戸 
特記事項 二人入居可・分譲タイプ・駐車場2台分・管理人常駐・デザイナーズ物件・保証人不要/代行

省エネ性能

エネルギー消費性能 -
断熱性能 -
目安光熱費 -

東京都港区白金1 周辺地図情報

地図
※地図上に表示される物件の位置は付近住所に所在することを表すものであり、実際の物件所在地とは異なる場合がございます。
   正確な物件所在地は、取扱い不動産会社にお問い合わせください。
お問い合わせ先
東京プレミアム不動産(株)

不動産会社情報

お問い合わせ先 商号:東京プレミアム不動産(株)
免許番号:東京都知事(4)第91837号
所在地:東京都港区南青山7-14-6 南青山TCビル5階
TEL:03-6427-9248
取引態様:仲介
管理コード:0013880312-7
所属協会など:(公社)首都圏不動産公正取引協議会加盟、(公社)東京都宅地建物取引業協会会員
共有する
QRコード
お問い合わせ先
東京プレミアム不動産(株)

    港区の暮らしデータ

    人口などの統計情報

    世帯数 146084世帯
    人口総数 267780人
    転入者数 26922人
    転入率(人口1000人当たり)
    100.54人
    転出者数 25235人
    転出率(人口1000人当たり)
    94.24人
    土地平均価格
    住宅地
    2313000円/m2
    商業地
    6411852円/m2

    結婚・育児の助成金

    子育て関連の独自の取り組み (1)ひとり親世帯等の経済的負担や家事負担が軽減できるよう、食料品を掲載したカタログを送付し、利用者が選択した食料品を自宅に配送するひとり親フードサポート事業を臨時に実施(2)延長保育料の上限額を設定し、常時延長保育を利用しなければならない世帯の経済的な負担を軽減。(3)未就学児が2人以上いる世帯に、子どもタクシー利用券を支給(4)出産費用助成の算出上限額を81万円に増額。(5)一時的に保育が必要となった保護者がベビーシッターを利用しやすくなるよう、マッチング型ベビーシッターの利用に係る費用の一部を補助。
    出産祝い あり
    公立保育所数 22所(うち0歳児保育を実施している保育所:22所)
    私立保育所数 68所(うち0歳児保育を実施している保育所:68所)
    保育所入所待機児童数 0人
    認定こども園数 1園 預かり保育実施園数 公立:12園 私立:8園
    学校給食 【小学校】完全給食【中学校】完全給食
    公立中学校の学校選択制 実施
    子ども・学生等医療費助成<通院>対象年齢 18歳3月末まで 子ども・学生等医療費助成<入院>対象年齢 18歳3月末まで

    港区の治安・ごみ収集情報

    公共料金・インフラ

    ガス料金(22m3使用した場合の月額) 東京瓦斯株式会社(東京地区等)3926円
    水道料金(口径20mmで20m3の月額) 東京都水道局2816円
    下水道料金(20m3を使用した場合の月額) 東京都下水道局2068円
    下水道普及率 100.0%

    安心・安全

    建物火災出火件数 225件
    人口10000人当たり
    8.64件
    刑法犯認知件数 2980件
    人口1000人当たり
    11.44件
    ハザード・防災マップ あり

    医療

    一般病院総数 13ヶ所
    一般診療所総数 953ヶ所
    小児科医師数 144人
    小児人口10000人当たり
    39.84人
    産婦人科医師数 191人
    15~49歳女性人口1万人当たり
    28.68人
    介護保険料基準額(月額) 6400円

    ごみ

    家庭ごみ収集(可燃ごみ) 無料
    備考
    区条例により、10kgを超える一時多量ごみについては有料。
    家庭ごみの分別方式 4分別7種〔可燃ごみ 不燃ごみ 資源プラスチック 資源(ペットボトル、びん、かん、古紙[新聞、ダンボール、紙パック、雑誌、その他再生可能紙])〕
    家庭ごみの戸別収集 一部実施(65歳以上の高齢者、介護保険法[1997年法律第123号]に規定する要介護認定を受けている方、身体障害者手帳、愛の手帳又は精神障害者保健福祉手帳の交付を受けている方、難病の患者に対する医療等に関する法律[2014年法律第50号]第5条第1項に規定する指定難病又は東京都難病患者等に係る医療費等の助成に関する規則[2000年東京都規則第94号]別表第1の第2類に定める特殊疾病に罹患している方、母子健康手帳の交付を受けた妊婦の方、産後1年を経過する月の前月末日までの子どもを養育する者ひとり親世帯の方)
    粗大ごみ収集 あり
    備考
    有料。戸別収集。事前申込制。有料粗大ごみ処理券の貼付が必要。直接持ち込みも可能で、粗大ごみ料金が安くなる(400円以下であれば無料)。
    生ごみ処理機助成金制度 あり
    上限金額
    20000円
    上限比率
    50.0%
    暮らしデータ提供元:生活ガイド.com
    ※行政機関により公表していない地域及びデータがございます。東京23区以外の政令指定都市は、市全体のデータとして表示しています。
    ※提供データには細心の注意を払っておりますが、調査後に変更がある場合があります。 最新の情報につきましては各市区役所までお問い合わせいただくか、自治体HPなどをご確認ください。

    他のエリアから探す

    港区の詳細地域から賃貸物件を探す

    赤坂麻布十番麻布台麻布永坂町麻布狸穴町愛宕海岸北青山港南芝浦芝公園芝大門白金白金台新橋高輪台場虎ノ門西麻布西新橋浜松町東麻布東新橋三田南青山南麻布元赤坂元麻布六本木

    近辺の市区から探す

    千代田区中央区新宿区文京区台東区墨田区江東区品川区目黒区大田区世田谷区渋谷区中野区杉並区豊島区北区荒川区板橋区練馬区葛飾区江戸川区川崎市中原区

    周辺の駅から探す

    東京メトロ南北線
    目黒白金台白金高輪麻布十番六本木一丁目溜池山王永田町

    マンションライブラリーを見る

    白金タワー

    東京都港区で他のジャンルから探す


    掲載情報の著作権は提供元企業等に帰属します。
    Copyright:(C) 2026 Recruit Co., Ltd.
    アプリで簡単 物件探し 大手不動産サイトの情報から一括検!プッシュ通知で物件を見逃さない
    App Storeからダウンロード Google Playで手に入れよう QRコード