賃貸一戸建て
ゆりが丘貸家 4LDK 賃貸(賃貸マンション・アパート)
| 賃料 |
10万円 (管理費等:なし) |
| 礼金・敷金 |
なし / 3ヶ月 |
保証金/敷引・償却 |
なし / - |
| 交通 |
|
| 所在地 |
宮城県名取市ゆりが丘4周辺地図
|
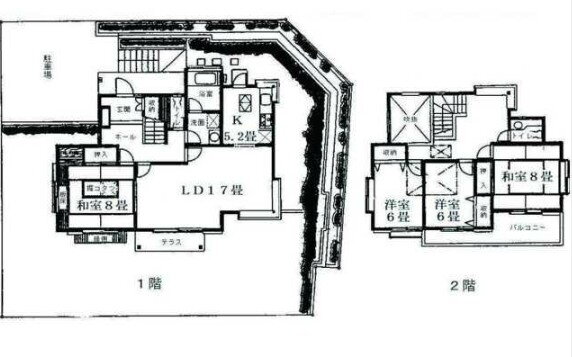
| 間取り |
4LDK |
専有面積 |
133.73m2 |
| 築年月 |
1990年12月 |
築年数 |
築34年11ヶ月 |
- おすすめポイント
- 人気の戸建て物件★駐車場2台分あり★内覧可能★ 幼稚園・小学校・中学校も徒歩圏内!閑静な住宅街で子育てにもおススメ!
- お問い合わせ先
- ハウスメイトネットワーク仙台広瀬通店ハウスセレクト(株)
- お問い合わせ先
- ハウスメイトネットワーク仙台広瀬通店ハウスセレクト(株)
| 賃料 |
10万円 |
管理費等 |
なし |
| 敷金 |
3ヶ月 |
礼金 |
なし |
| 保証金 |
なし |
敷引・償却 |
- |
| 更新料 |
- |
契約期間 |
|
| カード決済 |
初期費用カード決済可 |
| 所在地 |
宮城県名取市ゆりが丘4周辺地図
|
| 交通 |
- バス/「ゆりが丘3丁目」バス停 停歩2分
- 仙台市地下鉄南北線 富沢駅 徒歩6.5km乗換案内
|
| 建物名 |
ゆりが丘貸家 |
| 間取り |
4LDK |
築年月(築年数) |
1990年12月(築34年11ヶ月)
|
| 専有面積 |
133.73㎡ |
所在階/階数 |
1階/2階建
|
| 建物構造 |
木造 |
方位 |
南 |
| 現況 |
|
駐車場 |
有 無料 |
| 入居可能時期 |
即時 |
住宅保険 |
あり 2年 20000円 |
| 情報提供元 |
SUUMO[020H100469566110] |
情報公開日 |
|
| 情報更新日 |
|
次回更新予定日 |
随時 |
設備など
| 2階以上 |
- |
最上階 |
○ |
角部屋 |
○ |
| 駐車場(近隣含) |
○ |
エアコン付き |
○ |
バス・トイレ別 |
○ |
| 室内洗濯機置き場 |
○ |
追焚機能 |
○ |
オートロック付き |
- |
| モニタ付インターホン |
- |
フローリング |
- |
バルコニー |
○ |
| ガスコンロ可 |
- |
浴室乾燥機 |
- |
24時間セキュリティ |
- |
| 宅配ボックス |
- |
ペット相談可 |
- |
二人入居可 |
- |
| 設備 |
冷房・暖房・エアコン・バルコニー・バス・トイレ別・トイレ・収納スペース・洗濯機置場・洗面所・追焚機能・温水洗浄便座・風呂・庭・クローゼット・物置・トイレ2ヶ所・駐車場2台分・専用庭・都市ガス・浴トイレ別・洗面所独立・コンロ2口以上・シューズボックス・室内洗濯機置き場 |
| リフォーム履歴 |
- |
| リノベーション履歴 |
- |
| 備考 |
駐2台付/バストイレ別/バルコニー/エアコン/クロゼット/室内洗濯置/シューズボックス/南向き/追焚機能浴室/角住戸/温水洗浄便座/洗面所独立/押入/即入居可/閑静な住宅地/最上階/3口以上コンロ/独立型キッチン/駐車2台可/専用庭/LDK15畳以上/物置/駐車場2台無料/ダブルロックキー/浴室に窓/庭/LDK20畳以上/トイレ2ヶ所/バス停徒歩3分以内/LDK12畳以上/LDK18畳以上/和室/全居室6畳以上/都市ガス/洗面所にドア/IT重説 対応物件/初期費用カード決済可/ヨークベニマル山田鈎取店(スーパー)まで3442m/ツルハドラッグ名取ゆりが丘店(ドラッグストア)まで243m/名取市立みどり台中学校(中学校)まで704m/名取市立ゆりが丘小学校(小学校)まで270m/尚絅学院大学附属幼稚園(幼稚園・保育園)まで279m/セブンイレブン名取みどり台店(コンビニ)まで705m |
| 特記事項 |
駐車場2台分・角部屋・最上階・閑静な住宅街・初期費用カード決済可 |
宮城県名取市ゆりが丘4 周辺地図情報
※地図上に表示される物件の位置は付近住所に所在することを表すものであり、実際の物件所在地とは異なる場合がございます。
正確な物件所在地は、取扱い不動産会社にお問い合わせください。
- お問い合わせ先
- ハウスメイトネットワーク仙台広瀬通店ハウスセレクト(株)
不動産会社情報
| お問い合わせ先 |
商号:ハウスメイトネットワーク仙台広瀬通店ハウスセレクト(株) 免許番号:宮城県知事(2)第6599号 所在地:宮城県仙台市青葉区立町 1-3 TEL:022-724-7030 取引態様:仲介 管理コード: 所属協会など: 東北地区不動産公正取引協議会加盟、(公社)宮城県宅地建物取引業協会会員
|
共有する |
|
- お問い合わせ先
- ハウスメイトネットワーク仙台広瀬通店ハウスセレクト(株)
人口などの統計情報
| 世帯数 |
29674世帯 |
| 人口総数 |
79720人 |
| 転入者数 |
3599人
- 転入率(人口1000人当たり)
- 45.15人
|
| 転出者数 |
3276人
- 転出率(人口1000人当たり)
- 41.09人
|
| 土地平均価格 |
- 住宅地
- 85800円/m2
- 商業地
- 107333円/m2
|
結婚・育児の助成金
| 子育て関連の独自の取り組み |
(1)育児ヘルプサービス訪問事業。(2)おたふくかぜ予防接種助成。(3)産婦健康診査助成事業。(4)母子手帳アプリ事業。(5)産後ケア事業。(6)新生児難聴検査助成事業。(7)ママサポートタクシー事業。(8)学校給食費無償化事業。(9)子ども医療対策事業。 |
| 出産祝い |
なし |
| 公立保育所数 |
4所(うち0歳児保育を実施している保育所:4所) |
| 私立保育所数 |
5所(うち0歳児保育を実施している保育所:5所) |
| 保育所入所待機児童数 |
0人 |
| 認定こども園数 |
7園 |
預かり保育実施園数 |
公立:- 私立:2園 |
| 学校給食 |
【小学校】完全給食【中学校】完全給食 |
| 公立中学校の学校選択制 |
実施(特認校制) |
| 子ども・学生等医療費助成<通院>対象年齢 |
18歳3月末まで |
子ども・学生等医療費助成<入院>対象年齢 |
18歳3月末まで |
名取市の治安・ごみ収集情報
公共料金・インフラ
| ガス料金(22m3使用した場合の月額) |
仙台市4867円 仙南ガス株式会社5026円 |
| 水道料金(口径20mmで20m3の月額) |
名取市4510円 |
| 下水道料金(20m3を使用した場合の月額) |
名取市3300円 |
| 下水道普及率 |
93.4% |
安心・安全
| 建物火災出火件数 |
10件
- 人口10000人当たり
- 1.27件
|
| 刑法犯認知件数 |
360件
- 人口1000人当たり
- 4.57件
|
| ハザード・防災マップ |
あり |
医療
| 一般病院総数 |
1ヶ所 |
| 一般診療所総数 |
58ヶ所 |
| 小児科医師数 |
6人
- 小児人口10000人当たり
- 5.25人
|
| 産婦人科医師数 |
4人
- 15~49歳女性人口1万人当たり
- 2.42人
|
| 介護保険料基準額(月額) |
6660円 |
ごみ
| 家庭ごみ収集(可燃ごみ) |
無料
|
| 家庭ごみの分別方式 |
2分別17種〔ごみ2種(焼却ごみ、有害・危険ごみ) リサイクル15種(プラスチック資源、ペットボトル、缶類、無色透明びん、茶色びん、その他びん、紙箱・紙袋・包装紙類、紙パック、段ボール、新聞・雑誌類、布類、金属製品類、ガラスくず類、せともの類、複合素材製品類)〕 |
| 家庭ごみの戸別収集 |
未実施 |
| 粗大ごみ収集 |
なし
|
| 生ごみ処理機助成金制度 |
あり
- 上限金額
- 35000円
- 上限比率
- 50.0%
|
※行政機関により公表していない地域及びデータがございます。東京23区以外の政令指定都市は、市全体のデータとして表示しています。
※提供データには細心の注意を払っておりますが、調査後に変更がある場合があります。 最新の情報につきましては各市区役所までお問い合わせいただくか、自治体HPなどをご確認ください。
名取市の暮らしデータをもっと見る