賃貸マンション
ビレッジハウス滝沢大崎2号棟 滝沢駅 3DK 賃貸(賃貸マンション・アパート)
 
  
    
      | 賃料 | 4.23万円  (管理費等:なし) | 
    
      | 礼金・敷金 | なし / なし | 保証金/敷引・償却 | なし / - | 
    
      | 交通 |  | 
    
      | 所在地 | 岩手県滝沢市大崎周辺地図 | 
    
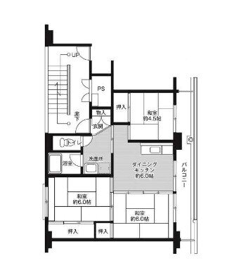
      | 間取り | 3DK | 専有面積 | 53.08m2 | 
    
      | 築年月 | 1990年5月 | 築年数 | 築35年6ヶ月 | 
  
 
 
- おすすめポイント
- 初期費用が抑えられます! ぜひ一度ご見学いただいてみてはいかがでしょうか?
| 賃料 | 4.23万円 | 管理費等 | なし | 
| 敷金 | なし | 礼金 | なし | 
| 保証金 | なし | 敷引・償却 | - | 
| 更新料 | - | 契約期間 |  | 
| カード決済 | - | 
| 所在地 | 岩手県滝沢市大崎周辺地図 | 
| 交通 | 
  いわて銀河鉄道線 滝沢駅 徒歩8分乗換案内いわて銀河鉄道線 巣子駅 徒歩32分乗換案内 | 
| 建物名 | ビレッジハウス滝沢大崎2号棟 | 
| 間取り | 3DK(和6 和6 和4.5 DK6.0) | 築年月(築年数) | 1990年5月(築35年6ヶ月) | 
| 専有面積 | 53.08㎡ | 所在階/階数 | 1階/5階建 | 
| 建物構造 | RC | 方位 | 南 | 
| 現況 |  | 駐車場 | 無    近くの駐車場を探す | 
| 入居可能時期 | 即時 | 住宅保険 | あり 2年 10000円 | 
| 情報提供元 | SUUMO[020H100469725817] | 情報公開日 |  | 
| 情報更新日 |  | 次回更新予定日 | 随時 | 
設備など
| 2階以上 | - | 最上階 | ○ | 角部屋 | - | 
| 駐車場(近隣含) | - | エアコン付き | ○ | バス・トイレ別 | ○ | 
| 室内洗濯機置き場 | ○ | 追焚機能 | - | オートロック付き | - | 
| モニタ付インターホン | - | フローリング | - | バルコニー | ○ | 
| ガスコンロ可 | ○ | 浴室乾燥機 | - | 24時間セキュリティ | - | 
| 宅配ボックス | - | ペット相談可 | - | 二人入居可 | ○ | 
| 設備 | 冷房・暖房・エアコン・バルコニー・バス・トイレ別・トイレ・収納スペース・洗濯機置場・洗面所・ガスコンロ可・駐輪場・プロパンガス・浴トイレ別・洗面所独立・室内洗濯機置き場 | 
| リフォーム履歴 | - | 
| リノベーション履歴 | - | 
| 備考 | 仲介手数料不要/普通借家2年0ヶ月/二人入居可/ルームシェア相談/フリーレント1ヶ月/キャッシュバックのキャンペーンが適用となり初期費用がグッとお安くなりました!カントリー不動産ではビレッジハウスの面倒な入居手続きもスムーズに行えます。/バストイレ別/バルコニー/エアコン/ガスコンロ対応/室内洗濯置/陽当り良好/脱衣所/洗面所独立/駐輪場/押入/即入居可/礼金不要/最上階/敷金不要/独立型キッチン/仲介手数料不要/2沿線利用可/クッションフロア/フリーレント/初期費用10万円以下/ルームシェア相談/2駅利用可/敷地内ごみ置き場/平面駐車場/プロパンガス/敷金・礼金不要/IT重説 対応物件/川前保育園(幼稚園・保育園)まで827m/滝沢市立滝沢第二中学校(中学校)まで972m/滝沢市立滝沢東小学校(小学校)まで757m/りもーね(飲食店)まで434m/岩手県立大学(大学・短大)まで1174m/森林公園(公園)まで1851m | 
| 特記事項 | 二人入居可・フリーレント・最上階・日当り良好・ルームシェア可 | 
岩手県滝沢市大崎 周辺地図情報
※地図上に表示される物件の位置は付近住所に所在することを表すものであり、実際の物件所在地とは異なる場合がございます。
   正確な物件所在地は、取扱い不動産会社にお問い合わせください。
 
 
不動産会社情報
| お問い合わせ先 | 商号:(株)カントリー不動産 免許番号:岩手県知事(2)第2594号
 所在地:岩手県盛岡市上堂1-19-1
 TEL:019-601-6760
 取引態様:仲介
 管理コード:145889
 所属協会など: 東北地区不動産公正取引協議会加盟、(一社)岩手県宅地建物取引業協会会員
 | 共有する |  | 
  
  
    人口などの統計情報
    
      
        
          | 世帯数 | 21629世帯 | 
        
          | 人口総数 | 54933人 | 
        
          | 転入者数 | 2073人 
 
              転入率(人口1000人当たり)37.74人 | 
        
          | 転出者数 | 2152人 
 
              転出率(人口1000人当たり)39.17人 | 
        
          | 土地平均価格 | 
              住宅地36425円/m2商業地41800円/m2 | 
      
    
   
    
    結婚・育児の助成金
    
      
        
          | 子育て関連の独自の取り組み | - | 
        
          | 出産祝い | なし | 
        
          | 公立保育所数 | 0所(うち0歳児保育を実施している保育所:-) | 
        
          | 私立保育所数 | 12所(うち0歳児保育を実施している保育所:12所) | 
        
          | 保育所入所待機児童数 | 5人 | 
        
          | 認定こども園数 | 4園 | 預かり保育実施園数 | 公立:- 私立:1園 | 
        
          | 学校給食 | 【小学校】完全給食【中学校】完全給食 | 
        
          | 公立中学校の学校選択制 | 未実施 | 
        
          | 子ども・学生等医療費助成<通院>対象年齢 | 18歳3月末まで | 子ども・学生等医療費助成<入院>対象年齢 | 18歳3月末まで | 
      
    
   
    
    滝沢市の治安・ごみ収集情報
    公共料金・インフラ
    
      
        
          | ガス料金(22m3使用した場合の月額) | 盛岡ガス株式会社4986円 | 
        
          | 水道料金(口径20mmで20m3の月額) | 滝沢市3755円 | 
        
          | 下水道料金(20m3を使用した場合の月額) | 滝沢市3058円 | 
        
          | 下水道普及率 | 70.8% | 
      
    
    安心・安全
    
      
        
          | 建物火災出火件数 | 8件 
              人口10000人当たり1.44件 | 
        
          | 刑法犯認知件数 | 71件 
              人口1000人当たり1.28件 | 
        
          | ハザード・防災マップ | あり | 
      
    
    医療
    
      
        
          | 一般病院総数 | 2ヶ所 | 
        
          | 一般診療所総数 | 23ヶ所 | 
        
          | 小児科医師数 | 3人 
              小児人口10000人当たり4.16人 | 
        
          | 産婦人科医師数 | 0人 
              15~49歳女性人口1万人当たり0.00人 | 
        
          | 介護保険料基準額(月額) | 6300円 | 
      
    
    ごみ
    
      
        
          | 家庭ごみ収集(可燃ごみ) | 無料 | 
        
          | 家庭ごみの分別方式 | 2分別11種〔家庭ごみ(普通ごみ、中型ごみ) 資源ごみ(金属、ガラス、ペットボトル、新聞紙・布[新聞、チラシ、ダンボール、雑誌・本、布、衣類])〕 | 
        
          | 家庭ごみの戸別収集 | 未実施 | 
        
          | 粗大ごみ収集 | あり | 
        
          | 生ごみ処理機助成金制度 | なし 
              上限金額-上限比率- | 
      
    
   
  
      
    
      ※行政機関により公表していない地域及びデータがございます。東京23区以外の政令指定都市は、市全体のデータとして表示しています。
      
※提供データには細心の注意を払っておりますが、調査後に変更がある場合があります。 最新の情報につきましては各市区役所までお問い合わせいただくか、自治体HPなどをご確認ください。
    
      滝沢市の暮らしデータをもっと見る