アプリで簡単 物件探し 通知 共有 アプリならではの機能を使ってみる
賃貸マンション

東京都目黒区上目黒3丁目 中目黒駅 3LDK 賃貸(賃貸マンション・アパート)

情報提供元
アットホーム
賃料 38.5万円  (管理費等:20000円)
礼金・敷金 1ヶ月 / 1ヶ月 保証金/敷引・償却 なし / 1ヶ月
交通
所在地 東京都目黒区上目黒3丁目周辺地図
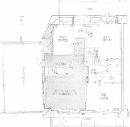
間取り 3LDK 専有面積 65.25m2
築年月 1996年12月 築年数 築29年1ヶ月
おすすめポイント
分譲タイプ・角部屋・24時間換気システム・24時間セキュリティ
お問い合わせ先
ゑいらくやプロパティマネジメント (有)永楽家プロパティマネジメント
お問い合わせ先
ゑいらくやプロパティマネジメント (有)永楽家プロパティマネジメント

詳細情報

賃料 38.5万円 管理費等 20000円
敷金 1ヶ月 礼金 1ヶ月
保証金 なし 敷引・償却 1ヶ月
更新料 - 契約期間 定期借家 2年
カード決済 -
所在地 東京都目黒区上目黒3丁目周辺地図
交通
建物名  
間取り 3LDK(洋 6・6.3・4.2 LDK 13.2) 築年月(築年数) 1996年12月(築29年1ヶ月)
専有面積 65.25㎡ 所在階/階数 10階/14階建
建物構造 SRC  方位 南 
現況 空  駐車場 有 39,000円
入居可能時期 即時 住宅保険 ありその他 2年 26000円
情報提供元 アットホーム[6988435428] 情報公開日
情報更新日 - 次回更新予定日 随時

設備など

2階以上 最上階 - 角部屋
駐車場(近隣含) エアコン付き バス・トイレ別
室内洗濯機置き場 追焚機能 オートロック付き
モニタ付インターホン フローリング バルコニー
ガスコンロ可 浴室乾燥機 - 24時間セキュリティ
宅配ボックス ペット相談可 - 二人入居可 -
設備 冷房・暖房・エアコン・オートロック・バルコニー・バス・トイレ別・トイレ・収納スペース・洗濯機置場・室内洗濯機置き場・洗面所・シャワー・エレベーター・追焚機能・都市ガス・洗面台・フローリング・ガスコンロ可・シャンプードレッサ・温水洗浄便座・システムキッチン・カウンターキッチン・モニタ付インターホン・宅配BOX・駐輪場・クローゼット・ルーフバルコニー・CS・2面バルコニー・モニタ付オートロック・防犯カメラ・洗面所独立・バイク置き場・シューズボックス・インターネット対応・3口以上コンロ・リフォーム 
リフォーム履歴 ■水回り
2025年07月実施
キッチン/浴室/トイレ/洗面所
■内装
2025年07月実施
壁・天井(クロス・塗装等)/床(フローリング等)
※実施年月は、施工箇所の中で最も古いものを表示しています
リノベーション履歴 -
備考 2年ごとの再契約相談可・鍵交換代:あり33,000円~・バイク置場:空なし・駐輪場:空なし 
特記事項 分譲タイプ・角部屋・24時間換気システム・24時間セキュリティ

省エネ性能

エネルギー消費性能 -
断熱性能 -
目安光熱費 -

東京都目黒区上目黒3丁目 周辺地図情報

地図
※地図上に表示される物件の位置は付近住所に所在することを表すものであり、実際の物件所在地とは異なる場合がございます。
   正確な物件所在地は、取扱い不動産会社にお問い合わせください。
お問い合わせ先
ゑいらくやプロパティマネジメント (有)永楽家プロパティマネジメント

不動産会社情報

お問い合わせ先 商号:ゑいらくやプロパティマネジメント (有)永楽家プロパティマネジメント
免許番号:東京都知事免許(2)第105448号
所在地:目黒区八雲1丁目2-7悠々館102号
TEL:03-6421-2575
取引態様:仲介
管理コード:
所属協会など:(公社)東京都宅地建物取引業協会会員、(公社)首都圏不動産公正取引協議会加盟
共有する
QRコード
お問い合わせ先
ゑいらくやプロパティマネジメント (有)永楽家プロパティマネジメント

    目黒区の暮らしデータ

    人口などの統計情報

    世帯数 155610世帯
    人口総数 279520人
    転入者数 26096人
    転入率(人口1000人当たり)
    93.36人
    転出者数 24854人
    転出率(人口1000人当たり)
    88.92人
    土地平均価格
    住宅地
    983667円/m2
    商業地
    1964286円/m2

    結婚・育児の助成金

    子育て関連の独自の取り組み (1)子どもの権利擁護委員制度(めぐろ はあと ねっと)。(2)子育てアプリ「めぐろ子育てホッ!とナビ」の運用。
    出産祝い あり
    公立保育所数 15所(うち0歳児保育を実施している保育所:15所)
    私立保育所数 81所(うち0歳児保育を実施している保育所:74所)
    保育所入所待機児童数 0人
    認定こども園数 2園 預かり保育実施園数 公立:0園 私立:15園
    学校給食 【小学校】完全給食【中学校】完全給食
    公立中学校の学校選択制 実施(入学時のみ)
    子ども・学生等医療費助成<通院>対象年齢 18歳3月末まで 子ども・学生等医療費助成<入院>対象年齢 18歳3月末まで

    目黒区の治安・ごみ収集情報

    公共料金・インフラ

    ガス料金(22m3使用した場合の月額) 東京瓦斯株式会社(東京地区等)3926円
    水道料金(口径20mmで20m3の月額) 東京都水道局2816円
    下水道料金(20m3を使用した場合の月額) 東京都下水道局2068円
    下水道普及率 100.0%

    安心・安全

    建物火災出火件数 51件
    人口10000人当たり
    1.77件
    刑法犯認知件数 1346件
    人口1000人当たり
    4.67件
    ハザード・防災マップ あり

    医療

    一般病院総数 9ヶ所
    一般診療所総数 348ヶ所
    小児科医師数 55人
    小児人口10000人当たり
    18.00人
    産婦人科医師数 46人
    15~49歳女性人口1万人当たり
    6.55人
    介護保険料基準額(月額) 6200円

    ごみ

    家庭ごみ収集(可燃ごみ) 無料
    備考
    一度に多量(45リットルの袋で5袋以上)のごみを出す場合は有料。
    家庭ごみの分別方式 4分別7種〔燃やすごみ 燃やさないごみ 資源(プラスチック、ペットボトル、びん、缶) 水銀を含む製品〕 拠点回収:小型家電 電池類 紙パック 古着・古布 集団回収:古紙
    家庭ごみの戸別収集 一部実施(集積所までごみを運び出すことが困難なひとり暮らしの高齢者及び障害者)
    粗大ごみ収集 あり
    備考
    有料。事前申込制。処理手数料が必要。
    生ごみ処理機助成金制度 なし
    上限金額
    -
    上限比率
    -
    暮らしデータ提供元:生活ガイド.com
    ※行政機関により公表していない地域及びデータがございます。東京23区以外の政令指定都市は、市全体のデータとして表示しています。
    ※提供データには細心の注意を払っておりますが、調査後に変更がある場合があります。 最新の情報につきましては各市区役所までお問い合わせいただくか、自治体HPなどをご確認ください。
    OCN×ドコモ光新規お申込みで合計最大137,280円相当おトク!特典の内訳・適用条件など詳細はこちら

    目黒区内の各駅の住みやすさ

    他のエリアから探す

    目黒区の詳細地域から賃貸物件を探す

    青葉台大岡山大橋柿の木坂上目黒駒場五本木下目黒自由が丘洗足平町鷹番中央町中町中根中目黒原町東が丘東山碑文谷三田緑が丘目黒目黒本町八雲祐天寺

    近辺の市区から探す

    千代田区中央区港区新宿区文京区台東区墨田区江東区品川区大田区世田谷区渋谷区中野区杉並区豊島区北区板橋区練馬区狛江市川崎市川崎区川崎市幸区川崎市中原区川崎市高津区川崎市多摩区川崎市宮前区

    周辺の駅から探す

    東急東横線
    渋谷代官山中目黒祐天寺学芸大学都立大学自由が丘

    東京都目黒区で他のジャンルから探す


    掲載情報の著作権は提供元企業等に帰属します。
    Copyright:(C) 2025 At Home Co.,Ltd
    アプリで簡単 物件探し 大手不動産サイトの情報から一括検!プッシュ通知で物件を見逃さない
    App Storeからダウンロード Google Playで手に入れよう QRコード