賃貸マンション
ベルデ押上 押上駅 ワンルーム 賃貸(賃貸マンション・アパート)
| 賃料 |
7万円 (管理費等:3000円) |
| 礼金・敷金 |
なし / 1ヶ月 |
保証金/敷引・償却 |
なし / - |
| 交通 |
|
| 所在地 |
東京都墨田区押上1丁目周辺地図
|
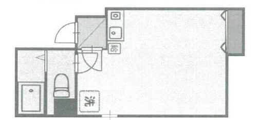
| 間取り |
ワンルーム |
専有面積 |
18.6m2 |
| 築年月 |
1981年2月 |
築年数 |
築44年10ヶ月 |
- おすすめポイント
- 最上階・保証人不要/代行 ・初期費用カード決済可
| 賃料 |
7万円 |
管理費等 |
3000円 |
| 敷金 |
1ヶ月 |
礼金 |
なし |
| 保証金 |
なし |
敷引・償却 |
- |
| 更新料 |
- |
契約期間 |
2年 |
| カード決済 |
初期費用カード決済可 |
| 所在地 |
東京都墨田区押上1丁目周辺地図
|
| 交通 |
- 東京メトロ半蔵門線 押上駅 徒歩2分乗換案内
- 東武伊勢崎・大師線 東京スカイツリー駅 徒歩8分乗換案内
- 東武伊勢崎・大師線 曳舟駅 徒歩11分乗換案内
|
| 建物名 |
ベルデ押上 |
| 間取り |
ワンルーム(洋室6) |
築年月(築年数) |
1981年2月(築44年10ヶ月)
|
| 専有面積 |
18.6㎡ |
所在階/階数 |
4階/4階建
|
| 建物構造 |
RC |
方位 |
北西 |
| 現況 |
空 |
駐車場 |
近有 5,500円 |
| 入居可能時期 |
2025年11月下旬 |
住宅保険 |
あり |
| 情報提供元 |
アットホーム[1177735417] |
情報公開日 |
|
| 情報更新日 |
- |
次回更新予定日 |
随時 |
設備など
| 2階以上 |
○ |
最上階 |
○ |
角部屋 |
- |
| 駐車場(近隣含) |
○ |
エアコン付き |
○ |
バス・トイレ別 |
○ |
| 室内洗濯機置き場 |
○ |
追焚機能 |
- |
オートロック付き |
- |
| モニタ付インターホン |
- |
フローリング |
- |
バルコニー |
- |
| ガスコンロ可 |
- |
浴室乾燥機 |
- |
24時間セキュリティ |
- |
| 宅配ボックス |
- |
ペット相談可 |
- |
二人入居可 |
- |
| 設備 |
エアコン・給湯・バス・トイレ別・トイレ・収納スペース・洗濯機置場・室内洗濯機置き場・シャワー・クローゼット・トランクルーム・IHクッキングヒータ・光ファイバー(ブロードバンド)・インターネット対応 |
| リフォーム履歴 |
- |
| リノベーション履歴 |
- |
| 備考 |
室内清掃費用 44000円(退去時)/エアコン清掃費用 13200円(退去時)/トランクルーム使用料借主負担/事務所利用時、賃料77000円、管理費3300円、敷金積み増し1ヶ月、保証会社総賃料110パーセント/管理費に水道料含む・賃貸保証等:加入要(月額賃料等の50%(初回保証料)、2年目以降は1万円/年)・鍵交換代:あり16,500円~・オンラインで申込から契約手続き、LINEでのご相談も可能です/当物件は初期費用分割払い可(クレジットカード決済も可)/お客様のご希望に合わせた方法(店頭、オンライン等)で物件をご提案いたします |
| 特記事項 |
最上階・保証人不要/代行 ・初期費用カード決済可 |
東京都墨田区押上1丁目 周辺地図情報
※地図上に表示される物件の位置は付近住所に所在することを表すものであり、実際の物件所在地とは異なる場合がございます。
正確な物件所在地は、取扱い不動産会社にお問い合わせください。
アピールポイント
☆当店の強みをお伝えします☆①クレジットカードの初期費用分割払いを、喜んでお受けいたします(クレジットカード以外もOK)②他社様がネットに掲載されている物件は、全てお調べし、【好条件】でご紹介いたします他社様で「お申込み」された物件でも、【好条件】でご紹介できる場合がございます③「審査が不安…」「保証人がいない…」「値段交渉をして欲しい…」などなど、どのようなご条件でも、遠慮なくご相談いただけます④ご検討されている「エリア」「沿線」が「広範囲」「複数」でも、一度で漏れなくお探しいただけますポータルサイトや他社サイトで気になるお部屋がございましたらお気軽にご相談くださいお客様のご来店を心よりお待ちしております
不動産会社情報
| お問い合わせ先 |
商号:ソレイユ神田店 (株)ソレイユ 免許番号:国土交通大臣免許(5)第7031号 所在地:千代田区内神田3丁目12-2萬創神田ビル 5・6階 TEL:03-3526-3900 取引態様:仲介 管理コード:68720907-1 所属協会など:(公社)全日本不動産協会会員、(公社)首都圏不動産公正取引協議会加盟
|
共有する |
|
人口などの統計情報
| 世帯数 |
145609世帯 |
| 人口総数 |
284555人 |
| 転入者数 |
28109人
- 転入率(人口1000人当たり)
- 98.78人
|
| 転出者数 |
22671人
- 転出率(人口1000人当たり)
- 79.67人
|
| 土地平均価格 |
- 住宅地
- 501800円/m2
- 商業地
- 808000円/m2
|
結婚・育児の助成金
| 子育て関連の独自の取り組み |
(1)保護者等の急な残業等の場合に、1時間単位で利用を承認する「スポット延長保育」を実施。(2)子育て安心ステーション事業の実施(地域の保育園等が、育児相談や保育園見学・体験等を行う)。(3)墨田区公式LINEから各種子育て情報を発信する。(4)MR定期接種の機会を逃した方へMR任意接種の費用を全額助成(高校3年生相当年齢まで)。(5)骨髄移植手術等により既に接種済みの定期予防接種の効果が期待できず再接種が必要と医師に判断され、再接種を受ける場合の再接種費用を助成。(6)1歳以上就学前の子へ、おたふくかぜ任意予防接種費用の一部(3,000円)を助成。(7)生後6ヶ月から15歳の子へ、インフルエンザ予防接種費用の一部(最大2,000円)を助成。 |
| 出産祝い |
あり |
| 公立保育所数 |
23所(うち0歳児保育を実施している保育所:12所) |
| 私立保育所数 |
56所(うち0歳児保育を実施している保育所:52所) |
| 保育所入所待機児童数 |
8人 |
| 認定こども園数 |
4園 |
預かり保育実施園数 |
公立:0園 私立:8園 |
| 学校給食 |
【小学校】完全給食【中学校】完全給食 |
| 公立中学校の学校選択制 |
実施 |
| 子ども・学生等医療費助成<通院>対象年齢 |
18歳3月末まで |
子ども・学生等医療費助成<入院>対象年齢 |
18歳3月末まで |
墨田区の治安・ごみ収集情報
公共料金・インフラ
| ガス料金(22m3使用した場合の月額) |
東京瓦斯株式会社(東京地区等)3926円 |
| 水道料金(口径20mmで20m3の月額) |
東京都水道局2816円 |
| 下水道料金(20m3を使用した場合の月額) |
東京都下水道局2068円 |
| 下水道普及率 |
100.0% |
安心・安全
| 建物火災出火件数 |
72件
- 人口10000人当たり
- 2.65件
|
| 刑法犯認知件数 |
2137件
- 人口1000人当たり
- 7.85件
|
| ハザード・防災マップ |
あり |
医療
| 一般病院総数 |
13ヶ所 |
| 一般診療所総数 |
245ヶ所 |
| 小児科医師数 |
85人
- 小児人口10000人当たり
- 30.84人
|
| 産婦人科医師数 |
40人
- 15~49歳女性人口1万人当たり
- 5.64人
|
| 介護保険料基準額(月額) |
6600円 |
ごみ
| 家庭ごみ収集(可燃ごみ) |
無料
|
| 家庭ごみの分別方式 |
3分別11種〔可燃ごみ 不燃ごみ 資源物(新聞、段ボール、紙パック、雑誌、雑がみ、缶、びん、ペットボトル、プラスチック)〕 拠点回収:廃食油 乾電池 使用済小型家電 歯ブラシ ペットボトルキャップ |
| 家庭ごみの戸別収集 |
一部実施(【ふれあい収集】一部地域のみ実施) |
| 粗大ごみ収集 |
あり
|
| 生ごみ処理機助成金制度 |
なし
- 上限金額
- -
- 上限比率
- -
|
※行政機関により公表していない地域及びデータがございます。東京23区以外の政令指定都市は、市全体のデータとして表示しています。
※提供データには細心の注意を払っておりますが、調査後に変更がある場合があります。 最新の情報につきましては各市区役所までお問い合わせいただくか、自治体HPなどをご確認ください。
墨田区の暮らしデータをもっと見る