アプリで簡単 物件探し 通知 共有 アプリならではの機能を使ってみる
賃貸マンション

プレール文京WEST 江戸川橋駅 1K 賃貸(賃貸マンション・アパート)

情報提供元
アットホーム
プレール文京WEST
賃料 8.3万円  (管理費等:10000円)
礼金・敷金 1ヶ月 / 1ヶ月 保証金/敷引・償却 なし / 解約時1.00ヶ月償却
交通
所在地 東京都文京区関口1丁目周辺地図
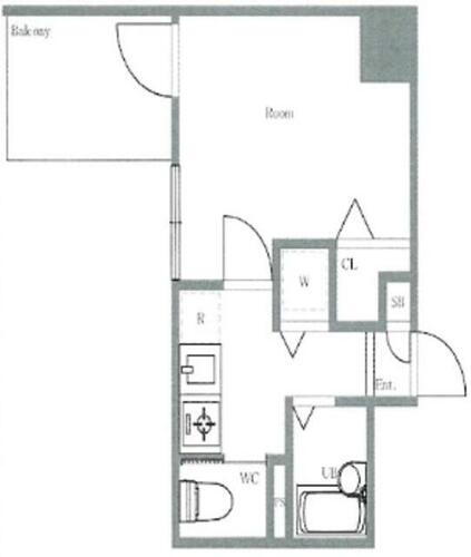
間取り 1K 専有面積 19.83m2
築年月 2002年5月 築年数 築23年8ヶ月
おすすめポイント
保証人不要/代行 ・初期費用カード決済可
お問い合わせ先
ソレイユ新宿店 (株)ソレイユ
お問い合わせ先
ソレイユ新宿店 (株)ソレイユ

詳細情報

賃料 8.3万円 管理費等 10000円
敷金 1ヶ月 礼金 1ヶ月
保証金 なし 敷引・償却 解約時1.00ヶ月償却
更新料 - 契約期間 2年
カード決済 初期費用カード決済可
所在地 東京都文京区関口1丁目周辺地図
交通
  • 東京メトロ有楽町線 江戸川橋駅 徒歩1分乗換案内
  • 東京メトロ東西線 神楽坂駅 徒歩10分乗換案内
  • 東京メトロ有楽町線 護国寺駅 徒歩15分乗換案内
建物名 プレール文京WEST 
間取り 1K(K2洋室6) 築年月(築年数) 2002年5月(築23年8ヶ月)
専有面積 19.83㎡ 所在階/階数 6階/13階建
建物構造 SRC  方位 南西 
現況 居住中  駐車場 近有 35,200円
入居可能時期 2026年2月中旬 住宅保険 あり
情報提供元 アットホーム[1117940720] 情報公開日
情報更新日 - 次回更新予定日 随時

設備など

2階以上 最上階 - 角部屋 -
駐車場(近隣含) エアコン付き バス・トイレ別
室内洗濯機置き場 追焚機能 - オートロック付き
モニタ付インターホン - フローリング - バルコニー
ガスコンロ可 - 浴室乾燥機 24時間セキュリティ -
宅配ボックス ペット相談可 - 二人入居可 -
設備 エアコン・給湯・オートロック・バルコニー・バス・トイレ別・トイレ・収納スペース・洗濯機置場・室内洗濯機置き場・シャワー・エレベーター・洗面台・浴室乾燥機・宅配BOX・駐輪場・クローゼット・防犯カメラ・バイク置き場・シューズボックス・光ファイバー(ブロードバンド)・インターネット対応 
リフォーム履歴 -
リノベーション履歴 -
備考 24時間駆けつけサービス 2年毎16500円/室内清掃費用借主負担(退去時)/駐輪場(利用時):利用料等借主負担/バイク置場(利用時):利用料等借主負担(現在空きなし)/短期解約違約金有(1年未満の解約は賃料の2ヶ月分)・賃貸保証等:加入要(月額賃料等の50%(初回保証料)、2年目以降は1万円/年)・鍵交換代:あり33,000円~・オンラインで申込から契約手続き、LINEでのご相談も可能です/当物件は初期費用分割払い可(クレジットカード決済も可)/お客様のご希望に合わせた方法(店頭、オンライン等)で物件をご提案いたします・バイク置場:有・駐輪場:有/抗菌費用 13200円 
特記事項 保証人不要/代行 ・初期費用カード決済可

省エネ性能

エネルギー消費性能 -
断熱性能 -
目安光熱費 -

東京都文京区関口1丁目 周辺地図情報

地図
※地図上に表示される物件の位置は付近住所に所在することを表すものであり、実際の物件所在地とは異なる場合がございます。
   正確な物件所在地は、取扱い不動産会社にお問い合わせください。
お問い合わせ先
ソレイユ新宿店 (株)ソレイユ
アピールポイント
☆当店の強みをお伝えします☆①クレジットカードの初期費用分割払いを、喜んでお受けいたします(クレジットカード以外もOK)②他社様がネットに掲載されている物件は、全てお調べし、【好条件】でご紹介いたします他社様で「お申込み」された物件でも、【好条件】でご紹介できる場合がございます③「審査が不安…」「保証人がいない…」「値段交渉をして欲しい…」などなど、どのようなご条件でも、遠慮なくご相談いただけます④ご検討されている「エリア」「沿線」が「広範囲」「複数」でも、一度で漏れなくお探しいただけますポータルサイトや他社サイトで気になるお部屋がございましたらお気軽にご相談くださいお客様のご来店を心よりお待ちしております

不動産会社情報

お問い合わせ先 商号:ソレイユ新宿店 (株)ソレイユ
免許番号:国土交通大臣免許(5)第7031号
所在地:新宿区新宿3丁目22-11RSビル 7階
TEL:03-5369-2422
取引態様:仲介
管理コード:69172939-1
所属協会など:(公社)全日本不動産協会会員、不動産公正取引協議会加盟
共有する
QRコード
お問い合わせ先
ソレイユ新宿店 (株)ソレイユ

    文京区の暮らしデータ

    人口などの統計情報

    世帯数 133564世帯
    人口総数 232177人
    転入者数 23087人
    転入率(人口1000人当たり)
    99.44人
    転出者数 20326人
    転出率(人口1000人当たり)
    87.55人
    土地平均価格
    住宅地
    1119571円/m2
    商業地
    1933636円/m2

    結婚・育児の助成金

    子育て関連の独自の取り組み (1)おうち家事・育児サポート事業(区が指定した事業者の家事・育児サポートを一定の負担で利用できる[おうち・家事育児サポート券]を希望者に配布。満3歳未満の乳幼児を養育する世帯が対象)。(2)ひとり親家庭子育て訪問支援券(区が指定した事業者のベビーシッターサービスを一定の負担で利用できる[子育て訪問支援券])を希望者に配付。(3)ネウボラ事業(妊娠から出産、子育て期にわたる切れ目ない支援を行う妊娠・出産包括支援事業)。(4)文京版スターティング・ストロング・プロジェクト(区教育センターを中心とした医師、教員、心理職等で構成された専門家チームが、区内の幼稚園・保育園等を訪問し、職員と協働して子どもに専門的発達支援を行い、子どもたちの健やかな育ちを支える)。
    出産祝い なし
    公立保育所数 19所(うち0歳児保育を実施している保育所:14所)
    私立保育所数 77所(うち0歳児保育を実施している保育所:67所)
    保育所入所待機児童数 2人
    認定こども園数 1園 預かり保育実施園数 公立:10園 私立:14園
    学校給食 【小学校】完全給食【中学校】完全給食
    公立中学校の学校選択制 実施(新入学時又は他市区町村からの転入時[一人につき一度]のみ)
    子ども・学生等医療費助成<通院>対象年齢 18歳3月末まで 子ども・学生等医療費助成<入院>対象年齢 18歳3月末まで

    文京区の治安・ごみ収集情報

    公共料金・インフラ

    ガス料金(22m3使用した場合の月額) 東京瓦斯株式会社(東京地区等)3926円
    水道料金(口径20mmで20m3の月額) 東京都水道局2816円
    下水道料金(20m3を使用した場合の月額) 東京都下水道局2068円
    下水道普及率 100.0%

    安心・安全

    建物火災出火件数 61件
    人口10000人当たり
    2.54件
    刑法犯認知件数 1104件
    人口1000人当たり
    4.60件
    ハザード・防災マップ あり

    医療

    一般病院総数 9ヶ所
    一般診療所総数 309ヶ所
    小児科医師数 253人
    小児人口10000人当たり
    85.84人
    産婦人科医師数 159人
    15~49歳女性人口1万人当たり
    27.49人
    介護保険料基準額(月額) 6107円

    ごみ

    家庭ごみ収集(可燃ごみ) 無料
    備考
    1回当たりに45リットル袋で4袋を超えるごみは有料。
    家庭ごみの分別方式 3分別9種〔可燃ごみ 不燃ごみ 資源(新聞、雑誌、ダンボール、雑がみ、ビン、カン、ペットボトル)〕 拠点回収:資源(紙パック 乾電池 発泡スチロール食品トレイ 衣類 プラスチック製ボトル容器 インクカートリッジ 蛍光管 水銀使用計器類、携帯電話、スマートフォン)
    家庭ごみの戸別収集 一部実施(訪問収集)
    粗大ごみ収集 あり
    備考
    有料。事前申込制。
    生ごみ処理機助成金制度 あり
    上限金額
    20000円
    上限比率
    50.0%
    暮らしデータ提供元:生活ガイド.com
    ※行政機関により公表していない地域及びデータがございます。東京23区以外の政令指定都市は、市全体のデータとして表示しています。
    ※提供データには細心の注意を払っておりますが、調査後に変更がある場合があります。 最新の情報につきましては各市区役所までお問い合わせいただくか、自治体HPなどをご確認ください。
    OCN×ドコモ光新規お申込みで合計最大137,280円相当おトク!特典の内訳・適用条件など詳細はこちら

    文京区内の各駅の住みやすさ

    他のエリアから探す

    文京区の詳細地域から賃貸物件を探す

    大塚音羽春日小石川後楽小日向水道関口千石千駄木西片根津白山本駒込本郷向丘目白台弥生湯島

    近辺の市区から探す

    川口市千代田区中央区港区新宿区台東区墨田区江東区品川区目黒区世田谷区渋谷区中野区杉並区豊島区北区荒川区板橋区練馬区足立区葛飾区江戸川区

    周辺の駅から探す

    東京メトロ有楽町線
    要町池袋東池袋護国寺江戸川橋飯田橋市ケ谷麹町永田町
    東京メトロ東西線
    中野落合高田馬場早稲田神楽坂飯田橋九段下竹橋大手町

    東京都文京区で他のジャンルから探す


    掲載情報の著作権は提供元企業等に帰属します。
    Copyright:(C) 2025 At Home Co.,Ltd
    アプリで簡単 物件探し 大手不動産サイトの情報から一括検!プッシュ通知で物件を見逃さない
    App Storeからダウンロード Google Playで手に入れよう QRコード