アプリで簡単 物件探し 通知 共有 アプリならではの機能を使ってみる
賃貸マンション

パレスクラシーゼ 熊谷駅 2LDK 賃貸(賃貸マンション・アパート)

情報提供元
アットホーム
パレスクラシーゼ
賃料 7万円  (管理費等:3000円)
礼金・敷金 なし / なし 保証金/敷引・償却 なし / -
交通
所在地 埼玉県熊谷市筑波3丁目周辺地図
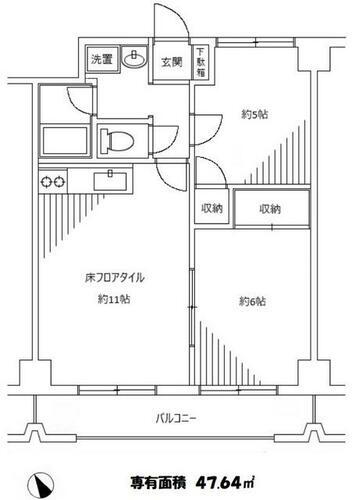
間取り 2LDK 専有面積 47.64m2
築年月 1989年9月 築年数 築36年4ヶ月
おすすめポイント
二人入居可・高齢者相談・ルームシェア可

詳細情報

賃料 7万円 管理費等 3000円
敷金 なし 礼金 なし
保証金 なし 敷引・償却 -
更新料 新賃料の1ヶ月分 契約期間 2年
カード決済 -
所在地 埼玉県熊谷市筑波3丁目周辺地図
交通
  • 湘南新宿ライン(前橋~小田原) 熊谷駅 徒歩3分乗換案内
  • JR高崎線 熊谷駅 徒歩3分乗換案内
  • JR上越新幹線 熊谷駅 徒歩3分乗換案内
建物名 パレスクラシーゼ 
間取り 2LDK(洋 6・5) 築年月(築年数) 1989年9月(築36年4ヶ月)
専有面積 47.64㎡ 所在階/階数 3階/6階建
建物構造 RC  方位 南 
現況 空  駐車場 空無    近くの駐車場を探す
入居可能時期 即時 住宅保険 ありみらい少額短期保険 2年 9000円
情報提供元 アットホーム[6988505910] 情報公開日
情報更新日 - 次回更新予定日 随時

設備など

2階以上 最上階 - 角部屋 -
駐車場(近隣含) エアコン付き バス・トイレ別
室内洗濯機置き場 追焚機能 - オートロック付き -
モニタ付インターホン - フローリング - バルコニー -
ガスコンロ可 浴室乾燥機 - 24時間セキュリティ -
宅配ボックス ペット相談可 - 二人入居可
設備 エアコン・バス・トイレ別・収納スペース・洗濯機置場・室内洗濯機置き場・エレベーター・都市ガス・ガスコンロ可・温水洗浄便座・宅配BOX・クローゼット・洗面所独立・コンロ2口以上・シューズボックス 
リフォーム履歴 -
リノベーション履歴 -
備考 外国籍、生活保護、高齢者、相談ハウスクリーニング代(入居時)55,000円内見・申込はイタンジから・賃貸保証等:加入要(Jリース(大手法人相談可能)初回50%/年1万円/引落手数料330円)・仲介手数料:不要 
特記事項 二人入居可・高齢者相談・ルームシェア可

省エネ性能

エネルギー消費性能 -
断熱性能 -
目安光熱費 -

埼玉県熊谷市筑波3丁目 周辺地図情報

地図
※地図上に表示される物件の位置は付近住所に所在することを表すものであり、実際の物件所在地とは異なる場合がございます。
   正確な物件所在地は、取扱い不動産会社にお問い合わせください。

不動産会社情報

お問い合わせ先 商号:(株)ホンネ不動産
免許番号:東京都知事免許(4)第90129号
所在地:新宿区西新宿7丁目7-27第一守徳ビル501号
TEL:03-5937-4065
取引態様:仲介
管理コード:
所属協会など:(公社)全日本不動産協会会員、(公社)首都圏不動産公正取引協議会加盟
共有する
QRコード

    熊谷市の暮らしデータ

    人口などの統計情報

    世帯数 79976世帯
    人口総数 192074人
    転入者数 8285人
    転入率(人口1000人当たり)
    43.13人
    転出者数 7643人
    転出率(人口1000人当たり)
    39.79人
    土地平均価格
    住宅地
    45371円/m2
    商業地
    99257円/m2

    結婚・育児の助成金

    子育て関連の独自の取り組み (1)誕生祝金支給事業(熊谷市に誕生したお子様の保護者の方に、誕生祝金として3万円を支給)。(2)子育て応援自転車おでかけ事業(幼児2人同乗用自転車の購入者に購入費の一部を補助)。(3)ブックスタート事業:生後4~5ヶ月児を対象とした育児教室にて、ボランティアによる絵本の読み聞かせと赤ちゃんにおすすめの絵本等をプレゼントしている。
    出産祝い あり
    公立保育所数 12所(うち0歳児保育を実施している保育所:12所)
    私立保育所数 23所(うち0歳児保育を実施している保育所:23所)
    保育所入所待機児童数 0人
    認定こども園数 7園 預かり保育実施園数 公立:0園 私立:9園
    学校給食 【小学校】完全給食【中学校】完全給食
    公立中学校の学校選択制 未実施
    子ども・学生等医療費助成<通院>対象年齢 18歳3月末まで 子ども・学生等医療費助成<入院>対象年齢 18歳3月末まで

    熊谷市の治安・ごみ収集情報

    公共料金・インフラ

    ガス料金(22m3使用した場合の月額) 東京瓦斯株式会社(東京地区等)3926円
    武州瓦斯株式会社4281円
    水道料金(口径20mmで20m3の月額) 熊谷市3201円
    下水道料金(20m3を使用した場合の月額) 熊谷市2585円
    下水道普及率 49.4%

    安心・安全

    建物火災出火件数 31件
    人口10000人当たり
    1.59件
    刑法犯認知件数 1338件
    人口1000人当たり
    6.88件
    ハザード・防災マップ あり

    医療

    一般病院総数 10ヶ所
    一般診療所総数 149ヶ所
    小児科医師数 33人
    小児人口10000人当たり
    16.33人
    産婦人科医師数 7人
    15~49歳女性人口1万人当たり
    2.05人
    介護保険料基準額(月額) 6100円

    ごみ

    家庭ごみ収集(可燃ごみ) 無料
    備考
    -
    家庭ごみの分別方式 4分別13種〔可燃ごみ 資源物(新聞紙、書籍類、ダンボール、飲料用紙パック、紙製容器包装) 燃えないもの(カン[各種カン、ガスライター]、ビン[各種ビン、スプレーカン・カートリッジボンベ等]、ペットボトル、不燃ごみ) 家電製品〕 拠点回収:廃蛍光管 廃乾電池 体温計(電子体温計を除く) 加熱式たばこ 電子たばこ
    家庭ごみの戸別収集 一部実施(障がい者、高齢者、要介護者等の自力で集積所へ搬出できない方が対象)
    粗大ごみ収集 あり
    備考
    1回/週、集積所での通常収集。有料事前申込制の有料リクエスト収集あり。
    生ごみ処理機助成金制度 あり
    上限金額
    30000円
    上限比率
    50.0%
    暮らしデータ提供元:生活ガイド.com
    ※行政機関により公表していない地域及びデータがございます。東京23区以外の政令指定都市は、市全体のデータとして表示しています。
    ※提供データには細心の注意を払っておりますが、調査後に変更がある場合があります。 最新の情報につきましては各市区役所までお問い合わせいただくか、自治体HPなどをご確認ください。
    OCN×ドコモ光新規お申込みで合計最大137,280円相当おトク!特典の内訳・適用条件など詳細はこちら

    熊谷市内の各駅の住みやすさ

    他のエリアから探す

    熊谷市の詳細地域から賃貸物件を探す

    赤城町曙町池上石原伊勢町今井榎町円光大麻生大原押切小曽根柿沼籠原南冑山鎌倉町上根上之河原町銀座久下葛和田久保島肥塚江南中央小島桜木町桜町佐谷田下恩田下奈良拾六間末広須賀広瀬南千代善ヶ島高柳田島玉井玉井南中央月見町筑波戸出中恩田中曽根中奈良中西新島新堀新堀新田西城西野箱田原島樋春平戸広瀬船木台別府星川本石本町万吉万平町三ヶ尻美土里町箕輪見晴町宮町宮前町宮本町村岡妻沼妻沼中央妻沼東八ツ口弥藤吾弥生

    近辺の市区から探す

    邑楽郡千代田町邑楽郡大泉町行田市東松山市深谷市比企郡滑川町比企郡嵐山町

    周辺の駅から探す

    湘南新宿ライン高海
    本庄岡部深谷籠原熊谷行田吹上北鴻巣鴻巣
    高崎線
    鴻巣北鴻巣吹上行田熊谷籠原深谷岡部本庄
    上越新幹線
    東京上野大宮熊谷本庄早稲田高崎上毛高原

    埼玉県熊谷市で他のジャンルから探す


    掲載情報の著作権は提供元企業等に帰属します。
    Copyright:(C) 2025 At Home Co.,Ltd
    アプリで簡単 物件探し 大手不動産サイトの情報から一括検!プッシュ通知で物件を見逃さない
    App Storeからダウンロード Google Playで手に入れよう QRコード