アプリで簡単 物件探し 通知 共有 アプリならではの機能を使ってみる
賃貸一戸建て

群馬県高崎市島野町 2K 賃貸(賃貸マンション・アパート)

情報提供元
アットホーム
賃料 3.5万円  (管理費等:-)
礼金・敷金 なし / 5万円 保証金/敷引・償却 なし / -
交通
  • JR高崎線倉賀野駅徒歩4700m
所在地 群馬県高崎市島野町周辺地図
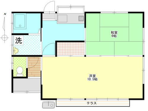
間取り 2K 専有面積 43.88m2
築年月 1982年11月 築年数 築43年2ヶ月
おすすめポイント
閑静な住宅街・駐車場2台分・事務所使用可・保証人不要/代行
お問い合わせ先
不動産のコーエイ((株)興栄)
お問い合わせ先
不動産のコーエイ((株)興栄)

詳細情報

賃料 3.5万円 管理費等 -
敷金 5万円 礼金 なし
保証金 なし 敷引・償却 -
更新料 - 契約期間 2年
カード決済 -
所在地 群馬県高崎市島野町周辺地図
交通
  • JR高崎線倉賀野駅徒歩4700m
建物名  
間取り 2K(和 6 洋 10.5 K 3.5) 築年月(築年数) 1982年11月(築43年2ヶ月)
専有面積 43.88㎡ 所在階/階数 平屋建て
建物構造 木造  方位 南 
現況 空  駐車場 有 無料
入居可能時期 即時 住宅保険 あり日本共済 2年 15000円
情報提供元 アットホーム[6987143416] 情報公開日
情報更新日 - 次回更新予定日 随時

設備など

2階以上 - 最上階 - 角部屋 -
駐車場(近隣含) エアコン付き バス・トイレ別
室内洗濯機置き場 追焚機能 - オートロック付き -
モニタ付インターホン - フローリング - バルコニー -
ガスコンロ可 浴室乾燥機 - 24時間セキュリティ -
宅配ボックス - ペット相談可 - 二人入居可 -
設備 エアコン・バス・トイレ別・トイレ・収納スペース・洗濯機置場・室内洗濯機置き場・洗面所・シャワー・プロパンガス・ガスコンロ可・テラス・専用庭・浴室に窓あり・リフォーム 
リフォーム履歴 ■水回り
2024年06月実施
トイレ
■内装
2024年06月実施
全室クロス張替え/床(フローリング等)
※実施年月は、施工箇所の中で最も古いものを表示しています
リノベーション履歴 -
備考 ◇貸主負担でエアコン1台新設致します。◇浄化槽の保守管理費の負担があります。・賃貸保証等:加入要(初回保証料:賃料の50%、月額保証料:賃料の1.0%) 
特記事項 閑静な住宅街・駐車場2台分・事務所使用可・保証人不要/代行

省エネ性能

エネルギー消費性能 -
断熱性能 -
目安光熱費 -

群馬県高崎市島野町 周辺地図情報

地図
※地図上に表示される物件の位置は付近住所に所在することを表すものであり、実際の物件所在地とは異なる場合がございます。
   正確な物件所在地は、取扱い不動産会社にお問い合わせください。
お問い合わせ先
不動産のコーエイ((株)興栄)
アピールポイント
島野町のリフォーム済の貸戸建です。駐車場2台付です。

不動産会社情報

お問い合わせ先 商号:不動産のコーエイ((株)興栄)
免許番号:群馬県知事免許(8)第5292号
所在地:高崎市新保町1719
TEL:027-353-1777
取引態様:仲介
管理コード:
所属協会など:(公社)全日本不動産協会会員、(公社)首都圏不動産公正取引協議会加盟
共有する
QRコード
お問い合わせ先
不動産のコーエイ((株)興栄)

高崎市の暮らしデータ

人口などの統計情報

世帯数 160565世帯
人口総数 367861人
転入者数 14201人
転入率(人口1000人当たり)
38.60人
転出者数 13039人
転出率(人口1000人当たり)
35.45人
土地平均価格
住宅地
51829円/m2
商業地
138042円/m2

結婚・育児の助成金

子育て関連の独自の取り組み 【高崎市子育てなんでもセンター】子育て中の人や妊娠中の人が、1ヶ所で子育て支援、就労支援、託児等のさまざまな相談ができ、必要な支援を受けられる子育て支援の拠点であり、安心して子どもを産み、育てることができるよう、市・関係機関・NPO団体等が一体となって運営している。特に、同センター内にある託児施設「高崎キッズサポートかしの木」は、子育て中のリフレッシュとして、買い物や映画鑑賞等の際に気軽な利用が可能で、大変好評を頂いている。さらに、人口増加地域である群馬地域において、託児施設「高崎キッズサポートけやき」を開設し、子育て環境の充実を図っている(利用料:1時間300円)。
出産祝い あり
公立保育所数 21所(うち0歳児保育を実施している保育所:21所)
私立保育所数 32所(うち0歳児保育を実施している保育所:32所)
保育所入所待機児童数 0人
認定こども園数 53園 預かり保育実施園数 公立:8園 私立:7園
学校給食 【小学校】完全給食【中学校】完全給食
公立中学校の学校選択制 一部実施
子ども・学生等医療費助成<通院>対象年齢 18歳3月末まで 子ども・学生等医療費助成<入院>対象年齢 18歳3月末まで

高崎市の治安・ごみ収集情報

公共料金・インフラ

ガス料金(22m3使用した場合の月額) 東京瓦斯株式会社(群馬地区)3648円
東京瓦斯株式会社(群馬南地区)3451円
水道料金(口径20mmで20m3の月額) 高崎市(倉渕地域)1450円
高崎市(吉井地域)2678円
高崎市(新町地域)2075円
高崎市(榛名地域)2408円
高崎市(箕郷地域)2311円
高崎市(群馬地域)1870円
高崎市(高崎地域)2506円
下水道料金(20m3を使用した場合の月額) 高崎市(吉井地域)2310円
高崎市(新町地域)2090円
高崎市(榛名地域)2420円
高崎市(箕郷地域)2311円
高崎市(群馬地域)2090円
高崎市(高崎地域)2173円
下水道普及率 77.3%

安心・安全

建物火災出火件数 52件
人口10000人当たり
1.39件
刑法犯認知件数 2200件
人口1000人当たり
5.90件
ハザード・防災マップ あり

医療

一般病院総数 24ヶ所
一般診療所総数 353ヶ所
小児科医師数 61人
小児人口10000人当たり
14.07人
産婦人科医師数 29人
15~49歳女性人口1万人当たり
4.17人
介護保険料基準額(月額) 6592円

ごみ

家庭ごみ収集(可燃ごみ) 無料
備考
-
家庭ごみの分別方式 【高崎地域・吉井地域・榛名地域・箕郷地域・群馬地域・倉渕地域】3分別16種〔可燃ごみ 不燃ごみ 資源ごみ(飲料缶、びん類[無色透明のびん、茶色のびん、その他の色びん]、ペットボトル、古紙類[新聞紙、段ボール、紙パック、雑誌・古本、雑紙、シュレッダー]、危険物[スプレー缶・カセットボンベ・ライター、乾電池、蛍光灯])〕 【新町地域】3分別17種〔可燃ごみ 不燃ごみ 資源ごみ(飲料缶、びん類[無色透明のびん、茶色のびん、その他の色びん]、ペットボトル、古紙類[新聞紙、段ボール、紙パック、雑誌・古本、雑紙、シュレッダー]、危険物[スプレー缶・カセットボンベ・ライター、乾電池、蛍光灯]、白色トレイ)〕
家庭ごみの戸別収集 一部実施(高齢者ごみ出しSOS)
粗大ごみ収集 あり
備考
有料。戸別収集。事前申込制。
生ごみ処理機助成金制度 あり
上限金額
30000円
上限比率
50.0%
暮らしデータ提供元:生活ガイド.com
※行政機関により公表していない地域及びデータがございます。東京23区以外の政令指定都市は、市全体のデータとして表示しています。
※提供データには細心の注意を払っておりますが、調査後に変更がある場合があります。 最新の情報につきましては各市区役所までお問い合わせいただくか、自治体HPなどをご確認ください。
OCN×ドコモ光新規お申込みで合計最大137,280円相当おトク!特典の内訳・適用条件など詳細はこちら

高崎市内の各駅の住みやすさ

他のエリアから探す

高崎市の詳細地域から賃貸物件を探す

相生町赤坂町旭町足門町東町あら町飯玉町飯塚町石原町井出町稲荷町井野町岩押町岩鼻町請地町歌川町江木町大沢町大橋町大八木町沖町貝沢町鍛冶町片岡町嘉多町金古町上大島町上大類町上小鳥町上小塙町上里見町上佐野町上滝町上豊岡町上中居町上並榎町上和田町菊地町北久保町北通町北原町北双葉町木部町京目町倉賀野町栗崎町剣崎町小八木町神戸町栄町鞘町新後閑町柴崎町芝塚町島野町下大類町下小鳥町下小塙町下斎田町下里見町下佐野町下滝町下豊岡町下中居町下之城町下室田町下横町下和田町宿大類町正観寺町昭和町新田町新保田中町新保町新町末広町菅谷町砂賀町住吉町高砂町高関町高浜町竜見町田町台新田町台町塚田町筑縄町鶴見町寺尾町天神町稲荷台町通町常盤町問屋町問屋町西中泉町中居町中大類町中尾町中里見町中里町中豊岡町並榎町成田町西国分町西島町西横手町日光町乗附町鼻高町浜川町浜尻町東貝沢町東国分町東中里町引間町聖石町日高町檜物町福島町藤塚町双葉町保渡田町本郷町町屋町箕郷町生原箕郷町柏木沢箕郷町上芝箕郷町下芝箕郷町富岡箕郷町西明屋箕郷町東明屋箕郷町矢原三ツ寺町緑町南新波町南大類町南町宮原町宮元町棟高町元紺屋町元島名町本町八島町矢島町八千代町矢中町柳川町山田町山名町八幡町弓町吉井町池吉井町石神吉井町岩井吉井町小串吉井町小暮吉井町塩川吉井町下長根吉井町神保吉井町多胡吉井町長根吉井町南陽台吉井町本郷吉井町馬庭吉井町矢田吉井町吉井吉井町吉井川四ツ屋町寄合町羅漢町連雀町若松町我峰町綿貫町和田多中町和田町

近辺の市区から探す

前橋市藤岡市富岡市安中市甘楽郡甘楽町佐波郡玉村町


掲載情報の著作権は提供元企業等に帰属します。
Copyright:(C) 2025 At Home Co.,Ltd
アプリで簡単 物件探し 大手不動産サイトの情報から一括検!プッシュ通知で物件を見逃さない
App Storeからダウンロード Google Playで手に入れよう QRコード