アプリで簡単 物件探し 通知 共有 アプリならではの機能を使ってみる
中古マンション

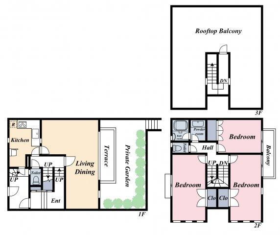
ガーデンハウス湘南 1階 3LDK

情報提供元
SUUMO
ガーデンハウス湘南
価格 3980万円  (管理費等:2万3730円/月(委託(巡回)))
修繕積立金 28,740円
交通
所在地 神奈川県藤沢市辻堂東海岸2周辺地図
間取り 3LDK 専有面積 119.74m2(36.22坪)(壁芯)
所在階/階数 1階/2階建 方位 南東
築年月 1987年3月 築年数 築38年8ヶ月
おすすめポイント
管理人巡回
物件を見たい、物件や住環境の詳しい情報やローン相談など、
お問い合わせ先
プラザホームズ(株)

詳細情報

価格 3980万円 管理費等 2万3730円/月(委託(巡回))
駐車場 敷地内(0円/月) 修繕積立金 28,740円
所在地 神奈川県藤沢市辻堂東海岸2周辺地図
交通
  • 小田急江ノ島線 鵠沼海岸駅 徒歩17分乗換案内
物件名 ガーデンハウス湘南
築年月(築年数) 1987年3月(築38年8ヶ月) 間取り 3LDK
総戸数 20戸 専有面積 119.74m2(36.22坪)(壁芯)
所在階/階数 1階/2階建 バルコニー面積
方位 南東 建物構造 RC
管理形態 委託管理
維持費等 土地権利 所有権
用途地域 2種低層 借地期間・地代
現況 引渡可能年月 相談
情報提供元 SUUMO [030Z78624400] 情報公開日
情報更新日 次回更新予定日 随時

設備など

ペット相談可 - 即入居可 - 南向き -
角部屋 - 駐車場空き有り トランクルーム -
オートロック - 宅配ボックス - 浴室乾燥機 -
床暖房 - ウォークインクローゼット - 管理人常駐 -
最上階 - 2階以上 - タワーマンション -
設備 バルコニー・テラス・庭・ルーフバルコニー・専用庭
リフォーム履歴 -
リノベーション履歴 -
備考 <物件名>ガーデンハウス湘南/<駐車場>敷地内/委託(巡回)/<土地権利>所有権/<間取り>3LDK/<特徴>1987年(昭和62年)3月竣工。総戸数20戸からなるマンション(タウンハウス)、2沿線以上利用可・東南向き・ルーフバルコニー・テラス・専用庭
販売戸数:1戸/管理費等帯:23730円/修繕積立金帯:28740円
特記事項 管理人巡回

省エネ性能

エネルギー消費性能 -
断熱性能 -
目安光熱費 -

神奈川県藤沢市辻堂東海岸2 周辺地図情報

地図
※地図上に表示される物件の位置は付近住所に所在することを表すものであり、実際の物件所在地とは異なる場合がございます。
   正確な物件所在地は、取扱い不動産会社にお問い合わせください。
物件を見たい、物件や住環境の詳しい情報やローン相談など、
お問い合わせ先
プラザホームズ(株)

不動産会社情報

お問い合わせ先 商号:プラザホームズ(株)
免許番号:東京都知事(4)第086890号
所在地:東京都港区麻布台1-9-12
TEL:03-3588-0131
取引態様:一般媒介
管理コード:220447
共有する
QRコード
物件を見たい、物件や住環境の詳しい情報やローン相談など、
お問い合わせ先
プラザホームズ(株)

藤沢市の暮らしデータ

人口などの統計情報

世帯数 192960世帯
人口総数 445172人
転入者数 19958人
転入率(人口1000人当たり)
44.83人
転出者数 18277人
転出率(人口1000人当たり)
41.06人
土地平均価格
住宅地
230734円/m2
商業地
420444円/m2

結婚・育児の助成金

子育て関連の独自の取り組み 神奈川県が運用しているスマートフォンの子育て情報アプリを活用した「子育てアプリふじさわ」により子育て情報を配信している。
出産祝い あり
公立保育所数 14所(うち0歳児保育を実施している保育所:12所)
私立保育所数 75所(うち0歳児保育を実施している保育所:75所)
保育所入所待機児童数 11人
認定こども園数 2園 預かり保育実施園数 公立:- 私立:29園
学校給食 【小学校】完全給食【中学校】家庭弁当等との選択制/デリバリー形式[運搬:ランチボックス、内容:完全給食]
公立中学校の学校選択制 一部実施(特定地域選択制)
子ども・学生等医療費助成<通院>対象年齢 18歳3月末まで 子ども・学生等医療費助成<入院>対象年齢 18歳3月末まで

藤沢市の治安・ごみ収集情報

公共料金・インフラ

ガス料金(22m3使用した場合の月額) 東京瓦斯株式会社(東京地区等)3926円
水道料金(口径20mmで20m3の月額) 神奈川県営水道2988円
下水道料金(20m3を使用した場合の月額) 藤沢市2487円
下水道普及率 96.1%

安心・安全

建物火災出火件数 64件
人口10000人当たり
1.46件
刑法犯認知件数 2101件
人口1000人当たり
4.81件
ハザード・防災マップ あり

医療

一般病院総数 14ヶ所
一般診療所総数 437ヶ所
小児科医師数 76人
小児人口10000人当たり
13.47人
産婦人科医師数 39人
15~49歳女性人口1万人当たり
4.41人
介護保険料基準額(月額) 6300円

ごみ

家庭ごみ収集(可燃ごみ) 有料
備考
指定ごみ袋有料(可燃・不燃ごみのみ)。
家庭ごみの分別方式 3分別20種〔可燃ごみ 不燃ごみ(蛍光管、ガスボンベ・スプレー、電池類、テープ類、ライター、水銀体温計、加熱式たばこ) 資源(新聞・折込広告、本・雑紙、段ボール、飲料用紙パック、古布類、ビン、カン・鍋類、ペットボトル、廃食用油、プラスチック製容器包装、商品プラスチック、剪定枝)〕
家庭ごみの戸別収集 実施(市全域で実施。集合住宅については敷地内の専用集積所)
粗大ごみ収集 あり
備考
有料。大型ごみ500円/点。特別大型ごみ1,000円/点。
生ごみ処理機助成金制度 あり
上限金額
30000円
上限比率
75.0%

藤沢市の住まいの給付金

中古購入

利子補給制度 なし
補助/助成金制度 なし

増築・改築・改修

利子補給制度 なし
補助/助成金制度 あり
上限金額
(1)6万円(2)96万円(3)20万円(4)5万円
備考
(1)【木造住宅耐震診断補助金】耐震診断費用の1/2かつ上限6万円。(2)【木造住宅耐震改修工事補助金】(a)耐震改修工事等費用の1/2かつ上限90万円。(b)耐震診断に要した費用の1/2かつ上限6万円。(3)【木造住宅耐震シェルター等設置事業補助金】耐震シェルター等設置費用の1/2かつ上限20万円。(4)【住宅リフォーム補助金】20万円以上(消費税抜き)の住宅等リニューアル工事を市内事業者へ発注した方へ一律5万円。
暮らしデータ提供元:生活ガイド.com
※行政機関により公表していない地域及びデータがございます。東京23区以外の政令指定都市は、市全体のデータとして表示しています。
※提供データには細心の注意を払っておりますが、調査後に変更がある場合があります。 最新の情報につきましては各市区役所までお問い合わせいただくか、自治体HPなどをご確認ください。

この物件を見た人はこんな物件も見ています

OCN×ドコモ光新規お申込みで合計最大137,280円相当おトク!特典の内訳・適用条件など詳細はこちら

藤沢市内の各駅の住みやすさ

住宅ローンの返済額一覧

物件価格 3980万円に対して、年率 で、頭金 の場合
↓ボーナス 35年間 30年間 25年間 20年間 15年間 10年間
0万円 90,335円/月 104,117円/月 123,425円/月 152,400円/月 200,714円/月 297,370円/月
5万円 81,250円/月 95,142円/月 114,558円/月 143,642円/月 192,062円/月 288,825円/月
10万円 72,164円/月 86,166円/月 105,691円/月 134,883円/月 183,411円/月 280,280円/月
15万円 63,079円/月 77,190円/月 96,824円/月 126,124円/月 174,759円/月 271,735円/月
20万円 53,993円/月 68,215円/月 87,958円/月 117,366円/月 166,108円/月 263,190円/月
25万円 ローン不可 59,239円/月 79,091円/月 108,607円/月 157,456円/月 254,645円/月
30万円 ローン不可 ローン不可 70,224円/月 99,848円/月 148,805円/月 246,099円/月
支払い利息合計 3,155,190円~ 2,697,840円~ 2,242,900円~ 1,788,480円~ 1,337,850円~ 890,620円~
※元利均等返済方式で試算しています。 「円」の単位以下の端数金額は「切り捨て」として計算しております。
※金利は、固定金利として計算しております。
※上記の住宅ローン返済額一覧は、あくまで試算であり、将来の金利動向により、実際のご返済額とは異なります。
※ボーナス支払総額が総支払額の50%を超えている場合、上記の表では「ローン不可」となります。
※住宅ローン返済額一覧の数値は、住宅ローンのお申し込みやご融資をお約束するものではございません。
物件を見たい、物件や住環境の詳しい情報やローン相談など、
お問い合わせ先
プラザホームズ(株)

掲載情報の著作権は提供元企業等に帰属します。
Copyright:(C) 2025 Recruit Co., Ltd.
アプリで簡単 物件探し 大手不動産サイトの情報から一括検!プッシュ通知で物件を見逃さない
App Storeからダウンロード Google Playで手に入れよう QRコード