アプリで簡単 物件探し 通知 共有 アプリならではの機能を使ってみる
中古マンション

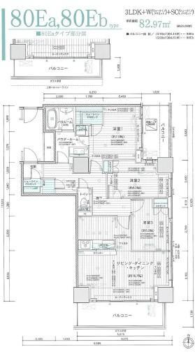
サンコリーヌタワー横須賀中央駅前 211号室 2階 3LDK

情報提供元
SUUMO
サンコリーヌタワー横須賀中央駅前 211号室
価格 4300万円  (管理費等:1万6590円/月(委託(常駐)))
修繕積立金 8,290円
交通
所在地 神奈川県横須賀市若松町3周辺地図
間取り 3LDK 専有面積 82.97m2(25.09坪)(壁芯)
所在階/階数 2階/地上26階地下2階建 方位
築年月 2015年5月 築年数 築10年6ヶ月
おすすめポイント
■京浜急行本線「横須賀中央」駅から徒歩3分■人気の駅近タワーマンション■最寄駅の横須賀中央駅は商業施設もあり、人気エリアです■ウォークインクローゼットがございます■インターネット無料・24時間セキュリティシステム
ペット相談可・日当り良好・管理人常駐・浴室1坪以上
お問い合わせ先
ウスイホーム(株)馬堀海岸店
物件を見たい、物件や住環境の詳しい情報やローン相談など、
お問い合わせ先
ウスイホーム(株)馬堀海岸店

詳細情報

価格 4300万円 管理費等 1万6590円/月(委託(常駐))
駐車場 空無 修繕積立金 8,290円
所在地 神奈川県横須賀市若松町3周辺地図
交通
物件名 サンコリーヌタワー横須賀中央駅前 211号室
築年月(築年数) 2015年5月(築10年6ヶ月) 間取り 3LDK
総戸数 279戸 専有面積 82.97m2(25.09坪)(壁芯)
所在階/階数 2階/地上26階地下2階建 バルコニー面積 13.7m2
方位 建物構造 RC
管理形態 委託管理
維持費等 土地権利 所有権
用途地域 1種中高 借地期間・地代
現況 引渡可能年月 即時
情報提供元 SUUMO [030Z78618123] 情報公開日
情報更新日 次回更新予定日 随時

設備など

ペット相談可 即入居可 南向き
角部屋 - 駐車場空き有り - トランクルーム -
オートロック - 宅配ボックス 浴室乾燥機
床暖房 - ウォークインクローゼット 管理人常駐
最上階 - 2階以上 タワーマンション
設備 バルコニー・トイレ・収納スペース・管理人常駐・洗面所・エレベーター・浴室乾燥機・ウォークインクローゼット・シャンプードレッサ・温水洗浄便座・システムキッチン・モニタ付インターホン・風呂・対面K・2面バルコニー・衣類乾燥機・複層ガラス・宅配BOX
リフォーム履歴 -
リノベーション履歴 -
備考 <物件名>サンコリーヌタワー横須賀中央駅前 211号室/<駐車場>空無/委託(常駐)/<土地権利>所有権/<間取り>3LDK/<特徴>京浜急行本線「横須賀中央」駅から徒歩3分の駅近タワーマンション!、年内引渡可・2沿線以上利用可・年度内引渡可・オーシャンビュー・スーパー 徒歩10分以内
販売戸数:1戸/管理費等帯:16590円/修繕積立金帯:8290円
特記事項 ペット相談可・日当り良好・管理人常駐・浴室1坪以上

省エネ性能

エネルギー消費性能 -
断熱性能 -
目安光熱費 -

神奈川県横須賀市若松町3 周辺地図情報

地図
※地図上に表示される物件の位置は付近住所に所在することを表すものであり、実際の物件所在地とは異なる場合がございます。
   正確な物件所在地は、取扱い不動産会社にお問い合わせください。
物件を見たい、物件や住環境の詳しい情報やローン相談など、
お問い合わせ先
ウスイホーム(株)馬堀海岸店

不動産会社情報

お問い合わせ先 商号:ウスイホーム(株)馬堀海岸店
免許番号:神奈川県知事(12)第010799号
所在地:神奈川県横須賀市馬堀海岸2-27-7
TEL:0120-938155
取引態様:媒介
管理コード:315576
共有する
QRコード
物件を見たい、物件や住環境の詳しい情報やローン相談など、
お問い合わせ先
ウスイホーム(株)馬堀海岸店

横須賀市の暮らしデータ

人口などの統計情報

世帯数 165101世帯
人口総数 383488人
転入者数 14290人
転入率(人口1000人当たり)
37.26人
転出者数 14911人
転出率(人口1000人当たり)
38.88人
土地平均価格
住宅地
108538円/m2
商業地
209091円/m2

結婚・育児の助成金

子育て関連の独自の取り組み (1)「子どもが欲しい」を応援。特定不妊治療費助成。不育症治療費助成(1回の治療費及び検査費30万円まで、1年度あたりの上限30万円)。(2)不育症判定検査費(1年度あたりの上限5万円)。(3)「妊娠中・出産後」の不安を解消のため、保健師・助産師による「こんにちは赤ちゃん訪問」の実施。
出産祝い なし
公立保育所数 8所(うち0歳児保育を実施している保育所:8所)
私立保育所数 23所(うち0歳児保育を実施している保育所:23所)
保育所入所待機児童数 6人
認定こども園数 31園 預かり保育実施園数 公立:0園 私立:-
学校給食 【小学校】完全給食【中学校】完全給食
公立中学校の学校選択制 一部実施(指定変更承認地域の場合学校を変更できる)
子ども・学生等医療費助成<通院>対象年齢 18歳3月末まで 子ども・学生等医療費助成<入院>対象年齢 18歳3月末まで

横須賀市の治安・ごみ収集情報

公共料金・インフラ

ガス料金(22m3使用した場合の月額) 東京瓦斯株式会社(東京地区等)3926円
水道料金(口径20mmで20m3の月額) 横須賀市2750円
下水道料金(20m3を使用した場合の月額) 横須賀市2670円
下水道普及率 98.3%

安心・安全

建物火災出火件数 54件
人口10000人当たり
1.39件
刑法犯認知件数 1505件
人口1000人当たり
3.88件
ハザード・防災マップ あり

医療

一般病院総数 12ヶ所
一般診療所総数 304ヶ所
小児科医師数 53人
小児人口10000人当たり
14.01人
産婦人科医師数 22人
15~49歳女性人口1万人当たり
3.42人
介護保険料基準額(月額) 6100円

ごみ

家庭ごみ収集(可燃ごみ) 無料
備考
-
家庭ごみの分別方式 4分別6種〔燃やせるごみ 容器包装プラスチック 缶・びん・ペットボトル 不燃ごみ(陶磁器類・ガラス、ライター、ガスボンベ)〕
家庭ごみの戸別収集 一部実施
粗大ごみ収集 あり
備考
有料。戸別収集。事前申込制。
生ごみ処理機助成金制度 あり
上限金額
30000円
上限比率
50.0%

横須賀市の住まいの給付金

中古購入

利子補給制度 なし
補助/助成金制度 あり
上限金額
35万円
備考
【子育てファミリー等応援住宅バンク補助金】中学校卒業前の子(妊娠中を含む)を持つ夫婦ともに50歳未満の世帯が「子育てファミリー等応援住宅バンク」の登録物件を購入した際の不動産売買代金、上限35万円。

増築・改築・改修

利子補給制度 なし
補助/助成金制度 あり
上限金額
(1)15万円(2)30万円(3)112.3万円
備考
(1)【子育てファミリー等応援住宅バンク補助金】補助率1/2、上限15万円。横須賀市に本拠を置く業者が施行する場合のみ限定。他要件あり。(2)【2世帯住宅リフォーム助成】リフォーム費用の1/2、上限30万円。横須賀市に本拠を置く業者が施工する場合のみ限定。他要件あり。(3)【木造住宅耐震補強工事等助成】木造住宅の耐震診断、設計、監理、改修に係る費用を助成する。
暮らしデータ提供元:生活ガイド.com
※行政機関により公表していない地域及びデータがございます。東京23区以外の政令指定都市は、市全体のデータとして表示しています。
※提供データには細心の注意を払っておりますが、調査後に変更がある場合があります。 最新の情報につきましては各市区役所までお問い合わせいただくか、自治体HPなどをご確認ください。

この物件を見た人はこんな物件も見ています

OCN×ドコモ光新規お申込みで合計最大137,280円相当おトク!特典の内訳・適用条件など詳細はこちら

横須賀市内の各駅の住みやすさ

住宅ローンの返済額一覧

物件価格 4300万円に対して、年率 で、頭金 の場合
↓ボーナス 35年間 30年間 25年間 20年間 15年間 10年間
0万円 98,642円/月 113,692円/月 134,774円/月 166,414円/月 219,170円/月 324,715円/月
5万円 89,556円/月 104,716円/月 125,907円/月 157,656円/月 210,519円/月 316,170円/月
10万円 80,471円/月 95,740円/月 117,041円/月 148,897円/月 201,867円/月 307,624円/月
15万円 71,385円/月 86,764円/月 108,174円/月 140,138円/月 193,216円/月 299,079円/月
20万円 62,300円/月 77,789円/月 99,307円/月 131,380円/月 184,564円/月 290,534円/月
25万円 53,215円/月 68,813円/月 90,440円/月 122,621円/月 175,913円/月 281,989円/月
30万円 ローン不可 59,837円/月 81,574円/月 113,862円/月 167,261円/月 273,444円/月
支払い利息合計 3,447,980円~ 2,947,480円~ 2,447,900円~ 1,951,840円~ 1,459,930円~ 972,020円~
※元利均等返済方式で試算しています。 「円」の単位以下の端数金額は「切り捨て」として計算しております。
※金利は、固定金利として計算しております。
※上記の住宅ローン返済額一覧は、あくまで試算であり、将来の金利動向により、実際のご返済額とは異なります。
※ボーナス支払総額が総支払額の50%を超えている場合、上記の表では「ローン不可」となります。
※住宅ローン返済額一覧の数値は、住宅ローンのお申し込みやご融資をお約束するものではございません。
物件を見たい、物件や住環境の詳しい情報やローン相談など、
お問い合わせ先
ウスイホーム(株)馬堀海岸店

掲載情報の著作権は提供元企業等に帰属します。
Copyright:(C) 2025 Recruit Co., Ltd.
アプリで簡単 物件探し 大手不動産サイトの情報から一括検!プッシュ通知で物件を見逃さない
App Storeからダウンロード Google Playで手に入れよう QRコード