アプリで簡単 物件探し 通知 共有 アプリならではの機能を使ってみる
中古マンション

パークタワー晴海 36階 4LDK

情報提供元
SUUMO
パークタワー晴海 管理状態の良い大規模マンションです。<BR>2028年大規模修繕予定です♪
価格 25900万円  (管理費等:2万8760円/月(委託(通勤)))
修繕積立金 10,620円
交通
所在地 東京都中央区晴海2周辺地図
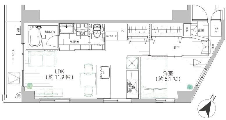
間取り 4LDK 専有面積 88.49m2(壁芯)
所在階/階数 36階/地上48階地下1階建 方位
築年月 2019年2月 築年数 築6年9ヶ月
おすすめポイント
オリエンタルランド監修 ~都心を望むリゾートライフ~物件ポイント◇開放的なウォーターフロント【晴海】エリア!◆ゆとりある4LDK~広々ファミリー向けプラン~◇総戸数1076戸の超大規模レジデンス!◆コンシェルジュ・ラウンジ・ゲストルームなど共用施設充実!◇免震構造×24時間有人管理で安心の住まい♪周辺環境◆ららテラス HARUMI FLAGや晴海トリトンなど生活利便施設が充実◇都立晴海ふ頭公園も近く、自然と調和する暮らし~~弊社サービス~~◆SUUMO掲載物件、全てご紹介可能♪◇銀行事前審査・税金相談・相続相談 無料実施
ペット相談可・管理人日勤・24時間ゴミ出し可・長期優良住宅
物件を見たい、物件や住環境の詳しい情報やローン相談など、
お問い合わせ先
(株)パックシステム

詳細情報

価格 25900万円 管理費等 2万8760円/月(委託(通勤))
駐車場 空無 修繕積立金 10,620円
所在地 東京都中央区晴海2周辺地図
交通
  • 東京メトロ有楽町線 月島駅 徒歩12分乗換案内
  • 東京メトロ有楽町線 豊洲駅 徒歩14分乗換案内
  • 都営大江戸線 勝どき駅 徒歩15分乗換案内
物件名 パークタワー晴海
築年月(築年数) 2019年2月(築6年9ヶ月) 間取り 4LDK
総戸数 1076戸 専有面積 88.49m2(壁芯)
所在階/階数 36階/地上48階地下1階建 バルコニー面積 23.29m2
方位 建物構造 RC
管理形態 委託管理
維持費等 その他(月額)2,200円 土地権利 所有権
用途地域 準工業 借地期間・地代
現況 引渡可能年月 相談
情報提供元 SUUMO [030Z77474821] 情報公開日
情報更新日 次回更新予定日 随時

設備など

ペット相談可 即入居可 - 南向き -
角部屋 - 駐車場空き有り - トランクルーム -
オートロック - 宅配ボックス 浴室乾燥機 -
床暖房 - ウォークインクローゼット - 管理人常駐 -
最上階 - 2階以上 タワーマンション
設備 トイレ・収納スペース・洗面所・エレベーター・管理人日勤・シャンプードレッサ・温水洗浄便座・システムキッチン・モニタ付インターホン・浄水器・食器洗浄乾燥機・リフォーム・バイク置き場・駐輪場・宅配BOX・リノベーション
リフォーム履歴 2025年8月完了
 水回り設備交換:キッチン・浴室・トイレ
 内装リフォーム:壁・床・全室
 その他:電気式床暖房
※年月は一番古いリフォーム箇所を表します
リノベーション履歴 -
備考 <物件名>パークタワー晴海/<駐車場>空無/委託(日勤)/<土地権利>所有権/<間取り>4LDK/<リフォーム>●リフォーム:2025年8月完了(水回り設備交換:キッチン・浴室・トイレ、内装リフォーム:壁・床・全室、その他:電気式床暖房)※年月は一番古いリフォーム箇所を表します/<特徴>【当社売主】 諸条件ご相談可能♪見学予約より即日ご案内!、長期優良住宅認定通知書・2沿線以上利用可・市街地が近い・内装リフォーム・システムキッチン
販売戸数:1戸/管理費等帯:28760円/修繕積立金帯:10620円
特記事項 ペット相談可・管理人日勤・24時間ゴミ出し可・長期優良住宅

省エネ性能

エネルギー消費性能 -
断熱性能 -
目安光熱費 -

東京都中央区晴海2 周辺地図情報

地図
※地図上に表示される物件の位置は付近住所に所在することを表すものであり、実際の物件所在地とは異なる場合がございます。
   正確な物件所在地は、取扱い不動産会社にお問い合わせください。
物件を見たい、物件や住環境の詳しい情報やローン相談など、
お問い合わせ先
(株)パックシステム

不動産会社情報

お問い合わせ先 商号:(株)パックシステム
免許番号:東京都知事(2)第099418号
所在地:東京都品川区平塚2-10-4
TEL:070-2176-0501
取引態様:売主
共有する
QRコード
物件を見たい、物件や住環境の詳しい情報やローン相談など、
お問い合わせ先
(株)パックシステム

中央区の暮らしデータ

人口などの統計情報

世帯数 92487世帯
人口総数 176835人
転入者数 18608人
転入率(人口1000人当たり)
105.23人
転出者数 16381人
転出率(人口1000人当たり)
92.63人
土地平均価格
住宅地
1480000円/m2
商業地
6484815円/m2

結婚・育児の助成金

子育て関連の独自の取り組み (1)学校給食費の無償化。(2)中央区子どもの学習・生活支援事業(小学校4年生から高校生世代までのお子さんを対象に、無料の学習・生活支援事業の実施)。(3)親子で親しむ浜離宮(子どもと同伴する保護者等の浜離宮の入場料を区が負担)。
出産祝い あり
公立保育所数 14所(うち0歳児保育を実施している保育所:14所)
私立保育所数 63所(うち0歳児保育を実施している保育所:35所)
保育所入所待機児童数 0人
認定こども園数 6園 預かり保育実施園数 公立:3園 私立:-
学校給食 【小学校】完全給食【中学校】完全給食
公立中学校の学校選択制 実施(中学校自由選択制)
子ども・学生等医療費助成<通院>対象年齢 18歳3月末まで 子ども・学生等医療費助成<入院>対象年齢 18歳3月末まで

中央区の治安・ごみ収集情報

公共料金・インフラ

ガス料金(22m3使用した場合の月額) 東京瓦斯株式会社(東京地区等)3926円
水道料金(口径20mmで20m3の月額) 東京都水道局2816円
下水道料金(20m3を使用した場合の月額) 東京都下水道局2068円
下水道普及率 100.0%

安心・安全

建物火災出火件数 106件
人口10000人当たり
6.27件
刑法犯認知件数 1828件
人口1000人当たり
10.81件
ハザード・防災マップ あり

医療

一般病院総数 4ヶ所
一般診療所総数 778ヶ所
小児科医師数 59人
小児人口10000人当たり
24.65人
産婦人科医師数 68人
15~49歳女性人口1万人当たり
14.62人
介護保険料基準額(月額) 6300円

ごみ

家庭ごみ収集(可燃ごみ) 無料
備考
引越し等で、臨時に大量のごみを排出する場合は有料。
家庭ごみの分別方式 4分別10種〔燃やすごみ 燃やさないごみ プラマーク 資源(紙類[新聞、雑誌、ダンボール、雑紙]、びん、ペットボトル、缶類)〕
家庭ごみの戸別収集 一部実施(ふれあい収集)
粗大ごみ収集 あり
備考
有料。戸別収集。事前申込制。
生ごみ処理機助成金制度 なし
上限金額
-
上限比率
-

中央区の住まいの給付金

中古購入

利子補給制度 なし
補助/助成金制度 なし

増築・改築・改修

利子補給制度 なし
補助/助成金制度 あり
上限金額
(1)300万円(2)185.4万円
備考
(1)【木造建築物の耐震対策】建物の耐震診断や耐震性を向上させる補強工事等への助成。簡易耐震診断無料。耐震診断・補強計画は診断費用の全額。耐震補強工事は工事費用の1/2(上限300万円)。簡易補強工事は工事費用の1/2(上限150万円)。(2)【住宅設備改善給付】高齢者の日常生活の利便や安全を確保するために住宅改修を必要とする場合。(a)バリアフリー化。(b)浴槽の取替え。(c)流し・洗面台の取替え。(d)便器の洋式化。(e)階段昇降機。設備により給付額が異なる。
暮らしデータ提供元:生活ガイド.com
※行政機関により公表していない地域及びデータがございます。東京23区以外の政令指定都市は、市全体のデータとして表示しています。
※提供データには細心の注意を払っておりますが、調査後に変更がある場合があります。 最新の情報につきましては各市区役所までお問い合わせいただくか、自治体HPなどをご確認ください。

この物件を見た人はこんな物件も見ています

OCN×ドコモ光新規お申込みで合計最大137,280円相当おトク!特典の内訳・適用条件など詳細はこちら

中央区内の各駅の住みやすさ

住宅ローンの返済額一覧

物件価格 25900万円に対して、年率 で、頭金 の場合
↓ボーナス 35年間 30年間 25年間 20年間 15年間 10年間
0万円 659,346円/月 759,941円/月 900,861円/月 1,112,352円/月 1,464,982円/月 2,170,465円/月
5万円 650,261円/月 750,965円/月 891,994円/月 1,103,593円/月 1,456,331円/月 2,161,919円/月
10万円 641,175円/月 741,989円/月 883,128円/月 1,094,834円/月 1,447,680円/月 2,153,374円/月
15万円 632,090円/月 733,014円/月 874,261円/月 1,086,076円/月 1,439,028円/月 2,144,829円/月
20万円 623,004円/月 724,038円/月 865,394円/月 1,077,317円/月 1,430,377円/月 2,136,284円/月
25万円 613,919円/月 715,062円/月 856,527円/月 1,068,558円/月 1,421,725円/月 2,127,739円/月
30万円 604,833円/月 706,087円/月 847,661円/月 1,059,800円/月 1,413,074円/月 2,119,194円/月
支払い利息合計 22,947,090円~ 19,597,480円~ 16,274,000円~ 12,976,960円~ 9,706,270円~ 6,462,020円~
※元利均等返済方式で試算しています。 「円」の単位以下の端数金額は「切り捨て」として計算しております。
※金利は、固定金利として計算しております。
※上記の住宅ローン返済額一覧は、あくまで試算であり、将来の金利動向により、実際のご返済額とは異なります。
※ボーナス支払総額が総支払額の50%を超えている場合、上記の表では「ローン不可」となります。
※住宅ローン返済額一覧の数値は、住宅ローンのお申し込みやご融資をお約束するものではございません。
物件を見たい、物件や住環境の詳しい情報やローン相談など、
お問い合わせ先
(株)パックシステム

掲載情報の著作権は提供元企業等に帰属します。
Copyright:(C) 2025 Recruit Co., Ltd.
アプリで簡単 物件探し 大手不動産サイトの情報から一括検!プッシュ通知で物件を見逃さない
App Storeからダウンロード Google Playで手に入れよう QRコード