| 価格 | 2648万円  (管理費等:2万円/月(委託(通勤))) | 
    
      | 修繕積立金 | 15,750円 | 
    
      | 交通 |  | 
    
      | 所在地 | 埼玉県新座市畑中1周辺地図 | 
    
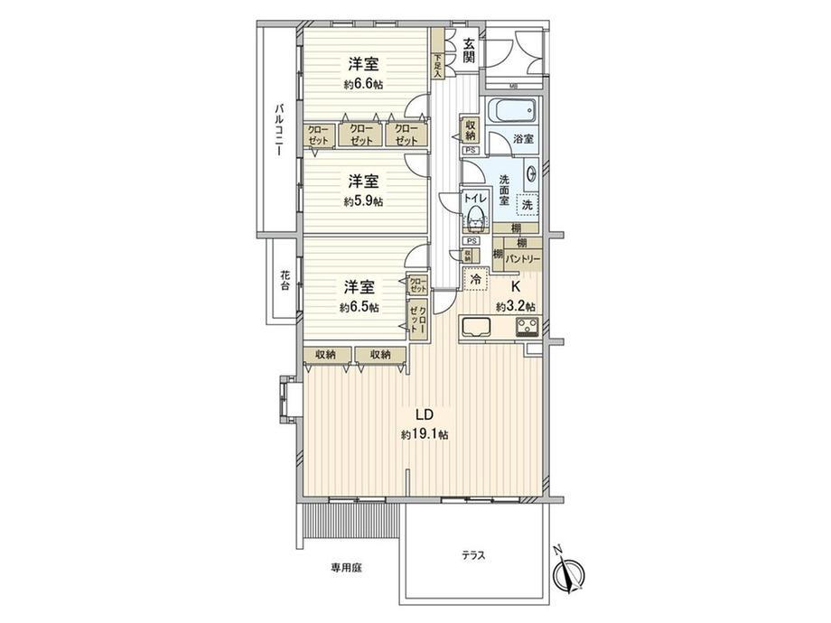
      | 間取り | 3LDK | 専有面積 | 96.74m2(29.26坪)(壁芯) | 
    
      | 所在階/階数 | 1階/5階建 | 方位 | 南西 | 
    
      | 築年月 | 1995年8月 | 築年数 | 築30年3ヶ月 | 
  
 
 
- おすすめポイント
- -物件のおすすめポイント-▼特徴・独立性を高める玄関ポーチ・南西向き角住戸につき、陽当たり良好・会話の弾む対面式キッチン・LDと隣接した洋室は、多用途に活用可能▼設備・食洗機・浄水器・温水洗浄便座・追い焚き・浴室換気乾燥暖房機▼室内リフォーム履歴【2025年10月】 <交換>キッチン、洗面化粧台、ユニットバス、トイレ 等 <張替>フローリング、クロス、フロアタイル 等 <その他>ハウスクリーニング 等■ ご希望の住まい探しをお手伝いします ━━━━━・・・物件の詳細・ご相談はお気軽にお問い合わせください。
 日当り良好・角部屋・管理人日勤
    
    
  
    - お問い合わせ先
- 三井のリハウス志木センター三井不動産リアルティ(株)
 
  
    物件を見たい、物件や住環境の詳しい情報やローン相談など、
    
    
    
      - お問い合わせ先
- 三井のリハウス志木センター三井不動産リアルティ(株)
 
 
| 価格 | 2648万円 | 管理費等 | 2万円/月(委託(通勤)) | 
| 駐車場 |  | 修繕積立金 | 15,750円 | 
| 所在地 | 埼玉県新座市畑中1周辺地図 | 
| 交通 | 
   東武東上線 朝霞台駅 バス10分/「東福寺前」バス停 停歩2分乗換案内 | 
| 物件名 | シャレール新座 | 
| 築年月(築年数) | 1995年8月(築30年3ヶ月) | 間取り | 3LDK | 
| 総戸数 | 68戸 | 専有面積 | 96.74m2(29.26坪)(壁芯) | 
| 所在階/階数 | 1階/5階建 | バルコニー面積 |  | 
| 方位 | 南西 | 建物構造 | RC | 
| 管理形態 | 委託管理 | 
| 維持費等 | 専用庭面積 使用料290円 | 土地権利 | 所有権 | 
| 用途地域 | 1種住居 | 借地期間・地代 |  | 
| 現況 |  | 引渡可能年月 | 相談 | 
| 情報提供元 | SUUMO [030Z78698569] | 情報公開日 |  | 
| 情報更新日 |  | 次回更新予定日 | 随時 | 
設備など
| ペット相談可 | - | 即入居可 | - | 南向き | - | 
| 角部屋 | ○ | 駐車場空き有り | - | トランクルーム | - | 
| オートロック | - | 宅配ボックス | - | 浴室乾燥機 | ○ | 
| 床暖房 | - | ウォークインクローゼット | - | 管理人常駐 | - | 
| 最上階 | - | 2階以上 | - | タワーマンション | - | 
| 設備 | バルコニー・トイレ・収納スペース・洗面所・管理人日勤・浴室乾燥機・シャンプードレッサ・温水洗浄便座・システムキッチン・風呂・テラス・庭・対面K・専用庭・浄水器・衣類乾燥機・食器洗浄乾燥機・リフォーム・バイク置き場・駐輪場 | 
| リフォーム履歴 | - | 
| リノベーション履歴 | - | 
| 備考 | <物件名>シャレール新座/委託(日勤)/<土地権利>所有権/<間取り>3LDK/<特徴>■三井のリハウス■南西向き角住戸につき、陽当り良好、LDK20畳以上・内装リフォーム・システムキッチン・浴室乾燥機・角住戸 販売戸数:1戸/管理費等帯:20000円/修繕積立金帯:15750円
 | 
| 特記事項 | 日当り良好・角部屋・管理人日勤 | 
埼玉県新座市畑中1 周辺地図情報
※地図上に表示される物件の位置は付近住所に所在することを表すものであり、実際の物件所在地とは異なる場合がございます。
   正確な物件所在地は、取扱い不動産会社にお問い合わせください。
 
 
  
    物件を見たい、物件や住環境の詳しい情報やローン相談など、
    
    
    
      - お問い合わせ先
- 三井のリハウス志木センター三井不動産リアルティ(株)
 
 
不動産会社情報
| お問い合わせ先 | 商号:三井のリハウス志木センター三井不動産リアルティ(株) 免許番号:国土交通大臣(15)第000777号
 所在地:埼玉県新座市東北2-37-15 ランカフィクス志木1階
 TEL:00786-01794065
 取引態様:媒介
 管理コード:F42AGB61
 | 共有する |  | 
  
    物件を見たい、物件や住環境の詳しい情報やローン相談など、
    
    
    
      - お問い合わせ先
- 三井のリハウス志木センター三井不動産リアルティ(株)
 
 
  
  
    人口などの統計情報
    
      
        
          | 世帯数 | 73634世帯 | 
        
          | 人口総数 | 166036人 | 
        
          | 転入者数 | 8673人 
 
              転入率(人口1000人当たり)52.24人 | 
        
          | 転出者数 | 7379人 
 
              転出率(人口1000人当たり)44.44人 | 
        
          | 土地平均価格 | 
              住宅地200273円/m2商業地750000円/m2 | 
      
    
   
    
    結婚・育児の助成金
    
      
        
          | 子育て関連の独自の取り組み | (1)子育て支援ホームヘルパー派遣事業(出産直後の母親のうち、家族や親戚等からの家事援助が得られない方に対し、退院日を含めて30日以内でホームヘルパーを派遣して家事援助を行う。多胎児を養育する場合は、当該多胎児の出生直後の退院の日から起算して1年以内で、加えて20日を限度とする)。(2)新座市子どもの放課後居場所づくり事業[ココフレンド](小学校施設を活用し、地域の方々の協力を得ながら、子どもたちが放課後等に安全・安心に集える居場所づくりを行う)。(3)新座っ子ぱわーあっぷくらぶ(土曜日の学習・文化・スポーツ・体験活動の場として、安全・安心な活動ができる居場所を提供し、地域のボランティアを活用することで、地域教育力の活性化を図る)。 | 
        
          | 出産祝い | なし | 
        
          | 公立保育所数 | 6所(うち0歳児保育を実施している保育所:6所) | 
        
          | 私立保育所数 | 31所(うち0歳児保育を実施している保育所:28所) | 
        
          | 保育所入所待機児童数 | 8人 | 
        
          | 認定こども園数 | 1園 | 預かり保育実施園数 | 公立:- 私立:10園 | 
        
          | 学校給食 | 【小学校】完全給食【中学校】完全給食 | 
        
          | 公立中学校の学校選択制 | 未実施 | 
        
          | 子ども・学生等医療費助成<通院>対象年齢 | 18歳3月末まで | 子ども・学生等医療費助成<入院>対象年齢 | 18歳3月末まで | 
      
    
   
    
    新座市の治安・ごみ収集情報
    公共料金・インフラ
    
      
        
          | ガス料金(22m3使用した場合の月額) | 東京瓦斯株式会社(東京地区等)3926円 大東ガス株式会社4335円
 | 
        
          | 水道料金(口径20mmで20m3の月額) | 新座市2365円 | 
        
          | 下水道料金(20m3を使用した場合の月額) | 新座市1639円 | 
        
          | 下水道普及率 | 97.4% | 
      
    
    安心・安全
    
      
        
          | 建物火災出火件数 | 19件 
              人口10000人当たり1.14件 | 
        
          | 刑法犯認知件数 | 915件 
              人口1000人当たり5.51件 | 
        
          | ハザード・防災マップ | あり | 
      
    
    医療
    
      
        
          | 一般病院総数 | 6ヶ所 | 
        
          | 一般診療所総数 | 71ヶ所 | 
        
          | 小児科医師数 | 18人 
              小児人口10000人当たり8.90人 | 
        
          | 産婦人科医師数 | 3人 
              15~49歳女性人口1万人当たり0.92人 | 
        
          | 介護保険料基準額(月額) | 6139円 | 
      
    
    ごみ
    
      
        
          | 家庭ごみ収集(可燃ごみ) | 無料 | 
        
          | 家庭ごみの分別方式 | 4分別14種〔可燃ごみ 不燃ごみ リサイクル資源(カン、ビン、ペットボトル、資源プラスチック、新聞、雑誌・雑がみ、段ボール、紙パック、布類) 有害ごみ(乾電池、使い捨てライター、蛍光灯)〕 拠点回収:廃食用油 小型充電式電池 インクカートリッジ アルミ付紙パック | 
        
          | 家庭ごみの戸別収集 | 一部実施(【ふれあい収集】ごみ出しが困難であり、要介護認定を受けているか障がい者手帳をお持ちの方のみで構成される世帯が対象) | 
        
          | 粗大ごみ収集 | あり | 
        
          | 生ごみ処理機助成金制度 | あり 
              上限金額20000円上限比率50.0% | 
      
    
   
  
      新座市の住まいの給付金
                  中古購入
    
    増築・改築・改修
    
      
        
          | 利子補給制度 | なし | 
        
          | 補助/助成金制度 | あり 
              上限金額(1)10万円(2)80万円 | 
      
    
          
    
      ※行政機関により公表していない地域及びデータがございます。東京23区以外の政令指定都市は、市全体のデータとして表示しています。
      
※提供データには細心の注意を払っておりますが、調査後に変更がある場合があります。 最新の情報につきましては各市区役所までお問い合わせいただくか、自治体HPなどをご確認ください。
    
      新座市の暮らしデータをもっと見る
     
 
    
  
  
    物件を見たい、物件や住環境の詳しい情報やローン相談など、
    
    
    
      - お問い合わせ先
- 三井のリハウス志木センター三井不動産リアルティ(株)