アプリで簡単 物件探し 通知 共有 アプリならではの機能を使ってみる
中古マンション

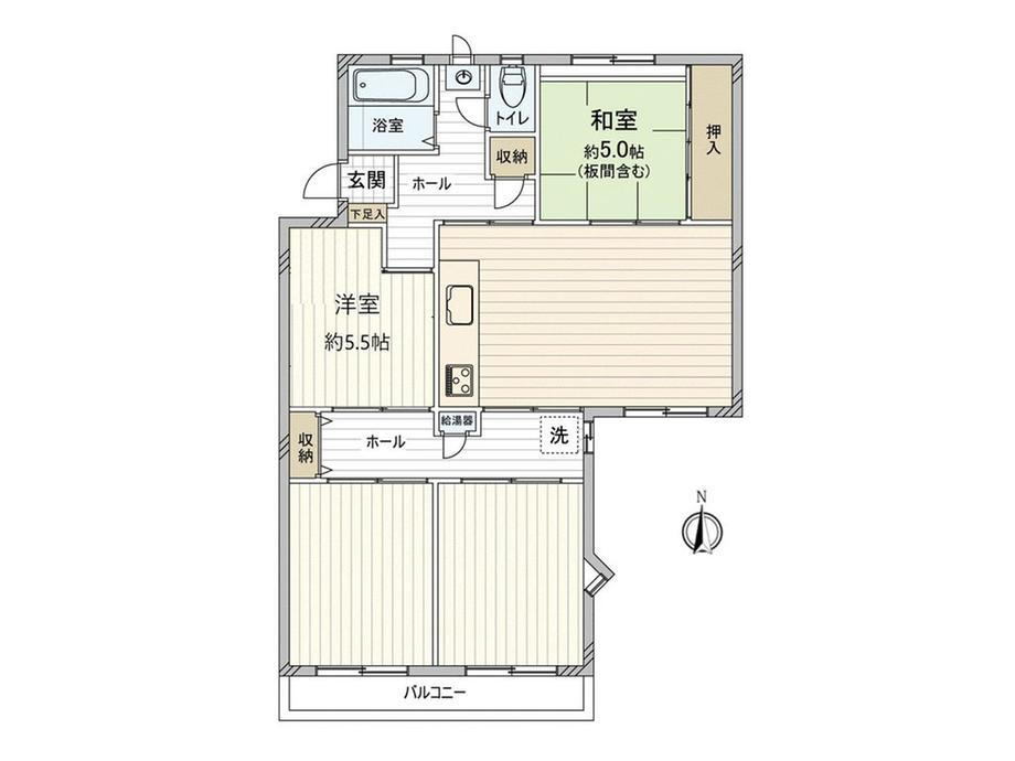
新座団地 2街区9号棟 4階 4LDK

情報提供元
SUUMO
新座団地 2街区9号棟
価格 820万円  (管理費等:4400円/月(自主管理(管理員なし)))
修繕積立金 12,500円
交通
所在地 埼玉県新座市新座3周辺地図
間取り 4LDK 専有面積 78.5m2(23.74坪)(壁芯)
所在階/階数 4階/5階建 方位
築年月 1970年9月 築年数 築55年2ヶ月
おすすめポイント
-物件のおすすめポイント-▼立地・緑豊かな住宅地▼特徴・総戸数1010戸のビックコミュニティ・専有面積78.5平米の4LDK・住空間を広く活用可能な壁付キッチン・足を伸ばして寛げる約5.0帖の和室・ホール2か所・和室に収納スペースを確保・2室に面する南向きバルコニー▼設備・浄水器・TVモニタ付インターホン▼周辺環境・新座市立新座小学校 徒歩4分(約300m)・スーパー「コープ幸町店」徒歩9分(約700m)・新座団地名店街 徒歩6分(約480m)■ ご希望の住まい探しをお手伝いします ━━━━━・・・物件の詳細・ご相談はお気軽にお問い合わせください。
日当り良好
お問い合わせ先
三井のリハウス川越センター三井不動産リアルティ(株)
物件を見たい、物件や住環境の詳しい情報やローン相談など、
お問い合わせ先
三井のリハウス川越センター三井不動産リアルティ(株)

詳細情報

価格 820万円 管理費等 4400円/月(自主管理(管理員なし))
駐車場 敷地内(7000円/月) 修繕積立金 12,500円
所在地 埼玉県新座市新座3周辺地図
交通
  • 東武東上線 志木駅 バス10分/「団地南」バス停 停歩5分乗換案内
物件名 新座団地 2街区9号棟
築年月(築年数) 1970年9月(築55年2ヶ月) 間取り 4LDK
総戸数 30戸 専有面積 78.5m2(23.74坪)(壁芯)
所在階/階数 4階/5階建 バルコニー面積 7.15m2
方位 建物構造 RC
管理形態
維持費等 土地権利 所有権
用途地域 1種中高 借地期間・地代
現況 引渡可能年月 相談
情報提供元 SUUMO [030Z78492062] 情報公開日
情報更新日 次回更新予定日 随時

設備など

ペット相談可 - 即入居可 - 南向き
角部屋 - 駐車場空き有り トランクルーム -
オートロック - 宅配ボックス - 浴室乾燥機 -
床暖房 - ウォークインクローゼット - 管理人常駐 -
最上階 - 2階以上 タワーマンション -
設備 バルコニー・システムキッチン・モニタ付インターホン・風呂・浄水器
リフォーム履歴 -
リノベーション履歴 -
備考 <物件名>新座団地 2街区9号棟/<駐車場>敷地内/<土地権利>所有権/<間取り>4LDK/<特徴>■三井のリハウス■5階建の4階部分、南向き住戸陽当り・通風・眺望良好、スーパー 徒歩10分以内・南向き・システムキッチン・陽当り良好・和室
販売戸数:1戸/管理費等帯:4400円/修繕積立金帯:12500円
特記事項 日当り良好

省エネ性能

エネルギー消費性能 -
断熱性能 -
目安光熱費 -

埼玉県新座市新座3 周辺地図情報

地図
※地図上に表示される物件の位置は付近住所に所在することを表すものであり、実際の物件所在地とは異なる場合がございます。
   正確な物件所在地は、取扱い不動産会社にお問い合わせください。
物件を見たい、物件や住環境の詳しい情報やローン相談など、
お問い合わせ先
三井のリハウス川越センター三井不動産リアルティ(株)

不動産会社情報

お問い合わせ先 商号:三井のリハウス川越センター三井不動産リアルティ(株)
免許番号:国土交通大臣(15)第000777号
所在地:埼玉県川越市脇田本町16-5 ザ・パークハウス川越タワー1階
TEL:00786-01794071
取引態様:専任媒介
管理コード:FR4ARA15
共有する
QRコード
物件を見たい、物件や住環境の詳しい情報やローン相談など、
お問い合わせ先
三井のリハウス川越センター三井不動産リアルティ(株)

新座市の暮らしデータ

人口などの統計情報

世帯数 73634世帯
人口総数 166036人
転入者数 8673人
転入率(人口1000人当たり)
52.24人
転出者数 7379人
転出率(人口1000人当たり)
44.44人
土地平均価格
住宅地
200273円/m2
商業地
750000円/m2

結婚・育児の助成金

子育て関連の独自の取り組み (1)子育て支援ホームヘルパー派遣事業(出産直後の母親のうち、家族や親戚等からの家事援助が得られない方に対し、退院日を含めて30日以内でホームヘルパーを派遣して家事援助を行う。多胎児を養育する場合は、当該多胎児の出生直後の退院の日から起算して1年以内で、加えて20日を限度とする)。(2)新座市子どもの放課後居場所づくり事業[ココフレンド](小学校施設を活用し、地域の方々の協力を得ながら、子どもたちが放課後等に安全・安心に集える居場所づくりを行う)。(3)新座っ子ぱわーあっぷくらぶ(土曜日の学習・文化・スポーツ・体験活動の場として、安全・安心な活動ができる居場所を提供し、地域のボランティアを活用することで、地域教育力の活性化を図る)。
出産祝い なし
公立保育所数 6所(うち0歳児保育を実施している保育所:6所)
私立保育所数 31所(うち0歳児保育を実施している保育所:28所)
保育所入所待機児童数 8人
認定こども園数 1園 預かり保育実施園数 公立:- 私立:10園
学校給食 【小学校】完全給食【中学校】完全給食
公立中学校の学校選択制 未実施
子ども・学生等医療費助成<通院>対象年齢 18歳3月末まで 子ども・学生等医療費助成<入院>対象年齢 18歳3月末まで

新座市の治安・ごみ収集情報

公共料金・インフラ

ガス料金(22m3使用した場合の月額) 東京瓦斯株式会社(東京地区等)3926円
大東ガス株式会社4335円
水道料金(口径20mmで20m3の月額) 新座市2365円
下水道料金(20m3を使用した場合の月額) 新座市1639円
下水道普及率 97.4%

安心・安全

建物火災出火件数 19件
人口10000人当たり
1.14件
刑法犯認知件数 915件
人口1000人当たり
5.51件
ハザード・防災マップ あり

医療

一般病院総数 6ヶ所
一般診療所総数 71ヶ所
小児科医師数 18人
小児人口10000人当たり
8.90人
産婦人科医師数 3人
15~49歳女性人口1万人当たり
0.92人
介護保険料基準額(月額) 6139円

ごみ

家庭ごみ収集(可燃ごみ) 無料
備考
-
家庭ごみの分別方式 4分別14種〔可燃ごみ 不燃ごみ リサイクル資源(カン、ビン、ペットボトル、資源プラスチック、新聞、雑誌・雑がみ、段ボール、紙パック、布類) 有害ごみ(乾電池、使い捨てライター、蛍光灯)〕 拠点回収:廃食用油 小型充電式電池 インクカートリッジ アルミ付紙パック
家庭ごみの戸別収集 一部実施(【ふれあい収集】ごみ出しが困難であり、要介護認定を受けているか障がい者手帳をお持ちの方のみで構成される世帯が対象)
粗大ごみ収集 あり
備考
有料。事前申込制。市ホームページから電子申請も可能。
生ごみ処理機助成金制度 あり
上限金額
20000円
上限比率
50.0%

新座市の住まいの給付金

中古購入

利子補給制度 なし
補助/助成金制度 なし

増築・改築・改修

利子補給制度 なし
補助/助成金制度 あり
上限金額
(1)10万円(2)80万円
備考
(1)【既存木造住宅耐震診断助成金制度】1981年5月31日以前に着工の木造二階建以下の住宅を耐震診断に助成。上限10万円。(2)【既存木造住宅耐震改修等助成金制度】1981年5月31日以前に着工された木造二階建て以下の住宅で、倒壊する可能性がある建物に助成。上限80万円。
暮らしデータ提供元:生活ガイド.com
※行政機関により公表していない地域及びデータがございます。東京23区以外の政令指定都市は、市全体のデータとして表示しています。
※提供データには細心の注意を払っておりますが、調査後に変更がある場合があります。 最新の情報につきましては各市区役所までお問い合わせいただくか、自治体HPなどをご確認ください。

この物件を見た人はこんな物件も見ています

OCN×ドコモ光新規お申込みで合計最大137,280円相当おトク!特典の内訳・適用条件など詳細はこちら

新座市内の各駅の住みやすさ

住宅ローンの返済額一覧

物件価格 820万円に対して、年率 で、頭金 の場合
↓ボーナス 35年間 30年間 25年間 20年間 15年間 10年間
0万円 8,306円/月 9,574円/月 11,349円/月 14,013円/月 18,456円/月 27,344円/月
5万円 ローン不可 ローン不可 ローン不可 ローン不可 9,805円/月 18,799円/月
10万円 ローン不可 ローン不可 ローン不可 ローン不可 ローン不可 ローン不可
15万円 ローン不可 ローン不可 ローン不可 ローン不可 ローン不可 ローン不可
20万円 ローン不可 ローン不可 ローン不可 ローン不可 ローン不可 ローン不可
25万円 ローン不可 ローン不可 ローン不可 ローン不可 ローン不可 ローン不可
30万円 ローン不可 ローン不可 ローン不可 ローン不可 ローン不可 ローン不可
支払い利息合計 288,520円~ 246,640円~ 204,700円~ 163,120円~ 123,700円~ 82,320円~
※元利均等返済方式で試算しています。 「円」の単位以下の端数金額は「切り捨て」として計算しております。
※金利は、固定金利として計算しております。
※上記の住宅ローン返済額一覧は、あくまで試算であり、将来の金利動向により、実際のご返済額とは異なります。
※ボーナス支払総額が総支払額の50%を超えている場合、上記の表では「ローン不可」となります。
※住宅ローン返済額一覧の数値は、住宅ローンのお申し込みやご融資をお約束するものではございません。
物件を見たい、物件や住環境の詳しい情報やローン相談など、
お問い合わせ先
三井のリハウス川越センター三井不動産リアルティ(株)

掲載情報の著作権は提供元企業等に帰属します。
Copyright:(C) 2025 Recruit Co., Ltd.
アプリで簡単 物件探し 大手不動産サイトの情報から一括検!プッシュ通知で物件を見逃さない
App Storeからダウンロード Google Playで手に入れよう QRコード