アプリで簡単 物件探し 通知 共有 アプリならではの機能を使ってみる
中古マンション

サンライフ根岸 3階 2LDK

情報提供元
SUUMO
サンライフ根岸 イオンモール川口にも近い利便性の高い立地に新規リフォームマンションが誕生します♪内覧予約開始!お待ちしております^^<BR>現地(2025年10月)撮影
価格 1999万円  (管理費等:9410円/月(委託(通勤)))
修繕積立金 10,530円
交通
所在地 埼玉県川口市大字安行領根岸周辺地図
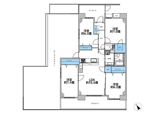
間取り 2LDK 専有面積 70.2m2(21.23坪)(壁芯)
所在階/階数 3階/8階建 方位 南西
築年月 1981年10月 築年数 築44年1ヶ月
おすすめポイント
\\川口市安行領根岸にリフォーム済物件が新登場♪// =R7年10月にリフォーム完了済=○内容システムキッチン(浄水器・食洗機付)ユニットバス洗面室(洗面化粧台・洗濯用水栓・洗濯パン)トイレその他(照明器具・建具・給湯器・スイッチコンセント)床 フローリング貼(LDK・洋室全室・廊下)、フロアタイル貼(玄関・洗面室・トイレ)給水・給湯・排水・追炊管交換壁・天井 クロス貼◆ペット可小型犬・猫いずれか2匹まで飼育可♪JR等の交通機関に持込できる大きさ等、細則有◆南西向き住戸で陽当良好◆売主アフターサービス保証有◆先行配管施工済全居室エアコン設置可!
ペット相談可・閑静な住宅街・管理人日勤
物件を見たい、物件や住環境の詳しい情報やローン相談など、
お問い合わせ先
(株)みかづき・ほーむ

詳細情報

価格 1999万円 管理費等 9410円/月(委託(通勤))
駐車場 空無 修繕積立金 10,530円
所在地 埼玉県川口市大字安行領根岸周辺地図
交通
  • 埼玉高速鉄道 新井宿駅 バス16分/「根岸小学校」バス停 停歩2分乗換案内
物件名 サンライフ根岸
築年月(築年数) 1981年10月(築44年1ヶ月) 間取り 2LDK
総戸数 92戸 専有面積 70.2m2(21.23坪)(壁芯)
所在階/階数 3階/8階建 バルコニー面積 7.8m2
方位 南西 建物構造 SRC
管理形態 委託管理
維持費等 土地権利 所有権
用途地域 2種中高 借地期間・地代
現況 引渡可能年月 即時
情報提供元 SUUMO [030Z78565417] 情報公開日
情報更新日 次回更新予定日 随時

設備など

ペット相談可 即入居可 南向き -
角部屋 - 駐車場空き有り - トランクルーム -
オートロック - 宅配ボックス - 浴室乾燥機
床暖房 - ウォークインクローゼット - 管理人常駐 -
最上階 - 2階以上 タワーマンション -
設備 収納スペース・洗面所・エレベーター・管理人日勤・浴室乾燥機・シャンプードレッサ・システムキッチン・風呂・浄水器・衣類乾燥機・食器洗浄乾燥機・リフォーム・バイク置き場・駐輪場
リフォーム履歴 2025年10月完了
 水回り設備交換:キッチン・浴室・トイレ
 内装リフォーム:壁・床・全室
 その他:洗面化粧台、建具他
※年月は一番古いリフォーム箇所を表します
リノベーション履歴 -
備考 <物件名>サンライフ根岸/<駐車場>空無/委託(日勤)/<土地権利>所有権/<間取り>2LDK/<リフォーム>●リフォーム:2025年10月完了(水回り設備交換:キッチン・浴室・トイレ、内装リフォーム:壁・床・全室、その他:洗面化粧台、建具他)※年月は一番古いリフォーム箇所を表します/<特徴>みかづき・ほーむ限定「住宅設備最長10年保証」付■修理交換何度でも無料♪、即引渡可・スーパー 徒歩10分以内・内装リフォーム・システムキッチン・浴室乾燥機
販売戸数:1戸/管理費等帯:9410円/修繕積立金帯:10530円
特記事項 ペット相談可・閑静な住宅街・管理人日勤

省エネ性能

エネルギー消費性能 -
断熱性能 -
目安光熱費 -

埼玉県川口市大字安行領根岸 周辺地図情報

地図
※地図上に表示される物件の位置は付近住所に所在することを表すものであり、実際の物件所在地とは異なる場合がございます。
   正確な物件所在地は、取扱い不動産会社にお問い合わせください。
物件を見たい、物件や住環境の詳しい情報やローン相談など、
お問い合わせ先
(株)みかづき・ほーむ

不動産会社情報

お問い合わせ先 商号:(株)みかづき・ほーむ
免許番号:埼玉県知事(1)第024452号
所在地:埼玉県さいたま市浦和区北浦和4-6-10-2
TEL:048-767-7865
取引態様:一般媒介
共有する
QRコード
物件を見たい、物件や住環境の詳しい情報やローン相談など、
お問い合わせ先
(株)みかづき・ほーむ

川口市の暮らしデータ

人口などの統計情報

世帯数 266756世帯
人口総数 606315人
転入者数 34070人
転入率(人口1000人当たり)
56.19人
転出者数 26834人
転出率(人口1000人当たり)
44.26人
土地平均価格
住宅地
249610円/m2
商業地
718600円/m2

結婚・育児の助成金

子育て関連の独自の取り組み -
出産祝い あり
公立保育所数 41所(うち0歳児保育を実施している保育所:17所)
私立保育所数 92所(うち0歳児保育を実施している保育所:82所)
保育所入所待機児童数 10人
認定こども園数 5園 預かり保育実施園数 公立:0園 私立:36園
学校給食 【小学校】完全給食【中学校】完全給食
公立中学校の学校選択制 未実施
子ども・学生等医療費助成<通院>対象年齢 中学校卒業まで 子ども・学生等医療費助成<入院>対象年齢 中学校卒業まで

川口市の治安・ごみ収集情報

公共料金・インフラ

ガス料金(22m3使用した場合の月額) 東京瓦斯株式会社(東京地区等)3926円
大東ガス株式会社4335円
水道料金(口径20mmで20m3の月額) 川口市3553円
下水道料金(20m3を使用した場合の月額) 川口市1998円
下水道普及率 88.8%

安心・安全

建物火災出火件数 94件
人口10000人当たり
1.58件
刑法犯認知件数 4437件
人口1000人当たり
7.47件
ハザード・防災マップ あり

医療

一般病院総数 21ヶ所
一般診療所総数 339ヶ所
小児科医師数 88人
小児人口10000人当たり
12.52人
産婦人科医師数 34人
15~49歳女性人口1万人当たり
2.68人
介護保険料基準額(月額) 6077円

ごみ

家庭ごみ収集(可燃ごみ) 無料
備考
施設への自己搬入においては100kgまで無料。100kgを超えた分につき、30円/10kgの処分手数料が必要。
家庭ごみの分別方式 3分別13種〔一般ごみ 有害ごみ 資源物(プラスチック製容器包装、びん、飲料かん、金属類、ペットボトル、繊維類、紙類[紙パック、新聞紙、雑誌・雑紙、ダンボール、紙製容器包装])〕 拠点回収:乾電池
家庭ごみの戸別収集 一部実施(ふれあい収集)
粗大ごみ収集 あり
備考
有料。戸別収集。事前申込制。
生ごみ処理機助成金制度 あり
上限金額
24000円
上限比率
50.0%

川口市の住まいの給付金

中古購入

利子補給制度 なし
補助/助成金制度 なし

増築・改築・改修

利子補給制度 なし
補助/助成金制度 あり
上限金額
(1)10万円(2)6.5万円(3)40万円
備考
(1)【川口市住宅リフォーム補助金】住宅改修工事に要する費用の5%を助成。(上限10万円)。他要件あり。(2)【川口市既存建築物耐震診断補助金】対象となる建築物の耐震診断費の2/3を助成。戸建て住宅は上限6.5万円。共同住宅等は上限150万円。他要件あり。(3)【川口市既存建築物耐震改修補助金】対象となる建築物の耐震改修費の23%を助成。戸建て住宅は上限40万円。共同住宅等は上限300万円。他要件あり。
暮らしデータ提供元:生活ガイド.com
※行政機関により公表していない地域及びデータがございます。東京23区以外の政令指定都市は、市全体のデータとして表示しています。
※提供データには細心の注意を払っておりますが、調査後に変更がある場合があります。 最新の情報につきましては各市区役所までお問い合わせいただくか、自治体HPなどをご確認ください。

この物件を見た人はこんな物件も見ています

OCN×ドコモ光新規お申込みで合計最大137,280円相当おトク!特典の内訳・適用条件など詳細はこちら

川口市内の各駅の住みやすさ

住宅ローンの返済額一覧

物件価格 1999万円に対して、年率 で、頭金 の場合
↓ボーナス 35年間 30年間 25年間 20年間 15年間 10年間
0万円 38,911円/月 44,848円/月 53,165円/月 65,646円/月 86,457円/月 128,091円/月
5万円 29,826円/月 35,872円/月 44,298円/月 56,887円/月 77,805円/月 119,546円/月
10万円 20,740円/月 26,897円/月 35,431円/月 48,128円/月 69,154円/月 111,001円/月
15万円 ローン不可 ローン不可 ローン不可 39,370円/月 60,502円/月 102,456円/月
20万円 ローン不可 ローン不可 ローン不可 ローン不可 51,851円/月 93,911円/月
25万円 ローン不可 ローン不可 ローン不可 ローン不可 ローン不可 85,365円/月
30万円 ローン不可 ローン不可 ローン不可 ローン不可 ローン不可 76,820円/月
支払い利息合計 1,359,830円~ 1,161,640円~ 964,500円~ 771,280円~ 578,470円~ 387,140円~
※元利均等返済方式で試算しています。 「円」の単位以下の端数金額は「切り捨て」として計算しております。
※金利は、固定金利として計算しております。
※上記の住宅ローン返済額一覧は、あくまで試算であり、将来の金利動向により、実際のご返済額とは異なります。
※ボーナス支払総額が総支払額の50%を超えている場合、上記の表では「ローン不可」となります。
※住宅ローン返済額一覧の数値は、住宅ローンのお申し込みやご融資をお約束するものではございません。
物件を見たい、物件や住環境の詳しい情報やローン相談など、
お問い合わせ先
(株)みかづき・ほーむ

掲載情報の著作権は提供元企業等に帰属します。
Copyright:(C) 2025 Recruit Co., Ltd.
アプリで簡単 物件探し 大手不動産サイトの情報から一括検!プッシュ通知で物件を見逃さない
App Storeからダウンロード Google Playで手に入れよう QRコード