アプリで簡単 物件探し 通知 共有 アプリならではの機能を使ってみる
中古住宅

兵庫県明石市貴崎1丁目 林崎松江海岸駅 中古一戸建て・中古住宅

情報提供元
LIFULL HOME'S
兵庫県明石市貴崎1丁目 林崎松江海岸駅 中古一戸建て・中古住宅
価格 6000万円
交通
所在地 兵庫県明石市貴崎1丁目周辺地図
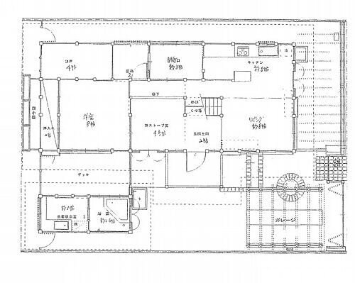
間取り 1LDK
建物面積 84.83m2 土地面積 212.72m2(公簿)
築年月 2008年8月 築年数 築17年4ヶ月
おすすめポイント
貴重な材料を惜しみなく使用した、こだわりの平家。
物件を見たい、物件や住環境の詳しい情報やローン相談など、
お問い合わせ先
有限会社明石屋不動産

詳細情報

価格 6000万円
所在地 兵庫県明石市貴崎1丁目周辺地図
交通
  • 山陽電気鉄道本線 林崎松江海岸駅 徒歩10分乗換案内
間取り 1LDK 築年月(築年数) 2008年8月(築17年4ヶ月)
建物面積 84.83m2 建物構造・規模 木造平屋建て
土地面積 212.72m2(公簿) 土地権利 所有権
私道面積 借地期間・地代
接道状況 東5m公道接面12m 一方道路
セットバック 駐車場
用途地域 1種住居 都市計画 市街化区域
建ぺい率/容積率 60%/200% 現況 空室
地目 宅地 引渡可能時期 相談
情報提供元 LIFULL HOME'S [1449060000007] 情報公開日
情報更新日 次回更新予定日 2025年12月3日

設備など

1種低層地域 - 即入居可 - 売主・代理 -
駐車2台以上 - 平屋 本下水
都市ガス カウンターキッチン - 床暖房 -
ウォークインクローゼット - バリアフリー -
設備 上水道・都市ガス・本下水・給湯・室内洗濯機置き場・洗面所独立
リフォーム履歴 -
リノベーション履歴 -
備考 【物件周辺の生活情報】
・学校
明石市立貴崎小学校(1,000m)、明石市立望海中学校(2,100m)
・買い物
スーパー(1,000m)、コンビニ(550m)、ドラッグストア(1,100m)
 【設備・特記事項備考】専用バス・専用トイレ
国土法届出:不要
販売戸数:1戸/南
特記事項

省エネ性能

エネルギー消費性能 -
断熱性能 -
目安光熱費 -

兵庫県明石市貴崎1丁目 周辺地図情報

地図
※地図上に表示される物件の位置は付近住所に所在することを表すものであり、実際の物件所在地とは異なる場合がございます。
   正確な物件所在地は、取扱い不動産会社にお問い合わせください。
物件を見たい、物件や住環境の詳しい情報やローン相談など、
お問い合わせ先
有限会社明石屋不動産

不動産会社情報

お問い合わせ先 商号:有限会社明石屋不動産
免許番号:兵庫県知事(06)第401115号
所在地:兵庫県高砂市高砂町清水町1484番地の1
取引態様:専属専任媒介
管理コード:7
所属協会など:(公社)全日本不動産協会
共有する
QRコード

お電話でのお問い合わせ

電話をかける(携帯・PHS可)
お問い合わせダイヤル
通話無料0037-634-33570
営業時間 10:00~18:00 (定休日:毎週火曜日・水曜日)
音声案内に従って数字を入力
お問い合わせ番号
17755-2972
不動産会社につながります
不動産会社のスタッフと
直接電話で話せます。
※不動産会社がお電話に出られなかった場合、株式会社LIFULLは電話会社が提供するサービスを介してお客様の発信者番号を受領後、折り返し専用の電話番号を発番してお問合せの不動産会社に通知します(お客様の発信者番号がお問合せの不動産会社に通知されることはございません)
※光IP電話、及びIP電話からはご利用になれません
※0037で始まる電話番号に携帯電話からお問合せいただいた方には、ショートメッセージ(SMS)によるお問合せ完了通知をお届けする場合があります
物件を見たい、物件や住環境の詳しい情報やローン相談など、
お問い合わせ先
有限会社明石屋不動産

明石市の暮らしデータ

人口などの統計情報

世帯数 133488世帯
人口総数 306760人
転入者数 11992人
転入率(人口1000人当たり)
39.09人
転出者数 10079人
転出率(人口1000人当たり)
32.86人
土地平均価格
住宅地
110816円/m2
商業地
185429円/m2

結婚・育児の助成金

子育て関連の独自の取り組み (1)認可保育施設に通う第2子以降の保育料の無料化。(2)小学校1年生の30人学級、中学校1年生の35人学級の導入。(3)高校生世代までの医療費完全無料化。(4)2022年度は保育所等の待機児童解消に向け、300人規模の受け入れ枠拡大をめざす。(5)高校進学に係る給付型奨学金事業(入学準備金[上限30万円]・在学時支援金[毎月1万円]の支給、高校進学に向けた学習支援及び進学後の学校生活支援)の実施。(6)『0歳児見守り訪問「おむつ定期便」』(子育て経験のある配達員が0歳児のいる家庭に紙おむつ等を毎月無料でお届け)。(7)3歳児クラス以上の副食費の無料化。(8)使用済み紙おむつの持ち帰り廃止。
出産祝い なし
公立保育所数 10所(うち0歳児保育を実施している保育所:10所)
私立保育所数 32所(うち0歳児保育を実施している保育所:31所)
保育所入所待機児童数 50人
認定こども園数 63園 預かり保育実施園数 公立:- 私立:1園
学校給食 【小学校】完全給食【中学校】完全給食
公立中学校の学校選択制 一部実施(特例地区[一部の学校区において、指定校以外の学校を希望により選択可能な区域あり])
子ども・学生等医療費助成<通院>対象年齢 18歳3月末まで 子ども・学生等医療費助成<入院>対象年齢 18歳3月末まで

明石市の治安・ごみ収集情報

公共料金・インフラ

ガス料金(22m3使用した場合の月額) 大阪瓦斯株式会社4544円
水道料金(口径20mmで20m3の月額) 明石市2541円
下水道料金(20m3を使用した場合の月額) 明石市2197円
下水道普及率 99.7%

安心・安全

建物火災出火件数 28件
人口10000人当たり
0.92件
刑法犯認知件数 2114件
人口1000人当たり
6.96件
ハザード・防災マップ あり

医療

一般病院総数 19ヶ所
一般診療所総数 248ヶ所
小児科医師数 41人
小児人口10000人当たり
9.50人
産婦人科医師数 38人
15~49歳女性人口1万人当たり
6.25人
介護保険料基準額(月額) 6200円

ごみ

家庭ごみ収集(可燃ごみ) 無料
備考
-
家庭ごみの分別方式 4分別10種〔燃やせるごみ 燃やせないごみ 資源ごみ(缶、びん、ペットボトル) 紙類・布類(新聞紙、雑誌・雑がみ、段ボール、紙パック、布類)〕 拠点回収:使用済み食用油 使用済み小型家電 水銀使用廃製品(水銀体温計 水銀血圧計 水銀温度計)
家庭ごみの戸別収集 一部実施(【ふれあい収集】要援護者ごみ戸別収集[一部地域のみ実施])
粗大ごみ収集 あり
備考
有料。戸別収集。事前申込制。粗大ごみ処理券300円/枚。
生ごみ処理機助成金制度 あり
上限金額
30000円
上限比率
50.0%

明石市の住まいの給付金

中古購入

利子補給制度 なし
補助/助成金制度 なし

増築・改築・改修

利子補給制度 なし
補助/助成金制度 あり
上限金額
(1)150万円(2)10万円(3)80万円
備考
(1)【住宅耐震化促進事業】1981年5月以前築の住宅の耐震化費用を補助。住宅耐震改修計画策定費補助として上限20万円を助成。住宅耐震改修工事費補助として上限130万円を助成。部分型改修工事費補助として50万円を助成。(2)【住宅リフォーム助成】住宅リフォーム工事に要する費用の一部を助成。費用の10%。(3)【高齢者等住宅改造費助成事業】日常生活を営む上で支障がある高齢者及び障害者に対して行うバリアフリー工事費用を助成。住宅改造改造助成対象の工事費合計額のうち80万円(介護保険住宅改修費等と合わせて100万円)までを助成対象基準額とする。生計中心者の所得に応じ費用負担・所得制限あり。他要件あり。
暮らしデータ提供元:生活ガイド.com
※行政機関により公表していない地域及びデータがございます。東京23区以外の政令指定都市は、市全体のデータとして表示しています。
※提供データには細心の注意を払っておりますが、調査後に変更がある場合があります。 最新の情報につきましては各市区役所までお問い合わせいただくか、自治体HPなどをご確認ください。
OCN×ドコモ光新規お申込みで合計最大137,280円相当おトク!特典の内訳・適用条件など詳細はこちら

明石市内の各駅の住みやすさ

住宅ローンの返済額一覧

物件価格 6000万円に対して、年率 で、頭金 の場合
↓ボーナス 35年間 30年間 25年間 20年間 15年間 10年間
0万円 142,771円/月 164,554円/月 195,068円/月 240,863円/月 317,220円/月 469,982円/月
5万円 133,686円/月 155,578円/月 186,201円/月 232,104円/月 308,569円/月 461,437円/月
10万円 124,600円/月 146,602円/月 177,334円/月 223,346円/月 299,917円/月 452,892円/月
15万円 115,515円/月 137,627円/月 168,468円/月 214,587円/月 291,266円/月 444,347円/月
20万円 106,430円/月 128,651円/月 159,601円/月 205,828円/月 282,614円/月 435,802円/月
25万円 97,344円/月 119,675円/月 150,734円/月 197,070円/月 273,963円/月 427,256円/月
30万円 88,259円/月 110,700円/月 141,867円/月 188,311円/月 265,311円/月 418,711円/月
支払い利息合計 4,986,010円~ 4,258,160円~ 3,535,800円~ 2,819,600円~ 2,108,930円~ 1,404,060円~
※元利均等返済方式で試算しています。 「円」の単位以下の端数金額は「切り捨て」として計算しております。
※金利は、固定金利として計算しております。
※上記の住宅ローン返済額一覧は、あくまで試算であり、将来の金利動向により、実際のご返済額とは異なります。
※ボーナス支払総額が総支払額の50%を超えている場合、上記の表では「ローン不可」となります。
※住宅ローン返済額一覧の数値は、住宅ローンのお申し込みやご融資をお約束するものではございません。
物件を見たい、物件や住環境の詳しい情報やローン相談など、
お問い合わせ先
有限会社明石屋不動産

掲載情報の著作権は提供元企業等に帰属します。
Copyright:(C) 2025 LIFULL Co.,Ltd.
アプリで簡単 物件探し 大手不動産サイトの情報から一括検!プッシュ通知で物件を見逃さない
App Storeからダウンロード Google Playで手に入れよう QRコード