アプリで簡単 物件探し 通知 共有 アプリならではの機能を使ってみる
中古住宅

大阪府東大阪市大蓮東1丁目 弥刀駅 中古一戸建て・中古住宅

情報提供元
LIFULL HOME'S
大阪府東大阪市大蓮東1丁目 弥刀駅 中古一戸建て・中古住宅
価格 1980万円
交通
所在地 大阪府東大阪市大蓮東1丁目周辺地図
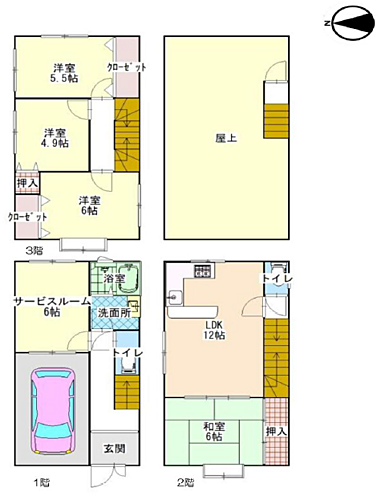
間取り 4SLDK
建物面積 97.98m2 土地面積 42m2
築年月 1996年11月 築年数 築29年1ヶ月
おすすめポイント
リフォーム済の為、即入居が可能です。鉄骨造の家。備考欄をご覧ください。
物件を見たい、物件や住環境の詳しい情報やローン相談など、
お問い合わせ先
株式会社ストレートホーム

詳細情報

価格 1980万円
所在地 大阪府東大阪市大蓮東1丁目周辺地図
交通
間取り 4SLDK(S 6 LDK 12 和 6 洋 6・5.5・4.9) 築年月(築年数) 1996年11月(築29年1ヶ月)
建物面積 97.98m2 建物構造・規模 鉄骨3階建
土地面積 42m2 土地権利 所有権
私道面積 11.7m2 借地期間・地代
接道状況 西4.3m私道接面5m 一方道路 駐車場
用途地域 1種中高 都市計画 市街化区域
建ぺい率/容積率 60%/160% 現況 空室
地目 宅地 引渡可能時期 即時
情報提供元 LIFULL HOME'S [1210910003026] 情報公開日
情報更新日 次回更新予定日 2025年11月9日

設備など

1種低層地域 - 即入居可 売主・代理 -
駐車2台以上 - 平屋 - 本下水 -
都市ガス - カウンターキッチン - 床暖房 -
ウォークインクローゼット - バリアフリー -
設備
リフォーム履歴 -
リノベーション履歴 -
備考 【物件周辺の生活情報】
・買い物
スーパー(330m)、コンビニ(250m)、ドラッグストア(450m)
・その他施設
総合病院(860m)、公園(330m)、銀行(380m)
当社は新生活応援キャンペーン実施中の為、ご成約で15万円をキャッシュバック致します。(令和8年3月末日まで)
国土法届出:不要/西
特記事項

省エネ性能

エネルギー消費性能 -
断熱性能 -
目安光熱費 -

大阪府東大阪市大蓮東1丁目 周辺地図情報

地図
※地図上に表示される物件の位置は付近住所に所在することを表すものであり、実際の物件所在地とは異なる場合がございます。
   正確な物件所在地は、取扱い不動産会社にお問い合わせください。
物件を見たい、物件や住環境の詳しい情報やローン相談など、
お問い合わせ先
株式会社ストレートホーム

不動産会社情報

お問い合わせ先 商号:株式会社ストレートホーム
免許番号:大阪府知事(3)第58142号
所在地:大阪府大阪市阿倍野区昭和町2丁目19-24 青葉ビル5F
取引態様:媒介
管理コード:3026
所属協会など:(公社)近畿圏不動産流通機構、(公社)近畿地区不動産公正取引協議会、(公社)全日本不動産協会大阪府本部
共有する
QRコード

お電話でのお問い合わせ

電話をかける(携帯・PHS可)
お問い合わせダイヤル
通話無料0037-634-50100
営業時間 09:30~18:30 (定休日:毎週水曜日)
音声案内に従って数字を入力
お問い合わせ番号
06223-2973
不動産会社につながります
不動産会社のスタッフと
直接電話で話せます。
※不動産会社がお電話に出られなかった場合、株式会社LIFULLは電話会社が提供するサービスを介してお客様の発信者番号を受領後、折り返し専用の電話番号を発番してお問合せの不動産会社に通知します(お客様の発信者番号がお問合せの不動産会社に通知されることはございません)
※光IP電話、及びIP電話からはご利用になれません
※0037で始まる電話番号に携帯電話からお問合せいただいた方には、ショートメッセージ(SMS)によるお問合せ完了通知をお届けする場合があります
物件を見たい、物件や住環境の詳しい情報やローン相談など、
お問い合わせ先
株式会社ストレートホーム

東大阪市の暮らしデータ

人口などの統計情報

世帯数 231950世帯
人口総数 478539人
転入者数 19570人
転入率(人口1000人当たり)
40.90人
転出者数 17459人
転出率(人口1000人当たり)
36.48人
土地平均価格
住宅地
149705円/m2
商業地
243909円/m2

結婚・育児の助成金

子育て関連の独自の取り組み 子育て支援電話相談事業(24時間・365日)
出産祝い あり
公立保育所数 7所(うち0歳児保育を実施している保育所:3所)
私立保育所数 25所(うち0歳児保育を実施している保育所:25所)
保育所入所待機児童数 5人
認定こども園数 55園 預かり保育実施園数 公立:4園 私立:-
学校給食 【小学校】完全給食(小学校5・6年生無償化)【中学校】完全給食(無償化)
公立中学校の学校選択制 未実施
子ども・学生等医療費助成<通院>対象年齢 18歳3月末まで 子ども・学生等医療費助成<入院>対象年齢 18歳3月末まで

東大阪市の治安・ごみ収集情報

公共料金・インフラ

ガス料金(22m3使用した場合の月額) 大阪瓦斯株式会社4544円
水道料金(口径20mmで20m3の月額) 東大阪市2598円
下水道料金(20m3を使用した場合の月額) 東大阪市2087円
下水道普及率 99.1%

安心・安全

建物火災出火件数 107件
人口10000人当たり
2.17件
刑法犯認知件数 4642件
人口1000人当たり
9.40件
ハザード・防災マップ あり

医療

一般病院総数 19ヶ所
一般診療所総数 397ヶ所
小児科医師数 62人
小児人口10000人当たり
12.25人
産婦人科医師数 41人
15~49歳女性人口1万人当たり
4.48人
介護保険料基準額(月額) 7093円

ごみ

家庭ごみ収集(可燃ごみ) 無料
備考
一時多量ごみ(引越し時に発生したごみ等)は東大阪都市清掃施設組合に直接持ち込む場合のみ処分が可能であり、有料となる。料金は10kgにつき90円(税込み)。
家庭ごみの分別方式 5分別5種〔家庭ごみ あきかん・あきびん 不燃の小物 プラスチック製容器包装 ペットボトル〕拠点回収:乾電池 蛍光管 水銀体温計 使用済小型家電 水銀血圧計 古紙類 小型充電式電池 集団回収:新聞 雑誌 雑がみ ダンボール 古布 紙パック アルミ缶 リターナブルびん 廃食油
家庭ごみの戸別収集 一部実施(一部地域のみ実施)
粗大ごみ収集 あり
備考
有料。戸別収集。事前申込制。電話で10点/回まで受付。1辺の長さが30cm以上で、3辺(高さ・幅・奥行)の長さの合計が3m以下の場合は400円、3mを超える場合は800円となる。
生ごみ処理機助成金制度 なし
上限金額
-
上限比率
-

東大阪市の住まいの給付金

中古購入

利子補給制度 なし
補助/助成金制度 なし

増築・改築・改修

利子補給制度 なし
補助/助成金制度 あり
上限金額
100万円
備考
【東大阪市耐震化促進補助事業(耐震改修工事補助)】1981年5月31日以前に建築されたもので、自ら居住またはこれから居住しようとしているものについて、耐震技術者による耐震改修設計に基づいて行われる工事が対象。地上2階建て以下の木造住宅、防災上の安全確保、申請者の課税所得金額が507万円未満、固定資産税・都市計画税の滞納がないことの条件あり。
暮らしデータ提供元:生活ガイド.com
※行政機関により公表していない地域及びデータがございます。東京23区以外の政令指定都市は、市全体のデータとして表示しています。
※提供データには細心の注意を払っておりますが、調査後に変更がある場合があります。 最新の情報につきましては各市区役所までお問い合わせいただくか、自治体HPなどをご確認ください。

この物件を見た人はこんな物件も見ています

OCN×ドコモ光新規お申込みで合計最大137,280円相当おトク!特典の内訳・適用条件など詳細はこちら

東大阪市内の各駅の住みやすさ

他のエリアから探す

東大阪市の詳細地域から一戸建て物件を探す

旭町足代足代南荒川荒本北荒本西池島町池之端町出雲井町出雲井本町稲田上町稲田新町稲田本町稲葉今米岩田町瓜生堂永和近江堂大蓮北大蓮東大蓮南柏田西柏田東町金岡加納上石切町上小阪上四条町上六万寺町川田河内町川俣本町神田町岸田堂西岸田堂南町衣摺北石切町客坊町喜里川町日下町楠根鴻池町鴻池徳庵町小阪本町寿町古箕輪小若江五条町桜町三ノ瀬新喜多四条町渋川町島之内下小阪下六万寺町俊徳町昭和町新池島町新上小阪新家新家西町新鴻池町新庄新町末広町角田善根寺町太平寺高井田高井田中高井田西高井田本通高井田元町鷹殿町宝町立花町玉串町西玉串町東玉串元町長栄寺長堂寺前町友井豊浦町鳥居町中石切町中鴻池町中小阪中新開中野長瀬町長田南荘町西石切町西岩田西上小阪西鴻池町西堤学園町西堤本通西西堤本通東額田町布市町箱殿町花園西町花園東町花園本町東石切町東上小阪東鴻池町東豊浦町東山町菱江菱屋西菱屋東瓢箪山町本町松原御厨御厨栄町御厨中御厨東御厨南三島水走南上小阪南鴻池町南四条町御幸町元町森河内西森河内東山手町弥生町横小路町横沼町横枕横枕西吉田吉田下島吉田本町六万寺町若江北町若江西新町若江東町若江本町若江南町若草町

近辺の市区から探す

大阪市都島区大阪市福島区大阪市西区大阪市港区大阪市大正区大阪市天王寺区大阪市浪速区大阪市東淀川区大阪市東成区大阪市生野区大阪市旭区大阪市城東区大阪市阿倍野区大阪市住吉区大阪市東住吉区大阪市西成区大阪市淀川区大阪市鶴見区大阪市平野区大阪市北区大阪市中央区吹田市守口市八尾市寝屋川市松原市大東市柏原市摂津市四條畷市

周辺の駅から探す

近鉄大阪線
今里布施俊徳道長瀬弥刀久宝寺口近鉄八尾河内山本高安

住宅ローンの返済額一覧

物件価格 1980万円に対して、年率 で、頭金 の場合
↓ボーナス 35年間 30年間 25年間 20年間 15年間 10年間
0万円 38,418円/月 44,280円/月 52,491円/月 64,814円/月 85,361円/月 126,468円/月
5万円 29,333円/月 35,304円/月 43,624円/月 56,055円/月 76,709円/月 117,922円/月
10万円 20,247円/月 26,328円/月 34,757円/月 47,296円/月 68,058円/月 109,377円/月
15万円 ローン不可 ローン不可 ローン不可 38,538円/月 59,406円/月 100,832円/月
20万円 ローン不可 ローン不可 ローン不可 ローン不可 50,755円/月 92,287円/月
25万円 ローン不可 ローン不可 ローン不可 ローン不可 ローン不可 83,742円/月
30万円 ローン不可 ローン不可 ローン不可 ローン不可 ローン不可 75,197円/月
支払い利息合計 1,342,770円~ 1,146,800円~ 952,300円~ 761,600円~ 571,190円~ 382,380円~
※元利均等返済方式で試算しています。 「円」の単位以下の端数金額は「切り捨て」として計算しております。
※金利は、固定金利として計算しております。
※上記の住宅ローン返済額一覧は、あくまで試算であり、将来の金利動向により、実際のご返済額とは異なります。
※ボーナス支払総額が総支払額の50%を超えている場合、上記の表では「ローン不可」となります。
※住宅ローン返済額一覧の数値は、住宅ローンのお申し込みやご融資をお約束するものではございません。
物件を見たい、物件や住環境の詳しい情報やローン相談など、
お問い合わせ先
株式会社ストレートホーム

掲載情報の著作権は提供元企業等に帰属します。
Copyright:(C) 2025 LIFULL Co.,Ltd.
アプリで簡単 物件探し 大手不動産サイトの情報から一括検!プッシュ通知で物件を見逃さない
App Storeからダウンロード Google Playで手に入れよう QRコード