アプリで簡単 物件探し 通知 共有 アプリならではの機能を使ってみる
中古住宅

東京都小平市花小金井5丁目 花小金井駅 中古一戸建て・中古住宅

情報提供元
LIFULL HOME'S
東京都小平市花小金井5丁目 花小金井駅 中古一戸建て・中古住宅
価格 3580万円
交通
所在地 東京都小平市花小金井5丁目周辺地図
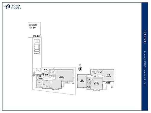
間取り 3LDK
建物面積 88.4m2 土地面積 112.85m2(公簿)
築年月 2008年11月 築年数 築17年1ヶ月
おすすめポイント
全室南向き、二面採光
出窓
物件を見たい、物件や住環境の詳しい情報やローン相談など、
お問い合わせ先
株式会社東宝ハウス練馬

詳細情報

価格 3580万円
所在地 東京都小平市花小金井5丁目周辺地図
交通
  • 西武鉄道新宿線 花小金井駅 徒歩19分乗換案内
間取り 3LDK 築年月(築年数) 2008年11月(築17年1ヶ月)
建物面積 88.4m2 建物構造・規模 木造2階建
土地面積 112.85m2(公簿) 土地権利 所有権
私道面積 借地期間・地代
接道状況 北4.5m私道接面2.2m 一方道路
セットバック 駐車場 空有 無料
用途地域 1種低層 都市計画 市街化区域
建ぺい率/容積率 40%/80% 現況 空室
地目 宅地 引渡可能時期 相談
情報提供元 LIFULL HOME'S [1301590018026] 情報公開日
情報更新日 次回更新予定日 2025年11月16日

設備など

1種低層地域 即入居可 - 売主・代理 -
駐車2台以上 - 平屋 - 本下水
都市ガス カウンターキッチン - 床暖房
ウォークインクローゼット - バリアフリー -
設備 リフォーム・上水道・都市ガス・本下水・バス・トイレ別・コンロ2口以上・システムキッチン・給湯・追焚機能・シャンプードレッサ・床下収納・出窓・フローリング・床暖房・モニタ付インターホン・温水洗浄便座・洗面所独立・クローゼット・シューズボックス・オートバス
リフォーム履歴 ■内装
2023年12月実施
内装全面(床・壁・天井・建具)/壁・天井(クロス・塗装等)/床(フローリング等)
給湯器交換
■外装
2024年04月実施
屋根/外壁
※実施年月は、施工箇所の中で最も古いものを表示しています
リノベーション履歴 -
備考 【物件周辺の生活情報】
・学校
小平市立小平第十一小学校(640m)、小平市立小平第六中学校(990m)
 【設備・特記事項備考】全居室収納
国土法届出:不要/南
特記事項 出窓

省エネ性能

エネルギー消費性能 -
断熱性能 -
目安光熱費 -

東京都小平市花小金井5丁目 周辺地図情報

地図
※地図上に表示される物件の位置は付近住所に所在することを表すものであり、実際の物件所在地とは異なる場合がございます。
   正確な物件所在地は、取扱い不動産会社にお問い合わせください。
物件を見たい、物件や住環境の詳しい情報やローン相談など、
お問い合わせ先
株式会社東宝ハウス練馬

不動産会社情報

お問い合わせ先 商号:株式会社東宝ハウス練馬
免許番号:東京都知事(2)第98694号
所在地:東京都練馬区東大泉1丁目27-22
取引態様:媒介
管理コード:18026
所属協会など:(公社)首都圏不動産公正取引協議会、(公社)東京都宅地建物取引業協会
共有する
QRコード

お電話でのお問い合わせ

電話をかける(携帯・PHS可)
お問い合わせダイヤル
通話無料0037-634-44055
営業時間 09:00~19:00
音声案内に従って数字を入力
お問い合わせ番号
86869-2975
不動産会社につながります
不動産会社のスタッフと
直接電話で話せます。
※不動産会社がお電話に出られなかった場合、株式会社LIFULLは電話会社が提供するサービスを介してお客様の発信者番号を受領後、折り返し専用の電話番号を発番してお問合せの不動産会社に通知します(お客様の発信者番号がお問合せの不動産会社に通知されることはございません)
※光IP電話、及びIP電話からはご利用になれません
※0037で始まる電話番号に携帯電話からお問合せいただいた方には、ショートメッセージ(SMS)によるお問合せ完了通知をお届けする場合があります
物件を見たい、物件や住環境の詳しい情報やローン相談など、
お問い合わせ先
株式会社東宝ハウス練馬

小平市の暮らしデータ

人口などの統計情報

世帯数 91125世帯
人口総数 196913人
転入者数 11700人
転入率(人口1000人当たり)
59.42人
転出者数 10890人
転出率(人口1000人当たり)
55.30人
土地平均価格
住宅地
250688円/m2
商業地
336667円/m2

結婚・育児の助成金

子育て関連の独自の取り組み -
出産祝い なし
公立保育所数 9所(うち0歳児保育を実施している保育所:4所)
私立保育所数 38所(うち0歳児保育を実施している保育所:33所)
保育所入所待機児童数 0人
認定こども園数 6園 預かり保育実施園数 公立:- 私立:9園
学校給食 【小学校】完全給食【中学校】完全給食
公立中学校の学校選択制 未実施
子ども・学生等医療費助成<通院>対象年齢 18歳3月末まで 子ども・学生等医療費助成<入院>対象年齢 18歳3月末まで

小平市の治安・ごみ収集情報

公共料金・インフラ

ガス料金(22m3使用した場合の月額) 東京瓦斯株式会社(東京地区等)3926円
水道料金(口径20mmで20m3の月額) 東京都水道局2816円
下水道料金(20m3を使用した場合の月額) 小平市1655円
下水道普及率 100.0%

安心・安全

建物火災出火件数 29件
人口10000人当たり
1.46件
刑法犯認知件数 1022件
人口1000人当たり
5.14件
ハザード・防災マップ あり

医療

一般病院総数 8ヶ所
一般診療所総数 136ヶ所
小児科医師数 66人
小児人口10000人当たり
26.29人
産婦人科医師数 15人
15~49歳女性人口1万人当たり
3.66人
介護保険料基準額(月額) 6180円

ごみ

家庭ごみ収集(可燃ごみ) 有料
備考
指定ごみ袋有料。
家庭ごみの分別方式 4分別19種〔燃やすごみ(燃やすごみ、枝木) 不燃ごみ 資源(ビン、カン、ペットボトル、金属製なべ・やかん・フライパン、スプレー缶・ガスカートリッジ缶、ライター、電池、蛍光管、水銀体温計・水銀血圧計、紙類[雑誌・雑がみ、シュレッダーくず、段ボール、新聞紙]、ふとん、古布類) プラスチック製容器包装〕
家庭ごみの戸別収集 実施
粗大ごみ収集 あり
備考
有料。戸別収集。事前申込制。廃棄物処理シール(200円、600円、1,000円、2,000円)購入。
生ごみ処理機助成金制度 あり
上限金額
30000円
上限比率
50.0%

小平市の住まいの給付金

中古購入

利子補給制度 なし
補助/助成金制度 なし

増築・改築・改修

利子補給制度 なし
補助/助成金制度 あり
上限金額
(1)15万円(2)120万円
備考
(1)【耐震診断補助】1981年5月31日以前に建築された木造住宅について、耐震診断を行った場合、診断費用の2/3(上限15万円)を補助。(2)【耐震改修補助】1981年5月31日以前に建築された、耐震診断を実施した木造住宅について、耐震基準を満たす耐震改修工事を行なった場合、工事費用の1/3(上限120万円)を補助。
暮らしデータ提供元:生活ガイド.com
※行政機関により公表していない地域及びデータがございます。東京23区以外の政令指定都市は、市全体のデータとして表示しています。
※提供データには細心の注意を払っておりますが、調査後に変更がある場合があります。 最新の情報につきましては各市区役所までお問い合わせいただくか、自治体HPなどをご確認ください。

この物件を見た人はこんな物件も見ています

OCN×ドコモ光新規お申込みで合計最大137,280円相当おトク!特典の内訳・適用条件など詳細はこちら

小平市内の各駅の住みやすさ

住宅ローンの返済額一覧

物件価格 3580万円に対して、年率 で、頭金 の場合
↓ボーナス 35年間 30年間 25年間 20年間 15年間 10年間
0万円 79,952円/月 92,150円/月 109,238円/月 134,883円/月 177,643円/月 263,190円/月
5万円 70,866円/月 83,174円/月 100,371円/月 126,124円/月 168,992円/月 254,645円/月
10万円 61,781円/月 74,198円/月 91,504円/月 117,366円/月 160,340円/月 246,099円/月
15万円 52,695円/月 65,223円/月 82,638円/月 108,607円/月 151,689円/月 237,554円/月
20万円 43,610円/月 56,247円/月 73,771円/月 99,848円/月 143,037円/月 229,009円/月
25万円 ローン不可 47,271円/月 64,904円/月 91,090円/月 134,386円/月 220,464円/月
30万円 ローン不可 ローン不可 56,037円/月 82,331円/月 125,734円/月 211,919円/月
支払い利息合計 2,794,330円~ 2,389,360円~ 1,986,800円~ 1,584,400円~ 1,185,070円~ 789,020円~
※元利均等返済方式で試算しています。 「円」の単位以下の端数金額は「切り捨て」として計算しております。
※金利は、固定金利として計算しております。
※上記の住宅ローン返済額一覧は、あくまで試算であり、将来の金利動向により、実際のご返済額とは異なります。
※ボーナス支払総額が総支払額の50%を超えている場合、上記の表では「ローン不可」となります。
※住宅ローン返済額一覧の数値は、住宅ローンのお申し込みやご融資をお約束するものではございません。
物件を見たい、物件や住環境の詳しい情報やローン相談など、
お問い合わせ先
株式会社東宝ハウス練馬

掲載情報の著作権は提供元企業等に帰属します。
Copyright:(C) 2025 LIFULL Co.,Ltd.
アプリで簡単 物件探し 大手不動産サイトの情報から一括検!プッシュ通知で物件を見逃さない
App Storeからダウンロード Google Playで手に入れよう QRコード