中古住宅
東京都小平市花小金井5 花小金井駅 中古一戸建て・中古住宅
 
  
    
      | 価格 | 4999万円 | 
    
      | 交通 |  | 
    
      | 所在地 | 東京都小平市花小金井5周辺地図 | 
    
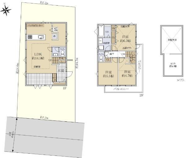
      | 間取り | 3LDK | 
    
      | 建物面積 | 84.14m2(25.45坪) | 土地面積 | 105.73m2(31.98坪) | 
    
      | 築年月 | 2019年5月 | 築年数 | 築6年6ヶ月 | 
  
 
 
- おすすめポイント
- 小平市花小金井5丁目、閑静な住宅街に佇む注文住宅一戸建てのご紹介です。間取りは3LDK+ロフト+土間スペース駐車スペース1台分に加え、お庭スペースが設けられております。南道路に接道、又、南面にお庭が設けられている為、明るく開放感を感じられる立地となっております。キッチンスペースには明り取りがあり、二階の洋室(約6.3帖)は勾配天井で開放感がある設計と、立地に合わせた工夫がなされた戸建となっております。床暖房やペレットストーブ等、生活を彩る設備もございます。この機会に是非、ご検討ください。
 日当り良好・整形地
    
    
  
    - お問い合わせ先
- 住友不動産ステップ(株)平塚営業センター
 
  
    物件を見たい、物件や住環境の詳しい情報やローン相談など、
    
    
    
      - お問い合わせ先
- 住友不動産ステップ(株)平塚営業センター
 
 
| 価格 | 4999万円 | 
| 所在地 | 東京都小平市花小金井5周辺地図 | 
| 交通 |  | 
| 間取り | 3LDK | 築年月(築年数) | 2019年5月(築6年6ヶ月) | 
| 建物面積 | 84.14m2(25.45坪) | 建物構造・規模 | 木造2階建 | 
| 土地面積 | 105.73m2(31.98坪) | 土地権利 | 所有権 | 
| 私道面積 |  | 借地期間・地代 |  | 
| 接道状況 | 南4m接面7.2m | 駐車場 |  | 
| 用途地域 | 1種低層 | 都市計画 |  | 
| 建ぺい率/容積率 | 40%/80% | 現況 |  | 
| 地目 |  | 引渡可能時期 | 相談 | 
| 情報提供元 | SUUMO [030Z77392441] | 情報公開日 |  | 
| 情報更新日 |  | 次回更新予定日 | 随時 | 
設備など
| 1種低層地域 | ○ | 即入居可 | - | 売主・代理 | - | 
| 駐車2台以上 | - | 平屋 | - | 本下水 | - | 
| 都市ガス | ○ | カウンターキッチン | - | 床暖房 | ○ | 
| ウォークインクローゼット | - | バリアフリー | - |  |  | 
| 設備 | 庭・トイレ2ヶ所・床暖房・都市ガス | 
| リフォーム履歴 | - | 
| リノベーション履歴 | - | 
| 備考 | <物件名>花小金井5(花小金井駅) 4999万円/<土地権利>所有権/<間取り>3LDK/<特徴>花小金井5丁目 地元工務店による注文住宅。3LDK+ロフト+土間スペース、南向き・陽当り良好・整形地・庭・EV車充電設備 販売戸数:1戸
 法令等制限:地勢:平坦/駐車場有り
 | 
| 特記事項 | 日当り良好・整形地 | 
東京都小平市花小金井5 周辺地図情報
※地図上に表示される物件の位置は付近住所に所在することを表すものであり、実際の物件所在地とは異なる場合がございます。
   正確な物件所在地は、取扱い不動産会社にお問い合わせください。
 
 
  
    物件を見たい、物件や住環境の詳しい情報やローン相談など、
    
    
    
      - お問い合わせ先
- 住友不動産ステップ(株)平塚営業センター
 
 
不動産会社情報
| お問い合わせ先 | 商号:住友不動産ステップ(株)平塚営業センター 免許番号:国土交通大臣(13)第002077号
 所在地:神奈川県平塚市宝町2-6 高久ビル4階
 TEL:0120-255178
 取引態様:専任媒介
 管理コード:140K2072
 | 共有する |  | 
  
    物件を見たい、物件や住環境の詳しい情報やローン相談など、
    
    
    
      - お問い合わせ先
- 住友不動産ステップ(株)平塚営業センター
 
 
  
  
    人口などの統計情報
    
      
        
          | 世帯数 | 91125世帯 | 
        
          | 人口総数 | 196913人 | 
        
          | 転入者数 | 11700人 
 
              転入率(人口1000人当たり)59.42人 | 
        
          | 転出者数 | 10890人 
 
              転出率(人口1000人当たり)55.30人 | 
        
          | 土地平均価格 | 
              住宅地250688円/m2商業地336667円/m2 | 
      
    
   
    
    結婚・育児の助成金
    
      
        
          | 子育て関連の独自の取り組み | - | 
        
          | 出産祝い | なし | 
        
          | 公立保育所数 | 9所(うち0歳児保育を実施している保育所:4所) | 
        
          | 私立保育所数 | 38所(うち0歳児保育を実施している保育所:33所) | 
        
          | 保育所入所待機児童数 | 0人 | 
        
          | 認定こども園数 | 6園 | 預かり保育実施園数 | 公立:- 私立:9園 | 
        
          | 学校給食 | 【小学校】完全給食【中学校】完全給食 | 
        
          | 公立中学校の学校選択制 | 未実施 | 
        
          | 子ども・学生等医療費助成<通院>対象年齢 | 18歳3月末まで | 子ども・学生等医療費助成<入院>対象年齢 | 18歳3月末まで | 
      
    
   
    
    小平市の治安・ごみ収集情報
    公共料金・インフラ
    
      
        
          | ガス料金(22m3使用した場合の月額) | 東京瓦斯株式会社(東京地区等)3926円 | 
        
          | 水道料金(口径20mmで20m3の月額) | 東京都水道局2816円 | 
        
          | 下水道料金(20m3を使用した場合の月額) | 小平市1655円 | 
        
          | 下水道普及率 | 100.0% | 
      
    
    安心・安全
    
      
        
          | 建物火災出火件数 | 29件 
              人口10000人当たり1.46件 | 
        
          | 刑法犯認知件数 | 1022件 
              人口1000人当たり5.14件 | 
        
          | ハザード・防災マップ | あり | 
      
    
    医療
    
      
        
          | 一般病院総数 | 8ヶ所 | 
        
          | 一般診療所総数 | 136ヶ所 | 
        
          | 小児科医師数 | 66人 
              小児人口10000人当たり26.29人 | 
        
          | 産婦人科医師数 | 15人 
              15~49歳女性人口1万人当たり3.66人 | 
        
          | 介護保険料基準額(月額) | 6180円 | 
      
    
    ごみ
    
      
        
          | 家庭ごみ収集(可燃ごみ) | 有料 | 
        
          | 家庭ごみの分別方式 | 4分別19種〔燃やすごみ(燃やすごみ、枝木) 不燃ごみ 資源(ビン、カン、ペットボトル、金属製なべ・やかん・フライパン、スプレー缶・ガスカートリッジ缶、ライター、電池、蛍光管、水銀体温計・水銀血圧計、紙類[雑誌・雑がみ、シュレッダーくず、段ボール、新聞紙]、ふとん、古布類) プラスチック製容器包装〕 | 
        
          | 家庭ごみの戸別収集 | 実施 | 
        
          | 粗大ごみ収集 | あり | 
        
          | 生ごみ処理機助成金制度 | あり 
              上限金額30000円上限比率50.0% | 
      
    
   
  
      小平市の住まいの給付金
                  中古購入
    
    増築・改築・改修
    
      
        
          | 利子補給制度 | なし | 
        
          | 補助/助成金制度 | あり 
              上限金額(1)15万円(2)120万円 | 
      
    
          
    
      ※行政機関により公表していない地域及びデータがございます。東京23区以外の政令指定都市は、市全体のデータとして表示しています。
      
※提供データには細心の注意を払っておりますが、調査後に変更がある場合があります。 最新の情報につきましては各市区役所までお問い合わせいただくか、自治体HPなどをご確認ください。
    
      小平市の暮らしデータをもっと見る
     
 
  
    
  
  
    物件を見たい、物件や住環境の詳しい情報やローン相談など、
    
    
    
      - お問い合わせ先
- 住友不動産ステップ(株)平塚営業センター