アプリで簡単 物件探し 通知 共有 アプリならではの機能を使ってみる
中古住宅

大阪府堺市西区浜寺船尾町西4 船尾駅 中古一戸建て・中古住宅

情報提供元
SUUMO
大阪府堺市西区浜寺船尾町西4 船尾駅 中古一戸建て・中古住宅
価格 3180万円
交通
所在地 大阪府堺市西区浜寺船尾町西4周辺地図
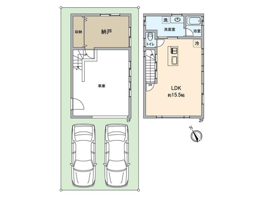
間取り 1LDK
建物面積 74.52m2(22.54坪)(登記)、うち1階車庫21.5m2 土地面積 76.17m2(23.04坪)(登記)
築年月 2020年3月 築年数 築5年8ヶ月
おすすめポイント
-物件のおすすめポイント-▼立地・阪堺電気軌道阪堺線「船尾」駅 徒歩8分 他・第一種低層住居専用地域の閑静な住宅街▼特徴・2020年3月築の2階建住宅・プライバシーに配慮された2階リビング・LDKは約15.5帖、南西向きで陽当り良好・回遊性のあるアイランドキッチン採用・窓・収納付の納戸は多用途に活用可能・シャッター付車庫有(車種による)▼周辺環境・スーパー「万代諏訪ノ森店」徒歩8分(約630m)※1LDK表記となっていますが、実際はLDK+納戸です■ ご希望の住まい探しをお手伝いします ━━━━━・・・物件の詳細・ご相談はお気軽にお問い合わせください。
日当り良好・閑静な住宅街
お問い合わせ先
三井のリハウス堺東センター三井不動産リアルティ(株)
物件を見たい、物件や住環境の詳しい情報やローン相談など、
お問い合わせ先
三井のリハウス堺東センター三井不動産リアルティ(株)

詳細情報

価格 3180万円
所在地 大阪府堺市西区浜寺船尾町西4周辺地図
交通
間取り 1LDK 築年月(築年数) 2020年3月(築5年8ヶ月)
建物面積 74.52m2(22.54坪)(登記)、うち1階車庫21.5m2 建物構造・規模 木造2階建
土地面積 76.17m2(23.04坪)(登記) 土地権利 所有権
私道面積 借地期間・地代
接道状況 南西5.4m接面5.6m 駐車場
用途地域 1種低層 都市計画
建ぺい率/容積率 50%/100% 現況
地目 引渡可能時期 相談
情報提供元 SUUMO [060Z76909153] 情報公開日
情報更新日 次回更新予定日 随時

設備など

1種低層地域 即入居可 - 売主・代理 -
駐車2台以上 - 平屋 - 本下水
都市ガス カウンターキッチン - 床暖房 -
ウォークインクローゼット - バリアフリー -
設備 トイレ・収納スペース・都市ガス・温水洗浄便座・風呂・車庫・上水道・本下水・フローリング
リフォーム履歴 -
リノベーション履歴 -
備考 <物件名>浜寺船尾町西4(船尾駅) 3180万円/<土地権利>所有権/<間取り>1LDK/<特徴>■三井のリハウス■陽当り良好なガレージハウス駐車3台可能(車種による)、2沿線以上利用可・スーパー 徒歩10分以内・陽当り良好・全居室収納・閑静な住宅地
販売戸数:1戸
特記事項 日当り良好・閑静な住宅街

省エネ性能

エネルギー消費性能 -
断熱性能 -
目安光熱費 -

大阪府堺市西区浜寺船尾町西4 周辺地図情報

地図
※地図上に表示される物件の位置は付近住所に所在することを表すものであり、実際の物件所在地とは異なる場合がございます。
   正確な物件所在地は、取扱い不動産会社にお問い合わせください。
物件を見たい、物件や住環境の詳しい情報やローン相談など、
お問い合わせ先
三井のリハウス堺東センター三井不動産リアルティ(株)

不動産会社情報

お問い合わせ先 商号:三井のリハウス堺東センター三井不動産リアルティ(株)
免許番号:国土交通大臣(15)第000777号
所在地:大阪府堺市堺区南花田口町2-3-1 堺東高橋ビル1階
TEL:00786-01794188
取引態様:専任媒介
管理コード:FNDABA06
共有する
QRコード
物件を見たい、物件や住環境の詳しい情報やローン相談など、
お問い合わせ先
三井のリハウス堺東センター三井不動産リアルティ(株)

堺市西区の暮らしデータ

人口などの統計情報

世帯数 365535世帯
人口総数 817041人
転入者数 37003人
転入率(人口1000人当たり)
45.29人
転出者数 35961人
転出率(人口1000人当たり)
44.01人
土地平均価格
住宅地
143254円/m2
商業地
254357円/m2

結婚・育児の助成金

子育て関連の独自の取り組み (1)「さかいマイ保育園」の実施(身近な保育所[園]をかかりつけ保育園として登録)。(2)子ども食堂。(3)子育て応援アプリ。
出産祝い あり
公立保育所数 0所(うち0歳児保育を実施している保育所:-)
私立保育所数 24所(うち0歳児保育を実施している保育所:24所)
保育所入所待機児童数 0人
認定こども園数 136園 預かり保育実施園数 公立:4園 私立:5園
学校給食 【小学校】完全給食【中学校】家庭弁当等との選択制/デリバリー形式[運搬:ランチボックス、内容:完全給食]
公立中学校の学校選択制 一部実施
子ども・学生等医療費助成<通院>対象年齢 18歳3月末まで 子ども・学生等医療費助成<入院>対象年齢 18歳3月末まで

堺市西区の治安・ごみ収集情報

公共料金・インフラ

ガス料金(22m3使用した場合の月額) 大阪瓦斯株式会社4544円
水道料金(口径20mmで20m3の月額) 堺市2464円
下水道料金(20m3を使用した場合の月額) 堺市2821円
下水道普及率 98.5%

安心・安全

建物火災出火件数 115件
人口10000人当たり
1.39件
刑法犯認知件数 6173件
人口1000人当たり
7.47件
ハザード・防災マップ あり

医療

一般病院総数 39ヶ所
一般診療所総数 744ヶ所
小児科医師数 108人
小児人口10000人当たり
11.15人
産婦人科医師数 73人
15~49歳女性人口1万人当たり
4.60人
介護保険料基準額(月額) 7418円

ごみ

家庭ごみ収集(可燃ごみ) 無料
備考
-
家庭ごみの分別方式 2分別12種〔生活ごみ 資源(缶類・びん類、プラスチック製容器包装、ペットボトル、小型金属[金属、刃物類、スプレー缶・カセットボンベ]、古紙類[新聞、雑誌、ダンボール、紙パック]、不燃小物類)〕
家庭ごみの戸別収集 実施
粗大ごみ収集 あり
備考
有料。戸別収集。事前申込制。粗大ごみ処理券を貼付。
生ごみ処理機助成金制度 なし
上限金額
-
上限比率
-

堺市西区の住まいの給付金

中古購入

利子補給制度 なし
補助/助成金制度 なし

増築・改築・改修

利子補給制度 なし
補助/助成金制度 あり
上限金額
(1)110万円(2)200万円
備考
(1)【耐震改修補助】設計費補助は上限10万円、工事費補助は上限100万円。(2)【住宅・建築物防火改修等促進事業】防火改修等工事費の2/3以内で上限200万円。
暮らしデータ提供元:生活ガイド.com
※行政機関により公表していない地域及びデータがございます。東京23区以外の政令指定都市は、市全体のデータとして表示しています。
※提供データには細心の注意を払っておりますが、調査後に変更がある場合があります。 最新の情報につきましては各市区役所までお問い合わせいただくか、自治体HPなどをご確認ください。

この物件を見た人はこんな物件も見ています

OCN×ドコモ光新規お申込みで合計最大137,280円相当おトク!特典の内訳・適用条件など詳細はこちら

堺市西区内の各駅の住みやすさ

住宅ローンの返済額一覧

物件価格 3180万円に対して、年率 で、頭金 の場合
↓ボーナス 35年間 30年間 25年間 20年間 15年間 10年間
0万円 69,568円/月 80,182円/月 95,051円/月 117,366円/月 154,573円/月 229,009円/月
5万円 60,483円/月 71,207円/月 86,184円/月 108,607円/月 145,921円/月 220,464円/月
10万円 51,397円/月 62,231円/月 77,318円/月 99,848円/月 137,270円/月 211,919円/月
15万円 42,312円/月 53,255円/月 68,451円/月 91,090円/月 128,618円/月 203,374円/月
20万円 ローン不可 44,280円/月 59,584円/月 82,331円/月 119,967円/月 194,829円/月
25万円 ローン不可 ローン不可 50,717円/月 73,572円/月 111,315円/月 186,284円/月
30万円 ローン不可 ローン不可 ローン不可 64,814円/月 102,664円/月 177,738円/月
支払い利息合計 2,429,620円~ 2,078,240円~ 1,728,200円~ 1,380,320円~ 1,032,470円~ 687,300円~
※元利均等返済方式で試算しています。 「円」の単位以下の端数金額は「切り捨て」として計算しております。
※金利は、固定金利として計算しております。
※上記の住宅ローン返済額一覧は、あくまで試算であり、将来の金利動向により、実際のご返済額とは異なります。
※ボーナス支払総額が総支払額の50%を超えている場合、上記の表では「ローン不可」となります。
※住宅ローン返済額一覧の数値は、住宅ローンのお申し込みやご融資をお約束するものではございません。
物件を見たい、物件や住環境の詳しい情報やローン相談など、
お問い合わせ先
三井のリハウス堺東センター三井不動産リアルティ(株)

掲載情報の著作権は提供元企業等に帰属します。
Copyright:(C) 2025 Recruit Co., Ltd.
アプリで簡単 物件探し 大手不動産サイトの情報から一括検!プッシュ通知で物件を見逃さない
App Storeからダウンロード Google Playで手に入れよう QRコード