アプリで簡単 物件探し 通知 共有 アプリならではの機能を使ってみる
中古住宅

愛知県尾張旭市城山町三ツ池 尾張旭駅 中古一戸建て・中古住宅

情報提供元
SUUMO
愛知県尾張旭市城山町三ツ池 尾張旭駅 中古一戸建て・中古住宅
価格 3140万円
交通
所在地 愛知県尾張旭市城山町三ツ池周辺地図
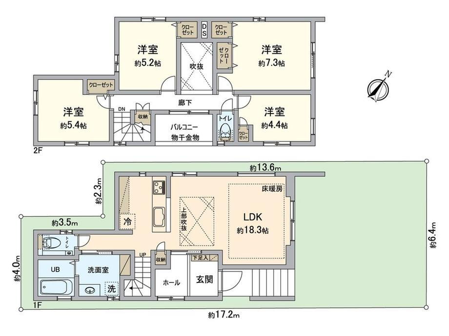
間取り 4LDK
建物面積 96.65m2(29.23坪)(登記) 土地面積 105.81m2(32.00坪)(登記)
築年月 2022年8月 築年数 築3年3ヶ月
おすすめポイント
-物件のおすすめポイント-▼立地・第一種低層住居専用地域▼特徴・2022年8月築・家族の集うLDKは約18.3帖、リビングは床暖房付・会話の弾む対面式キッチン・コミュニケーションを育むリビング階段・主寝室は約7.3帖、ダブルクローゼット仕様・南東向きインナーバルコニー有・トイレは2か所、来客時も気兼ねなく使用可能・全居室に収納スペース有・並列2台駐車可能(車種による)▼周辺環境・城山小学校 徒歩5分(約380m)・長池上公園 徒歩5分(約350m)■ ご希望の住まい探しをお手伝いします ━━━━━・・・物件の詳細・ご相談はお気軽にお問い合わせください。
セットバック要
お問い合わせ先
三井のリハウス藤が丘センター三井不動産リアルティ(株)
物件を見たい、物件や住環境の詳しい情報やローン相談など、
お問い合わせ先
三井のリハウス藤が丘センター三井不動産リアルティ(株)

詳細情報

価格 3140万円
所在地 愛知県尾張旭市城山町三ツ池周辺地図
交通
間取り 4LDK 築年月(築年数) 2022年8月(築3年3ヶ月)
建物面積 96.65m2(29.23坪)(登記) 建物構造・規模 木造2階建
土地面積 105.81m2(32.00坪)(登記) 土地権利 所有権
私道面積 借地期間・地代
接道状況 北東3m接面6.4m 駐車場
用途地域 1種低層 都市計画
建ぺい率/容積率 60%/100% 現況
地目 引渡可能時期 相談
情報提供元 SUUMO [050Z78285932] 情報公開日
情報更新日 次回更新予定日 随時

設備など

1種低層地域 即入居可 - 売主・代理 -
駐車2台以上 - 平屋 - 本下水
都市ガス カウンターキッチン - 床暖房
ウォークインクローゼット - バリアフリー -
設備 収納スペース・都市ガス・風呂・対面K・トイレ2ヶ所・床暖房・上水道・本下水
リフォーム履歴 -
リノベーション履歴 -
備考 <物件名>城山町三ツ池(尾張旭駅) 3140万円/<土地権利>所有権/<間取り>4LDK/<特徴>■三井のリハウス■全居室2面採光を確保LDKは開放感ある吹抜け設計、LDK18畳以上・全居室収納・対面式キッチン・トイレ2ヶ所・浴室に窓
販売戸数:1戸
特記事項 セットバック要

省エネ性能

エネルギー消費性能 -
断熱性能 -
目安光熱費 -

愛知県尾張旭市城山町三ツ池 周辺地図情報

地図
※地図上に表示される物件の位置は付近住所に所在することを表すものであり、実際の物件所在地とは異なる場合がございます。
   正確な物件所在地は、取扱い不動産会社にお問い合わせください。
物件を見たい、物件や住環境の詳しい情報やローン相談など、
お問い合わせ先
三井のリハウス藤が丘センター三井不動産リアルティ(株)

不動産会社情報

お問い合わせ先 商号:三井のリハウス藤が丘センター三井不動産リアルティ(株)
免許番号:国土交通大臣(15)第000777号
所在地:愛知県名古屋市名東区藤見が丘16 藤が丘駅南ビル1階
TEL:00786-01794242
取引態様:専任媒介
管理コード:FLXAQA12
共有する
QRコード
物件を見たい、物件や住環境の詳しい情報やローン相談など、
お問い合わせ先
三井のリハウス藤が丘センター三井不動産リアルティ(株)

尾張旭市の暮らしデータ

人口などの統計情報

世帯数 33925世帯
人口総数 83947人
転入者数 3590人
転入率(人口1000人当たり)
42.77人
転出者数 3290人
転出率(人口1000人当たり)
39.19人
土地平均価格
住宅地
110663円/m2
商業地
117000円/m2

結婚・育児の助成金

子育て関連の独自の取り組み (1)子育ての不安解消→Let's産後ケアの開催、子育て仲間づくり→双子三つ子サロンや年齢別サロンの開催、育児のリフレッシュ→預かりの実施、子育て力アップ→すくすく子育て講座の開催。(2)認可外保育支援事業(市の保育室の基準を満たしている施設に対して助成)。(3)利用者支援事業「あさぴー子育てコンシェルジュ」を開設(母子保健コーディネーターを配置し、妊娠期から乳幼児期の相談・支援を実施)。(4)妊娠後期電話相談事業として、妊娠期から子育て期を安心して過ごせるよう支援。(5)多胎児家庭の支援として、乳幼児健康診査・健康相談を安心して受診できるよう、希望者への託児ボランティアの付き添い支援を実施。
出産祝い なし
公立保育所数 12所(うち0歳児保育を実施している保育所:7所)
私立保育所数 3所(うち0歳児保育を実施している保育所:3所)
保育所入所待機児童数 15人
認定こども園数 0園 預かり保育実施園数 公立:- 私立:4園
学校給食 【小学校】完全給食【中学校】完全給食
公立中学校の学校選択制 未実施
子ども・学生等医療費助成<通院>対象年齢 18歳3月末まで 子ども・学生等医療費助成<入院>対象年齢 18歳3月末まで

尾張旭市の治安・ごみ収集情報

公共料金・インフラ

ガス料金(22m3使用した場合の月額) 東邦瓦斯株式会社5307円
水道料金(口径20mmで20m3の月額) 尾張旭市3355円
下水道料金(20m3を使用した場合の月額) 尾張旭市2420円
下水道普及率 88.4%

安心・安全

建物火災出火件数 9件
人口10000人当たり
1.08件
刑法犯認知件数 367件
人口1000人当たり
4.41件
ハザード・防災マップ あり

医療

一般病院総数 1ヶ所
一般診療所総数 74ヶ所
小児科医師数 19人
小児人口10000人当たり
17.24人
産婦人科医師数 6人
15~49歳女性人口1万人当たり
3.67人
介護保険料基準額(月額) 5490円

ごみ

家庭ごみ収集(可燃ごみ) 無料
備考
指定ごみ袋あり。
家庭ごみの分別方式 8分別12種〔可燃ごみ 不燃ごみ 空きかん 空きびん 古紙類(新聞紙、ダンボール、雑誌・図書類、雑紙) 古着類 プラスチック製容器包装 発火性危険物(充電式電池、スプレー缶類)〕 拠点回収:ペットボトル 紙パック 乾電池 食用油 小型家電 充電式電池
家庭ごみの戸別収集 一部実施(【あさひ訪問収集】市内在住の要支援・要介護認定を受けている方のみの世帯、または障がい者のみの世帯などで、自力でごみを排出することが困難であり、親族や近隣在住者などの協力を得ることができない世帯からの申請に基づき、市が実態調査を行ったうえで戸別収集を実施)
粗大ごみ収集 あり
備考
有料。事前申込制。電話又はインターネットにて申し込み。800円/点で1世帯あたり月1回5点まで。
生ごみ処理機助成金制度 あり
上限金額
8000円
上限比率
50.0%

尾張旭市の住まいの給付金

中古購入

利子補給制度 なし
補助/助成金制度 なし

増築・改築・改修

利子補給制度 なし
補助/助成金制度 あり
上限金額
100万円
備考
【民間木造住宅耐震改修費補助】1981年5月31日以前に着工された木造住宅で耐震診断の結果1.0未満と診断された住宅の判定値を1.0以上にする改修工事に要した費用の80%(上限100万円)を助成。
暮らしデータ提供元:生活ガイド.com
※行政機関により公表していない地域及びデータがございます。東京23区以外の政令指定都市は、市全体のデータとして表示しています。
※提供データには細心の注意を払っておりますが、調査後に変更がある場合があります。 最新の情報につきましては各市区役所までお問い合わせいただくか、自治体HPなどをご確認ください。

この物件を見た人はこんな物件も見ています

OCN×ドコモ光新規お申込みで合計最大137,280円相当おトク!特典の内訳・適用条件など詳細はこちら

尾張旭市内の各駅の住みやすさ

住宅ローンの返済額一覧

物件価格 3140万円に対して、年率 で、頭金 の場合
↓ボーナス 35年間 30年間 25年間 20年間 15年間 10年間
0万円 68,530円/月 78,986円/月 93,632円/月 115,614円/月 152,265円/月 225,591円/月
5万円 59,445円/月 70,010円/月 84,766円/月 106,855円/月 143,614円/月 217,046円/月
10万円 50,359円/月 61,034円/月 75,899円/月 98,097円/月 134,963円/月 208,501円/月
15万円 41,274円/月 52,058円/月 67,032円/月 89,338円/月 126,311円/月 199,956円/月
20万円 ローン不可 43,083円/月 58,165円/月 80,579円/月 117,660円/月 191,411円/月
25万円 ローン不可 ローン不可 49,299円/月 71,821円/月 109,008円/月 182,865円/月
30万円 ローン不可 ローン不可 ローン不可 63,062円/月 100,357円/月 174,320円/月
支払い利息合計 2,393,660円~ 2,047,320円~ 1,702,800円~ 1,359,840円~ 1,017,210円~ 677,140円~
※元利均等返済方式で試算しています。 「円」の単位以下の端数金額は「切り捨て」として計算しております。
※金利は、固定金利として計算しております。
※上記の住宅ローン返済額一覧は、あくまで試算であり、将来の金利動向により、実際のご返済額とは異なります。
※ボーナス支払総額が総支払額の50%を超えている場合、上記の表では「ローン不可」となります。
※住宅ローン返済額一覧の数値は、住宅ローンのお申し込みやご融資をお約束するものではございません。
物件を見たい、物件や住環境の詳しい情報やローン相談など、
お問い合わせ先
三井のリハウス藤が丘センター三井不動産リアルティ(株)

掲載情報の著作権は提供元企業等に帰属します。
Copyright:(C) 2025 Recruit Co., Ltd.
アプリで簡単 物件探し 大手不動産サイトの情報から一括検!プッシュ通知で物件を見逃さない
App Storeからダウンロード Google Playで手に入れよう QRコード