アプリで簡単 物件探し 通知 共有 アプリならではの機能を使ってみる
中古住宅

東京都小平市小川西町5 小川駅 中古一戸建て・中古住宅

情報提供元
SUUMO
東京都小平市小川西町5 小川駅 中古一戸建て・中古住宅
価格 3880万円
交通
所在地 東京都小平市小川西町5周辺地図
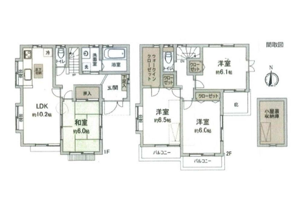
間取り 4LDK
建物面積 86.4m2(登記) 土地面積 109.6m2(登記)
築年月 2004年1月 築年数 築21年10ヶ月
おすすめポイント
□■地元密着の不動産■□小川町周辺エリアなら当社にお任せ下さい。◇南側9メートル道路に面し日当た良好です。◇全居室6帖以上のゆったりとした4LDKの間取りは、ご家族それぞれのプライベートな空間をしっかり確保できます。◇ウォークインクローゼットと小屋裏収納を完備!収納充実。◇駐車場スペース2台分を確保。来客時も安心です。◇修繕履歴:2020・年11月給湯器交換・ガスレンジ交換 ・2022年 2月 屋根・外壁塗装 ・2025年9月 壁紙大部分張替え◆現在ご入居中のため、内見をご希望の際には事前にご相談ください。
日当り良好・駐車場2台分・整形地・浴室1坪以上
お問い合わせ先
(有)和不動産&スペース・アイ
物件を見たい、物件や住環境の詳しい情報やローン相談など、
お問い合わせ先
(有)和不動産&スペース・アイ

詳細情報

価格 3880万円
所在地 東京都小平市小川西町5周辺地図
交通
間取り 4LDK 築年月(築年数) 2004年1月(築21年10ヶ月)
建物面積 86.4m2(登記) 建物構造・規模 木造2階建
土地面積 109.6m2(登記) 土地権利 所有権
私道面積 借地期間・地代
接道状況 南9m接面8.3m 駐車場
用途地域 1種低層 都市計画
建ぺい率/容積率 40%/80% 現況
地目 引渡可能時期 相談
情報提供元 SUUMO [030Z78136261] 情報公開日
情報更新日 次回更新予定日 随時

設備など

1種低層地域 即入居可 - 売主・代理 -
駐車2台以上 平屋 - 本下水
都市ガス カウンターキッチン - 床暖房 -
ウォークインクローゼット バリアフリー -
設備 バルコニー・トイレ・収納スペース・洗面所・都市ガス・浴室乾燥機・ウォークインクローゼット・シャンプードレッサ・温水洗浄便座・システムキッチン・モニタ付インターホン・風呂・トイレ2ヶ所・床下収納・グルニエ・衣類乾燥機・上水道・本下水・駐車場2台分・リフォーム
リフォーム履歴 2020年11月完了
 水回り設備交換:キッチン
2022年2月完了
 その他リフォーム:外壁・屋根
※年月は一番古いリフォーム箇所を表します
リノベーション履歴 -
備考 <物件名>小川西町5(小川駅) 3880万円/<駐車場>カースペース/<土地権利>所有権/<間取り>4LDK/<リフォーム>●リフォーム:2020年11月完了(水回り設備交換:キッチン)、2022年2月完了(その他リフォーム:外壁・屋根)※年月は一番古いリフォーム箇所を表します/<特徴>陽当たり良好な4LDKの住まい。屋根裏収納・WIC付で収納充実、駐車2台可・2沿線以上利用可・スーパー 徒歩10分以内・内外装リフォーム・南向き
販売戸数:1戸
法令等制限:景観法、航空法
特記事項 日当り良好・駐車場2台分・整形地・浴室1坪以上

省エネ性能

エネルギー消費性能 -
断熱性能 -
目安光熱費 -

東京都小平市小川西町5 周辺地図情報

地図
※地図上に表示される物件の位置は付近住所に所在することを表すものであり、実際の物件所在地とは異なる場合がございます。
   正確な物件所在地は、取扱い不動産会社にお問い合わせください。
物件を見たい、物件や住環境の詳しい情報やローン相談など、
お問い合わせ先
(有)和不動産&スペース・アイ

不動産会社情報

お問い合わせ先 商号:(有)和不動産&スペース・アイ
免許番号:東京都知事(4)第087519号
所在地:東京都小平市小川町1-904-8
TEL:042-341-0140
取引態様:専属専任媒介
共有する
QRコード
物件を見たい、物件や住環境の詳しい情報やローン相談など、
お問い合わせ先
(有)和不動産&スペース・アイ

小平市の暮らしデータ

人口などの統計情報

世帯数 91125世帯
人口総数 196913人
転入者数 11700人
転入率(人口1000人当たり)
59.42人
転出者数 10890人
転出率(人口1000人当たり)
55.30人
土地平均価格
住宅地
250688円/m2
商業地
336667円/m2

結婚・育児の助成金

子育て関連の独自の取り組み -
出産祝い なし
公立保育所数 9所(うち0歳児保育を実施している保育所:4所)
私立保育所数 38所(うち0歳児保育を実施している保育所:33所)
保育所入所待機児童数 0人
認定こども園数 6園 預かり保育実施園数 公立:- 私立:9園
学校給食 【小学校】完全給食【中学校】完全給食
公立中学校の学校選択制 未実施
子ども・学生等医療費助成<通院>対象年齢 18歳3月末まで 子ども・学生等医療費助成<入院>対象年齢 18歳3月末まで

小平市の治安・ごみ収集情報

公共料金・インフラ

ガス料金(22m3使用した場合の月額) 東京瓦斯株式会社(東京地区等)3926円
水道料金(口径20mmで20m3の月額) 東京都水道局2816円
下水道料金(20m3を使用した場合の月額) 小平市1655円
下水道普及率 100.0%

安心・安全

建物火災出火件数 29件
人口10000人当たり
1.46件
刑法犯認知件数 1022件
人口1000人当たり
5.14件
ハザード・防災マップ あり

医療

一般病院総数 8ヶ所
一般診療所総数 136ヶ所
小児科医師数 66人
小児人口10000人当たり
26.29人
産婦人科医師数 15人
15~49歳女性人口1万人当たり
3.66人
介護保険料基準額(月額) 6180円

ごみ

家庭ごみ収集(可燃ごみ) 有料
備考
指定ごみ袋有料。
家庭ごみの分別方式 4分別19種〔燃やすごみ(燃やすごみ、枝木) 不燃ごみ 資源(ビン、カン、ペットボトル、金属製なべ・やかん・フライパン、スプレー缶・ガスカートリッジ缶、ライター、電池、蛍光管、水銀体温計・水銀血圧計、紙類[雑誌・雑がみ、シュレッダーくず、段ボール、新聞紙]、ふとん、古布類) プラスチック製容器包装〕
家庭ごみの戸別収集 実施
粗大ごみ収集 あり
備考
有料。戸別収集。事前申込制。廃棄物処理シール(200円、600円、1,000円、2,000円)購入。
生ごみ処理機助成金制度 あり
上限金額
30000円
上限比率
50.0%

小平市の住まいの給付金

中古購入

利子補給制度 なし
補助/助成金制度 なし

増築・改築・改修

利子補給制度 なし
補助/助成金制度 あり
上限金額
(1)15万円(2)120万円
備考
(1)【耐震診断補助】1981年5月31日以前に建築された木造住宅について、耐震診断を行った場合、診断費用の2/3(上限15万円)を補助。(2)【耐震改修補助】1981年5月31日以前に建築された、耐震診断を実施した木造住宅について、耐震基準を満たす耐震改修工事を行なった場合、工事費用の1/3(上限120万円)を補助。
暮らしデータ提供元:生活ガイド.com
※行政機関により公表していない地域及びデータがございます。東京23区以外の政令指定都市は、市全体のデータとして表示しています。
※提供データには細心の注意を払っておりますが、調査後に変更がある場合があります。 最新の情報につきましては各市区役所までお問い合わせいただくか、自治体HPなどをご確認ください。

この物件を見た人はこんな物件も見ています

OCN×ドコモ光新規お申込みで合計最大137,280円相当おトク!特典の内訳・適用条件など詳細はこちら

小平市内の各駅の住みやすさ

住宅ローンの返済額一覧

物件価格 3880万円に対して、年率 で、頭金 の場合
↓ボーナス 35年間 30年間 25年間 20年間 15年間 10年間
0万円 87,739円/月 101,126円/月 119,878円/月 148,021円/月 194,946円/月 288,825円/月
5万円 78,654円/月 92,150円/月 111,011円/月 139,262円/月 186,295円/月 280,280円/月
10万円 69,568円/月 83,174円/月 102,144円/月 130,504円/月 177,643円/月 271,735円/月
15万円 60,483円/月 74,198円/月 93,278円/月 121,745円/月 168,992円/月 263,190円/月
20万円 51,397円/月 65,223円/月 84,411円/月 112,986円/月 160,340円/月 254,645円/月
25万円 ローン不可 56,247円/月 75,544円/月 104,228円/月 151,689円/月 246,099円/月
30万円 ローン不可 ローン不可 66,677円/月 95,469円/月 143,037円/月 237,554円/月
支払い利息合計 3,064,870円~ 2,620,720円~ 2,178,800円~ 1,737,520円~ 1,299,610円~ 865,220円~
※元利均等返済方式で試算しています。 「円」の単位以下の端数金額は「切り捨て」として計算しております。
※金利は、固定金利として計算しております。
※上記の住宅ローン返済額一覧は、あくまで試算であり、将来の金利動向により、実際のご返済額とは異なります。
※ボーナス支払総額が総支払額の50%を超えている場合、上記の表では「ローン不可」となります。
※住宅ローン返済額一覧の数値は、住宅ローンのお申し込みやご融資をお約束するものではございません。
物件を見たい、物件や住環境の詳しい情報やローン相談など、
お問い合わせ先
(有)和不動産&スペース・アイ

掲載情報の著作権は提供元企業等に帰属します。
Copyright:(C) 2025 Recruit Co., Ltd.
アプリで簡単 物件探し 大手不動産サイトの情報から一括検!プッシュ通知で物件を見逃さない
App Storeからダウンロード Google Playで手に入れよう QRコード