アプリで簡単 物件探し 通知 共有 アプリならではの機能を使ってみる
中古住宅

東京都小金井市緑町4 東小金井駅 中古一戸建て・中古住宅

情報提供元
SUUMO
東京都小金井市緑町4 東小金井駅 中古一戸建て・中古住宅
価格 5780万円
交通
所在地 東京都小金井市緑町4周辺地図
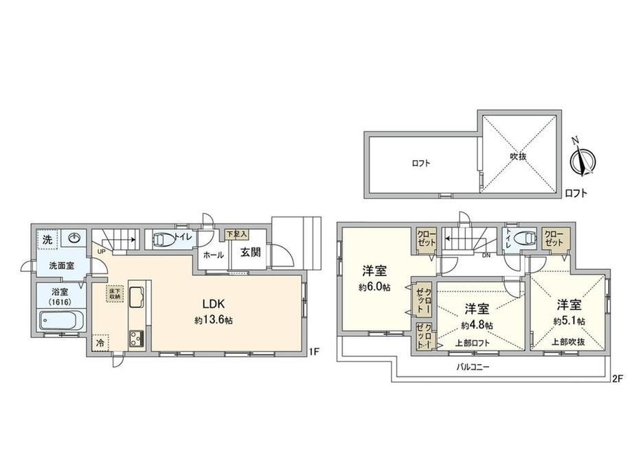
間取り 3LDK
建物面積 72.09m2(21.80坪)(登記) 土地面積 90.74m2(27.44坪)(登記)
築年月 2021年5月 築年数 築4年6ヶ月
おすすめポイント
-物件のおすすめポイント-▼立地・第一種低層住居専用地域・閑静な住宅街▼特徴・自然と会話が増えるリビングイン階段・会話を楽しみながら調理可能な対面式キッチン・キッチン後方に洗面室を配置、家事動線良好・全洋室は南向きバルコニーに面する設計・約5.1帖洋室は吹抜け仕様・ロフトを設置、多用途に活用可能・各階にトイレ有、来客時も気兼ねなく利用可能▼設備・食洗機・浴室は1616サイズ・浴室乾燥機付▼周辺環境・小金井市立緑小学校 徒歩2分(約90m)■ ご希望の住まい探しをお手伝いします ━━━━━・・・物件の詳細・ご相談はお気軽にお問い合わせください。
日当り良好・閑静な住宅街・整形地・浴室1坪以上
お問い合わせ先
三井のリハウス武蔵小金井センター三井不動産リアルティ(株)
物件を見たい、物件や住環境の詳しい情報やローン相談など、
お問い合わせ先
三井のリハウス武蔵小金井センター三井不動産リアルティ(株)

詳細情報

価格 5780万円
所在地 東京都小金井市緑町4周辺地図
交通
間取り 3LDK 築年月(築年数) 2021年5月(築4年6ヶ月)
建物面積 72.09m2(21.80坪)(登記) 建物構造・規模 木造2階建
土地面積 90.74m2(27.44坪)(登記) 土地権利 所有権
私道面積 4.97m2 借地期間・地代
接道状況 東3.7m接面8.9m 駐車場
用途地域 1種低層 都市計画
建ぺい率/容積率 40%/80% 現況
地目 引渡可能時期 相談
情報提供元 SUUMO [030Z77443120] 情報公開日
情報更新日 次回更新予定日 随時

設備など

1種低層地域 即入居可 - 売主・代理 -
駐車2台以上 - 平屋 - 本下水
都市ガス カウンターキッチン - 床暖房 -
ウォークインクローゼット - バリアフリー -
設備 ロフト・バルコニー・トイレ・収納スペース・都市ガス・浴室乾燥機・温水洗浄便座・システムキッチン・風呂・庭・対面K・トイレ2ヶ所・床下収納・衣類乾燥機・食器洗浄乾燥機・上水道・本下水・フローリング
リフォーム履歴 -
リノベーション履歴 -
備考 <物件名>緑町4(東小金井駅) 5780万円/<駐車場>カースペース/<土地権利>所有権/<間取り>3LDK/<特徴>■三井のリハウス■全居室南向きで陽当り・通風良好小学校まで徒歩2分、市街地が近い・南向き・システムキッチン・浴室乾燥機・陽当り良好
販売戸数:1戸
法令等制限:景観法、高度地区、法第22条区域
特記事項 日当り良好・閑静な住宅街・整形地・浴室1坪以上

省エネ性能

エネルギー消費性能 -
断熱性能 -
目安光熱費 -

東京都小金井市緑町4 周辺地図情報

地図
※地図上に表示される物件の位置は付近住所に所在することを表すものであり、実際の物件所在地とは異なる場合がございます。
   正確な物件所在地は、取扱い不動産会社にお問い合わせください。
物件を見たい、物件や住環境の詳しい情報やローン相談など、
お問い合わせ先
三井のリハウス武蔵小金井センター三井不動産リアルティ(株)

不動産会社情報

お問い合わせ先 商号:三井のリハウス武蔵小金井センター三井不動産リアルティ(株)
免許番号:国土交通大臣(15)第000777号
所在地:東京都小金井市本町5-13-12 M-10 1階
TEL:00786-01793810
取引態様:専任媒介
管理コード:F26ADA0D
共有する
QRコード
物件を見たい、物件や住環境の詳しい情報やローン相談など、
お問い合わせ先
三井のリハウス武蔵小金井センター三井不動産リアルティ(株)

小金井市の暮らしデータ

人口などの統計情報

世帯数 63140世帯
人口総数 124614人
転入者数 8366人
転入率(人口1000人当たり)
67.14人
転出者数 8391人
転出率(人口1000人当たり)
67.34人
土地平均価格
住宅地
367000円/m2
商業地
1155000円/m2

結婚・育児の助成金

子育て関連の独自の取り組み (1)愛育手当(公的補助のない無認可幼児教育・保育施設に在籍している3~5歳児が対象)。(2)小金井教育の日(PTAとの合同実施)。(3)読書感想文コンクール。(4)オーケストラ鑑賞教室(小学校6年生)、合唱鑑賞教室(中学校2年生)。(5)移動式赤ちゃん休憩室(ベビーテント)貸出事業。(6)子どもの権利条例の制定と子どもオンブズパーソンの設置。
出産祝い なし
公立保育所数 5所(うち0歳児保育を実施している保育所:3所)
私立保育所数 39所(うち0歳児保育を実施している保育所:35所)
保育所入所待機児童数 0人
認定こども園数 1園 預かり保育実施園数 公立:- 私立:5園
学校給食 【小学校】完全給食【中学校】完全給食
公立中学校の学校選択制 未実施
子ども・学生等医療費助成<通院>対象年齢 18歳3月末まで 子ども・学生等医療費助成<入院>対象年齢 18歳3月末まで

小金井市の治安・ごみ収集情報

公共料金・インフラ

ガス料金(22m3使用した場合の月額) 東京瓦斯株式会社(東京地区等)3926円
水道料金(口径20mmで20m3の月額) 東京都水道局2816円
下水道料金(20m3を使用した場合の月額) 小金井市1309円
下水道普及率 100.0%

安心・安全

建物火災出火件数 26件
人口10000人当たり
2.06件
刑法犯認知件数 568件
人口1000人当たり
4.51件
ハザード・防災マップ あり

医療

一般病院総数 4ヶ所
一般診療所総数 94ヶ所
小児科医師数 18人
小児人口10000人当たり
11.48人
産婦人科医師数 8人
15~49歳女性人口1万人当たり
2.89人
介護保険料基準額(月額) 6400円

ごみ

家庭ごみ収集(可燃ごみ) 有料
備考
資源物・枝木・雑草類・落ち葉、おむつ等は無料。
家庭ごみの分別方式 12分別17種〔可燃ごみ 不燃ごみ プラスチックごみ ビン スプレー缶 ペットボトル 空き缶 金属 古紙(雑紙、新聞、雑誌、段ボール、紙パック、シュレッダー紙) 布 有害ごみ 枝木・雑草類・落ち葉〕
家庭ごみの戸別収集 実施
粗大ごみ収集 あり
備考
有料。事前申込制。粗大ごみ処理券(シール)を購入。生活保護受給世帯は手数料免除。り災ごみは手数料一部減免。
生ごみ処理機助成金制度 あり
上限金額
30000円
上限比率
50.0%

小金井市の住まいの給付金

中古購入

利子補給制度 なし
補助/助成金制度 なし

増築・改築・改修

利子補給制度 なし
補助/助成金制度 あり
上限金額
60万円
備考
【木造住宅耐震改修助成金】木造住宅耐震診断を行った結果、総合評点が1.0未満と判定された住宅を1.0以上となるよう耐震改修を行う場合に、費用の一部を助成。現に居住の用に供されている住宅の所有者が対象。耐震改修に要した費用の1/2以内の額(上限60万円)を助成。
暮らしデータ提供元:生活ガイド.com
※行政機関により公表していない地域及びデータがございます。東京23区以外の政令指定都市は、市全体のデータとして表示しています。
※提供データには細心の注意を払っておりますが、調査後に変更がある場合があります。 最新の情報につきましては各市区役所までお問い合わせいただくか、自治体HPなどをご確認ください。

この物件を見た人はこんな物件も見ています

OCN×ドコモ光新規お申込みで合計最大137,280円相当おトク!特典の内訳・適用条件など詳細はこちら

小金井市内の各駅の住みやすさ

住宅ローンの返済額一覧

物件価格 5780万円に対して、年率 で、頭金 の場合
↓ボーナス 35年間 30年間 25年間 20年間 15年間 10年間
0万円 137,061円/月 157,972円/月 187,265円/月 231,229円/月 304,531円/月 451,183円/月
5万円 127,975円/月 148,996円/月 178,398円/月 222,470円/月 295,880円/月 442,638円/月
10万円 118,890円/月 140,020円/月 169,532円/月 213,711円/月 287,228円/月 434,093円/月
15万円 109,804円/月 131,045円/月 160,665円/月 204,953円/月 278,577円/月 425,547円/月
20万円 100,719円/月 122,069円/月 151,798円/月 196,194円/月 269,926円/月 417,002円/月
25万円 91,633円/月 113,093円/月 142,931円/月 187,435円/月 261,274円/月 408,457円/月
30万円 82,548円/月 104,117円/月 134,065円/月 178,677円/月 252,623円/月 399,912円/月
支払い利息合計 4,787,390円~ 4,088,280円~ 3,395,200円~ 2,707,440円~ 2,025,090円~ 1,348,180円~
※元利均等返済方式で試算しています。 「円」の単位以下の端数金額は「切り捨て」として計算しております。
※金利は、固定金利として計算しております。
※上記の住宅ローン返済額一覧は、あくまで試算であり、将来の金利動向により、実際のご返済額とは異なります。
※ボーナス支払総額が総支払額の50%を超えている場合、上記の表では「ローン不可」となります。
※住宅ローン返済額一覧の数値は、住宅ローンのお申し込みやご融資をお約束するものではございません。
物件を見たい、物件や住環境の詳しい情報やローン相談など、
お問い合わせ先
三井のリハウス武蔵小金井センター三井不動産リアルティ(株)

掲載情報の著作権は提供元企業等に帰属します。
Copyright:(C) 2025 Recruit Co., Ltd.
アプリで簡単 物件探し 大手不動産サイトの情報から一括検!プッシュ通知で物件を見逃さない
App Storeからダウンロード Google Playで手に入れよう QRコード