中古住宅
東京都三鷹市大沢1 三鷹駅 中古一戸建て・中古住宅
| 価格 |
5288万円
|
| 交通 |
|
| 所在地 |
東京都三鷹市大沢1周辺地図
|
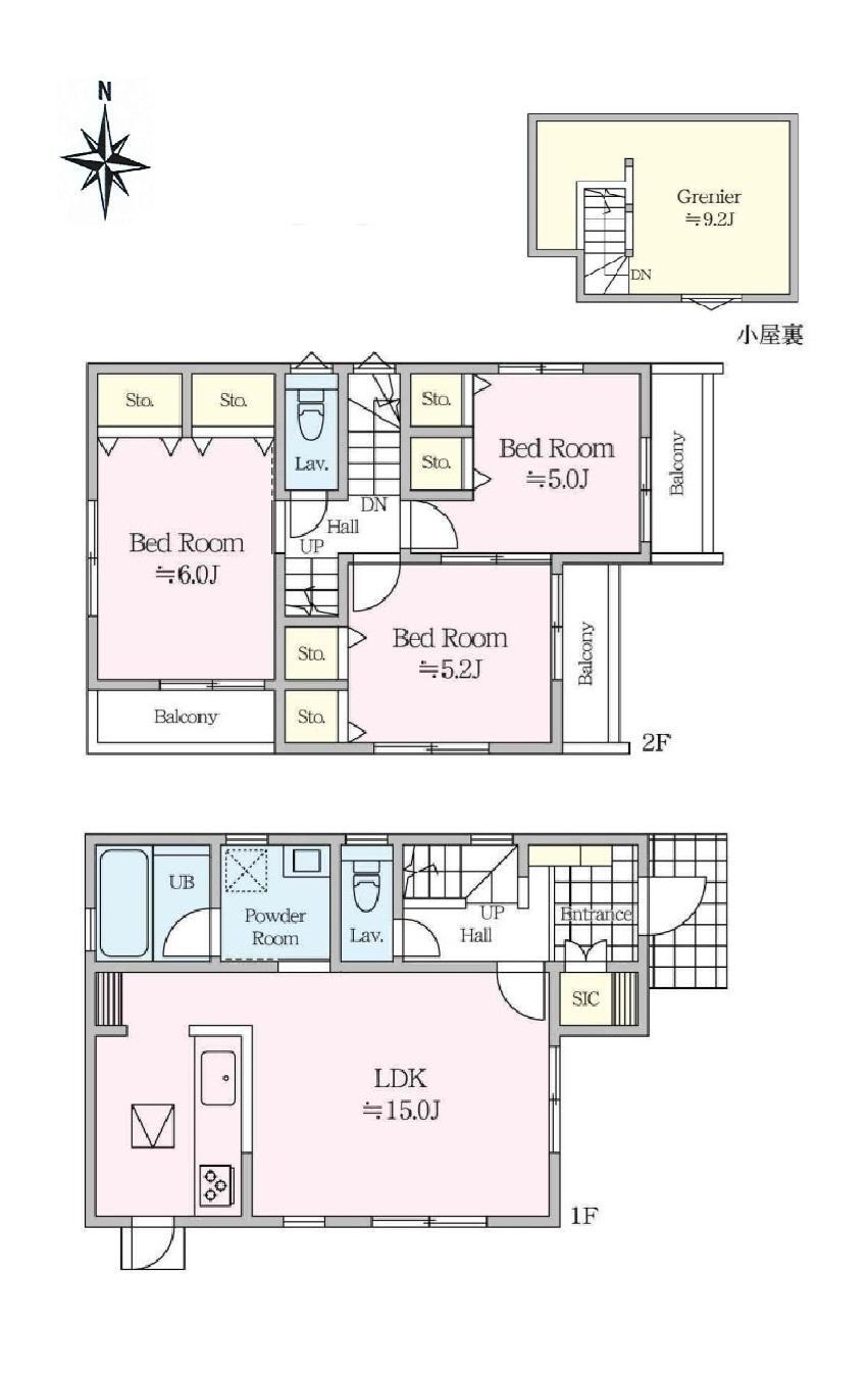
| 間取り |
3SLDK |
| 建物面積 |
79.49m2(24.04坪)(登記) |
土地面積 |
102.5m2(31.00坪)(登記) |
| 築年月 |
2021年8月 |
築年数 |
築4年3ヶ月 |
- おすすめポイント
- ◆JR中央線・京王線アクセスの『利便性』と『自然』が調和した閑静な住宅街(三鷹駅・吉祥寺駅・調布駅からのバスの利用が可能です)◆通学・通学・買物に便利なだけでなく、『子育て』にも最適な住環境◆東側で4m公道に面した整形地◆令和3年8月新築の築浅建物は、大変きれいにお使いで充実した設備が満載(浴室テレビ・床暖房・食洗器・エアコン3台・照明器具・食器棚・物置・・・)◆2階の洋室には、全室バルコニーが完備◆収納量が豊富な『3LDK+WIC+小屋裏収納』の間取り~~~『百聞は一見に如かず』 ぜひ現地にて「実際の目」でご確認ください!!~
日当り良好・閑静な住宅街・バリアフリー・駐車場2台分・整形地
- お問い合わせ先
- トヨタホーム東京(株)不動産開発部 流通事業室
物件を見たい、物件や住環境の詳しい情報やローン相談など、
- お問い合わせ先
- トヨタホーム東京(株)不動産開発部 流通事業室
| 価格 |
5288万円 |
| 所在地 |
東京都三鷹市大沢1周辺地図
|
| 交通 |
- JR中央線 三鷹駅 バス15分/「深大寺北町」バス停 停歩6分乗換案内
|
| 間取り |
3SLDK |
築年月(築年数) |
2021年8月(築4年3ヶ月) |
| 建物面積 |
79.49m2(24.04坪)(登記) |
建物構造・規模 |
木造2階建
|
| 土地面積 |
102.5m2(31.00坪)(登記) |
土地権利 |
所有権 |
| 私道面積 |
|
借地期間・地代 |
|
| 接道状況 |
東4m接面7.8m |
駐車場 |
有 |
| 用途地域 |
1種低層 |
都市計画 |
|
| 建ぺい率/容積率 |
40%/80% |
現況 |
|
| 地目 |
|
引渡可能時期 |
相談 |
| 情報提供元 |
SUUMO [030Z78309532] |
情報公開日 |
|
| 情報更新日 |
|
次回更新予定日 |
随時 |
設備など
| 1種低層地域 |
○ |
即入居可 |
- |
売主・代理 |
- |
| 駐車2台以上 |
○ |
平屋 |
- |
本下水 |
○ |
| 都市ガス |
○ |
カウンターキッチン |
- |
床暖房 |
○ |
| ウォークインクローゼット |
○ |
バリアフリー |
○ |
|
|
| 設備 |
ロフト・バルコニー・トイレ・収納スペース・洗面所・都市ガス・浴室乾燥機・ウォークインクローゼット・シャンプードレッサ・温水洗浄便座・モニタ付インターホン・風呂・対面K・トイレ2ヶ所・床下収納・グルニエ・浄水器・床暖房・2面バルコニー・衣類乾燥機・食器洗浄乾燥機・上水道・本下水・駐車場2台分・フローリング |
| リフォーム履歴 |
- |
| リノベーション履歴 |
- |
| 備考 |
<物件名>◆三鷹・大沢◆充実した設備が満載の『築浅中古戸建』/<駐車場>カースペース/<土地権利>所有権/<間取り>3LDK+S(納戸)/<特徴>『完全予約制・現地ご案内会』開催中!!、建築確認完了検査済証・新築時・増改築時の設計図・駐車2台可・2沿線以上利用可・浴室乾燥機 販売戸数:1戸 法令等制限:景観法による規制有、宅地造成工事規制区域、高度地区、日影制限有、◆司法書士は、売主または媒介業者指定とさせて頂きます。 |
| 特記事項 |
日当り良好・閑静な住宅街・バリアフリー・駐車場2台分・整形地 |
東京都三鷹市大沢1 周辺地図情報
※地図上に表示される物件の位置は付近住所に所在することを表すものであり、実際の物件所在地とは異なる場合がございます。
正確な物件所在地は、取扱い不動産会社にお問い合わせください。
物件を見たい、物件や住環境の詳しい情報やローン相談など、
- お問い合わせ先
- トヨタホーム東京(株)不動産開発部 流通事業室
不動産会社情報
| お問い合わせ先 |
商号:トヨタホーム東京(株)不動産開発部 流通事業室
免許番号:国土交通大臣(6)第005732号 所在地:東京都千代田区九段南2-3-187階 TEL:0120-923211 取引態様:専任媒介 |
共有する |
|
物件を見たい、物件や住環境の詳しい情報やローン相談など、
- お問い合わせ先
- トヨタホーム東京(株)不動産開発部 流通事業室
人口などの統計情報
| 世帯数 |
96116世帯 |
| 人口総数 |
189959人 |
| 転入者数 |
12415人
- 転入率(人口1000人当たり)
- 65.36人
|
| 転出者数 |
11666人
- 転出率(人口1000人当たり)
- 61.41人
|
| 土地平均価格 |
- 住宅地
- 428769円/m2
- 商業地
- 1750000円/m2
|
結婚・育児の助成金
| 子育て関連の独自の取り組み |
(1)子育てサポーター養成講座等による協働型地域子育て環境の充実。(2)民生・児童委員による乳児家庭全戸訪問の実施。(3)虐待対策ワーカー配置による虐待対応力の強化。(4)利用者支援事業の充実。(5)親の子育て力向上のための「子育て支援プログラム」の実施。(6)自主グループ保育支援事業として一時保育の提供。 |
| 出産祝い |
あり |
| 公立保育所数 |
13所(うち0歳児保育を実施している保育所:10所) |
| 私立保育所数 |
36所(うち0歳児保育を実施している保育所:33所) |
| 保育所入所待機児童数 |
0人 |
| 認定こども園数 |
2園 |
預かり保育実施園数 |
公立:- 私立:14園 |
| 学校給食 |
【小学校】完全給食【中学校】完全給食 |
| 公立中学校の学校選択制 |
未実施 |
| 子ども・学生等医療費助成<通院>対象年齢 |
18歳3月末まで |
子ども・学生等医療費助成<入院>対象年齢 |
18歳3月末まで |
三鷹市の治安・ごみ収集情報
公共料金・インフラ
| ガス料金(22m3使用した場合の月額) |
東京瓦斯株式会社(東京地区等)3926円 |
| 水道料金(口径20mmで20m3の月額) |
東京都水道局2816円 |
| 下水道料金(20m3を使用した場合の月額) |
三鷹市1258円 |
| 下水道普及率 |
100.0% |
安心・安全
| 建物火災出火件数 |
29件
- 人口10000人当たり
- 1.48件
|
| 刑法犯認知件数 |
841件
- 人口1000人当たり
- 4.30件
|
| ハザード・防災マップ |
あり |
医療
| 一般病院総数 |
6ヶ所 |
| 一般診療所総数 |
151ヶ所 |
| 小児科医師数 |
70人
- 小児人口10000人当たり
- 29.94人
|
| 産婦人科医師数 |
43人
- 15~49歳女性人口1万人当たり
- 10.33人
|
| 介護保険料基準額(月額) |
6300円 |
ごみ
| 家庭ごみ収集(可燃ごみ) |
有料
|
| 家庭ごみの分別方式 |
2分別10種〔一般ごみ(可燃ごみ)、資源ごみ(不燃ごみ、ペットボトル、プラスチック類、空きびん・缶、古紙[新聞、段ボール、雑誌・雑紙]、古着類、有害ごみ)〕 拠点回収:小型家電 紙パック ペットボトル 使用済インクカートリッジ 小型充電式電池 集団回収:古紙(新聞 雑誌・雑紙 段ボール 紙パック) 布類 スチール缶 アルミ缶 ビン類 |
| 家庭ごみの戸別収集 |
実施 |
| 粗大ごみ収集 |
あり
|
| 生ごみ処理機助成金制度 |
あり
- 上限金額
- 20000円
- 上限比率
- 50.0%
|
三鷹市の住まいの給付金
中古購入
増築・改築・改修
| 利子補給制度 |
なし |
| 補助/助成金制度 |
あり
- 上限金額
- (1)10万円(2)50万円
|
※行政機関により公表していない地域及びデータがございます。東京23区以外の政令指定都市は、市全体のデータとして表示しています。
※提供データには細心の注意を払っておりますが、調査後に変更がある場合があります。 最新の情報につきましては各市区役所までお問い合わせいただくか、自治体HPなどをご確認ください。
三鷹市の暮らしデータをもっと見る
物件を見たい、物件や住環境の詳しい情報やローン相談など、
- お問い合わせ先
- トヨタホーム東京(株)不動産開発部 流通事業室