アプリで簡単 物件探し 通知 共有 アプリならではの機能を使ってみる
中古住宅

埼玉県志木市幸町2 柳瀬川駅 中古一戸建て・中古住宅

情報提供元
SUUMO
埼玉県志木市幸町2 柳瀬川駅 中古一戸建て・中古住宅
価格 4280万円
交通
所在地 埼玉県志木市幸町2周辺地図
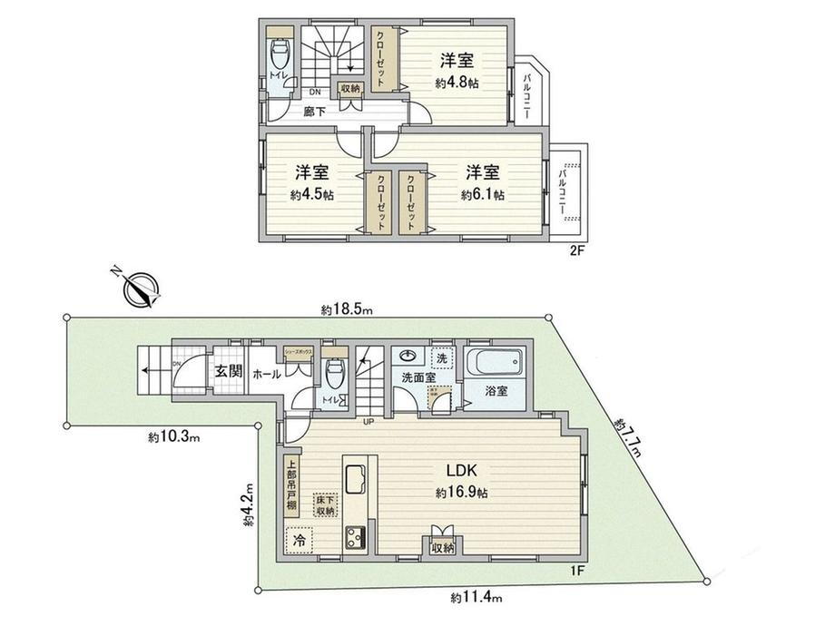
間取り 3LDK
建物面積 79.28m2(23.98坪)(登記) 土地面積 92.97m2(28.12坪)(登記)
築年月 2022年8月 築年数 築3年3ヶ月
おすすめポイント
-物件のおすすめポイント-▼立地・東武東上線「柳瀬川」駅 徒歩9分 他▼特徴・2022年8月築・LDKは約16.9帖、4面採光を確保・コミュニケーションを育むリビング階段・ご家族との会話が弾む対面式キッチン、床下収納付・室内随所に収納スペース有・各階にトイレを設置、来客時も使いやすい設計・水回り各所に自然換気可能な窓有・南東向きバルコニー2箇所有▼設備・食洗機・浴室乾燥機▼周辺環境・志木市立志木第二小学校 徒歩4分(約290m)■ ご希望の住まい探しをお手伝いします ━━━━━・・・物件の詳細・ご相談はお気軽にお問い合わせください。
日当り良好・閑静な住宅街
お問い合わせ先
三井のリハウス志木センター三井不動産リアルティ(株)
物件を見たい、物件や住環境の詳しい情報やローン相談など、
お問い合わせ先
三井のリハウス志木センター三井不動産リアルティ(株)

詳細情報

価格 4280万円
所在地 埼玉県志木市幸町2周辺地図
交通
間取り 3LDK 築年月(築年数) 2022年8月(築3年3ヶ月)
建物面積 79.28m2(23.98坪)(登記) 建物構造・規模 木造2階建
土地面積 92.97m2(28.12坪)(登記) 土地権利 所有権
私道面積 借地期間・地代
接道状況 北西5m接面2.6m 駐車場
用途地域 1種中高 都市計画
建ぺい率/容積率 60%/200% 現況
地目 引渡可能時期 相談
情報提供元 SUUMO [030Z77024069] 情報公開日
情報更新日 次回更新予定日 随時

設備など

1種低層地域 - 即入居可 - 売主・代理 -
駐車2台以上 - 平屋 - 本下水
都市ガス カウンターキッチン - 床暖房 -
ウォークインクローゼット - バリアフリー -
設備 トイレ・収納スペース・都市ガス・浴室乾燥機・温水洗浄便座・システムキッチン・風呂・対面K・トイレ2ヶ所・床下収納・浄水器・衣類乾燥機・食器洗浄乾燥機・上水道・本下水
リフォーム履歴 -
リノベーション履歴 -
備考 <物件名>幸町2(柳瀬川駅) 4280万円/<土地権利>所有権/<間取り>3LDK/<特徴>■三井のリハウス■南東向きにつき、陽当り・通風良好閑静な住宅街に位置、スーパー 徒歩10分以内・システムキッチン・浴室乾燥機・陽当り良好・全居室収納
販売戸数:1戸
特記事項 日当り良好・閑静な住宅街

省エネ性能

エネルギー消費性能 -
断熱性能 -
目安光熱費 -

埼玉県志木市幸町2 周辺地図情報

地図
※地図上に表示される物件の位置は付近住所に所在することを表すものであり、実際の物件所在地とは異なる場合がございます。
   正確な物件所在地は、取扱い不動産会社にお問い合わせください。
物件を見たい、物件や住環境の詳しい情報やローン相談など、
お問い合わせ先
三井のリハウス志木センター三井不動産リアルティ(株)

不動産会社情報

お問い合わせ先 商号:三井のリハウス志木センター三井不動産リアルティ(株)
免許番号:国土交通大臣(15)第000777号
所在地:埼玉県新座市東北2-37-15 ランカフィクス志木1階
TEL:00786-01794065
取引態様:専任媒介
管理コード:F42ABA24
共有する
QRコード
物件を見たい、物件や住環境の詳しい情報やローン相談など、
お問い合わせ先
三井のリハウス志木センター三井不動産リアルティ(株)

志木市の暮らしデータ

人口などの統計情報

世帯数 32702世帯
人口総数 76312人
転入者数 4228人
転入率(人口1000人当たり)
55.40人
転出者数 4007人
転出率(人口1000人当たり)
52.51人
土地平均価格
住宅地
227167円/m2
商業地
275000円/m2

結婚・育児の助成金

子育て関連の独自の取り組み (1)在宅子育て家庭向け「ランチで食育」。(2)「やる気をひきだす子育て練習法(ダイジェスト版)」講座の開催。
出産祝い なし
公立保育所数 3所(うち0歳児保育を実施している保育所:1所)
私立保育所数 23所(うち0歳児保育を実施している保育所:23所)
保育所入所待機児童数 4人
認定こども園数 1園 預かり保育実施園数 公立:- 私立:6園
学校給食 【小学校】完全給食【中学校】完全給食
公立中学校の学校選択制 実施
子ども・学生等医療費助成<通院>対象年齢 18歳3月末まで 子ども・学生等医療費助成<入院>対象年齢 18歳3月末まで

志木市の治安・ごみ収集情報

公共料金・インフラ

ガス料金(22m3使用した場合の月額) 大東ガス株式会社4335円
水道料金(口径20mmで20m3の月額) 志木市2640円
下水道料金(20m3を使用した場合の月額) 志木市2255円
下水道普及率 99.6%

安心・安全

建物火災出火件数 12件
人口10000人当たり
1.59件
刑法犯認知件数 389件
人口1000人当たり
5.16件
ハザード・防災マップ あり

医療

一般病院総数 2ヶ所
一般診療所総数 40ヶ所
小児科医師数 5人
小児人口10000人当たり
5.22人
産婦人科医師数 0人
15~49歳女性人口1万人当たり
0.00人
介護保険料基準額(月額) 5690円

ごみ

家庭ごみ収集(可燃ごみ) 無料
備考
-
家庭ごみの分別方式 4分別12種〔可燃ごみ 不燃ごみ 有害ごみ 資源ごみ(ビン、カン、ペットボトル、雑紙、新聞、雑誌、段ボール、布類、資源プラスチック)〕
家庭ごみの戸別収集 一部実施(志木市家庭ごみ戸別訪問収集事業)
粗大ごみ収集 あり
備考
有料。戸別収集。事前申込制。
生ごみ処理機助成金制度 なし
上限金額
-
上限比率
-

志木市の住まいの給付金

中古購入

利子補給制度 なし
補助/助成金制度 なし

増築・改築・改修

利子補給制度 なし
補助/助成金制度 あり
上限金額
(1)100万円(2)60万円
備考
(1)【既存建築物耐震診断、耐震設計及び耐震改修補助金交付制度】耐震診断、耐震設計及び耐震改修の費用を補助。要件あり。建築物の種類により補助額が異なる。安全支援住宅の場合は費用相当額(上限80万円)。市内業者施工で20万円を加算。(2)【危険ブロック塀等撤去改修補助】補助率1/2。要件あり。
暮らしデータ提供元:生活ガイド.com
※行政機関により公表していない地域及びデータがございます。東京23区以外の政令指定都市は、市全体のデータとして表示しています。
※提供データには細心の注意を払っておりますが、調査後に変更がある場合があります。 最新の情報につきましては各市区役所までお問い合わせいただくか、自治体HPなどをご確認ください。

この物件を見た人はこんな物件も見ています

OCN×ドコモ光新規お申込みで合計最大137,280円相当おトク!特典の内訳・適用条件など詳細はこちら

志木市内の各駅の住みやすさ

住宅ローンの返済額一覧

物件価格 4280万円に対して、年率 で、頭金 の場合
↓ボーナス 35年間 30年間 25年間 20年間 15年間 10年間
0万円 98,123円/月 113,093円/月 134,065円/月 165,539円/月 218,017円/月 323,006円/月
5万円 89,037円/月 104,117円/月 125,198円/月 156,780円/月 209,365円/月 314,461円/月
10万円 79,952円/月 95,142円/月 116,331円/月 148,021円/月 200,714円/月 305,915円/月
15万円 70,866円/月 86,166円/月 107,464円/月 139,262円/月 192,062円/月 297,370円/月
20万円 61,781円/月 77,190円/月 98,598円/月 130,504円/月 183,411円/月 288,825円/月
25万円 52,695円/月 68,215円/月 89,731円/月 121,745円/月 174,759円/月 280,280円/月
30万円 ローン不可 59,239円/月 80,864円/月 112,986円/月 166,108円/月 271,735円/月
支払い利息合計 3,429,580円~ 2,932,200円~ 2,434,900円~ 1,941,600円~ 1,452,390円~ 966,940円~
※元利均等返済方式で試算しています。 「円」の単位以下の端数金額は「切り捨て」として計算しております。
※金利は、固定金利として計算しております。
※上記の住宅ローン返済額一覧は、あくまで試算であり、将来の金利動向により、実際のご返済額とは異なります。
※ボーナス支払総額が総支払額の50%を超えている場合、上記の表では「ローン不可」となります。
※住宅ローン返済額一覧の数値は、住宅ローンのお申し込みやご融資をお約束するものではございません。
物件を見たい、物件や住環境の詳しい情報やローン相談など、
お問い合わせ先
三井のリハウス志木センター三井不動産リアルティ(株)

掲載情報の著作権は提供元企業等に帰属します。
Copyright:(C) 2025 Recruit Co., Ltd.
アプリで簡単 物件探し 大手不動産サイトの情報から一括検!プッシュ通知で物件を見逃さない
App Storeからダウンロード Google Playで手に入れよう QRコード