アプリで簡単 物件探し 通知 共有 アプリならではの機能を使ってみる
中古住宅

埼玉県蕨市南町2 蕨駅 中古一戸建て・中古住宅

情報提供元
SUUMO
埼玉県蕨市南町2 蕨駅 中古一戸建て・中古住宅
価格 4480万円
交通
所在地 埼玉県蕨市南町2周辺地図
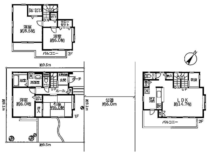
間取り 4LDK
建物面積 106.82m2(登記) 土地面積 86.71m2(登記)
築年月 2004年8月 築年数 築21年3ヶ月
おすすめポイント
≪空家の為いつでもご見学可能です!≫●JR京浜東北線「蕨」駅徒歩14分●閑静な住宅街にある3階建●建物面積106.82㎡ 4LDK●全居室6帖以上!●リビング・キッチン、3階廊下、全居室収納付き!●前面道路6m☆住環境良好●徒歩5分以内に買物施設、10分以内に教育施設あり!・「ヤオコー蕨南町店」徒歩3分・「わらび幼稚園」徒歩3分・「蕨市立南小学校」徒歩8分≪リフォーム内容≫・システムキッチン交換・2階トイレ交換・1階トイレウォシュレット交換・和室畳表替え襖貼替え・クロス一部貼替えご見学予約等お気軽にお問合せください!「0120-922-621」
日当り良好・閑静な住宅街・整形地
お問い合わせ先
(株)中央住宅ポラス住まいの情報館戸田営業所
物件を見たい、物件や住環境の詳しい情報やローン相談など、
お問い合わせ先
(株)中央住宅ポラス住まいの情報館戸田営業所

詳細情報

価格 4480万円
所在地 埼玉県蕨市南町2周辺地図
交通
間取り 4LDK 築年月(築年数) 2004年8月(築21年3ヶ月)
建物面積 106.82m2(登記) 建物構造・規模 木造3階建
土地面積 86.71m2(登記) 土地権利 所有権
私道面積 借地期間・地代
接道状況 北6m接面9.1m 駐車場
用途地域 1種住居 都市計画
建ぺい率/容積率 60%/200% 現況
地目 引渡可能時期 相談
情報提供元 SUUMO [030Z78250424] 情報公開日
情報更新日 次回更新予定日 随時

設備など

1種低層地域 - 即入居可 - 売主・代理 -
駐車2台以上 - 平屋 - 本下水
都市ガス カウンターキッチン - 床暖房 -
ウォークインクローゼット バリアフリー -
設備 バルコニー・収納スペース・都市ガス・ウォークインクローゼット・システムキッチン・モニタ付インターホン・風呂・対面K・トイレ2ヶ所・上水道・本下水・リフォーム
リフォーム履歴 2025年8月完了
 水回り設備交換:キッチン・トイレ
※年月は一番古いリフォーム箇所を表します
リノベーション履歴 -
備考 <物件名>南町2(蕨駅) 4480万円/<駐車場>カースペース/<土地権利>所有権/<間取り>4LDK/<リフォーム>●リフォーム:2025年8月完了(水回り設備交換:キッチン・トイレ)※年月は一番古いリフォーム箇所を表します/<特徴>【ポラスの旧分譲住宅】2025年8月リフォーム完了済みの住まい♪、スーパー 徒歩10分以内・内装リフォーム・システムキッチン・陽当り良好・全居室収納
販売戸数:1戸
法令等制限:※司法書士は売主指定
特記事項 日当り良好・閑静な住宅街・整形地

省エネ性能

エネルギー消費性能 -
断熱性能 -
目安光熱費 -

埼玉県蕨市南町2 周辺地図情報

地図
※地図上に表示される物件の位置は付近住所に所在することを表すものであり、実際の物件所在地とは異なる場合がございます。
   正確な物件所在地は、取扱い不動産会社にお問い合わせください。
物件を見たい、物件や住環境の詳しい情報やローン相談など、
お問い合わせ先
(株)中央住宅ポラス住まいの情報館戸田営業所

不動産会社情報

お問い合わせ先 商号:(株)中央住宅ポラス住まいの情報館戸田営業所
免許番号:国土交通大臣(13)第002401号
所在地:埼玉県戸田市大字新曽93-1 La Vert戸田
TEL:0120-922621
取引態様:媒介
共有する
QRコード
物件を見たい、物件や住環境の詳しい情報やローン相談など、
お問い合わせ先
(株)中央住宅ポラス住まいの情報館戸田営業所

蕨市の暮らしデータ

人口などの統計情報

世帯数 36784世帯
人口総数 75646人
転入者数 6790人
転入率(人口1000人当たり)
89.76人
転出者数 5801人
転出率(人口1000人当たり)
76.69人
土地平均価格
住宅地
288333円/m2
商業地
660000円/m2

結婚・育児の助成金

子育て関連の独自の取り組み (1)学校耐震化率100%。(2)35人程度学級。(3)保育料の独自軽減(1人目と2人目がいずれも0~2歳児の場合、2人目の保育料無料)。(4)公立保育園での保育予約制。
出産祝い あり
公立保育所数 5所(うち0歳児保育を実施している保育所:5所)
私立保育所数 10所(うち0歳児保育を実施している保育所:8所)
保育所入所待機児童数 0人
認定こども園数 0園 預かり保育実施園数 公立:- 私立:3園
学校給食 【小学校】完全給食【中学校】完全給食
公立中学校の学校選択制 未実施
子ども・学生等医療費助成<通院>対象年齢 18歳3月末まで 子ども・学生等医療費助成<入院>対象年齢 18歳3月末まで

蕨市の治安・ごみ収集情報

公共料金・インフラ

ガス料金(22m3使用した場合の月額) 東京瓦斯株式会社(東京地区等)3926円
水道料金(口径20mmで20m3の月額) 蕨市2475円
下水道料金(20m3を使用した場合の月額) 蕨市1309円
下水道普及率 97.0%

安心・安全

建物火災出火件数 10件
人口10000人当たり
1.35件
刑法犯認知件数 695件
人口1000人当たり
9.36件
ハザード・防災マップ あり

医療

一般病院総数 3ヶ所
一般診療所総数 50ヶ所
小児科医師数 11人
小児人口10000人当たり
14.08人
産婦人科医師数 3人
15~49歳女性人口1万人当たり
1.82人
介護保険料基準額(月額) 5762円

ごみ

家庭ごみ収集(可燃ごみ) 無料
備考
-
家庭ごみの分別方式 3分別16種〔可燃ごみ 資源ごみ(金属類、生きびん、その他のビン、古紙類[新聞、雑誌、ダンボール、紙パック]、その他の紙類、布類、ペットボトル、プラスチック製容器包装、消火器・バッテリー、蛍光管等、乾電池) 不燃ごみ(充電池を取り外した40cm未満の小型家電を含む)〕
家庭ごみの戸別収集 未実施
粗大ごみ収集 あり
備考
有料。戸別収集。事前申込制。粗大ごみ収集券(550円/点)を添付し、自宅前に出す。
生ごみ処理機助成金制度 なし
上限金額
-
上限比率
-

蕨市の住まいの給付金

中古購入

利子補給制度 なし
補助/助成金制度 あり
上限金額
10万円
備考
【三世代ふれあい家族住宅取得支援事業】親・子・孫の三世代の同居など一定の条件を満たした住宅取得費用の1%相当額、最大10万円を補助。

増築・改築・改修

利子補給制度 なし
補助/助成金制度 あり
上限金額
(1)10万円(2)30万円
備考
(1)【蕨市住宅改修資金助成金】一定の条件を満たしたリフォームの場合工事費の5%、上限は10万円。(2)一定の条件を満たした耐震工事の場合工事費の23%以内、上限30万円。
暮らしデータ提供元:生活ガイド.com
※行政機関により公表していない地域及びデータがございます。東京23区以外の政令指定都市は、市全体のデータとして表示しています。
※提供データには細心の注意を払っておりますが、調査後に変更がある場合があります。 最新の情報につきましては各市区役所までお問い合わせいただくか、自治体HPなどをご確認ください。

この物件を見た人はこんな物件も見ています

OCN×ドコモ光新規お申込みで合計最大137,280円相当おトク!特典の内訳・適用条件など詳細はこちら

蕨市内の各駅の住みやすさ

住宅ローンの返済額一覧

物件価格 4480万円に対して、年率 で、頭金 の場合
↓ボーナス 35年間 30年間 25年間 20年間 15年間 10年間
0万円 103,314円/月 119,077円/月 141,158円/月 174,297円/月 229,552円/月 340,096円/月
5万円 94,229円/月 110,101円/月 132,291円/月 165,539円/月 220,900円/月 331,551円/月
10万円 85,144円/月 101,126円/月 123,425円/月 156,780円/月 212,249円/月 323,006円/月
15万円 76,058円/月 92,150円/月 114,558円/月 148,021円/月 203,598円/月 314,461円/月
20万円 66,973円/月 83,174円/月 105,691円/月 139,262円/月 194,946円/月 305,915円/月
25万円 57,887円/月 74,198円/月 96,824円/月 130,504円/月 186,295円/月 297,370円/月
30万円 ローン不可 65,223円/月 87,958円/月 121,745円/月 177,643円/月 288,825円/月
支払い利息合計 3,610,220円~ 3,086,440円~ 2,563,100円~ 2,043,760円~ 1,528,690円~ 1,017,740円~
※元利均等返済方式で試算しています。 「円」の単位以下の端数金額は「切り捨て」として計算しております。
※金利は、固定金利として計算しております。
※上記の住宅ローン返済額一覧は、あくまで試算であり、将来の金利動向により、実際のご返済額とは異なります。
※ボーナス支払総額が総支払額の50%を超えている場合、上記の表では「ローン不可」となります。
※住宅ローン返済額一覧の数値は、住宅ローンのお申し込みやご融資をお約束するものではございません。
物件を見たい、物件や住環境の詳しい情報やローン相談など、
お問い合わせ先
(株)中央住宅ポラス住まいの情報館戸田営業所

掲載情報の著作権は提供元企業等に帰属します。
Copyright:(C) 2025 Recruit Co., Ltd.
アプリで簡単 物件探し 大手不動産サイトの情報から一括検!プッシュ通知で物件を見逃さない
App Storeからダウンロード Google Playで手に入れよう QRコード