アプリで簡単 物件探し 通知 共有 アプリならではの機能を使ってみる
中古住宅

栃木県宇都宮市鶴田町 鶴田駅 中古一戸建て・中古住宅

情報提供元
SUUMO
栃木県宇都宮市鶴田町 鶴田駅 中古一戸建て・中古住宅
価格 3580万円
交通
所在地 栃木県宇都宮市鶴田町周辺地図
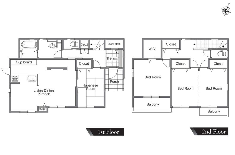
間取り 3SLDK
建物面積 135.38m2(40.95坪)(登記) 土地面積 197.79m2(59.83坪)(登記)
築年月 2018年4月 築年数 築7年7ヶ月
おすすめポイント
無垢床のLDKは、約20帖と広々!WIC(3帖)内にはミシンスペースあり。在宅ワークや趣味部屋にも○シューズインクロークには、壁一面に靴棚・コート掛けつき、屋外倉庫あり駐車3台可!庭の手入れに手間なしな配置です【周辺環境】大型スーパー、コンビニ、薬局が歩10分以内に複数ある利便性の高い立地環状線・鹿沼インター通りすぐそばで日常の買い物や、通勤通学にも◎宇都宮駅行きバス停まで歩約5分姿川第二小学校:歩約7分(約550m)宮の原中学校:歩約7分(約500m)
日当り良好・閑静な住宅街・駐車場3台分以上・オール電化・整形地・浴室1坪以上
お問い合わせ先
クラシカエル不動産(株)PLAYWORK
物件を見たい、物件や住環境の詳しい情報やローン相談など、
お問い合わせ先
クラシカエル不動産(株)PLAYWORK

詳細情報

価格 3580万円
所在地 栃木県宇都宮市鶴田町周辺地図
交通
間取り 3SLDK 築年月(築年数) 2018年4月(築7年7ヶ月)
建物面積 135.38m2(40.95坪)(登記) 建物構造・規模 木造2階建
土地面積 197.79m2(59.83坪)(登記) 土地権利 所有権
私道面積 借地期間・地代
接道状況 北4m 駐車場
用途地域 準住居 都市計画
建ぺい率/容積率 60%/160% 現況
地目 引渡可能時期 即時
情報提供元 SUUMO [030Z78643022] 情報公開日
情報更新日 次回更新予定日 随時

設備など

1種低層地域 - 即入居可 売主・代理 -
駐車2台以上 平屋 - 本下水
都市ガス - カウンターキッチン - 床暖房 -
ウォークインクローゼット バリアフリー -
設備 バルコニー・トイレ・収納スペース・洗面所・ウォークインクローゼット・シャンプードレッサ・温水洗浄便座・システムキッチン・モニタ付インターホン・風呂・対面K・トイレ2ヶ所・IHクッキングヒータ・浄水器・食器洗浄乾燥機・上水道・本下水・省エネ給湯器・シューズインクローク
リフォーム履歴 -
リノベーション履歴 -
備考 <物件名>鶴田町(鶴田駅) 3580万円/<駐車場>カースペース/<土地権利>所有権/<間取り>3LDK+2S(納戸)/<特徴>夢創ハウジング施工のオール電化住宅小中学校徒歩10分以内!子育て環境◎、新築時・増改築時の設計図・駐車3台以上可・LDK20畳以上・土地50坪以上・省エネ給湯器
販売戸数:1戸
法令等制限:景観法、宅地造成工事規制区域、建築基準法22条地域
特記事項 日当り良好・閑静な住宅街・駐車場3台分以上・オール電化・整形地・浴室1坪以上

省エネ性能

エネルギー消費性能 -
断熱性能 -
目安光熱費 -

栃木県宇都宮市鶴田町 周辺地図情報

地図
※地図上に表示される物件の位置は付近住所に所在することを表すものであり、実際の物件所在地とは異なる場合がございます。
   正確な物件所在地は、取扱い不動産会社にお問い合わせください。
物件を見たい、物件や住環境の詳しい情報やローン相談など、
お問い合わせ先
クラシカエル不動産(株)PLAYWORK

不動産会社情報

お問い合わせ先 商号:クラシカエル不動産(株)PLAYWORK
免許番号:国土交通大臣(1)第010477号
所在地:栃木県宇都宮市問屋町3426ー20
TEL:0120-726812
取引態様:一般媒介
共有する
QRコード
物件を見たい、物件や住環境の詳しい情報やローン相談など、
お問い合わせ先
クラシカエル不動産(株)PLAYWORK

宇都宮市の暮らしデータ

人口などの統計情報

世帯数 230546世帯
人口総数 515831人
転入者数 20141人
転入率(人口1000人当たり)
39.05人
転出者数 19049人
転出率(人口1000人当たり)
36.93人
土地平均価格
住宅地
62324円/m2
商業地
148642円/m2

結婚・育児の助成金

子育て関連の独自の取り組み (1)街中に子どもたちのあそび場として、「ゆうあいひろば」を設置。(2)市の子育て施策等に関する情報を集約し発信するホームページ「宮っこ子育て応援なび」を開設。(3)自立に困難を抱える青少年のための総合相談窓口の設置や様々な活動プログラムを提供する「若者自立支援ステップアップ事業」の実施。(4)青少年に同世代・異世代との交流の場、子育て家庭に子育ての楽しさを実感する場を提供する「宮っこフェスタ」を開催。(5)小学校4年生~6年生を対象に店舗や工場等で仕事の体験や見学ができる「宮っこトライ」を実施。(6)親の子育て負担の軽減や子どもの前向きな気持ちや生きる力を育むなど個々の状況に応じた支援をする「親と子どもの居場所」を設置。
出産祝い あり
公立保育所数 9所(うち0歳児保育を実施している保育所:9所)
私立保育所数 69所(うち0歳児保育を実施している保育所:69所)
保育所入所待機児童数 0人
認定こども園数 31園 預かり保育実施園数 公立:- 私立:13園
学校給食 【小学校】完全給食(全校栄養士配置・自校炊飯)【中学校】完全給食(全校栄養士配置・自校炊飯)
公立中学校の学校選択制 一部実施
子ども・学生等医療費助成<通院>対象年齢 18歳3月末まで 子ども・学生等医療費助成<入院>対象年齢 18歳3月末まで

宇都宮市の治安・ごみ収集情報

公共料金・インフラ

ガス料金(22m3使用した場合の月額) 東京瓦斯株式会社(東京地区等)3926円
堀川産業株式会社(宇都宮南部地区)5235円
水道料金(口径20mmで20m3の月額) 宇都宮市3278円
下水道料金(20m3を使用した場合の月額) 宇都宮市2695円
下水道普及率 91.3%

安心・安全

建物火災出火件数 61件
人口10000人当たり
1.18件
刑法犯認知件数 3181件
人口1000人当たり
6.13件
ハザード・防災マップ あり

医療

一般病院総数 27ヶ所
一般診療所総数 438ヶ所
小児科医師数 113人
小児人口10000人当たり
17.90人
産婦人科医師数 25人
15~49歳女性人口1万人当たり
2.49人
介護保険料基準額(月額) 5735円

ごみ

家庭ごみ収集(可燃ごみ) 無料
備考
-
家庭ごみの分別方式 4分別14種〔資源物(新聞、ダンボール、雑誌、その他の紙、紙パック、布類、びん缶類、ペットボトル、白色トレイ、プラスチック製容器包装) 焼却ごみ 不燃ごみ その他危険ごみ 電池類〕 拠点回収:剪定枝 廃食用油 使用済小型家電 インクカートリッジ
家庭ごみの戸別収集 一部実施(【ふれあい収集】一部地域のみ実施。高齢者や障がい者のうち、親族や近所などから支援を受けられず、自力でごみを出すことが困難な方を対象に実施)
粗大ごみ収集 あり
備考
有料。戸別収集。事前申込制。840円/点。清掃センターに持ち込める場合は無料。
生ごみ処理機助成金制度 あり
上限金額
40000円
上限比率
50.0%

宇都宮市の住まいの給付金

中古購入

利子補給制度 なし
補助/助成金制度 あり
上限金額
85万円+α万円
備考
【宇都宮市マイホーム取得支援事業補助金】居住誘導区域等に新たに住宅を取得する世帯に対し取得費の一部を助成。世帯に市外転入者を含む場合、最大85万円+子ども1人につき5万円加算。市内転居者のみの場合、最大50万円+子ども1人につき5万円加算。

増築・改築・改修

利子補給制度 なし
補助/助成金制度 あり
上限金額
(1)100万円(2)10万円(3)10万円
備考
(1)【宇都宮市木造住宅耐震改修補助制度】(2)【宇都宮市住宅改修事業費補助金】住宅改修を行う際の工事費の10%(上限10万円)を補助。窓の断熱改修、バリアフリー改修、太陽熱温水器の設置、防犯性向上に資する改修などが対象。(3)【大谷石利用促進補助制度】住宅の内外装の材料として大谷石を5m2以上使用して増改築する場合、経費の30%(上限10万円)を助成。
暮らしデータ提供元:生活ガイド.com
※行政機関により公表していない地域及びデータがございます。東京23区以外の政令指定都市は、市全体のデータとして表示しています。
※提供データには細心の注意を払っておりますが、調査後に変更がある場合があります。 最新の情報につきましては各市区役所までお問い合わせいただくか、自治体HPなどをご確認ください。

この物件を見た人はこんな物件も見ています

OCN×ドコモ光新規お申込みで合計最大137,280円相当おトク!特典の内訳・適用条件など詳細はこちら

他のエリアから探す

宇都宮市の詳細地域から一戸建て物件を探す

石井町泉が丘一ノ沢町今宮岩曽町インターパーク上野町上田町江曽島江曽島町大曽大塚町大谷町小幡海道町春日町上欠町上桑島町上小倉町上籠谷町上田原町上戸祭上戸祭町上御田町上横田町川田町川俣町清原台越戸越戸町鐺山町駒生町五代さつき下荒針町下岡本町下川俣町下桑島町下栗下栗町下小池町下田原町下平出町宿郷松風台白沢町城東城南末広雀の宮雀宮町高砂町宝木町宝木本町滝の原竹下町竹林町田下町田野町台新田鶴田鶴田町砥上町戸祭戸祭町豊郷台道場宿町中今泉中岡本町中里町中戸祭町長岡町西一の沢町西刑部町西川田西川田東町西川田本町西川田町西川田南西大寛西の宮西原町新里町野沢町針ケ谷針ヶ谷町東岡本町東塙田東町東峰町兵庫塚平出町平松平松本町富士見が丘富士見町双葉星が丘細谷町本丸町松原みどり野町宮の内御幸ケ原町御幸町御幸本町元今泉茂原屋板町八千代簗瀬町大和山本弥生ゆいの杜陽東横山立伏町六道町若草若松原

近辺の市区から探す

鹿沼市塩谷郡高根沢町

周辺の駅から探す

日光線
宇都宮鶴田鹿沼文挟下野大沢今市

住宅ローンの返済額一覧

物件価格 3580万円に対して、年率 で、頭金 の場合
↓ボーナス 35年間 30年間 25年間 20年間 15年間 10年間
0万円 79,952円/月 92,150円/月 109,238円/月 134,883円/月 177,643円/月 263,190円/月
5万円 70,866円/月 83,174円/月 100,371円/月 126,124円/月 168,992円/月 254,645円/月
10万円 61,781円/月 74,198円/月 91,504円/月 117,366円/月 160,340円/月 246,099円/月
15万円 52,695円/月 65,223円/月 82,638円/月 108,607円/月 151,689円/月 237,554円/月
20万円 43,610円/月 56,247円/月 73,771円/月 99,848円/月 143,037円/月 229,009円/月
25万円 ローン不可 47,271円/月 64,904円/月 91,090円/月 134,386円/月 220,464円/月
30万円 ローン不可 ローン不可 56,037円/月 82,331円/月 125,734円/月 211,919円/月
支払い利息合計 2,794,330円~ 2,389,360円~ 1,986,800円~ 1,584,400円~ 1,185,070円~ 789,020円~
※元利均等返済方式で試算しています。 「円」の単位以下の端数金額は「切り捨て」として計算しております。
※金利は、固定金利として計算しております。
※上記の住宅ローン返済額一覧は、あくまで試算であり、将来の金利動向により、実際のご返済額とは異なります。
※ボーナス支払総額が総支払額の50%を超えている場合、上記の表では「ローン不可」となります。
※住宅ローン返済額一覧の数値は、住宅ローンのお申し込みやご融資をお約束するものではございません。
物件を見たい、物件や住環境の詳しい情報やローン相談など、
お問い合わせ先
クラシカエル不動産(株)PLAYWORK

掲載情報の著作権は提供元企業等に帰属します。
Copyright:(C) 2025 Recruit Co., Ltd.
アプリで簡単 物件探し 大手不動産サイトの情報から一括検!プッシュ通知で物件を見逃さない
App Storeからダウンロード Google Playで手に入れよう QRコード