アプリで簡単 物件探し 通知 共有 アプリならではの機能を使ってみる
RSS

東二見駅(兵庫県)の中古マンション 物件一覧

東二見駅(兵庫県)の中古売マンション、中古分譲マンションなどの中古マンション物件をご紹介します。中古マンション物件情報を探すならgoo住宅・不動産。価格・広さ・間取り・写真・人気のこだわり条件から物件を簡単検索。理想の物件探しをgoo住宅・不動産がサポートします。

55 並び替え
チェックした物件を一括で

明石二見ハイツ2号棟 中古マンション

明石二見ハイツ2号棟 中古マンション
兵庫県明石市二見町福里
山陽本線 土山駅 徒歩14分
山陽電気鉄道本線 東二見駅 徒歩21分
築48年9ヶ月
5階建
間取り図
価格
298万円
間取り
3LDK
広さ
62.15m2
階数
4階
方位
  • 南向き
  • 駐車場あり
  • 所有権
  • 2階以上
  • 間取り図有り
おすすめポイント
【土山駅徒歩14分以内+即予約可】■二見北小学校まで徒歩1分とお子様の通学にも安心の距離■スーパーマルハチまで徒歩5分とお買い物に便利な立地■南向きバルコニーで陽当たり良好

プレステージ明石魚住III 3階

プレステージ明石魚住III 3階
兵庫県明石市魚住町清水
山陽本線 土山駅 徒歩18分
山陽電気鉄道本線 東二見駅 徒歩30分
築30年8ヶ月
8階建
間取り図
価格
1180万円
間取り
2LDK
広さ
56.6m2
階数
3階
方位
南西
  • 駐車場あり
  • オートロック
  • モニタ付インターホン
  • 即入居可
  • 所有権
  • リフォームリノベーション
  • システムキッチン
  • カウンターキッチン
おすすめポイント
・JR土山駅徒歩18分 ・周辺環境充実 ・国道2号線近い ・オートロック ・清水小学校・魚住中学校

プレステージ明石魚住3 中古マンション

プレステージ明石魚住3 中古マンション
兵庫県明石市魚住町清水
山陽本線 土山駅 徒歩18分
山陽電気鉄道本線 東二見駅 徒歩3.1km
築30年8ヶ月
8階建
間取り図
価格
1180万円
間取り
2LDK
広さ
56.6m2
階数
3階
方位
南西
  • 駐車場あり
  • オートロック
  • モニタ付インターホン
  • 即入居可
  • 所有権
  • リフォームリノベーション
  • システムキッチン
  • カウンターキッチン
おすすめポイント
【周辺環境充実+即内覧可】R8年2月室内リフォーム済■JR土山駅まで徒歩18分■全室6帖以上で収納があるので生活スペースをしっかり確保■カウンターキッチンから家族と交流しながらお料理が可能

プレステージ明石魚住アルカンシェル 中古マンション

プレステージ明石魚住アルカンシェル 中古マンション
兵庫県明石市魚住町西岡
山陽本線 魚住駅 徒歩11分
山陽電気鉄道本線 東二見駅 徒歩17分
築23年2ヶ月
8階建
間取り図
価格
2380万円
間取り
4LDK
広さ
84.98m2
階数
8階
方位
南西
  • 駐車場あり
  • 最上階
  • 角部屋
  • オートロック
  • モニタ付インターホン
  • 浴室乾燥機
  • 即入居可
  • 所有権
おすすめポイント
【ペット可+2沿線利用可能】最上階で眺望良好!■走れる、遊べる、くつろげる。愛犬と楽しむ特大ルーフバルコニー♪■オートロックや宅配ボックスと設備も充実しています!■お買い物も便利な住環境

ライオンズマンション明石東二見 中古マンション

ライオンズマンション明石東二見 中古マンション
兵庫県明石市二見町東二見
山陽電気鉄道本線 東二見駅 徒歩10分
山陽本線 土山駅 徒歩28分
築35年3ヶ月
11階建
間取り図
価格
880万円
間取り
3LDK
広さ
59.84m2
階数
2階
方位
西
  • 即入居可
  • 所有権
  • エレベーター
  • 2階以上
  • 間取り図有り
おすすめポイント
【閑静な住宅街】山陽電気鉄道本線「東二見駅」徒歩10分■小中学校徒歩10分圏内でお子様の通学も安心■閑静な住宅街で住みやすい環境■RC造11階建て2階部分です!■本日ご案内可能!

明石魚住駅前スカイマンションB館

明石魚住駅前スカイマンションB館
兵庫県明石市魚住町住吉2
山陽電鉄本線 山陽魚住駅 徒歩3分
JR山陽本線 魚住駅 徒歩13分
山陽電鉄本線 東二見駅 徒歩24分
築35年7ヶ月
6階建
new間取り図
価格
1380万円
間取り
3LDK
広さ
75.01m2
階数
1階
方位
北西
  • 駐車場あり
  • 所有権
  • システムキッチン
  • エレベーター
  • 間取り図有り
おすすめポイント
山陽魚住駅まで徒歩すぐの好立地にありながら、1階住戸ならではの“階段・エレベーター待ち不要”のスムーズな動線が魅力です。荷物の多い日やお子さま連れでもストレスなく出入りできます。生活施設が徒歩圏内に揃う便利な住環境。スーパー、ドラッグストア、銀行、飲食店などが近く、日々の買い物がとてもスムーズ。海が身近なロケーションで、休日の散歩も楽しみに。明石ならではの穏やかな海風を感じながら、海沿いの散策やジョギングが気軽に楽しめます。子育て世帯にも安心の環境。周辺には公園や教育施設が揃い、1階住戸の“外へ出やすい”メリットも相まって、子育てしやすい住まいとしてもおすすめです。

ユニーブル東二見~ルーフバルコニー付・リフォーム済~

ユニーブル東二見~ルーフバルコニー付・リフォーム済~
兵庫県明石市二見町東二見
山陽電鉄本線 東二見駅 徒歩7分
山陽電鉄本線 西二見駅 徒歩20分
山陽電鉄本線 山陽魚住駅 徒歩27分
築38年2ヶ月
6階建
new間取り図
価格
1420万円
間取り
3LDK
広さ
69.14m2
階数
5階
方位
  • 角部屋
  • ルーフバルコニー
  • モニタ付インターホン
  • 所有権
  • リフォームリノベーション
  • システムキッチン
  • エレベーター
  • 2階以上
おすすめポイント
□令和7年6月に室内リフォーム完成  ・システムキッチン新調 ・トイレ新調 ・洗面台新調 ・敷き込みカーペット貼替 ・クロス貼替(トイレ・リビング) ・CF貼替(トイレ・キッチン) ・畳・襖新調 ・建具交換 ・コンセントカバー・スイッチ交換 ・ハウスクリーニング□稀少なルーフバルコニー付のお部屋 採光も良好で快適にお過ごし頂けます♪□料理をしながらリビングやダイニングで過ごす家族との会話も弾むカウンターキッチン仕様♪□山陽電鉄本線「東二見」駅から徒歩7分□お買い物施設が近隣に充実しております♪

プレステージ明石魚住Ⅲ☆特典あり☆

プレステージ明石魚住Ⅲ☆特典あり☆
兵庫県明石市魚住町清水
JR山陽本線 土山駅 徒歩18分
山陽電鉄本線 東二見駅 徒歩31分
JR山陽本線 魚住駅 徒歩32分
築30年8ヶ月
8階建
new間取り図
価格
1180万円
間取り
2LDK
広さ
56.6m2
階数
3階
方位
南西
  • モニタ付インターホン
  • 即入居可
  • 所有権
  • リフォームリノベーション
  • システムキッチン
  • エレベーター
  • 2階以上
  • 間取り図有り
おすすめポイント
■リフォーム内容 ・システムキッチン新調 ・ユニットバス新調 ・洗面台新調  ・トイレ新調  ・洗濯パン新調 ・クロス全部張替・フロア増張り ・畳表替え ・襖張替 ・リビング拡張(間仕切り壁撤去) ・ハウスクリーニング【周辺環境】 ・スーパーディオ明石店・・・約350m ・セブンイレブン明石魚住清水支店・・・約80m ・清水幼稚園・・・約900m ・清水小学校・・・約1000m ・魚住中学校・・・約1100m

ライオンズマンション明石東二見第弐

ライオンズマンション明石東二見第弐
兵庫県明石市二見町東二見
山陽電鉄本線 東二見駅 徒歩4分
JR山陽本線 魚住駅 徒歩23分
築34年10ヶ月
地上6階地下1階建
間取り図
価格
450万円
間取り
2DK
広さ
38.88m2
階数
4階
方位
  • 南向き
  • 駐車場あり
  • 所有権
  • エレベーター
  • 2階以上
  • 間取り図有り
おすすめポイント
◇◆◇3年間の設備保証つき◇◆◇成約されたお客様には、指定設備において故障が生じた際に、修理費用の負担軽減ができるサービスをご用意しております!※仲介会社を介さず、弊社から直接ご購入された場合に適用※保証内容の制限・保証限度額の設定あり◇◆◇設備トラブルの問い合わせを24時間受付対応!◇◆◇成約されたお客様には、突発的な設備トラブルに対応する「駆けつけ」サービスを提供しております。24時間365日コールセンター対応!30分以内の一次応急処置を無料にて行います。※対象期間:物件引き渡し日の翌月末まで※対象者・対象設備・その他諸条件あり

明石土山駅前スカイハイツB棟 JR土山駅約4分 即引渡し可能です 3階

明石土山駅前スカイハイツB棟 JR土山駅約4分 即引渡し可能です 3階
兵庫県明石市二見町西二見
JR山陽本線 土山駅 徒歩4分
山陽電鉄本線 西二見駅 徒歩25分
山陽電鉄本線 東二見駅 徒歩30分
築37年9ヶ月
7階建
間取り図
価格
1050万円
間取り
2LDK
広さ
59.29m2
階数
3階
方位
  • 南向き
  • 駐車場あり
  • 即入居可
  • 所有権
  • リフォームリノベーション
  • エレベーター
  • 2階以上
  • 間取り図有り
おすすめポイント
◆当物件のお問い合わせは、FUKUYA東加古川店までお願い致します◆FUKUYA東加古川店は国道2号線沿い丸亀製麺さんナナメ向かい。お電話、メールご来店随時受付中です。お気軽にご来店お待ちしております。【令和8年2月リフォーム完成】◆クロス張替◆【即入居可】今すぐ新生活をスタートできます!◆空室につき、ゆっくりご内覧いただけます。◆お問い合わせはFUKUYA東加古川店まで☆

明石土山駅前スカイハイツB棟 JR土山駅約4分 7階部分の3LDK 即

明石土山駅前スカイハイツB棟 JR土山駅約4分 7階部分の3LDK 即
兵庫県明石市二見町西二見
JR山陽本線 土山駅 徒歩4分
山陽電鉄本線 西二見駅 徒歩25分
山陽電鉄本線 東二見駅 徒歩30分
築37年9ヶ月
7階建
間取り図
価格
1380万円
間取り
3LDK
広さ
61.6m2
階数
7階
方位
南東
  • 駐車場あり
  • 最上階
  • 即入居可
  • 所有権
  • リフォームリノベーション
  • システムキッチン
  • エレベーター
  • 2階以上
おすすめポイント
◆当物件のお問い合わせは、FUKUYA東加古川店までお願い致します◆FUKUYA東加古川店は国道2号線沿い丸亀製麺さんナナメ向かい。お電話、メールご来店随時受付中です。お気軽にご来店お待ちしております。●(年額)自動二輪置場代:2000円【R8.1月フルリフォーム完成】◆システムキッチン・浴室・洗面台・トイレ新調◆全室クロス張替◆全室フローリング張替◆CF貼替(洗面所・トイレ)◆全室建具新調、◆給湯器・モニター付インターホン新調◆コンセント・スイッチ交換、◆間取り一部変更◆クローゼット増設◆ハウスクリーニング等

明石土山駅前スカイハイツC棟 JR土山駅約5分 2階部分の3LDK 南

明石土山駅前スカイハイツC棟 JR土山駅約5分 2階部分の3LDK 南
兵庫県明石市二見町西二見
JR山陽本線 土山駅 徒歩5分
山陽電鉄本線 西二見駅 徒歩27分
山陽電鉄本線 東二見駅 徒歩29分
築42年9ヶ月
7階建
間取り図
価格
980万円
間取り
3LDK
広さ
61.6m2
階数
2階
方位
南東
  • 駐車場あり
  • 所有権
  • リフォームリノベーション
  • システムキッチン
  • エレベーター
  • 2階以上
  • 間取り図有り
おすすめポイント
◆当物件のお問い合わせは、FUKUYA東加古川店までお願い致します◆FUKUYA東加古川店は国道2号線沿い丸亀製麺さんナナメ向かい。お電話、メールご来店随時受付中です。お気軽にご来店お待ちしております。【R3.9月リフォーム済】キッチン・浴室・洗面台・トイレ新調、全室クロス・CF貼替、カーペット貼替(廊下・洋室)、玄関土間CF貼替、畳表替え、襖新調、網戸新調(LDK・和室6帖)、網戸貼替(洋室)、木部塗装(和室2室)、全室スイッチ・コンセント交換、換気レジスター取替(LDK・和室6帖・洋室)、全室引っ掛けシーリング取替・給湯器・火災報知器取替、ハウスクリーニング●家具・調度品は含まれません。

ネオハイツ明石・東二見

ネオハイツ明石・東二見
兵庫県明石市二見町東二見
山陽電鉄本線 東二見駅 徒歩5分
JR山陽本線 魚住駅 徒歩19分
山陽電鉄本線 西二見駅 徒歩20分
築30年2ヶ月
5階建
間取り図
価格
1080万円
間取り
3SLDK
広さ
67.95m2
階数
1階
方位
  • 南向き
  • 駐車場あり
  • 専用庭
  • モニタ付インターホン
  • 浴室乾燥機
  • 所有権
  • リフォームリノベーション
  • システムキッチン
おすすめポイント
◇特徴・・和室には趣ある掘りごたつ付き!・モニター付きインターホンやオートロック、防犯カメラなど防犯面も安心◇立地・二見西小学校まで徒歩約18分(約1400m)・二見中学校まで徒歩約18分(約1400m)◆◇弊社が選ばれる理由◆◇1.お金の扱い方のプロ、ファイナンシャルプランナーが資金計画をサポート2.買い替えなどにも対応できる売却専門チームあり3.たくさんの銀行と繋がりがあるため、最も低金利になるように審査が可能4.物件のお引渡し後に必要になったお家のリフォームも弊社のリフォームプランナーがご提案弊社は専門家同士が連携をとっているため、より多くの知見がございます。

明石土山駅前スカイハイツD棟

明石土山駅前スカイハイツD棟
兵庫県明石市二見町西二見
JR山陽本線 土山駅 徒歩5分
山陽電鉄本線 西二見駅 徒歩28分
山陽電鉄本線 東二見駅 徒歩32分
築37年2ヶ月
13階建
間取り図
価格
1190万円
間取り
3LDK
広さ
71.19m2
階数
3階
方位
  • 駐車場あり
  • モニタ付インターホン
  • 即入居可
  • 所有権
  • リフォームリノベーション
  • システムキッチン
  • エレベーター
  • 2階以上
おすすめポイント
◇特徴・シャワー付洗面化粧台で生活便利♪・インターフォン付きで防犯面も安心!◇立地・二見北小学校まで徒歩約15分・二見中学校まで徒歩約25分◆◇弊社が選ばれる理由◆◇1.お金の扱い方のプロ、ファイナンシャルプランナーが資金計画をサポート!2.買い替えなどにも対応できる売却専門チームあり!3.たくさんの銀行と繋がりがあるため、最も低金利になるように審査が可能!         4.物件のお引渡し後に必要になったお家のリフォームも弊社のリフォームプランナーがご提案!弊社は専門家同士が連携をとっているため、より多くの知見がございます。お気軽にお問合せください!

リベール明石東二見Ⅰ

リベール明石東二見Ⅰ
兵庫県明石市二見町東二見
山陽電鉄本線 東二見駅 徒歩5分
JR山陽本線 魚住駅 徒歩22分
築29年9ヶ月
6階建
間取り図
価格
1290万円
間取り
3SLDK
広さ
67.48m2
階数
3階
方位
  • 南向き
  • 駐車場あり
  • モニタ付インターホン
  • 所有権
  • システムキッチン
  • 2階以上
  • 間取り図有り
おすすめポイント
◆室内大変綺麗にお住まいされております♪◆駅近かつ駐車場のあるマンション♪【周辺環境】・明石市立二見西小学校まで 徒歩約17分・明石市二見中学校まで 徒歩約19分・マルアイ」まで 徒歩約10分

グランプレステージ明石魚住駅前

グランプレステージ明石魚住駅前
兵庫県明石市魚住町清水
JR山陽本線 魚住駅 徒歩7分
山陽電鉄本線 山陽魚住駅 徒歩20分
山陽電鉄本線 東二見駅 徒歩23分
築25年3ヶ月
9階建
間取り図
価格
1480万円
間取り
1SLDK
広さ
57.97m2
階数
7階
方位
南東
  • 駐車場あり
  • 浴室乾燥機
  • 所有権
  • システムキッチン
  • エレベーター
  • 2階以上
  • 宅配ボックス
  • 食器洗浄乾燥機
おすすめポイント
■仕様・設備・食洗機付きシステムキッチン・浴室乾燥機・トイレ温水洗浄便座・宅配ボックス・オートロック■周辺環境・魚住小学校まで約800m・魚住東中学校まで約1880m・魚住モールまで約550m■明石店紹介「JR明石駅」「山陽明石駅」から徒歩6分の立地。国道2号線沿いアスピア明石の南東側に店舗を位置し、駐車場は店舗南にございます。※資料請求は、左下のオレンジ色【資料請求】よりお問い合わせください。直接のお問い合わせは、フリーダイヤル【0120-298-550】まで。

マーレ明石東二見サティスコート

マーレ明石東二見サティスコート
兵庫県明石市二見町東二見
山陽電鉄本線 東二見駅 徒歩8分
築28年9ヶ月
10階建
間取り図
価格
840万円
間取り
2SLDK
広さ
67.37m2
階数
3階
方位
  • 駐車場あり
  • 所有権
  • システムキッチン
  • エレベーター
  • 2階以上
  • 間取り図有り
おすすめポイント
■山電「東二見」駅まで徒歩8分!■専有面積:67.37㎡■バルコニー面積:9.33㎡■間取り:2SLDK■LDK約14.3帖■構造:鉄筋コンクリート造陸屋根10階建■南東向きバルコニー■陽当たり良好!
間取り図
価格
1080万円
間取り
3LDK
広さ
67.37m2
階数
8階
方位
南東
  • 駐車場あり
  • 所有権
  • リフォームリノベーション
  • システムキッチン
  • 2階以上
  • 間取り図有り
おすすめポイント
〇67.37㎡(壁芯)・3LDKの間取り<2020年10月リフォーム履歴>・クロス、フロアタイル上貼(LDK・洋室①②③・洗面室・トイレ)・交換(システムキッチン、ユニットバス、洗面、トイレ)

ライオンズマンション明石東二見 山電東二見駅約8分 4階部分の3LDK

ライオンズマンション明石東二見 山電東二見駅約8分 4階部分の3LDK
兵庫県明石市二見町東二見
山陽電鉄本線 東二見駅 徒歩8分
山陽電鉄本線 西二見駅 徒歩11分
JR山陽本線 土山駅 徒歩28分
築35年3ヶ月
11階建
間取り図
価格
1090万円
間取り
3LDK
広さ
69.75m2
階数
4階
方位
  • 駐車場あり
  • モニタ付インターホン
  • 即入居可
  • 所有権
  • システムキッチン
  • エレベーター
  • 2階以上
  • 間取り図有り
おすすめポイント
◆当物件のお問い合わせは、FUKUYA東加古川店までお願い致します◆FUKUYA東加古川店は国道2号線沿い丸亀製麺さんナナメ向かい。お電話、メールご来店随時受付中です。お気軽にご来店お待ちしております。●売主の契約不適合責任免責及び設備故障不具合免責◎近隣施設◎■明石市立二見西小学校約380m■明石市立二見中学校約550m■二見西幼稚園約400m■イトーヨーカドー明石店約580m■マルアイ東二見店約830m■二見郵便局約650m

魚住コーポB棟

魚住コーポB棟
兵庫県明石市魚住町清水
JR山陽本線 魚住駅 徒歩9分
山陽電鉄本線 山陽魚住駅 徒歩20分
山陽電鉄本線 東二見駅 徒歩24分
築52年7ヶ月
4階建
間取り図
価格
450万円
間取り
2LDK
広さ
57.1m2
階数
4階
方位
南東
  • 駐車場あり
  • 最上階
  • 即入居可
  • 所有権
  • システムキッチン
  • 2階以上
  • 間取り図有り
おすすめポイント
■おすすめポイント■・スーパー・コンビニ近くで便利♪・リノベーション用の物件としても活用できます♪・収益物件としてもっ魅力的です■周辺環境■・魚住小学校まで徒歩約13分・魚住東中学校まで徒歩約25分■売買物件をお探しのお客様■賃貸・売買・リフォームのことまで幅広く経験豊富なスタッフが揃っているのが弊社の強みです♪《どの物件がおすすめ?》《ローンが不安…》《住替えの賃貸探し》《購入後のリフォーム》などお客様のたくさんの不安を解決できるでしょう♪お気軽にアースデザインにご相談ください♪☆地域密着型の担当スタッフがお客様のご要望に合わせてサポート致します☆

朝日プラザエルステージ明石 JR土山駅約9分 3LDK 専用庭付き 全

朝日プラザエルステージ明石 JR土山駅約9分 3LDK 専用庭付き 全
兵庫県明石市二見町西二見
JR山陽本線 土山駅 徒歩9分
山陽電鉄本線 西二見駅 徒歩20分
山陽電鉄本線 東二見駅 徒歩24分
築34年7ヶ月
10階建
間取り図
価格
980万円
間取り
3LDK
広さ
65.52m2
階数
1階
方位
西
  • 駐車場あり
  • 専用庭
  • 即入居可
  • 所有権
  • リフォームリノベーション
  • エレベーター
  • 間取り図有り
おすすめポイント
◆当物件のお問い合わせは、FUKUYA東加古川店までお願い致します◆FUKUYA東加古川店は国道2号線沿い丸亀製麺さんナナメ向かい。お電話、メールご来店随時受付中です。お気軽にご来店お待ちしております。●リフォーム履歴(実施月日不明)【H27年】クロス張替【H30年】換気扇交換【R3年】トイレ交換●追焚機能使用不可●機械式駐車場空有(幅1.7m、高さ1.5m、奥行4.7m、重量1.5t)【物件の特徴】◆アクセスやお買物に便利な「JR土山駅」歩約9分◆溢れる陽光でご家族の笑顔も輝く住まい◆専用庭つき◆豊富な収納スペース

ライオンズマンション明石東二見

ライオンズマンション明石東二見
兵庫県明石市二見町東二見
山陽電鉄本線 東二見駅 徒歩10分
JR山陽本線 土山駅 徒歩28分
山陽電鉄本線 西二見駅 徒歩16分
築35年3ヶ月
11階建
間取り図
価格
880万円
間取り
3LDK
広さ
59.84m2
階数
2階
方位
西
  • 即入居可
  • 所有権
  • エレベーター
  • 2階以上
  • 間取り図有り
おすすめポイント
◇特徴・バルコニーに面した明るいLDK・リビング横にある6帖の和室は客間や子どもの遊び場、昼寝スペースなど用途多彩・ワイドバルコニーは、洗濯物も沢山干せ、ガーデニングやリラックススペースとしても最適・たっぷり収納できる押入は、季節物もすっきり片付けられます◇立地・二見西小学校まで徒歩約8分・二見中学校まで徒歩10分◆◇弊社が選ばれる理由◆◇1.お金の扱い方のプロ、ファイナンシャルプランナーが資金計画をサポート!2.買い替えなどにも対応できる売却専門チームあり!3.たくさんの銀行と繋がりがあるため、最も低金利になるように審査が可能!お気軽にお問合せください!
間取り図
価格
1090万円
間取り
3LDK
広さ
69.75m2
階数
4階
方位
  • 駐車場あり
  • モニタ付インターホン
  • 即入居可
  • 所有権
  • システムキッチン
  • カウンターキッチン
  • エレベーター
  • 2階以上
おすすめポイント
山電東二見駅まで約8分で通勤・通学にも便利ですね 東向きバルコニー約13.98m2で開放的です♪ 特急停車駅東二見駅とイトーヨーカドー明石店のある西二見駅が利用可能な2WAYアクセスです◎

ライオンズマンション明石海浜公園

ライオンズマンション明石海浜公園
兵庫県明石市二見町東二見
山陽電鉄本線 東二見駅 徒歩10分
築26年3ヶ月
9階建
間取り図
価格
1170万円
間取り
3LDK
広さ
62.4m2
階数
4階
方位
南東
  • 駐車場あり
  • 所有権
  • リフォームリノベーション
  • システムキッチン
  • 2階以上
  • 間取り図有り
おすすめポイント
【物件概要】◎山電「東二見」駅まで徒歩10分◎9階建て4階部分の3LDK◎南東向きバルコニー、陽当たり良好◎エレベーター2基あり【2019年4月リフォーム済み】・全居室クロス貼替 ・CF貼替(洗面室、トイレ)・ユニットバス交換 ・トイレ交換・襖貼替、障子貼替、畳表替え(和室)・ハウスクリーニング

グランプレステージ明石魚住 JR土山駅約13分 3階部分の2SLDK

グランプレステージ明石魚住 JR土山駅約13分 3階部分の2SLDK
兵庫県明石市二見町福里
JR山陽本線 土山駅 徒歩13分
山陽電鉄本線 東二見駅 徒歩29分
山陽電鉄本線 西二見駅 徒歩36分
築25年11ヶ月
11階建
間取り図
価格
1070万円
間取り
2SLDK
広さ
64.39m2
階数
3階
方位
南東
  • 浴室乾燥機
  • 即入居可
  • 所有権
  • リフォームリノベーション
  • システムキッチン
  • エレベーター
  • 2階以上
  • 宅配ボックス
おすすめポイント
◆当物件のお問い合わせは、FUKUYA東加古川店までお願い致します◆FUKUYA東加古川店は国道2号線沿い丸亀製麺さんナナメ向かい。お電話、メールご来店随時受付中です。お気軽にご来店お待ちしております。【R2.10月リフォーム済】トイレ交換、浴室鏡交換、畳表替、カーペット貼替●S=納戸●駐車場空要確認

グランプレステージ明石魚住

グランプレステージ明石魚住
兵庫県明石市二見町福里
JR山陽本線 土山駅 徒歩13分
山陽電鉄本線 東二見駅 徒歩29分
山陽電鉄本線 西二見駅 徒歩36分
築25年11ヶ月
8階建
間取り図
価格
1300万円
間取り
2LDK
広さ
72.16m2
階数
4階
方位
南東
  • 駐車場あり
  • 浴室乾燥機
  • 即入居可
  • 所有権
  • システムキッチン
  • エレベーター
  • 2階以上
  • 間取り図有り
おすすめポイント
\当日のご案内可能/◆住宅ローン相談無料!今お持ちのローンを最大500万円まで住宅ローンと一本化が可能!◆住宅ローンアドバイザー有資格者多数在籍の弊社にお任せください!◆お忙しいお客様はオンライン案内も可能です!■□■お買い得情報■□■◆オプション工事最大40%OFF!◆火災保険最大20%OFF!◆引っ越し業者多数提携!◆光熱費高騰対策キャンペーン実施中!◆安心の各種保証完備!新生活を充実のトータルサポート!新築物件は全て住まいるプラス1 ハウジングプラザ阪神店にお任せください!【新築取扱件数5400件以上】スーモに掲載していない物件もご相談下さい!
間取り図
価格
980万円
間取り
3LDK
広さ
59.45m2
階数
3階
方位
南東
  • 駐車場あり
  • モニタ付インターホン
  • 浴室乾燥機
  • 所有権
  • リフォームリノベーション
  • システムキッチン
  • エレベーター
  • 2階以上
おすすめポイント
◎スーパー、コンビニが徒歩圏内の生活施設充実の立地♪◎リフォーム歴も複数あり、室内大変きれいです♪●リフォーム履歴2019年12月CF、カーペット貼り替えコンロ、レンジフード、キッチン水栓等交換トイレ新調2023年9月天井、壁クロス貼り替え〇●〇二見北小学校 区〇●〇二見中学校 区〇●〇■■□専属リフォームプランナーによる【唯一無二】の空間を実現□■■当社専属のリフォームプランナーがご予算に合わせた、最適のリフォームプランを提案いたします。リペアからリノベーションまで、マンションリフォーム数百件の実績があるのでワンストップでご相談頂けます。

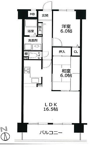
明石二見ハイツ2号棟

明石二見ハイツ2号棟
兵庫県明石市二見町福里
JR山陽本線 土山駅 徒歩14分
山陽電鉄本線 東二見駅 徒歩21分
山陽電鉄本線 西二見駅 徒歩23分
築48年9ヶ月
5階建
間取り図
価格
298万円
間取り
3LDK
広さ
62.15m2
階数
4階
方位
  • 南向き
  • 駐車場あり
  • 所有権
  • 2階以上
  • 間取り図有り
おすすめポイント
◇特徴・和室がありお子様の遊び場やお昼寝等用途多彩・自然換気ができる窓付きバスルーム・屋根付き駐輪場あり◇立地・二見北小学校まで徒歩約1分・二見中学校まで徒歩約17分◆◇弊社が選ばれる理由◆◇1.お金の扱い方のプロ、ファイナンシャルプランナーが資金計画をサポート!2.買い替えなどにも対応できる売却専門チームあり!3.たくさんの銀行と繋がりがあるため、最も低金利になるように審査が可能!弊社は専門家同士が連携をとっているため、より多くの知見がございます。お気軽にお問合せください!

グローバル魚住

グローバル魚住
兵庫県明石市魚住町清水
JR山陽本線 魚住駅 徒歩15分
山陽電鉄本線 山陽魚住駅 徒歩27分
山陽電鉄本線 東二見駅 徒歩31分
築36年2ヶ月
7階建
間取り図
価格
1280万円
間取り
3LDK
広さ
63.32m2
階数
2階
方位
西
  • 駐車場あり
  • モニタ付インターホン
  • 即入居可
  • 所有権
  • システムキッチン
  • エレベーター
  • 2階以上
  • 間取り図有り
おすすめポイント
【おすすめPOINT】・全居室収納あり・人気のマンション2階部分♪・ペット飼育可能(規約による制限有り)・駐車場空きあり!・購入後お好きにリフォーム可能です!・JR『魚住駅』まで徒歩15分・エレベーター各階停止【周辺環境】・セブンイレブン明石魚住浜西店 徒歩3分(約214m)・マルアイ魚住店 徒歩5分(約327m)・ミニストップ明石魚住町店 徒歩4分(約305m)・魚住小学校 徒歩6分(約441m)・魚住東中学校 徒歩18分(約1405m)・サンドラッグ明石魚住店 徒歩5分(約379m)

プレステージ明石魚住Ⅲ

プレステージ明石魚住Ⅲ
兵庫県明石市魚住町清水
JR山陽本線 土山駅 徒歩17分
山陽電鉄本線 東二見駅 徒歩29分
築30年8ヶ月
8階建
間取り図
価格
680万円
間取り
3LDK
広さ
71.47m2
階数
6階
方位
南西
  • 駐車場あり
  • モニタ付インターホン
  • 即入居可
  • 所有権
  • システムキッチン
  • エレベーター
  • 2階以上
  • 食器洗浄乾燥機
おすすめポイント
■仕様・設備・食洗機付きシステムキッチン・追い焚き機能・各居室に収納有り・モニタ付きインターホン・オートロック■周辺環境・清水小学校まで約880m・魚住中学校まで約990m・ディオ明石店まで約240m■明石店紹介「JR明石駅」「山陽明石駅」から徒歩6分の立地。国道2号線沿いアスピア明石の南東側に店舗を位置し、駐車場は店舗南にございます。※資料請求は、左下のオレンジ色【資料請求】よりお問い合わせください。直接のお問い合わせは、フリーダイヤル【0120-298-550】まで。

グローバル魚住Ⅱ

グローバル魚住Ⅱ
兵庫県明石市魚住町清水
JR山陽本線 魚住駅 徒歩18分
山陽電鉄本線 東二見駅 徒歩35分
築34年
11階建
間取り図
価格
1680万円
間取り
3LDK
広さ
78.42m2
階数
7階
方位
南東
  • 駐車場あり
  • モニタ付インターホン
  • 所有権
  • リフォームリノベーション
  • システムキッチン
  • エレベーター
  • 2階以上
  • 間取り図有り
おすすめポイント
■フルリフォーム後に引渡し予定!■(令和8年6月頃に完工予定)【リフォーム内容(予定)】□システムキッチン新調(食器乾燥洗浄機付)□ユニットバス新調(高温差し湯式)□独立洗面台新調 □トイレ新調(温水洗浄便座)□全室壁紙張替え □CF張替え□全室床新調(フロアタイル上張り)□ハウスクリーニング(専門業者美装工事) 等~フルリフォームで新築マンション          同様の設備内容!~【周辺環境】□JR山陽本線 魚住駅 徒歩18分□魚住小学校 徒歩2分□魚住東中学校 徒歩11分□ジャパン(ディスカウントストア) 徒歩5分□セブンイレブン 徒歩7分 等

グランプレステージ明石西Ⅲ

グランプレステージ明石西Ⅲ
兵庫県明石市魚住町清水
JR山陽本線 土山駅 徒歩22分
山陽電鉄本線 東二見駅 徒歩30分
JR山陽本線 魚住駅 徒歩28分
築24年3ヶ月
10階建
間取り図
価格
970万円
間取り
3LDK
広さ
60.84m2
階数
6階
方位
南東
  • 浴室乾燥機
  • 所有権
  • エレベーター
  • 2階以上
  • 宅配ボックス
  • 食器洗浄乾燥機
  • 間取り図有り
おすすめポイント
●JR土山駅まで徒歩約22分●南東向きで陽当たり良好◎●ドラッグストアスギ薬局 徒歩約2分●ディオ明石店 徒歩約1分●セブンイレブン 徒歩約3分●インターネット使い放題(使用料は管理費に含まれます)お気軽にお問い合わせください!※ケーブルテレビ負担金:月額1,680円 バイク置場(50CC以下に限る):月額1,000円 自転車置場:無料
間取り図
価格
980万円
間取り
3LDK
広さ
56.81m2
階数
9階
方位
南東
  • ルーフバルコニー
  • 床暖房
  • 所有権
  • エレベーター
  • 2階以上
  • 食器洗浄乾燥機
  • 間取り図有り
おすすめポイント
●JR土山駅まで徒歩約22分●南東向きで陽当たり良好です●敷地内に遊具付きの公園があるので小さいお子様がいる世帯にはうれしい環境ですね♪●インターネット使い放題(使用料は管理費に含まれます)【周辺環境】●ドラッグストアスギ薬局 徒歩約2分●ディオ明石店 徒歩約1分●セブンイレブン 徒歩約3分

ウエステージ明石壱番館

ウエステージ明石壱番館
兵庫県明石市二見町西二見
JR山陽本線 土山駅 徒歩13分
山陽電鉄本線 西二見駅 徒歩18分
山陽電鉄本線 東二見駅 徒歩22分
築32年2ヶ月
11階建
間取り図
価格
1280万円
間取り
2LDK
広さ
68.22m2
階数
6階
方位
南西
  • 駐車場あり
  • 即入居可
  • 所有権
  • リフォームリノベーション
  • システムキッチン
  • エレベーター
  • 2階以上
  • 間取り図有り
おすすめポイント
◎LDKをロールスクリーンで間仕切る事が出来ます!◎簡易工事にて3LDKに変更出来ます!◎室内リフォーム履歴多数!◎敷地内駐車場空き有り!◎6階の静かな住環境です♪◎ホームセンターコーナン、スーパーマルハチ等大型商業施設に隣接した生活便利な好立地です!◎バス停「土山変電所前」まで徒歩約1分!◎小学校近く(徒歩約5分)子育て世代も安心のマンションです♪◎リフォームも当社にお任せ下さい!

プレステージ明石魚住3

プレステージ明石魚住3
兵庫県明石市魚住町清水
JR山陽本線 土山駅 徒歩18分
山陽電鉄本線 東二見駅 徒歩3.2km
JR山陽本線 魚住駅 徒歩35分
築30年8ヶ月
8階建
間取り図
価格
1180万円
間取り
2LDK
広さ
56.6m2
階数
3階
方位
南西
  • 駐車場あり
  • モニタ付インターホン
  • 即入居可
  • 所有権
  • リフォームリノベーション
  • システムキッチン
  • エレベーター
  • 2階以上
おすすめポイント
◇リフォーム内容・浴室、洗面台、トイレ、洗濯パン、キッチン新調・クロス全部貼替、フロア増張り・畳表替・襖貼替・リビング拡張・ハウスクリーニング◇立地・清水小学校まで徒歩約14分・魚住中学校まで徒歩約19分◆◇弊社が選ばれる理由◆◇1.お金の扱い方のプロ、ファイナンシャルプランナーが資金計画をサポート2.買い替えなどにも対応できる売却専門チームあり!3.たくさんの銀行と繋がりがあるため、最も低金利になるように審査が可能4.物件のお引渡し後に必要になったお家のリフォームも弊社のリフォームプランナーがご提案5.定期的にご連絡を繋ぎ、有事の際に迅速にサポートいたします

プレステージ明石魚住Ⅲ 1180万円

プレステージ明石魚住Ⅲ 1180万円
兵庫県明石市魚住町清水
JR山陽本線 土山駅 徒歩19分
山陽電鉄本線 東二見駅 徒歩31分
JR山陽本線 魚住駅 徒歩32分
築30年8ヶ月
8階建
間取り図
価格
1180万円
間取り
3LDK
広さ
56.6m2
階数
3階
方位
  • 南向き
  • 所有権
  • システムキッチン
  • エレベーター
  • 2階以上
  • 間取り図有り
おすすめポイント
~おすすめポイント~◆バルコニー南向きで、陽当たり良好◆スーパー徒歩10分圏内で、周辺環境充実◆JR土山駅 徒歩18分~周辺環境~◆JR土山駅 徒歩18分◆清水小学校 徒歩11分◆魚住中学校 徒歩12分

明石土山駅前スカイハイツC棟

明石土山駅前スカイハイツC棟
兵庫県明石市二見町西二見
JR山陽本線 土山駅 徒歩3分
山陽電鉄本線 西二見駅 徒歩25分
山陽電鉄本線 東二見駅 徒歩29分
築42年9ヶ月
14階建
間取り図
価格
1280万円
間取り
2SLDK
広さ
66m2
階数
3階
方位
南東
  • 駐車場あり
  • モニタ付インターホン
  • 即入居可
  • 所有権
  • リフォームリノベーション
  • システムキッチン
  • エレベーター
  • 2階以上
おすすめポイント
◇リフォーム内容(2025年12月完了)・システムキッチン、ユニットバス、トイレ、洗面台入替・全室フローリング・クロス・CF張替、建具・給湯器交換・洗濯パン新調、照明器具設置等◇立地・明石市立二見北小学校まで徒歩約12分・明石市立二見中学校まで徒歩約22分◆◇弊社が選ばれる理由◆◇1.お金の扱い方のプロ、ファイナンシャルプランナーが資金計画をサポート!2.買い替えなどにも対応できる売却専門チームあり!3.たくさんの銀行と繋がりがあるため、最も低金利になるように審査が可能!4.物件のお引渡し後に必要になったお家のリフォームも弊社のリフォームプランナーがご提案!

明石土山駅前スカイハイツ B棟

明石土山駅前スカイハイツ B棟
兵庫県明石市二見町西二見
JR山陽本線 土山駅 徒歩4分
山陽電鉄本線 西二見駅 徒歩27分
山陽電鉄本線 東二見駅 徒歩30分
築37年9ヶ月
7階建
間取り図
価格
1380万円
間取り
3LDK
広さ
61.6m2
階数
7階
方位
南東
  • 駐車場あり
  • 最上階
  • モニタ付インターホン
  • 浴室乾燥機
  • 即入居可
  • 所有権
  • リフォームリノベーション
  • システムキッチン
おすすめポイント
■月々3万円台~購入可能■リフォーム済■山陽本線「土山」歩4分■最上階!7階部分♪■南東向き 陽当り通風良好■61.60平米の3LDK■バルコニーに面した明るいリビング■住空間スッキリ!全居室収納■浴室乾燥機付!雨の日や花粉の季節に◎■モニタ付インターホン有■スーパー、病院が徒歩10分圏内〈令和8年1月リフォーム内容〉・システムキッチン新調・洗面化粧台新調・ユニットバス新調・温水洗浄便座付トイレ新調・建具新調・給湯器新調・クロス貼替・フローリング貼替などお家探しは、『物件掲載数No.1』のトラストホームにお任せください! 0120-39-7710

リベール明石東二見1

リベール明石東二見1
兵庫県明石市二見町東二見
山陽電鉄本線 東二見駅 徒歩4分
JR山陽本線 魚住駅 徒歩22分
山陽電鉄本線 山陽魚住駅 徒歩23分
築29年9ヶ月
6階建
間取り図
価格
1380万円
間取り
3LDK
広さ
71.96m2
階数
4階
方位
  • 南向き
  • 駐車場あり
  • モニタ付インターホン
  • 所有権
  • システムキッチン
  • 2階以上
  • 間取り図有り
おすすめポイント
◇特徴・カウンターキッチンのため、お子様の様子を見ながらお料理ができます・スーパー、コンビニが徒歩圏内で生活に便利な立地です・近くに公園もあり、気分転換にピッタリです◇立地・二見西小学校まで徒歩約17分・二見中学校まで徒歩約19分◆◇弊社が選ばれる理由◆◇1.お金の扱い方のプロ、ファイナンシャルプランナーが資金計画をサポート!2.買い替えなどにも対応できる売却専門チームあり!3.たくさんの銀行と繋がりがあるため、最も低金利になるように審査が可能!弊社は専門家同士が連携をとっているため、より多くの知見がございます。お気軽にお問合せください!

プレステージ明石魚住アルカンシェル

プレステージ明石魚住アルカンシェル
兵庫県明石市魚住町西岡
JR山陽本線 魚住駅 徒歩11分
山陽電鉄本線 東二見駅 徒歩17分
山陽電鉄本線 山陽魚住駅 徒歩21分
築23年2ヶ月
8階建
間取り図
価格
2380万円
間取り
4LDK
広さ
84.98m2
階数
8階
方位
南西
  • 駐車場あり
  • 最上階
  • 角部屋
  • ルーフバルコニー
  • モニタ付インターホン
  • 浴室乾燥機
  • 即入居可
  • 所有権
おすすめポイント
◇特徴・隣接住戸がないので、生活音を気にせずゆったり過ごせます・平成28年3月フルリフォーム歴あり・LDK15帖以上!・最上階ルーフバルコニーで陽当たり・眺望良好・2沿線利用可能で通勤や通学も便利◇立地・錦浦小学校まで徒歩約13分・魚住中学校まで徒歩約19分◆◇弊社が選ばれる理由◆◇1.お金の扱い方のプロ、ファイナンシャルプランナーが資金計画をサポート!2.買い替えなどにも対応できる売却専門チームあり!3.たくさんの銀行と繋がりがあるため、最も低金利になるように審査が可能!4.物件のお引渡し後に必要になったお家のリフォームも弊社のリフォームプランナーがご提案

パル明石魚住スカイマンション 1階

パル明石魚住スカイマンション 1階
兵庫県明石市魚住町西岡
山陽電鉄本線 東二見駅 徒歩10分
JR山陽本線 魚住駅 徒歩21分
山陽電鉄本線 山陽魚住駅 徒歩20分
築35年3ヶ月
9階建
間取り図
価格
888万円
間取り
3LDK
広さ
70.76m2
階数
1階
方位
  • 南向き
  • 駐車場あり
  • 即入居可
  • 所有権
  • 管理人常駐
  • エレベーター
  • 間取り図有り
おすすめポイント
◆この物件のおすすめPoint◆・1階部分でお子様の足音などの気にせず居住できます♪・各居室ゆったりしたお部屋割り・住戸はエントランスからすぐ◆教育環境◆・明石市立錦浦小学校・明石市立魚住中学校◆担当スタッフから◆5STAR HOMEでは物件を内見だけでなく街並みや近隣の雰囲気など一緒に体感していただけます。ご検討地域の環境状況に自信のないお客様からご好評いただいている当社のサービスの一つです。

明石土山スカイハイツD棟

明石土山スカイハイツD棟
兵庫県明石市二見町西二見
JR山陽本線 土山駅 徒歩5分
山陽電鉄本線 西二見駅 徒歩27分
山陽電鉄本線 東二見駅 徒歩31分
築37年2ヶ月
13階建
間取り図
価格
1180万円
間取り
1LDK
広さ
60.93m2
階数
7階
方位
  • 即入居可
  • 所有権
  • システムキッチン
  • エレベーター
  • 2階以上
  • 間取り図有り
おすすめポイント
2016年12月フルリノベ完成♪間取り変更・キッチン・浴室・洗面交換。全室クロス&フローリング張替え済で“新築同様”の仕上がり■ 駅徒歩5分の好立地!山陽本線「土山」駅へも徒歩圏■通勤通学に便利・生活利便■ スーパー・飲食店・ドラッグストア・カフェが徒歩8分以内■小学校まで徒歩10分、公園・クリニックもアクセス良好■まずは内見で実感を!週末のご見学や資料請求もお気軽にどうぞ♪

グローバル魚住2

グローバル魚住2
兵庫県明石市魚住町清水
山陽本線 魚住駅 徒歩18分
山陽電気鉄道本線 東二見駅 徒歩35分
築34年
11階建
間取り図
価格
1680万円
間取り
3LDK
広さ
78.42m2
階数
7階
方位
南東
  • 駐車場あり
  • 防犯カメラ
  • モニタ付インターホン
  • 所有権
  • ペット相談可
  • システムキッチン
  • カウンターキッチン
  • エレベーター
おすすめポイント
■フルリフォーム後に引渡し予定!■嬉しいペット飼育可能マンション■

プレステージ明石魚住III

プレステージ明石魚住III
兵庫県明石市魚住町清水
山陽本線 土山駅 徒歩18分
山陽電気鉄道本線 東二見駅 徒歩30分
築30年8ヶ月
8階建
間取り図
価格
1180万円
間取り
2LDK
広さ
56.6m2
階数
3階
方位
南西
  • 駐車場あり
  • オートロック
  • モニタ付インターホン
  • 即入居可
  • 所有権
  • リフォームリノベーション
  • システムキッチン
  • カウンターキッチン
おすすめポイント
静かな住環境で暮らす、魚住町清水の3LDKマンション。都市部へもアクセス良好。明石市で始める快適マンション生活。
間取り図
価格
680万円
間取り
3LDK
広さ
71.47m2
階数
6階
方位
南西
  • 駐車場あり
  • オートロック
  • モニタ付インターホン
  • 即入居可
  • 所有権
  • システムキッチン
  • カウンターキッチン
  • エレベーター
おすすめポイント
6階部分の南西向きバルコニー。空家につき、即引き渡し可能です。前面棟無し。清水小学校まで約880m、ディオ明石店まで約240m。お問合せはFUKUYA明石店まで。是非一度ご覧ください。
チェックした物件を一括で
  • チェックした物件をまとめて
55
表示建物数 12 次へ

条件を選択

価格
間取り
広さ
築年数
駅からの時間
人気のこだわり条件

さらに詳しくこだわり条件を選択

位置
  • new
部屋環境
建物設備
収納
セキュリティ
駐車場・駐輪場
条件
特徴
性能・評価
瑕疵保険
お得な条件
画像・動画
情報の新しさ
フリーワード

明石市の暮らしデータ

人口などの統計情報

世帯数 133488世帯
人口総数 307235人
転入者数 11912人
転入率(人口1000人当たり)
38.77人
転出者数 10455人
転出率(人口1000人当たり)
34.03人
土地平均価格
住宅地
116132円/m2
商業地
196857円/m2

結婚・育児の助成金

子育て関連の独自の取り組み (1)認可保育施設に通う第2子以降の保育料の無料化。(2)小学校1年生の30人学級、中学校1年生の35人学級の導入。(3)高校生世代までの医療費完全無料化。(4)2025年度は保育所等の待機児童解消に向け、100人以上の受け入れ枠拡大をめざす。(5)高校進学に係る給付型奨学金事業(入学準備金[上限30万円]・在学時支援金[毎月5,000円]の支給、高校進学に向けた学習支援及び進学後の学校生活支援)の実施。(6)0歳児見守り訪問「おむつ定期便」(子育て経験のある配達員が0歳児のいる家庭に紙おむつ等を毎月無料でお届け)。(7)3歳児クラス以上の副食費の無料化。(8)使用済み紙おむつの持ち帰り廃止。(9)中学校給食の無償化。(10)フリースクール利用料の助成[上限月額1万円]。
出産祝い なし
公立保育所数 10所(うち0歳児保育を実施している保育所:10所)
私立保育所数 31所(うち0歳児保育を実施している保育所:30所)
保育所入所待機児童数 56人
認定こども園数 65園 預かり保育実施園数 公立:- 私立:1園
学校給食 【小学校】完全給食【中学校】完全給食
公立中学校の学校選択制 一部実施(特例地区[一部の学校区において、指定校以外の学校を希望により選択可能な区域あり])
子ども・学生等医療費助成<通院>対象年齢 18歳3月末まで 子ども・学生等医療費助成<入院>対象年齢 18歳3月末まで

明石市の治安・ごみ収集情報

公共料金・インフラ

ガス料金(22m3使用した場合の月額) 大阪瓦斯株式会社4544円
水道料金(口径20mmで20m3の月額) 明石市2541円
下水道料金(20m3を使用した場合の月額) 明石市2197円
下水道普及率 99.7%

安心・安全

建物火災出火件数 28件
人口10000人当たり
0.92件
刑法犯認知件数 2114件
人口1000人当たり
6.96件
ハザード・防災マップ あり

医療

一般病院総数 19ヶ所
一般診療所総数 251ヶ所
小児科医師数 43人
小児人口10000人当たり
9.94人
産婦人科医師数 35人
15~49歳女性人口1万人当たり
5.81人
介護保険料基準額(月額) 6200円

ごみ

家庭ごみ収集(可燃ごみ) 無料
備考
-
家庭ごみの分別方式 4分別10種〔燃やせるごみ 燃やせないごみ 資源ごみ(缶、びん、ペットボトル) 紙類・布類(新聞紙、雑誌・雑がみ、段ボール、紙パック、布類)〕 拠点回収:使用済み食用油 使用済み小型家電 水銀使用廃製品(水銀体温計 水銀血圧計 水銀温度計)
家庭ごみの戸別収集 一部実施(【ふれあい収集】要援護者ごみ戸別収集[一部地域のみ実施])
粗大ごみ収集 あり
備考
有料。戸別収集。事前申込制。粗大ごみ処理券300円/枚。
生ごみ処理機助成金制度 なし
上限金額
-
上限比率
-

明石市の住まいの給付金

中古購入

利子補給制度 なし
補助/助成金制度 なし

増築・改築・改修

利子補給制度 なし
補助/助成金制度 あり
上限金額
(1)150万円(2)10万円(3)80万円
備考
(1)【住宅耐震化促進事業】1981年5月以前築の住宅の耐震化費用を補助。住宅耐震改修計画策定費補助として上限20万円を助成。住宅耐震改修工事費補助として上限130万円を助成。部分型改修工事費補助として50万円を助成。(2)【住宅リフォーム助成】住宅リフォーム工事に要する費用の一部を助成。費用の10%。(3)【高齢者等住宅改造費助成事業】日常生活を営む上で支障がある高齢者及び障害者に対して行うバリアフリー工事費用を助成。住宅改造改造助成対象の工事費合計額のうち80万円(介護保険住宅改修費等と合わせて100万円)までを助成対象基準額とする。生計中心者の所得に応じ費用負担・所得制限あり。他要件あり。
暮らしデータ提供元:生活ガイド.com
※行政機関により公表していない地域及びデータがございます。東京23区以外の政令指定都市は、市全体のデータとして表示しています。
※提供データには細心の注意を払っておりますが、調査後に変更がある場合があります。 最新の情報につきましては各市区役所までお問い合わせいただくか、自治体HPなどをご確認ください。

価格相場

更新日:2026年03月30日

東二見駅の価格相場

  ワンルーム 1K・1DK 1LDK・2K・2DK 2LDK・3K・3DK 3LDK・4K・4DK
中古マンション - - - 1069万円 1084万円

周辺駅の価格相場

  山陽魚住 西二見 西江井ヶ島 播磨町 江井ヶ島
中古マンション - - - - -
※このデータはgoo住宅・不動産に掲載されている中古マンションの平均価格(管理費・駐車場代などを除く)を算出したものです。ただし5戸以上の掲載があるものについてのみ対象とします。
※周辺駅の価格相場は1LDK・2K・2DKの平均価格(管理費・駐車場代などを除く)を算出したものです。

兵庫県の人気の街アクセスランキング(中古マンション)

※このランキングは2026年02月01日~28日における各ページのアクセス数から算出しています。

他のエリアから探す

特集から探す

間取り図ありタワーマンション大規模マンションペット可・ペット相談可即入居可能駐車場空き有り専有面積100平米以上売主・代理2LDK3LDK4LDK以上リフォーム・リノベーション済

アプリで簡単 物件探し 大手不動産サイトの情報から一括検!プッシュ通知で物件を見逃さない
App Storeからダウンロード Google Playで手に入れよう QRコード