1棟アパート SBT 豊島区高田1丁目 投資用一棟アパート 収益物件・投資物件

情報提供元
LIFULL HOME'S
価格 24,800万円 表面利回り 5.84% 年間予定収入 -
所在地 東京都豊島区高田1丁目28-8
交通 東京メトロ副都心線 雑司が谷駅 徒歩6分
都電荒川線 面影橋駅 徒歩5分
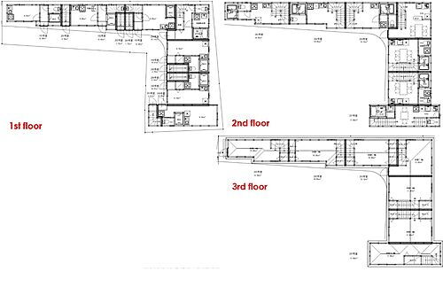
建物構造 木造 建物面積 323.67m2 土地面積 206.76m2(公簿)
現況 賃貸中 間取り - 築年月 2019年7月(築6年5ヶ月)
おすすめポイント
〇全室バストイレ別◆豊島区高田1丁目 築浅1棟収益アパートメント◆建築確認済証取得済◆全住戸バストイレ別設計◆1R・1DK・1LDK住戸合計13戸◆13部屋中12部屋賃貸中◆満室時想定利回り5.84%

販売状況、物件の見学、詳細を知りたい方はこちらからお問い合わせください(無料)

お問い合わせ先
株式会社ハウスプランナー 本店

詳細情報

種別 1棟アパート
価格 24,800万円ローンシミュレーション
建物名 SBT 豊島区高田1丁目 投資用一棟アパート
管理費等 - 修繕積立金 -
住所 東京都豊島区高田1丁目28-8
交通 東京メトロ副都心線 雑司が谷駅 徒歩6分 都電荒川線 面影橋駅 徒歩5分
土地面積 206.76m2(公簿)
建物面積 323.67m2
専有面積 12.35m2~44.13m2
間取り - バルコニー面積 -
駐車場 - 管理形態 -
築年月 2019年7月(築6年5ヶ月) 総戸数 13戸
事務所戸数 0戸
接道状況 西5.5m公道接面4.7m 南4.1m公道接面0.5m 一方道路
セットバック 私道面積 -
敷地権利 所有権 借地期間・地代 -
構造・工法 木造 所在階/階建て 3階建
都市計画 市街化区域 建ぺい率・容積率 60%・300%
用途地域 準工業 地目 宅地
現況 賃貸中 条件等 -
引き渡し 即時 国土法 -
特記事項 -
設備 上水道・都市ガス・本下水
リフォーム履歴 -
リノベーション
履歴
-
備考 【物件周辺の生活情報】
・学校
豊島区立高南小学校(300m)、豊島区立千登世橋中学校(550m)
・買い物
スーパー(320m)、コンビニ(190m)、ドラッグストア(340m)
・その他施設
総合病院(670m)、銀行(640m)
◆周辺には大学や専門学校があり、賃貸需要があります。◆高田馬場駅も徒歩圏内で都心へアクセスも便利な立地です。◆周辺にはコンビニ・スーパーはもちろん飲食店等もあり、過ごしやすい住環境◆都心に立地しながら周辺には公園等、緑が多く、お子様がいらっしゃるご家庭にも住みやすい環境◆まずは詳細等、お気軽にお問い合わせ下さいませ。
建築確認番号 -
情報提供元 LIFULL HOME'S[1103230002339] 情報公開日
情報更新日 次回更新予定日 2025年11月13日
おすすめポイント
〇全室バストイレ別◆豊島区高田1丁目 築浅1棟収益アパートメント◆建築確認済証取得済◆全住戸バストイレ別設計◆1R・1DK・1LDK住戸合計13戸◆13部屋中12部屋賃貸中◆満室時想定利回り5.84%

販売状況、物件の見学、詳細を知りたい方はこちらからお問い合わせください(無料)

お問い合わせ先
株式会社ハウスプランナー 本店

東京メトロ副都心線 雑司が谷駅の家賃相場

更新日:2025年10月27日
  ワンルーム 1K・1DK 1LDK・2K
2DK
2LDK・3K
3DK
3LDK・4K
4DK
マンション 9.5万円 11.3万円 17.5万円 24.6万円 28.7万円
アパート 6.9万円 7.7万円 11.1万円 20.1万円 -
一戸建て - - - 28.2万円 47.5万円

※このデータはgoo住宅・不動産に掲載されている賃貸物件の平均賃料(管理費・駐車場代などを除く)を算出したものです。ただしマンション・アパート・一戸建てともに10戸以上の掲載があるものについてのみ対象とします。

最寄地図東京都豊島区高田1丁目 周辺地図情報

地図
※地図上に表示される物件の位置は付近住所に所在することを表すものであり、実際の物件所在地とは異なる場合がございます。
    正確な物件所在地は、取扱い不動産会社にお問い合わせください。
表面利回り:満室時表面利回り(年)=賃料×12ヶ月/購入価格※賃料は周辺相場を元に満室時を想定して算出 利回りとは、当該不動産の1年間の予定賃料収入の不動産取得対価に対する割合であり、公租公課・共益費など、その他当該物件を維持するために必要な費用の控除する前の収入で算出しています。 また、想定賃料が将来にわたり確実に得られる保証はございません。

不動産会社情報

お問い合わせ先 商号:株式会社ハウスプランナー 本店
免許番号:東京都知事(5)第81207号
所在地:東京都新宿区高田馬場4丁目13-11 TMビル2F
取引態様:専属専任媒介
管理コード:2339
所属協会など:(公財)東日本不動産流通機構、(公社)首都圏不動産公正取引協議会、(公社)全日本不動産協会東京都本部
共有する

お電話でのお問い合わせ

電話をかける(携帯・PHS可)
お問い合わせダイヤル
通話無料0037-634-01704
営業時間 10:00~18:00 (定休日:水曜定休)
音声案内に従って数字を入力
お問い合わせ番号
90051-2970
不動産会社につながります
不動産会社のスタッフと
直接電話で話せます。
※不動産会社がお電話に出られなかった場合、株式会社LIFULLは電話会社が提供するサービスを介してお客様の発信者番号を受領後、折り返し専用の電話番号を発番してお問合せの不動産会社に通知します(お客様の発信者番号がお問合せの不動産会社に通知されることはございません)
※光IP電話、及びIP電話からはご利用になれません
※0037で始まる電話番号に携帯電話からお問合せいただいた方には、ショートメッセージ(SMS)によるお問合せ完了通知をお届けする場合があります
おすすめポイント
〇全室バストイレ別◆豊島区高田1丁目 築浅1棟収益アパートメント◆建築確認済証取得済◆全住戸バストイレ別設計◆1R・1DK・1LDK住戸合計13戸◆13部屋中12部屋賃貸中◆満室時想定利回り5.84%

販売状況、物件の見学、詳細を知りたい方はこちらからお問い合わせください(無料)

お問い合わせ先
株式会社ハウスプランナー 本店

豊島区の暮らしデータ

人口などの統計情報

世帯数 183687世帯
人口総数 291650人
転入者数 35939人
転入率(人口1000人当たり)
123.23人
転出者数 30649人
転出率(人口1000人当たり)
105.09人
土地平均価格
住宅地
783000円/m2
商業地
2992846円/m2

結婚・育児の助成金

子育て関連の独自の取り組み (1)としまもっと見る知る(アプリ)による出産子育て情報の提供。(2)ゆりかご・としま事業等実施。(3)生涯学習保育者登録制度(区民グループの学習活動中の保育者派遣)。(4)地域がつながるプロジェクト。(5)妊産婦歯科健診、1歳児歯科健診・総合相談の実施。(6)月齢4ヶ月から11ヶ月のお子さんを養育する世帯に訪問し状況を伺い育児支援品に引き換えできる電子クーポンを訪問1回につき3,000円相当を配付。(7)妊娠期からの男性育児支援。(8)一時保育事業において2回目以降の予約申し込みの際はWEB申し込み可。(9)東部・西部子ども家庭支援センターの幼児が使用したおむつを圧縮ラミネートにより無菌状態で回収。
出産祝い あり
公立保育所数 18所(うち0歳児保育を実施している保育所:18所)
私立保育所数 75所(うち0歳児保育を実施している保育所:65所)
保育所入所待機児童数 0人
認定こども園数 1園 預かり保育実施園数 公立:3園 私立:14園
学校給食 【小学校】完全給食【中学校】完全給食
公立中学校の学校選択制 実施(新入学時のみ[隣接区域選択制])
子ども・学生等医療費助成<通院>対象年齢 18歳3月末まで 子ども・学生等医療費助成<入院>対象年齢 18歳3月末まで

豊島区の治安・ごみ収集情報

公共料金・インフラ

ガス料金(22m3使用した場合の月額) 東京瓦斯株式会社(東京地区等)3926円
水道料金(口径20mmで20m3の月額) 東京都水道局2816円
下水道料金(20m3を使用した場合の月額) 東京都下水道局2068円
下水道普及率 100.0%

安心・安全

建物火災出火件数 78件
人口10000人当たり
2.59件
刑法犯認知件数 3405件
人口1000人当たり
11.29件
ハザード・防災マップ あり

医療

一般病院総数 14ヶ所
一般診療所総数 509ヶ所
小児科医師数 86人
小児人口10000人当たり
32.96人
産婦人科医師数 35人
15~49歳女性人口1万人当たり
4.75人
介護保険料基準額(月額) 6200円

ごみ

家庭ごみ収集(可燃ごみ) 無料
備考
一度に大量のごみを出す場合(45リットルの袋で4袋以上)は有料。
家庭ごみの分別方式 3分別13種〔燃やすごみ 金属・陶器・ガラスごみ 資源1(紙布類[新聞、雑誌、段ボール、厚紙製の箱、包装紙、牛乳パック、古布]、びん・かん・ペットボトル、プラスチック)〕 拠点回収:小型家電 蛍光灯 乾電池 廃食油
家庭ごみの戸別収集 一部実施(高齢者、障害者等の世帯で、自力でごみを集積所まで出すことが困難であり、身近な人の協力を得ることができない世帯に訪問収集を実施)
粗大ごみ収集 あり
備考
有料。事前申込制。
生ごみ処理機助成金制度 あり
上限金額
20000円
上限比率
50.0%
暮らしデータ提供元:生活ガイド.com
※行政機関により公表していない地域及びデータがございます。東京23区以外の政令指定都市は、市全体のデータとして表示しています。
※提供データには細心の注意を払っておりますが、調査後に変更がある場合があります。 最新の情報につきましては各市区役所までお問い合わせいただくか、自治体HPなどをご確認ください。
OCN×ドコモ光新規お申込みで合計最大137,280円相当おトク!特典の内訳・適用条件など詳細はこちら

豊島区内の各駅の住みやすさ

他のエリアから探す

近辺の市区から探す

板橋区北区新宿区文京区千代田区中野区台東区練馬区荒川区渋谷区杉並区墨田区中央区港区川口市目黒区足立区世田谷区戸田市江東区蕨市和光市葛飾区

東京メトロ副都心線の駅から探す

和光市地下鉄成増地下鉄赤塚平和台氷川台小竹向原千川要町池袋雑司が谷西早稲田東新宿新宿三丁目北参道明治神宮前渋谷

都電荒川線の駅から探す

三ノ輪橋荒川一中前荒川区役所前荒川二丁目荒川七丁目町屋駅前町屋二丁目東尾久三丁目熊野前宮ノ前小台荒川遊園地前荒川車庫前梶原栄町王子駅前飛鳥山滝野川一丁目西ヶ原四丁目新庚申塚庚申塚巣鴨新田大塚駅前向原東池袋四丁目都電雑司ヶ谷鬼子母神前学習院下面影橋早稲田

都道府県から探す

北海道青森県秋田県岩手県宮城県山形県福島県東京都神奈川県埼玉県千葉県茨城県栃木県群馬県長野県山梨県新潟県石川県富山県福井県愛知県静岡県岐阜県三重県大阪府兵庫県京都府滋賀県奈良県和歌山県広島県岡山県山口県鳥取県島根県徳島県香川県愛媛県高知県福岡県佐賀県長崎県熊本県大分県宮崎県鹿児島県沖縄県

主要都市から探す

札幌市仙台市横浜市川崎市相模原市さいたま市千葉市新潟市名古屋市静岡市浜松市大阪市堺市神戸市京都市広島市岡山市北九州市福岡市熊本市

住宅ローンの返済額一覧

物件価格 24800万円に対して、年率 で、頭金 の場合
↓ボーナス 35年間 30年間 25年間 20年間 15年間 10年間
0万円 630,792円/月 727,030円/月 861,847円/月 1,064,179円/月 1,401,538円/月 2,076,468円/月
5万円 621,706円/月 718,054円/月 852,981円/月 1,055,420円/月 1,392,887円/月 2,067,923円/月
10万円 612,621円/月 709,079円/月 844,114円/月 1,046,662円/月 1,384,235円/月 2,059,378円/月
15万円 603,535円/月 700,103円/月 835,247円/月 1,037,903円/月 1,375,584円/月 2,050,833円/月
20万円 594,450円/月 691,127円/月 826,380円/月 1,029,144円/月 1,366,932円/月 2,042,288円/月
25万円 585,365円/月 682,152円/月 817,514円/月 1,020,385円/月 1,358,281円/月 2,033,742円/月
30万円 576,279円/月 673,176円/月 808,647円/月 1,011,627円/月 1,349,630円/月 2,025,197円/月
支払い利息合計 21,954,410円~ 18,749,520円~ 15,569,800円~ 12,415,440円~ 9,286,350円~ 6,182,380円~
※元利均等返済方式で試算しています。 「円」の単位以下の端数金額は「切り捨て」として計算しております。
※金利は、固定金利として計算しております。
※上記の住宅ローン返済額一覧は、あくまで試算であり、将来の金利動向により、実際のご返済額とは異なります。
※ボーナス支払総額が総支払額の50%を超えている場合、上記の表では「ローン不可」となります。
※住宅ローン返済額一覧の数値は、住宅ローンのお申し込みやご融資をお約束するものではございません。
掲載情報の著作権は提供元企業等に帰属します。
Copyright:(C) 2025 LIFULL Co.,Ltd.
アプリで簡単 物件探し 大手不動産サイトの情報から一括検!プッシュ通知で物件を見逃さない
App Storeからダウンロード Google Playで手に入れよう QRコード