アプリで簡単 物件探し 通知 共有 アプリならではの機能を使ってみる
賃貸マンション

プレサンス高畑ルミア 高畑駅 1K 賃貸(賃貸マンション・アパート)

情報提供元
LIFULL HOME'S
プレサンス高畑ルミア
賃料 5.74万円  (管理費等:8210円)
礼金・敷金 1ヶ月 / なし 保証金/敷引・償却 なし / -
交通
所在地 愛知県名古屋市中川区高畑1丁目周辺地図
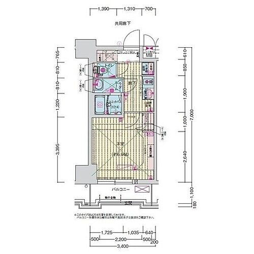
間取り 1K 専有面積 23.8m2
築年月 2026年2月 築年数 新築
おすすめポイント
見学から契約までご来店不要でご対応可能です♪駐車場の空き状況は別途お問い合わせ下さい。
お問い合わせ先
株式会社エムホームエステート スタイルエステート中央支店
お問い合わせ先
株式会社エムホームエステート スタイルエステート中央支店

詳細情報

賃料 5.74万円 管理費等 8210円
敷金 なし 礼金 1ヶ月
保証金 なし 敷引・償却 -
更新料 - 契約期間 1年
カード決済 初期費用カード決済可
所在地 愛知県名古屋市中川区高畑1丁目周辺地図
交通
  • 名古屋市東山線 高畑駅 徒歩3分乗換案内
  • 名古屋臨海高速鉄道 荒子駅 徒歩9分乗換案内
建物名 プレサンス高畑ルミア 
間取り 1K 築年月(築年数) 2026年2月 新築
専有面積 23.8㎡ 所在階/階数 2階/13階建
建物構造 RC  方位 東 
現況   駐車場 近有 11,000円 物件からの距離200m
入居可能時期 2026年2月下旬 住宅保険 不要
情報提供元 LIFULL HOME'S[1436770039637] 情報公開日
情報更新日 次回更新予定日 2025年12月11日

設備など

2階以上 最上階 - 角部屋 -
駐車場(近隣含) エアコン付き バス・トイレ別
室内洗濯機置き場 追焚機能 - オートロック付き
モニタ付インターホン フローリング - バルコニー
ガスコンロ可 浴室乾燥機 24時間セキュリティ -
宅配ボックス ペット相談可 - 二人入居可 -
設備 都市ガス・本下水・バス・トイレ別・シャワー・ガスコンロ可・コンロ2口以上・システムキッチン・給湯・シャンプードレッサ・エアコン・室内洗濯機置き場・BS端子・オートロック・エレベーター・バルコニー・宅配BOX・光ファイバー(ブロードバンド)・モニタ付インターホン・温水洗浄便座・浴室乾燥機・洗面所独立・防犯カメラ・インターネット無料・クローゼット・シューズボックス 
リフォーム履歴 -
リノベーション履歴 -
備考 オートロック付なので女性、はじめての一人暮らしでも安心してご入居頂けます☆インターネット使用料不要なので面倒な手続き不要です◎LINE・メール・お電話でやり取り可能!名古屋でのお部屋探しはスタイルエステート西支店にお任せ下さい☆現地・最寄り駅でのお待ち合わせも可能です☆名古屋市内地域問わず、お客様に最適のお部屋をご紹介いたします☆ 【設備・特記事項備考】専用バス・専用トイレ/カギ調整代 22000円/プレサポ24 990円/賃貸戸数:57戸/管理人勤務形態:巡回 
特記事項 保証人不要/代行 ・デザイナーズ物件・初期費用カード決済可

省エネ性能

エネルギー消費性能 -
断熱性能 -
目安光熱費 -

愛知県名古屋市中川区高畑1丁目 周辺地図情報

地図
※地図上に表示される物件の位置は付近住所に所在することを表すものであり、実際の物件所在地とは異なる場合がございます。
   正確な物件所在地は、取扱い不動産会社にお問い合わせください。
お問い合わせ先
株式会社エムホームエステート スタイルエステート中央支店

不動産会社情報

お問い合わせ先 商号:株式会社エムホームエステート スタイルエステート中央支店
免許番号:愛知県知事(03)第022094号
所在地:愛知県名古屋市中区栄3丁目32-33 トクサンビル1F
TEL:052-262-2200
取引態様:仲介
管理コード:39637
所属協会など:東海不動産公正取引協議会、(公社)愛知県宅地建物取引業協会
共有する
QRコード

お電話でのお問い合わせ

電話をかける(携帯・PHS可)
お問い合わせダイヤル
通話無料0037-634-04224
営業時間 10:00~19:00 (定休日:年末年始)
音声案内に従って数字を入力
お問い合わせ番号
95245-2975
不動産会社につながります
不動産会社のスタッフと
直接電話で話せます。
※不動産会社がお電話に出られなかった場合、株式会社LIFULLは電話会社が提供するサービスを介してお客様の発信者番号を受領後、折り返し専用の電話番号を発番してお問合せの不動産会社に通知します(お客様の発信者番号がお問合せの不動産会社に通知されることはございません)
※光IP電話、及びIP電話からはご利用になれません
※0037で始まる電話番号に携帯電話からお問合せいただいた方には、ショートメッセージ(SMS)によるお問合せ完了通知をお届けする場合があります
お問い合わせ先
株式会社エムホームエステート スタイルエステート中央支店

    名古屋市中川区の暮らしデータ

    人口などの統計情報

    世帯数 1119847世帯
    人口総数 2297745人
    転入者数 168667人
    転入率(人口1000人当たり)
    73.41人
    転出者数 154544人
    転出率(人口1000人当たり)
    67.26人
    土地平均価格
    住宅地
    223115円/m2
    商業地
    1106619円/m2

    結婚・育児の助成金

    子育て関連の独自の取り組み (1)なごや子育てアプリ「NAGOMii(なごみー)」による子育て支援情報の提供。(2)子育て家庭優待カード「ぴよか」の交付。(3)子どもを出産、育児する家庭に5万ポイント(5万円相当)分のカタログギフトを進呈する、ナゴヤわくわくプレゼント事業の実施。
    出産祝い あり
    公立保育所数 84所(うち0歳児保育を実施している保育所:84所)
    私立保育所数 367所(うち0歳児保育を実施している保育所:365所)
    保育所入所待機児童数 0人
    認定こども園数 107園 預かり保育実施園数 公立:20園 私立:-
    学校給食 【小学校】完全給食【中学校】家庭弁当等との選択制/デリバリー形式[運搬:食缶等、内容:完全給食(献立選択制)]
    公立中学校の学校選択制 未実施
    子ども・学生等医療費助成<通院>対象年齢 18歳3月末まで 子ども・学生等医療費助成<入院>対象年齢 18歳3月末まで

    名古屋市中川区の治安・ごみ収集情報

    公共料金・インフラ

    ガス料金(22m3使用した場合の月額) 東邦瓦斯株式会社5307円
    水道料金(口径20mmで20m3の月額) 名古屋市2915円
    下水道料金(20m3を使用した場合の月額) 名古屋市1804円
    下水道普及率 99.4%

    安心・安全

    建物火災出火件数 355件
    人口10000人当たり
    1.52件
    刑法犯認知件数 19857件
    人口1000人当たり
    8.51件
    ハザード・防災マップ あり

    医療

    一般病院総数 110ヶ所
    一般診療所総数 2272ヶ所
    小児科医師数 770人
    小児人口10000人当たり
    28.40人
    産婦人科医師数 319人
    15~49歳女性人口1万人当たり
    6.72人
    介護保険料基準額(月額) 6951円

    ごみ

    家庭ごみ収集(可燃ごみ) 無料
    備考
    指定ごみ袋制だが、袋代にごみ収集・処理料金等を含まず。
    家庭ごみの分別方式 5分別9種〔可燃ごみ 不燃ごみ 発火性危険物 電池類 資源(プラスチック資源、紙製容器包装・雑がみ、ペットボトル、空きびん、空き缶)〕 拠点回収:資源(ペットボトル 紙パック 食用油 小型家電 充電式家電 蛍光管・水銀体温計・水銀温度計)
    家庭ごみの戸別収集 実施(可燃ごみ、不燃ごみ、発火性危険物、電池類、プラスチック資源のみ。紙製容器包装・雑がみ、ペットボトル、空きびん、空き缶はステーション収集)
    粗大ごみ収集 あり
    備考
    有料。各戸収集。事前申込制。月1回収集で手数料(品目ごとに250円、500円、1,000円、1,500円)が必要。粗大ごみ受付センターにインターネットもしくは電話にて申し込み。
    生ごみ処理機助成金制度 なし
    上限金額
    -
    上限比率
    -
    暮らしデータ提供元:生活ガイド.com
    ※行政機関により公表していない地域及びデータがございます。東京23区以外の政令指定都市は、市全体のデータとして表示しています。
    ※提供データには細心の注意を払っておりますが、調査後に変更がある場合があります。 最新の情報につきましては各市区役所までお問い合わせいただくか、自治体HPなどをご確認ください。
    OCN×ドコモ光新規お申込みで合計最大137,280円相当おトク!特典の内訳・適用条件など詳細はこちら

    名古屋市中川区内の各駅の住みやすさ

    他のエリアから探す

    名古屋市中川区の詳細地域から賃貸物件を探す

    愛知町荒江町荒子荒子町荒中町一色新町石場町一柳通岩塚町牛立町打出打出町打中馬手町運河通江松笈瀬町応仁町大塩町大畑町大山町押元町尾頭橋尾頭橋通開平町烏森町かの里上高畑上流町上脇町川前町北江町清船町吉良町草平町供米田小碓通九重町小城町小塚町小本小本町小本本町五女子五女子町五月通五月南通山王四女子町篠原橋通島井町下之一色町松年町昭明町昭和橋通神郷町十一番町十番町助光澄池町千音寺宗円町外新町太平通高杉町高畑丹後町大当郎中京南通中郷月島町辻畑町蔦元町土野町露橋露橋町戸田戸田西戸田明正戸田ゆたか富川町富田町大字江松富田町大字千音寺富田町大字長須賀富田町大字春田富田町大字榎津富永富船町中島新町中須町中野新町中野本町中花町長須賀長良町新家西中島西日置西日置町西伏屋二女子町野田乗越町葉池町畑田町幡野町八剱町八田町八田本町服部花池町花塚町春田東起町東かの里町東中島町東春田七反田町平戸町広川町広住町広田町福川町福住町福船町伏屋豊成町法蔵町細米町法華法華西町本前田町前田西町前並町松重町松ノ木町松葉町的場町丸米町万町万場水里三ツ池町三ツ屋町南八熊町南脇町宮脇町明徳町元中野町百船町八神町八熊八熊町八熊通八家町柳川町柳島町柳田町柳堀町柳瀬町柳森町八幡本通横井横堀町横前町吉津好本町若山町

    近辺の市区から探す

    名古屋市千種区名古屋市東区名古屋市北区名古屋市西区名古屋市中村区名古屋市中区名古屋市昭和区名古屋市瑞穂区名古屋市熱田区名古屋市港区名古屋市南区名古屋市緑区名古屋市天白区津島市愛西市清須市北名古屋市弥富市あま市海部郡大治町海部郡蟹江町海部郡飛島村

    周辺の駅から探す

    名古屋市東山線
    高畑八田岩塚中村公園中村日赤
    名古屋臨海高速鉄道
    名古屋ささしまライブ小本荒子南荒子中島港北荒子川公園

    愛知県名古屋市中川区で他のジャンルから探す


    掲載情報の著作権は提供元企業等に帰属します。
    Copyright:(C) 2025 LIFULL Co.,Ltd.
    アプリで簡単 物件探し 大手不動産サイトの情報から一括検!プッシュ通知で物件を見逃さない
    App Storeからダウンロード Google Playで手に入れよう QRコード