賃貸マンション
アルファアパル菊水 菊水駅 1K 賃貸(賃貸マンション・アパート)
 
  
    
      | 賃料 | 3.6万円  (管理費等:5000円) | 
    
      | 礼金・敷金 | なし / なし | 保証金/敷引・償却 | - / - | 
    
      | 交通 |  | 
    
      | 所在地 | 北海道札幌市白石区菊水三条1丁目周辺地図 | 
    
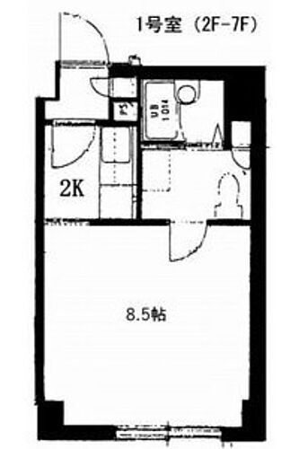
      | 間取り | 1K | 専有面積 | 23.25m2 | 
    
      | 築年月 | 1989年9月 | 築年数 | 築36年2ヶ月 | 
  
 
 
- おすすめポイント
- ★エキチカなんと1分♪高速ギガWi-Fi無料♪オートロック★
    
    
  
    - お問い合わせ先
- ピタットハウス学園前店 コア電子株式会社
 
  
  
  
    - お問い合わせ先
- ピタットハウス学園前店 コア電子株式会社
 
| 賃料 | 3.6万円 | 管理費等 | 5000円 | 
| 敷金 | なし | 礼金 | なし | 
| 保証金 | - | 敷引・償却 | - | 
| 更新料 | - | 契約期間 | 2年 | 
| カード決済 | 初期費用カード決済可 | 
| 所在地 | 北海道札幌市白石区菊水三条1丁目周辺地図 | 
| 交通 | 
  札幌市東西線 菊水駅 徒歩1分乗換案内札幌市東西線 バスセンター前駅 徒歩13分乗換案内 | 
| 建物名 | アルファアパル菊水 | 
| 間取り | 1K | 築年月(築年数) | 1989年9月(築36年2ヶ月) | 
| 専有面積 | 23.25㎡ | 所在階/階数 | 7階/9階建 | 
| 建物構造 | RC | 方位 |  | 
| 現況 | 空 | 駐車場 | 有 13,200円 | 
| 入居可能時期 | 即時 | 住宅保険 | 要 | 
| 情報提供元 | LIFULL HOME'S[1516820018974] | 情報公開日 |  | 
| 情報更新日 |  | 次回更新予定日 | 2025年11月7日 | 
設備など
| 2階以上 | ○ | 最上階 | - | 角部屋 | ○ | 
| 駐車場(近隣含) | ○ | エアコン付き | - | バス・トイレ別 | ○ | 
| 室内洗濯機置き場 | ○ | 追焚機能 | - | オートロック付き | ○ | 
| モニタ付インターホン | - | フローリング | ○ | バルコニー | ○ | 
| ガスコンロ可 | - | 浴室乾燥機 | - | 24時間セキュリティ | - | 
| 宅配ボックス | - | ペット相談可 | - | 二人入居可 | - | 
| 設備 | 上水道・都市ガス・本下水・バス・トイレ別・シャワー・給湯・室内洗濯機置き場・オートロック・エレベーター・バルコニー・フローリング・駐輪場・光ファイバー(ブロードバンド)・防犯カメラ・インターネット無料・シューズボックス・照明器具・暖房 | 
| リフォーム履歴 | - | 
| リノベーション履歴 | - | 
| 備考 | 初期費用、審査等のお悩みも当店が解決いたします!フリーレントの交渉や家賃スライドも積極的に交渉を行いますのでお気軽にご相談くださいませ! 【設備・特記事項備考】専用バス/町内会費 200円/水道料 2750円/24H管理料 1100円/賃貸戸数:42戸/保証会社の利用:加入要/保証会社名:保証会社利用時/保証会社費用:賃料等の0.3~1ヶ月分(最低保証料2万円)継続保証料1万円/年/管理人勤務形態:巡回 | 
| 特記事項 | 見学予約可・角部屋・デザイナーズ物件・制震構造・初期費用カード決済可 | 
北海道札幌市白石区菊水三条1丁目 周辺地図情報
※地図上に表示される物件の位置は付近住所に所在することを表すものであり、実際の物件所在地とは異なる場合がございます。
   正確な物件所在地は、取扱い不動産会社にお問い合わせください。
 
 
  
  
  
    - お問い合わせ先
- ピタットハウス学園前店 コア電子株式会社
 
不動産会社情報
| お問い合わせ先 | 商号:ピタットハウス学園前店 コア電子株式会社 免許番号:北海道知事石狩(04)第007140号
 所在地:北海道札幌市豊平区豊平七条7丁目3-27
 TEL:011-374-5161
 取引態様:仲介
 管理コード:18974
 所属協会など:(一社)北海道不動産公正取引協議会、(公社)北海道宅地建物取引業協会
 | 共有する |  | 
  
  
  
    - お問い合わせ先
- ピタットハウス学園前店 コア電子株式会社
 
  
  
    人口などの統計情報
    
      
        
          | 世帯数 | 967372世帯 | 
        
          | 人口総数 | 1956928人 | 
        
          | 転入者数 | 121035人 
 
              転入率(人口1000人当たり)61.85人 | 
        
          | 転出者数 | 109861人 
 
              転出率(人口1000人当たり)56.14人 | 
        
          | 土地平均価格 | 
              住宅地107466円/m2商業地594868円/m2 | 
      
    
   
    
    結婚・育児の助成金
    
      
        
          | 子育て関連の独自の取り組み | (1)交通事故・労働災害およびその他不慮の災害により、父、または母等を失った(重度障がいとなった場合を含む)義務教育終了前の遺児を扶養する方に遺児1人につき月額4,000円を支給するとともに、手当の対象となる遺児が小・中学校および高等学校等に入学する際または中学校卒業後、就職する際に遺児1人につき2万円を支給。(2)認可保育所等における第2子以降の保育料について、世帯年収や兄弟姉妹の年齢差に関わらず無償化。 | 
        
          | 出産祝い | なし | 
        
          | 公立保育所数 | 20所(うち0歳児保育を実施している保育所:14所) | 
        
          | 私立保育所数 | 182所(うち0歳児保育を実施している保育所:182所) | 
        
          | 保育所入所待機児童数 | 0人 | 
        
          | 認定こども園数 | 238園 | 預かり保育実施園数 | 公立:9園 私立:49園 | 
        
          | 学校給食 | 【小学校】完全給食【中学校】完全給食 | 
        
          | 公立中学校の学校選択制 | 一部実施(小規模特認校) | 
        
          | 子ども・学生等医療費助成<通院>対象年齢 | 中学校卒業まで | 子ども・学生等医療費助成<入院>対象年齢 | 中学校卒業まで | 
      
    
   
    
    札幌市白石区の治安・ごみ収集情報
    公共料金・インフラ
    
      
        
          | ガス料金(22m3使用した場合の月額) | 北海道瓦斯株式会社5118円 | 
        
          | 水道料金(口径20mmで20m3の月額) | 札幌市3652円 | 
        
          | 下水道料金(20m3を使用した場合の月額) | 札幌市1397円 | 
        
          | 下水道普及率 | 99.9% | 
      
    
    安心・安全
    
      
        
          | 建物火災出火件数 | 286件 
              人口10000人当たり1.45件 | 
        
          | 刑法犯認知件数 | 11263件 
              人口1000人当たり5.71件 | 
        
          | ハザード・防災マップ | あり | 
      
    
    医療
    
      
        
          | 一般病院総数 | 172ヶ所 | 
        
          | 一般診療所総数 | 1433ヶ所 | 
        
          | 小児科医師数 | 371人 
              小児人口10000人当たり17.99人 | 
        
          | 産婦人科医師数 | 203人 
              15~49歳女性人口1万人当たり5.12人 | 
        
          | 介護保険料基準額(月額) | 5773円 | 
      
    
    ごみ
    
      
        
          | 家庭ごみ収集(可燃ごみ) | 有料 | 
        
          | 家庭ごみの分別方式 | 9分別〔燃やせるごみ 燃やせないごみ スプレー缶・カセットボンベ 筒型乾電池 加熱式たばこ・電子たばこ・ライター 容器包装プラスチック びん・缶・ペットボトル 枝・葉・草 雑がみ〕 拠点回収:新聞 雑誌 ダンボール 紙パック 雑がみ びん・缶・ペットボトル 一升びん・ビールびん 容器包装プラスチック 古着 古布 毛布 小物金属類 小型家電 蛍光管 水銀体温計・水銀血圧計・水銀温度計 筒型乾電池 小型充電式電池 廃食油 生ごみ堆肥 枝・葉・草 使用済みインクカートリッジ スプレー缶・カセットボンベ ライター | 
        
          | 家庭ごみの戸別収集 | 一部実施(【さわやか収集】一定の要件に該当する要介護者や障がい者に対し、玄関先からのごみの収集や大型ごみの家屋内からの運び出しの支援を実施) | 
        
          | 粗大ごみ収集 | あり | 
        
          | 生ごみ処理機助成金制度 | あり 
              上限金額10000円上限比率50.0% | 
      
    
   
  
      
    
      ※行政機関により公表していない地域及びデータがございます。東京23区以外の政令指定都市は、市全体のデータとして表示しています。
      
※提供データには細心の注意を払っておりますが、調査後に変更がある場合があります。 最新の情報につきましては各市区役所までお問い合わせいただくか、自治体HPなどをご確認ください。
    
      札幌市白石区の暮らしデータをもっと見る