アプリで簡単 物件探し 通知 共有 アプリならではの機能を使ってみる
賃貸マンション

Mys Casetta Kokura -ミースカセッタ小倉- 小倉駅 2LDK 賃貸(賃貸マンション・アパート)

情報提供元
SUUMO
Mys Casetta Kokura -ミースカセッタ小倉- 外観イメージパース画像
賃料 10.9万円  (管理費等:7000円)
礼金・敷金 16.35万円 / なし 保証金/敷引・償却 なし / -
交通
所在地 福岡県北九州市小倉北区浅野2周辺地図
間取り 2LDK 専有面積 55.57m2
築年月 2026年1月 築年数 新築
おすすめポイント
お問い合わせは不動産のデパートひろたまで! 小倉エリア中心部に立地の賃貸マンションです!室内設備、セキュリティともに充実しており快適生活を送れます。各方面へのアクセスに優れており通勤や通学にも便利♪荷物の受け取りに便利な宅配ボックスも設置済!
お問い合わせ先
(株)不動産のデパートひろた守恒店
お問い合わせ先
(株)不動産のデパートひろた守恒店

詳細情報

賃料 10.9万円 管理費等 7000円
敷金 なし 礼金 16.35万円
保証金 なし 敷引・償却 -
更新料 - 契約期間
カード決済 初期費用カード決済可
所在地 福岡県北九州市小倉北区浅野2周辺地図
交通
  • JR鹿児島本線 小倉駅 徒歩6分乗換案内
  • JR鹿児島本線 西小倉駅 徒歩7分乗換案内
  • 北九州モノレール 平和通駅 徒歩8分乗換案内
建物名 Mys Casetta Kokura -ミースカセッタ小倉- 
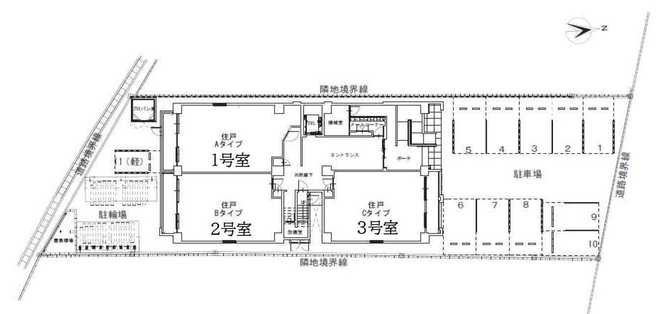
間取り 2LDK(洋5.3 洋4 LDK13.7) 築年月(築年数) 2026年1月 新築
専有面積 55.57㎡ 所在階/階数 1階/12階建
建物構造 RC  方位 南 
現況   駐車場 有 22,000円
入居可能時期 2026年1月下旬 住宅保険 あり
情報提供元 SUUMO[090H100463639708] 情報公開日
情報更新日 次回更新予定日 随時

設備など

2階以上 - 最上階 - 角部屋
駐車場(近隣含) エアコン付き バス・トイレ別
室内洗濯機置き場 追焚機能 オートロック付き
モニタ付インターホン フローリング バルコニー
ガスコンロ可 浴室乾燥機 24時間セキュリティ -
宅配ボックス ペット相談可 - 二人入居可
設備 冷房・暖房・エアコン・オートロック・バルコニー・バス・トイレ別・トイレ・収納スペース・洗濯機置場・洗面所・エレベーター・BS端子・追焚機能・フローリング・浴室乾燥機・ウォークインクローゼット・ガスコンロ可・シャンプードレッサ・温水洗浄便座・システムキッチン・カウンターキッチン・モニタ付インターホン・宅配BOX・駐輪場・風呂・対面K・クローゼット・CS・衣類乾燥機・プロパンガス・浴トイレ別・防犯カメラ・洗面所独立・コンロ2口以上・シューズボックス・インターネット無料・インターネット対応・室内洗濯機置き場 
リフォーム履歴 -
リノベーション履歴 -
備考 損保要/火災保険料:26500円/仲介手数料11.99万円/二人入居可/事務所利用不可/JR小倉駅まで徒歩3分の立地!周辺にあらゆる施設が揃っており何をするにしても便利な立地です。コンビニも至近で生活しやすいですよ。/バストイレ別/バルコニー/エアコン/ガスコンロ対応/クロゼット/シャワー付洗面台/TVインターホン/浴室乾燥機/オートロック/室内洗濯置/シューズボックス/システムキッチン/南向き/追焚機能浴室/角住戸/温水洗浄便座/脱衣所/エレベーター/洗面所独立/駐輪場/宅配ボックス/敷金不要/3口以上コンロ/対面式キッチン/防犯カメラ/グリル付/全居室洋室/ウォークインクロゼット/保証人不要/全居室フローリング/2沿線利用可/CS/駅まで平坦/ネット使用料不要/ダブルロックキー/保証金不要/築2年以内/24時間換気システム/3駅以上利用可/駅前/駅徒歩10分以内/敷地内ごみ置き場/LDK12畳以上/プロパンガス/三面鏡付洗面化粧台/BS/IT重説 対応物件/初期費用カード決済可/小倉中央小学校(小学校)まで1400m/菊陵中学校(中学校)まで1700m/ゆめマート小倉店(スーパー)まで820m/セブンイレブン小倉浅野2丁目店(コンビニ)まで40m/財団法人平成紫川会小倉記念病院(病院)まで650m/北九州ソレイユ保育園分園(幼稚園・保育園)まで540m/賃貸戸数:47戸 
特記事項 二人入居可・角部屋・保証人不要/代行 ・初期費用カード決済可

省エネ性能

エネルギー消費性能 -
断熱性能 -
目安光熱費 -

福岡県北九州市小倉北区浅野2 周辺地図情報

地図
※地図上に表示される物件の位置は付近住所に所在することを表すものであり、実際の物件所在地とは異なる場合がございます。
   正確な物件所在地は、取扱い不動産会社にお問い合わせください。
お問い合わせ先
(株)不動産のデパートひろた守恒店

不動産会社情報

お問い合わせ先 商号:(株)不動産のデパートひろた守恒店
免許番号:国土交通大臣(5)第6432号
所在地:福岡県北九州市小倉南区守恒本町2-5-17
TEL:093-965-0001
取引態様:仲介
管理コード:25720
所属協会など:(一社)九州不動産公正取引協議会加盟、(公社)福岡県宅地建物取引業協会会員
共有する
QRコード
お問い合わせ先
(株)不動産のデパートひろた守恒店

    北九州市小倉北区の暮らしデータ

    人口などの統計情報

    世帯数 435364世帯
    人口総数 921241人
    転入者数 42666人
    転入率(人口1000人当たり)
    46.31人
    転出者数 42812人
    転出率(人口1000人当たり)
    46.47人
    土地平均価格
    住宅地
    61011円/m2
    商業地
    191670円/m2

    結婚・育児の助成金

    子育て関連の独自の取り組み (1)大規模な屋内プレイパーク「子育てふれあい交流プラザ」「子どもの館」の運営。(2)子どもの遊び場&親同士の交流の場「親子ふれあいルーム」の全区設置。(3)授乳やオムツ替えのできる施設「赤ちゃんの駅」の官民協働実施(全国初)。(4)毎月第2日曜日に市内の登録店舗で様々な特典を受けられる「わらべの日」の実施。(5)小学校3~4年生、中学校1~3年生を対象に、放課後等を活用した学習機会を提供する「ひまわり教室」の実施。
    出産祝い あり
    公立保育所数 17所(うち0歳児保育を実施している保育所:17所)
    私立保育所数 106所(うち0歳児保育を実施している保育所:106所)
    保育所入所待機児童数 0人
    認定こども園数 65園 預かり保育実施園数 公立:0園 私立:70園
    学校給食 【小学校】完全給食【中学校】完全給食
    公立中学校の学校選択制 未実施
    子ども・学生等医療費助成<通院>対象年齢 18歳3月末まで 子ども・学生等医療費助成<入院>対象年齢 18歳3月末まで

    北九州市小倉北区の治安・ごみ収集情報

    公共料金・インフラ

    ガス料金(22m3使用した場合の月額) 西部瓦斯株式会社(福岡・北九州)6239円
    直方ガス株式会社6503円
    水道料金(口径20mmで20m3の月額) 北九州市2442円
    下水道料金(20m3を使用した場合の月額) 北九州市2248円
    下水道普及率 99.9%

    安心・安全

    建物火災出火件数 115件
    人口10000人当たり
    1.22件
    刑法犯認知件数 6044件
    人口1000人当たり
    6.44件
    ハザード・防災マップ あり

    医療

    一般病院総数 76ヶ所
    一般診療所総数 941ヶ所
    小児科医師数 224人
    小児人口10000人当たり
    20.85人
    産婦人科医師数 122人
    15~49歳女性人口1万人当たり
    7.25人
    介護保険料基準額(月額) 6590円

    ごみ

    家庭ごみ収集(可燃ごみ) 有料
    備考
    指定ごみ袋有料。
    家庭ごみの分別方式 4分別〔家庭ごみ かん・びん ペットボトル プラスチック〕 拠点回収:トレイ 紙パック 蛍光管 水銀体温計など 小物金属 小型電子機器 電池類(充電式電池等含む) 古紙 古着 使用済み食用油 インクカートリッジ
    家庭ごみの戸別収集 一部実施(【ふれあい収集】ごみステーションに家庭ごみを出すことが困難な世帯を対象に、ご自宅の玄関先でのごみ収集を実施[利用条件あり])
    粗大ごみ収集 あり
    備考
    有料。事前申込制(電話、またはインターネット)。納付券貼付。またはキャッシュレス決済(PayPay・クレジットカード)。※キャッシュレス決済はインターネット受付のみ。
    生ごみ処理機助成金制度 なし
    上限金額
    -
    上限比率
    -
    暮らしデータ提供元:生活ガイド.com
    ※行政機関により公表していない地域及びデータがございます。東京23区以外の政令指定都市は、市全体のデータとして表示しています。
    ※提供データには細心の注意を払っておりますが、調査後に変更がある場合があります。 最新の情報につきましては各市区役所までお問い合わせいただくか、自治体HPなどをご確認ください。
    OCN×ドコモ光新規お申込みで合計最大137,280円相当おトク!特典の内訳・適用条件など詳細はこちら

    北九州市小倉北区内の各駅の住みやすさ

    他のエリアから探す

    北九州市小倉北区の詳細地域から賃貸物件を探す

    青葉赤坂浅野朝日ケ丘足原愛宕足立泉台板櫃町井堀今町鋳物師町魚町宇佐町江南町大田町大手町大畠鍛冶町片野片野新町金田上到津上富野香春口神岳貴船町木町京町清水霧ケ丘金鶏町熊谷熊本黒住町黒原黄金小文字紺屋町菜園場堺町三郎丸皿山町山門町重住篠崎下到津下富野昭和町白銀白萩町神幸町新高田寿山町城野団地末広須賀町砂津船場町高尾高浜高坊高峰町竪林町竪町田町大門常盤町中井中井口中井浜中島中津口長浜町萩崎町原町馬借日明東篠崎東城野町平松町古船場町弁天町真鶴緑ケ丘南丘三萩野妙見町室町明和町吉野町若富士町

    近辺の市区から探す

    下関市北九州市門司区北九州市若松区北九州市戸畑区北九州市小倉南区北九州市八幡東区北九州市八幡西区

    周辺の駅から探す

    鹿児島本線
    門司港小森江門司小倉西小倉九州工大前戸畑枝光
    北九州高速鉄道
    小倉平和通旦過香春口三萩野片野城野

    福岡県北九州市小倉北区で他のジャンルから探す


    掲載情報の著作権は提供元企業等に帰属します。
    Copyright:(C) 2025 Recruit Co., Ltd.
    アプリで簡単 物件探し 大手不動産サイトの情報から一括検!プッシュ通知で物件を見逃さない
    App Storeからダウンロード Google Playで手に入れよう QRコード