アプリで簡単 物件探し 通知 共有 アプリならではの機能を使ってみる
賃貸マンション

ラシュレウエスト六甲 摩耶駅 2DK 賃貸(賃貸マンション・アパート)

情報提供元
SUUMO
ラシュレウエスト六甲
賃料 9.6万円  (管理費等:8000円)
礼金・敷金 18万円 / なし 保証金/敷引・償却 なし / -
交通
所在地 兵庫県神戸市灘区大内通3周辺地図
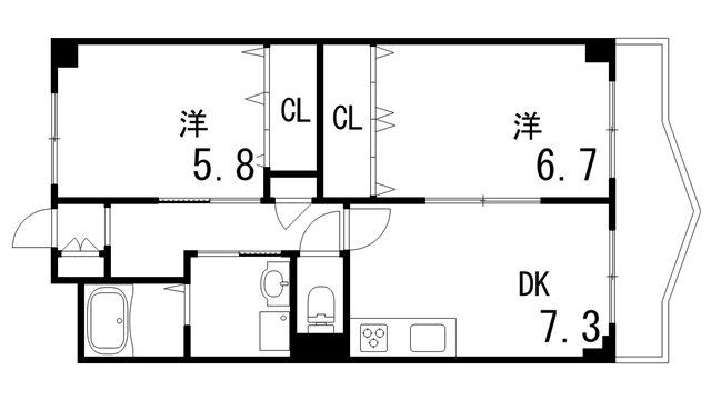
間取り 2DK 専有面積 49.68m2
築年月 2001年2月 築年数 築24年11ヶ月
おすすめポイント
この物件はお風呂に追い焚き機能が付いています 洗面所が独立しているので、利便性の高い環境だといえます。セキュリティ面は、オートロック・TVインターホンなどを備え付けているので安心して暮らせます。閑静な住宅地にある物件です。
お問い合わせ先
KURAS岡本店(株)StarLifes
お問い合わせ先
KURAS岡本店(株)StarLifes

詳細情報

賃料 9.6万円 管理費等 8000円
敷金 なし 礼金 18万円
保証金 なし 敷引・償却 -
更新料 - 契約期間
カード決済 初期費用カード決済可
所在地 兵庫県神戸市灘区大内通3周辺地図
交通
建物名 ラシュレウエスト六甲 
間取り 2DK(洋6.7 洋5.8 DK7.3) 築年月(築年数) 2001年2月(築24年11ヶ月)
専有面積 49.68㎡ 所在階/階数 4階/6階建
建物構造 RC  方位 南 
現況   駐車場 有 16,500円
入居可能時期 2025年12月下旬 住宅保険 あり 2年 20000円
情報提供元 SUUMO[060H100471836851] 情報公開日
情報更新日 次回更新予定日 随時

設備など

2階以上 最上階 - 角部屋 -
駐車場(近隣含) エアコン付き - バス・トイレ別
室内洗濯機置き場 追焚機能 オートロック付き
モニタ付インターホン フローリング バルコニー
ガスコンロ可 浴室乾燥機 - 24時間セキュリティ -
宅配ボックス ペット相談可 - 二人入居可
設備 オートロック・バルコニー・バス・トイレ別・トイレ・収納スペース・洗濯機置場・洗面所・エレベーター・CATV・追焚機能・フローリング・ガスコンロ可・温水洗浄便座・システムキッチン・モニタ付インターホン・宅配BOX・駐輪場・風呂・クローゼット・都市ガス・浴トイレ別・洗面所独立・コンロ2口以上・シューズボックス・インターネット無料・インターネット対応・室内洗濯機置き場 
リフォーム履歴 -
リノベーション履歴 -
備考 鍵交換代1.98万円/更新料 33000円/保証会社利用必:初回保証料:10 000円 更新無/普通借家02年0ヶ月/二人入居可/子供可/バストイレ別/バルコニー/ガスコンロ対応/クロゼット/フローリング/TVインターホン/オートロック/室内洗濯置/陽当り良好/シューズボックス/システムキッチン/南向き/追焚機能浴室/温水洗浄便座/脱衣所/エレベーター/洗面所独立/駐輪場/宅配ボックス/押入/CATV/閑静な住宅地/3口以上コンロ/全居室洋室/二人入居相談/全居室フローリング/2沿線利用可/ネット使用料不要/平坦地/2駅利用可/3駅以上利用可/3沿線以上利用可/駅徒歩5分以内/駅徒歩10分以内/都市ガス/保証会社利用可/IT重説 対応物件/初期費用カード決済可/琵琶COCORO保育園まや分園(幼稚園・保育園)まで544m/まるふくらーめん 水道筋店(飲食店)まで225m/パティスリー・ミュウミュウ(飲食店)まで188m/セブンイレブン 神戸都通5丁目店(コンビニ)まで916m/岩屋公園(公園)まで1121m/金沢病院(病院)まで461m 
特記事項 二人入居可・日当り良好・閑静な住宅街・初期費用カード決済可

省エネ性能

エネルギー消費性能 -
断熱性能 -
目安光熱費 -

兵庫県神戸市灘区大内通3 周辺地図情報

地図
※地図上に表示される物件の位置は付近住所に所在することを表すものであり、実際の物件所在地とは異なる場合がございます。
   正確な物件所在地は、取扱い不動産会社にお問い合わせください。
お問い合わせ先
KURAS岡本店(株)StarLifes

不動産会社情報

お問い合わせ先 商号:KURAS岡本店(株)StarLifes
免許番号:兵庫県知事(1)第12247号
所在地:兵庫県神戸市東灘区岡本1-4-27 第二オギタビル3階
TEL:078-891-9900
取引態様:仲介
管理コード:303688
所属協会など:(公社)近畿地区不動産公正取引協議会加盟、(公社)全日本不動産協会兵庫県本部会員
共有する
QRコード
お問い合わせ先
KURAS岡本店(株)StarLifes

    神戸市灘区の暮らしデータ

    人口などの統計情報

    世帯数 734091世帯
    人口総数 1500425人
    転入者数 75773人
    転入率(人口1000人当たり)
    50.50人
    転出者数 75052人
    転出率(人口1000人当たり)
    50.02人
    土地平均価格
    住宅地
    196681円/m2
    商業地
    844842円/m2

    結婚・育児の助成金

    子育て関連の独自の取り組み (1)妊産婦タクシー利用券。(2)産後ケア事業(32ヶ所)。(3)多胎児家庭支援の充実(多胎児家庭ホームヘルプサービス等)。(4)多様な保育施設で待機児童3年連続ゼロ(保育送迎ステーション等)。(5)病児保育(22ヶ所)。(6)夜間、休日に年中無休で診療する「神戸こども初期急病センター」。(7)天候関係なく無料で遊べる場所の充実(こべっこランド、こども本の森神戸、児童館120ヶ所等)。(8)学童保育希望者全員受入れ。(9)インフルエンザ予防接種費の一部助成(12歳まで)。(10)市民が市内高校に通う通学定期代無料化。(11)子連れ利用可能な無料コワーキングスペース(無料の一時保育付)。(12)大人同伴の小学生以下の市バス・地下鉄の料金が無料。(13)住み替え補助(「住みかえーる」で検索)。
    出産祝い あり
    公立保育所数 56所(うち0歳児保育を実施している保育所:45所)
    私立保育所数 70所(うち0歳児保育を実施している保育所:67所)
    保育所入所待機児童数 0人
    認定こども園数 191園 預かり保育実施園数 公立:28園 私立:37園
    学校給食 【小学校】完全給食【中学校】完全給食 デリバリー形式[運搬:ランチボックス、内容:完全給食]、但し家庭弁当等の持参も可(2024年9月から順次全員喫食制へ移行)
    公立中学校の学校選択制 一部実施(特定地域選択制)
    子ども・学生等医療費助成<通院>対象年齢 18歳3月末まで 子ども・学生等医療費助成<入院>対象年齢 18歳3月末まで

    神戸市灘区の治安・ごみ収集情報

    公共料金・インフラ

    ガス料金(22m3使用した場合の月額) 大阪瓦斯株式会社4544円
    伊丹産業株式会社7185円
    水道料金(口径20mmで20m3の月額) 神戸市2926円
    下水道料金(20m3を使用した場合の月額) 神戸市1760円
    下水道普及率 98.7%

    安心・安全

    建物火災出火件数 236件
    人口10000人当たり
    1.55件
    刑法犯認知件数 12014件
    人口1000人当たり
    7.88件
    ハザード・防災マップ あり

    医療

    一般病院総数 98ヶ所
    一般診療所総数 1643ヶ所
    小児科医師数 408人
    小児人口10000人当たり
    24.03人
    産婦人科医師数 190人
    15~49歳女性人口1万人当たり
    6.47人
    介護保険料基準額(月額) 6580円

    ごみ

    家庭ごみ収集(可燃ごみ) 無料
    備考
    指定ごみ袋は有料だが、袋代にごみ収集・処理料金等を含まず。
    家庭ごみの分別方式 5分別〔缶・びん・ペットボトル 容器包装プラスチック 燃えないごみ カセットボンベ・スプレー缶 燃えるごみ〕 拠点回収:使用済小型家電 カセットボンベ・スプレー缶 水銀体温計・温度計・血圧計 蛍光管 乾電池・充電式電池・ボタン電池
    家庭ごみの戸別収集 一部実施(【ひまわり収集】クリーンステーションまで、ごみを持ち出すことが困難な高齢者または障害者など一部の対象者に実施)
    粗大ごみ収集 あり
    備考
    有料。戸別収集。事前申込制。申込みの後、大型ごみシール券を購入し貼付けて出すか、キャッシュレス決済を行う。申込みから1~2週間程度で収集。
    生ごみ処理機助成金制度 なし
    上限金額
    -
    上限比率
    -
    暮らしデータ提供元:生活ガイド.com
    ※行政機関により公表していない地域及びデータがございます。東京23区以外の政令指定都市は、市全体のデータとして表示しています。
    ※提供データには細心の注意を払っておりますが、調査後に変更がある場合があります。 最新の情報につきましては各市区役所までお問い合わせいただくか、自治体HPなどをご確認ください。
    OCN×ドコモ光新規お申込みで合計最大137,280円相当おトク!特典の内訳・適用条件など詳細はこちら

    神戸市灘区内の各駅の住みやすさ

    他のエリアから探す

    神戸市灘区の詳細地域から賃貸物件を探す

    青谷町赤坂通赤松町天城通泉通一王山町岩屋岩屋北町岩屋中町岩屋南町上野上野通烏帽子町王子町大石大石北町大石東町大石南町大内通大土平町上河原通神ノ木通神前町岸地通記田町楠丘町国玉通倉石通高徳町五毛五毛通桜ケ丘町桜口町鹿ノ下通篠原篠原伯母野山町篠原北町篠原台篠原中町篠原本町篠原南町下河原通将軍通城内通城の下通新在家北町新在家南町水車新田水道筋千旦通曾和町高尾通高羽高羽町土山町鶴甲寺口町徳井町友田町中郷町中原通永手町長峰台灘北通灘南通畑原通浜田町原田原田通稗原町日尾町琵琶町備後町深田町福住通船寺通摩耶海岸通箕岡通都通宮山町森後町薬師通八幡町山田町大和町弓木町六甲台町六甲町

    近辺の市区から探す

    神戸市東灘区神戸市兵庫区神戸市長田区神戸市須磨区神戸市北区神戸市中央区西宮市芦屋市

    周辺の駅から探す

    東海道本線
    甲南山手摂津本山住吉六甲道摩耶三ノ宮元町神戸
    阪急電鉄神戸線
    芦屋川岡本御影六甲王子公園春日野道神戸三宮
    阪神電鉄本線
    御影石屋川新在家大石西灘岩屋春日野道神戸三宮元町

    兵庫県神戸市灘区で他のジャンルから探す


    掲載情報の著作権は提供元企業等に帰属します。
    Copyright:(C) 2025 Recruit Co., Ltd.
    アプリで簡単 物件探し 大手不動産サイトの情報から一括検!プッシュ通知で物件を見逃さない
    App Storeからダウンロード Google Playで手に入れよう QRコード