アプリで簡単 物件探し 通知 共有 アプリならではの機能を使ってみる
賃貸マンション

UR高槻・阿武山五番街 摂津富田駅 2DK 賃貸(賃貸マンション・アパート)

情報提供元
SUUMO
UR高槻・阿武山五番街
賃料 7.46万円  (管理費等:3250円)
礼金・敷金 なし / 2ヶ月 保証金/敷引・償却 なし / -
交通
所在地 大阪府高槻市奈佐原1周辺地図
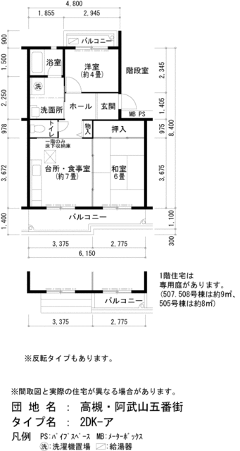
間取り 2DK 専有面積 46.59m2
築年月 1991年3月 築年数 築34年9ヶ月
おすすめポイント
UR賃貸住宅は、礼金・仲介手数料・更新料・保証人不要! バス圏ながら、通勤時には約5分ごとにでており、最寄の摂津富田駅から大阪まで約20分と大変便利です。上の池公園が近くにあり自然環境に恵まれています。また、全ての医療施設が周辺に充実していています。
お問い合わせ先
都市再生機構UR高槻営業センター
お問い合わせ先
都市再生機構UR高槻営業センター

詳細情報

賃料 7.46万円 管理費等 3250円
敷金 2ヶ月 礼金 なし
保証金 なし 敷引・償却 -
更新料 - 契約期間
カード決済 -
所在地 大阪府高槻市奈佐原1周辺地図
交通
  • JR東海道本線 摂津富田駅 バス13分/「公団阿武山」バス停 停歩2分乗換案内
建物名 UR高槻・阿武山五番街 
間取り 2DK(和6 洋4 DK7) 築年月(築年数) 1991年3月(築34年9ヶ月)
専有面積 46.59㎡ 所在階/階数 1階/5階建
建物構造 RC  方位 南 
現況   駐車場 有 8,360円
入居可能時期 即時 住宅保険 なし
情報提供元 SUUMO[060H100470498587] 情報公開日
情報更新日 次回更新予定日 随時

設備など

2階以上 - 最上階 - 角部屋 -
駐車場(近隣含) エアコン付き バス・トイレ別
室内洗濯機置き場 追焚機能 オートロック付き -
モニタ付インターホン フローリング - バルコニー
ガスコンロ可 - 浴室乾燥機 - 24時間セキュリティ -
宅配ボックス - ペット相談可 - 二人入居可 -
設備 冷房・暖房・エアコン・バルコニー・バス・トイレ別・トイレ・収納スペース・洗濯機置場・洗面所・CATV・追焚機能・システムキッチン・モニタ付インターホン・駐輪場・風呂・床下収納・専用庭・2面バルコニー・都市ガス・浴トイレ別・洗面所独立・コンロ2口以上・リフォーム・インターネット対応・室内洗濯機置き場 
リフォーム履歴 -
リノベーション履歴 -
備考 JR東海道本線高槻駅バス33分公団阿武山停歩2分/阪急京都線富田駅バス13分公団阿武山停歩2分/バストイレ別/エアコン/TVインターホン/室内洗濯置/システムキッチン/南向き/追焚機能浴室/洗面所独立/洗面化粧台/駐輪場/押入/CATV/光ファイバー/即入居可/礼金不要/3口以上コンロ/保証人不要/仲介手数料不要/CATVインターネット/2面バルコニー/2沿線利用可/専用庭/敷金2ヶ月/床下収納/保証金不要/3駅以上利用可/バス停徒歩3分以内/敷地内遊び場/敷地内ごみ置き場/都市ガス/高速ネット対応/初期費用30万円以下/リフォーム:2025年11月(キッチン、浴室、床)/高槻市立阿武山小学校(小学校)まで775m/阿武山たつの子保育園(幼稚園・保育園)まで394m/高槻市役所(役所)まで3384m/高槻南平台郵便局(郵便局)まで1136m/高槻赤十字病院(病院)まで1448m/高槻市立阿武山図書館(図書館)まで228m/賃貸戸数:20戸 
特記事項 保証人不要/代行

省エネ性能

エネルギー消費性能 -
断熱性能 -
目安光熱費 -

大阪府高槻市奈佐原1 周辺地図情報

地図
※地図上に表示される物件の位置は付近住所に所在することを表すものであり、実際の物件所在地とは異なる場合がございます。
   正確な物件所在地は、取扱い不動産会社にお問い合わせください。
お問い合わせ先
都市再生機構UR高槻営業センター

不動産会社情報

お問い合わせ先 商号:都市再生機構UR高槻営業センター
免許番号:公団・公社()第号
所在地:大阪府高槻市高槻町 9-24 スクエアビル1階
TEL:072-686-5533
取引態様:貸主
管理コード:80-362-00005080102
共有する
QRコード
お問い合わせ先
都市再生機構UR高槻営業センター

    高槻市の暮らしデータ

    人口などの統計情報

    世帯数 152637世帯
    人口総数 346972人
    転入者数 11298人
    転入率(人口1000人当たり)
    32.56人
    転出者数 11107人
    転出率(人口1000人当たり)
    32.01人
    土地平均価格
    住宅地
    168886円/m2
    商業地
    448000円/m2

    結婚・育児の助成金

    子育て関連の独自の取り組み (1)市立幼稚園で就労支援型預かり保育を実施(2ヶ所)。(2)認可保育施設に待機となっている児童が利用できる年度利用保育を実施。(3)年度利用保育と認可保育施設(3園)間のバス送迎(保護者のお預け・お迎え場所は年度利用保育)の実施。(4)「高槻市妊娠期からの子育てガイド」の交付。(5)パパママデビュー教室において、先輩パパ講師を招き、パートナー・父親の役割について講話を実施。(6)インフルエンザ予防接種費用の一部助成。(7)不育症治療費助成事業の実施。(8)子育て総合支援センター(児童家庭相談事務所、児童発達支援事務所を併設)の設立・運営。(9)人工内耳装置等購入費助成事業の実施。
    出産祝い なし
    公立保育所数 8所(うち0歳児保育を実施している保育所:8所)
    私立保育所数 15所(うち0歳児保育を実施している保育所:13所)
    保育所入所待機児童数 0人
    認定こども園数 34園 預かり保育実施園数 公立:- 私立:6園
    学校給食 【小学校】完全給食【中学校】完全給食
    公立中学校の学校選択制 未実施
    子ども・学生等医療費助成<通院>対象年齢 18歳3月末まで 子ども・学生等医療費助成<入院>対象年齢 18歳3月末まで

    高槻市の治安・ごみ収集情報

    公共料金・インフラ

    ガス料金(22m3使用した場合の月額) 大阪瓦斯株式会社4544円
    水道料金(口径20mmで20m3の月額) 高槻市2420円
    下水道料金(20m3を使用した場合の月額) 高槻市1965円
    下水道普及率 99.7%

    安心・安全

    建物火災出火件数 37件
    人口10000人当たり
    1.05件
    刑法犯認知件数 1844件
    人口1000人当たり
    5.23件
    ハザード・防災マップ あり

    医療

    一般病院総数 14ヶ所
    一般診療所総数 297ヶ所
    小児科医師数 116人
    小児人口10000人当たり
    28.23人
    産婦人科医師数 58人
    15~49歳女性人口1万人当たり
    8.75人
    介護保険料基準額(月額) 6100円

    ごみ

    家庭ごみ収集(可燃ごみ) 無料
    備考
    引っ越しなどによる大量ごみは臨時ごみとして事前申込にて有料で収集。
    家庭ごみの分別方式 3分別7種〔可燃ごみ 不燃ごみ リサイクルごみ(あき缶類・金属製台所用品・あきビン・ペットボトル、古紙類[古紙、牛乳パック、雑紙]、古布類)〕 拠点回収:ペットボトル
    家庭ごみの戸別収集 未実施
    粗大ごみ収集 あり
    備考
    「大型可燃ごみ」「不燃ごみ」として月1回ずつ無料で収集。ただし、引っ越しなどによる大量ごみは臨時ごみとして事前申込にて有料で収集。
    生ごみ処理機助成金制度 なし
    上限金額
    -
    上限比率
    -
    暮らしデータ提供元:生活ガイド.com
    ※行政機関により公表していない地域及びデータがございます。東京23区以外の政令指定都市は、市全体のデータとして表示しています。
    ※提供データには細心の注意を払っておりますが、調査後に変更がある場合があります。 最新の情報につきましては各市区役所までお問い合わせいただくか、自治体HPなどをご確認ください。
    OCN×ドコモ光新規お申込みで合計最大137,280円相当おトク!特典の内訳・適用条件など詳細はこちら

    高槻市内の各駅の住みやすさ

    他のエリアから探す

    高槻市の詳細地域から賃貸物件を探す

    赤大路町芥川町明田町明野町天川新町安満北の町安満新町安満中の町安満西の町安満東の町安岡寺町今城町浦堂浦堂本町永楽町大冠町大塚町大手町大畑町岡本町奥天神町梶原春日町上田辺町上土室上本町唐崎中唐崎西川添川西町上牧北駅前町上牧町上牧南駅前町北大樋町北昭和台町北園町北柳川町京口町郡家新町郡家本町高西町神内古曽部町寿町紺屋町五領町西面中幸町栄町桜ケ丘北町桜ケ丘南町沢良木町芝生町下田部町庄所町昭和台町城西町城東町城内町城南町城北町須賀町辻子清福寺町高垣町高槻町竹の内町玉川大蔵司大和千代田町塚原塚脇月見町堤町津之江北町津之江町天神町天王町出丸町桃園町東和町殿町登美の里町富田丘町富田町土橋町中川町奈佐原奈佐原元町南平台西冠西之川原西真上西町西五百住町如是町野田登町野見町萩之庄白梅町柱本柱本新町八丁畷町八丁西町土室町東天川東上牧東五百住町氷室町日吉台五番町日吉台七番町日吉台四番町深沢町藤の里町別所新町別所中の町別所本町本町前島真上町牧田町松川町松が丘松原町三島江緑が丘緑町南芥川町南大樋町南庄所町南総持寺町南松原町宮田町宮之川原宮野町紫町名神町柳川町八幡町山手町弥生が丘町淀の原町若松町

    近辺の市区から探す

    長岡京市八幡市乙訓郡大山崎町久世郡久御山町枚方市茨木市寝屋川市門真市摂津市四條畷市交野市三島郡島本町

    周辺の駅から探す

    東海道本線
    長岡京山崎島本高槻摂津富田JR総持寺茨木千里丘岸辺

    大阪府高槻市で他のジャンルから探す


    掲載情報の著作権は提供元企業等に帰属します。
    Copyright:(C) 2025 Recruit Co., Ltd.
    アプリで簡単 物件探し 大手不動産サイトの情報から一括検!プッシュ通知で物件を見逃さない
    App Storeからダウンロード Google Playで手に入れよう QRコード