アプリで簡単 物件探し 通知 共有 アプリならではの機能を使ってみる
賃貸マンション

プレサンス四天王寺前夕陽ヶ丘 凛宮 天王寺駅 2LDK 賃貸(賃貸マンション・アパート)

情報提供元
SUUMO
プレサンス四天王寺前夕陽ヶ丘 凛宮
賃料 15.32万円  (管理費等:11860円)
礼金・敷金 20万円 / なし 保証金/敷引・償却 なし / -
交通
所在地 大阪府大阪市浪速区下寺3周辺地図
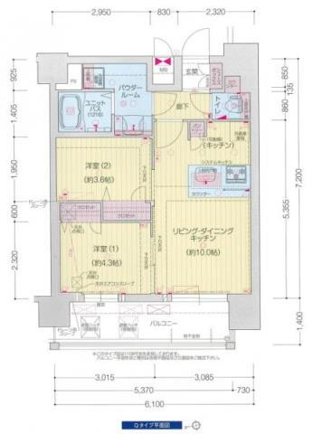
間取り 2LDK 専有面積 43.92m2
築年月 2024年2月 築年数 築1年11ヶ月
お問い合わせ先
アパマンショップ天王寺駅前店キンキ住宅サービスサンエス商事(株)
お問い合わせ先
アパマンショップ天王寺駅前店キンキ住宅サービスサンエス商事(株)

詳細情報

賃料 15.32万円 管理費等 11860円
敷金 なし 礼金 20万円
保証金 なし 敷引・償却 -
更新料 - 契約期間
カード決済 初期費用カード決済可
所在地 大阪府大阪市浪速区下寺3周辺地図
交通
  • 地下鉄御堂筋線 天王寺駅 徒歩18分乗換案内
  • 地下鉄谷町線 四天王寺前夕陽ヶ丘駅 徒歩9分乗換案内
  • 地下鉄堺筋線 恵美須町駅 徒歩9分乗換案内
建物名 プレサンス四天王寺前夕陽ヶ丘 凛宮 
間取り 2LDK(洋4.3 洋3.6 LDK10) 築年月(築年数) 2024年2月(築1年11ヶ月)
専有面積 43.92㎡ 所在階/階数 11階/14階建
建物構造 RC  方位 西 
現況   駐車場 無 
入居可能時期 相談 住宅保険 あり
情報提供元 SUUMO[060H100475165651] 情報公開日
情報更新日 次回更新予定日 随時

設備など

2階以上 最上階 - 角部屋
駐車場(近隣含) - エアコン付き バス・トイレ別
室内洗濯機置き場 追焚機能 オートロック付き
モニタ付インターホン フローリング バルコニー
ガスコンロ可 - 浴室乾燥機 24時間セキュリティ -
宅配ボックス ペット相談可 - 二人入居可 -
設備 冷房・暖房・エアコン・オートロック・バルコニー・バス・トイレ別・トイレ・収納スペース・洗濯機置場・洗面所・エレベーター・追焚機能・フローリング・浴室乾燥機・照明器具・シャンプードレッサ・温水洗浄便座・システムキッチン・カウンターキッチン・モニタ付インターホン・宅配BOX・駐輪場・風呂・対面K・クローゼット・物置・床暖房・衣類乾燥機・ディンプルキー・浴トイレ別・防犯カメラ・オートバス・洗面所独立・バイク置き場・コンロ2口以上・シューズボックス・インターネット無料・インターネット対応・室内洗濯機置き場 
リフォーム履歴 -
リノベーション履歴 -
備考 損保要/カギ交換代/プレサポ24 990円(月額)/保証会社利用必:ギャランティ 初回50% 月1.5%・セーフティー 初回50% 年10,000円/[退去時費用 退去費用実費精算※故意・過失等別途実費] 保証会社:株式会社プレサンスギャランティ/バストイレ別/バルコニー/エアコン/クロゼット/フローリング/シャワー付洗面台/TVインターホン/浴室乾燥機/オートロック/室内洗濯置/シューズボックス/システムキッチン/追焚機能浴室/角住戸/温水洗浄便座/脱衣所/エレベーター/洗面所独立/2口コンロ/駐輪場/宅配ボックス/光ファイバー/外壁タイル張り/閑静な住宅地/敷金不要/3口以上コンロ/対面式キッチン/防犯カメラ/照明付/分譲賃貸/オートバス/グリル付/全居室洋室/保証人不要/バイク置場/全居室フローリング/2沿線利用可/ディンプルキー/物置/ネット使用料不要/床暖房/ダブルロックキー/24時間換気システム/クロゼット2ヶ所/人感照明センサー/一部フローリング/2駅利用可/駅徒歩10分以内/24時間ゴミ出し可/敷地内ごみ置き場/洗面所にドア/三面鏡付洗面化粧台/縦型照明付洗面化粧台/オートライト/ダウンライト/高速ネット対応/保証会社利用可/IT重説 対応物件/初期費用カード決済可/通風良好/ライフ下寺店(スーパー)まで239m/ミニストップ(コンビニ)まで335m/でんでんタウン 日本橋電器街(その他)まで479m/セブンイレブン(コンビニ)まで447m/ライフ四天王寺店(スーパー)まで753m/スーパー玉出恵美須店(スーパー)まで771m/賃貸戸数:145戸 
特記事項 分譲タイプ・角部屋・外観タイル張り・閑静な住宅街・保証人不要/代行 ・初期費用カード決済可

省エネ性能

エネルギー消費性能 -
断熱性能 -
目安光熱費 -

大阪府大阪市浪速区下寺3 周辺地図情報

地図
※地図上に表示される物件の位置は付近住所に所在することを表すものであり、実際の物件所在地とは異なる場合がございます。
   正確な物件所在地は、取扱い不動産会社にお問い合わせください。
お問い合わせ先
アパマンショップ天王寺駅前店キンキ住宅サービスサンエス商事(株)

不動産会社情報

お問い合わせ先 商号:アパマンショップ天王寺駅前店キンキ住宅サービスサンエス商事(株)
免許番号:大阪府知事(8)第34549号
所在地:大阪府大阪市天王寺区堀越町 16-6
TEL:0120-800074
取引態様:仲介
管理コード:98293438
所属協会など:(公社)近畿地区不動産公正取引協議会加盟、(一社)大阪府宅地建物取引業協会会員
共有する
QRコード
お問い合わせ先
アパマンショップ天王寺駅前店キンキ住宅サービスサンエス商事(株)

    大阪市浪速区の暮らしデータ

    人口などの統計情報

    世帯数 1464615世帯
    人口総数 2757642人
    転入者数 225000人
    転入率(人口1000人当たり)
    81.59人
    転出者数 188180人
    転出率(人口1000人当たり)
    68.24人
    土地平均価格
    住宅地
    270839円/m2
    商業地
    1966607円/m2

    結婚・育児の助成金

    子育て関連の独自の取り組み (1)子ども・子育てプラザ(在宅での子育て家庭や地域での子育て活動を支援し、また乳幼児期の親子や子育て支援者、就学期の子どもが集い交流する機会を提供する等、地域福祉活動の推進を図る)。(2)習い事・塾代助成事業(学習塾や家庭教師、文化・スポーツ教室等学校外教育にかかる費用を、1人当たり月額1万円まで助成。所得制限あり)。
    出産祝い なし
    公立保育所数 53所(うち0歳児保育を実施している保育所:52所)
    私立保育所数 395所(うち0歳児保育を実施している保育所:385所)
    保育所入所待機児童数 2人
    認定こども園数 117園 預かり保育実施園数 公立:52園 私立:-
    学校給食 【小学校】完全給食【中学校】完全給食
    公立中学校の学校選択制 実施
    子ども・学生等医療費助成<通院>対象年齢 18歳3月末まで 子ども・学生等医療費助成<入院>対象年齢 18歳3月末まで

    大阪市浪速区の治安・ごみ収集情報

    公共料金・インフラ

    ガス料金(22m3使用した場合の月額) 大阪瓦斯株式会社4544円
    水道料金(口径20mmで20m3の月額) 大阪市2112円
    下水道料金(20m3を使用した場合の月額) 大阪市1276円
    下水道普及率 100.0%

    安心・安全

    建物火災出火件数 553件
    人口10000人当たり
    2.01件
    刑法犯認知件数 39408件
    人口1000人当たり
    14.32件
    ハザード・防災マップ あり

    医療

    一般病院総数 170ヶ所
    一般診療所総数 3734ヶ所
    小児科医師数 659人
    小児人口10000人当たり
    22.80人
    産婦人科医師数 380人
    15~49歳女性人口1万人当たり
    6.15人
    介護保険料基準額(月額) 9249円

    ごみ

    家庭ごみ収集(可燃ごみ) 無料
    備考
    -
    家庭ごみの分別方式 4分別11種〔普通ごみ(普通ごみ、危険ごみ[竹串、ガラス片、カミソリの刃]) 資源ごみ(空き缶・空きびん・金属製の生活用品・ペットボトル、スプレー缶・カセットボンベ) 容器包装プラスチック 古紙・衣類(新聞紙・折込チラシ、段ボール、紙パック、雑誌、衣類、その他の紙類)〕
    家庭ごみの戸別収集 一部実施(【ふれあい収集】65歳以上の一人暮らしの高齢者または高齢者だけの世帯、障がいがある方が居住される家庭で、ごみ出しが困難な人が対象)
    粗大ごみ収集 あり
    備考
    有料。戸別収集。事前申込制。申込時に収集日を決定。
    生ごみ処理機助成金制度 なし
    上限金額
    -
    上限比率
    -
    暮らしデータ提供元:生活ガイド.com
    ※行政機関により公表していない地域及びデータがございます。東京23区以外の政令指定都市は、市全体のデータとして表示しています。
    ※提供データには細心の注意を払っておりますが、調査後に変更がある場合があります。 最新の情報につきましては各市区役所までお問い合わせいただくか、自治体HPなどをご確認ください。
    OCN×ドコモ光新規お申込みで合計最大137,280円相当おトク!特典の内訳・適用条件など詳細はこちら

    大阪市浪速区内の各駅の住みやすさ

    他のエリアから探す

    大阪市浪速区の詳細地域から賃貸物件を探す

    芦原稲荷恵美須西恵美須東戎本町木津川久保吉幸町桜川塩草敷津西敷津東下寺立葉大国浪速西浪速東難波中日本橋日本橋西日本橋東湊町元町

    近辺の市区から探す

    大阪市都島区大阪市福島区大阪市此花区大阪市西区大阪市港区大阪市大正区大阪市天王寺区大阪市西淀川区大阪市東淀川区大阪市東成区大阪市生野区大阪市旭区大阪市城東区大阪市阿倍野区大阪市住吉区大阪市東住吉区大阪市西成区大阪市淀川区大阪市鶴見区大阪市住之江区大阪市平野区大阪市北区大阪市中央区堺市堺区堺市北区吹田市守口市八尾市大東市東大阪市

    周辺の駅から探す

    大阪市御堂筋線
    心斎橋なんば大国町動物園前天王寺昭和町西田辺長居あびこ
    大阪市谷町線
    天満橋谷町四丁目谷町六丁目谷町九丁目四天王寺前夕陽ヶ丘天王寺阿倍野文の里田辺
    大阪市堺筋線
    北浜堺筋本町長堀橋日本橋恵美須町動物園前天下茶屋

    大阪府大阪市浪速区で他のジャンルから探す


    掲載情報の著作権は提供元企業等に帰属します。
    Copyright:(C) 2025 Recruit Co., Ltd.
    アプリで簡単 物件探し 大手不動産サイトの情報から一括検!プッシュ通知で物件を見逃さない
    App Storeからダウンロード Google Playで手に入れよう QRコード