アプリで簡単 物件探し 通知 共有 アプリならではの機能を使ってみる
賃貸マンション

エストゥルース京都 東寺駅 1K 賃貸(賃貸マンション・アパート)

情報提供元
SUUMO
エストゥルース京都
賃料 7.55万円  (管理費等:10000円)
礼金・敷金 なし / なし 保証金/敷引・償却 1ヶ月 / -
交通
所在地 京都府京都市南区四ツ塚町周辺地図
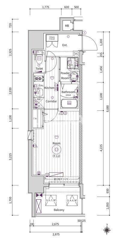
間取り 1K 専有面積 25.39m2
築年月 2025年4月 築年数 新築
おすすめポイント
女性スタッフ・ベテランスタッフ在籍★何でもご相談ください★ 2025年4月完成の新築マンション★近鉄東寺駅から徒歩10分★敷金・礼金なし★最上階・角部屋★ペット飼育可能★インターネット無料★外国籍の方もご契約可能★浴室乾燥や宅配BOXなど設備充実です★
お問い合わせ先
リブ・マックス京都駅前店(株)リブマックスリーシング
お問い合わせ先
リブ・マックス京都駅前店(株)リブマックスリーシング

詳細情報

賃料 7.55万円 管理費等 10000円
敷金 なし 礼金 なし
保証金 1ヶ月 敷引・償却 -
更新料 - 契約期間
カード決済 -
所在地 京都府京都市南区四ツ塚町周辺地図
交通
建物名 エストゥルース京都 
間取り 1K(洋7.1 K2.0) 築年月(築年数) 2025年4月 新築
専有面積 25.39㎡ 所在階/階数 9階/9階建
建物構造 RC  方位 南 
現況   駐車場 無    近くの駐車場を探す
入居可能時期 即時 住宅保険 あり
情報提供元 SUUMO[060H100459373488] 情報公開日
情報更新日 次回更新予定日 随時

設備など

2階以上 最上階 角部屋
駐車場(近隣含) - エアコン付き バス・トイレ別
室内洗濯機置き場 - 追焚機能 オートロック付き
モニタ付インターホン フローリング バルコニー
ガスコンロ可 浴室乾燥機 24時間セキュリティ -
宅配ボックス ペット相談可 二人入居可
設備 冷房・暖房・エアコン・オートロック・バルコニー・バス・トイレ別・トイレ・収納スペース・洗面所・エレベーター・BS端子・追焚機能・フローリング・浴室乾燥機・ガスコンロ可・温水洗浄便座・システムキッチン・モニタ付インターホン・宅配BOX・駐輪場・風呂・クローゼット・CS・衣類乾燥機・都市ガス・浴トイレ別・防犯カメラ・オートバス・洗面所独立・コンロ2口以上・シューズボックス・インターネット無料・リフォーム・インターネット対応 
リフォーム履歴 -
リノベーション履歴 -
備考 損保要/契約事務手数料1.1万円/更新料 新賃料1.00ヶ月分 火災保険+24時間サポート 月額2200円/保証会社利用必:初回保証料:総賃料の50% 月額保証料:総賃料の1%/普通借家02年0ヶ月/二人入居可/ペット相談/内見代行・写真撮影/動画撮影/WEB契約等来店不要でご契約可能です。お気軽にご相談下さい。/バストイレ別/バルコニー/エアコン/ガスコンロ対応/クロゼット/フローリング/TVインターホン/浴室乾燥機/オートロック/陽当り良好/シューズボックス/システムキッチン/南向き/角住戸/温水洗浄便座/脱衣所/エレベーター/洗面所独立/洗面化粧台/2口コンロ/駐輪場/宅配ボックス/即入居可/礼金不要/閑静な住宅地/最上階/BS・CS/敷金不要/防犯カメラ/ペット相談/オートバス/全居室洋室/内外装リフォーム済/保証人不要/単身者相談/二人入居相談/24時間緊急通報システム/全居室フローリング/CS/ネット専用回線/ネット使用料不要/全室南向き/エアコン全室/ダブルロックキー/南面リビング/未入居/上階無し/24時間ゴミ出し可/敷地内ごみ置き場/都市ガス/洗面所にドア/南面バルコニー/BS/IT重説 対応物件/フレスコ 九条店(スーパー)まで566m/スーパーオカモト(スーパー)まで1006m/イオン京都洛南ショッピングセンター(ショッピングセンター)まで1087m/ミニストップ 京都東寺前店(コンビニ)まで468m/コーナンPRO東寺南店(ホームセンター)まで471m/第二足立病院(病院)まで193m 
特記事項 ペット相談可・二人入居可・角部屋・最上階・日当り良好・閑静な住宅街・保証人不要/代行

省エネ性能

エネルギー消費性能 -
断熱性能 -
目安光熱費 -

京都府京都市南区四ツ塚町 周辺地図情報

地図
※地図上に表示される物件の位置は付近住所に所在することを表すものであり、実際の物件所在地とは異なる場合がございます。
   正確な物件所在地は、取扱い不動産会社にお問い合わせください。
お問い合わせ先
リブ・マックス京都駅前店(株)リブマックスリーシング

不動産会社情報

お問い合わせ先 商号:リブ・マックス京都駅前店(株)リブマックスリーシング
免許番号:国土交通大臣(3)第8116号
所在地:京都府京都市下京区材木町 499 京都駅前第7ビル4階
TEL:075-748-1840
取引態様:仲介
管理コード:5973760
所属協会など:(公社)近畿地区不動産公正取引協議会加盟、(公社)京都府宅地建物取引業協会会員
共有する
QRコード
お問い合わせ先
リブ・マックス京都駅前店(株)リブマックスリーシング

    京都市南区の暮らしデータ

    人口などの統計情報

    世帯数 728744世帯
    人口総数 1379529人
    転入者数 85315人
    転入率(人口1000人当たり)
    61.84人
    転出者数 80567人
    転出率(人口1000人当たり)
    58.40人
    土地平均価格
    住宅地
    220880円/m2
    商業地
    1290411円/m2

    結婚・育児の助成金

    子育て関連の独自の取り組み (1)乳幼児の子育て支援機能や学童クラブ機能等を有する児童館設置。(2)こんにちはプレママ事業。(3)児童虐待未然防止に係る医療機関と子どもはぐくみ室及び京北出張所の連携。(4)子ども保健医療相談・事故防止センター設置。(5)京都はぐくみアプリ配信。(6)子育て支援コンシェルジュ育成。(7)骨髄移植手術等により免疫を喪失した子どもへのワクチン再接種費用助成制度。(8)子どもを共に育む京都市民憲章の制定、憲章の実践・普及の促進。(9)【京都安心すまい応援金】未就学の子どもがいる世帯を対象に、自己居住用として既存住宅を購入し、リフォームを行う場合に、最大200万円の応援金を交付。
    出産祝い あり
    公立保育所数 14所(うち0歳児保育を実施している保育所:13所)
    私立保育所数 196所(うち0歳児保育を実施している保育所:188所)
    保育所入所待機児童数 0人
    認定こども園数 83園 預かり保育実施園数 公立:15園 私立:81園
    学校給食 【小学校】完全給食【中学校】完全給食 家庭弁当等との選択制/デリバリー形式[運搬:ランチボックス、内容:完全給食] 給食なし
    公立中学校の学校選択制 未実施
    子ども・学生等医療費助成<通院>対象年齢 中学校卒業まで 子ども・学生等医療費助成<入院>対象年齢 中学校卒業まで

    京都市南区の治安・ごみ収集情報

    公共料金・インフラ

    ガス料金(22m3使用した場合の月額) 大阪瓦斯株式会社4544円
    水道料金(口径20mmで20m3の月額) 京都市3014円
    下水道料金(20m3を使用した場合の月額) 京都市2013円
    下水道普及率 99.5%

    安心・安全

    建物火災出火件数 158件
    人口10000人当たり
    1.08件
    刑法犯認知件数 8104件
    人口1000人当たり
    5.54件
    ハザード・防災マップ あり

    医療

    一般病院総数 89ヶ所
    一般診療所総数 1622ヶ所
    小児科医師数 397人
    小児人口10000人当たり
    27.26人
    産婦人科医師数 201人
    15~49歳女性人口1万人当たり
    7.16人
    介護保険料基準額(月額) 7160円

    ごみ

    家庭ごみ収集(可燃ごみ) 有料
    備考
    指定ごみ袋有料。
    家庭ごみの分別方式 5分別8種〔燃やすごみ 缶・びん・ペットボトル プラスチック類 小型金属類・スプレー缶 雑がみ〕 拠点回収:移動式拠点回収):古紙(新聞・ダンボール) 雑がみ 紙パック 使用済てんぷら油 古着類 乾電池 ボタン電池 充電式電池 蛍光管 水銀体温計・水銀血圧計 小型家電 磁気テープ類 インクカートリッジ リユースびん 刃物類 使い捨てライター 陶磁器製の食器 せん定枝木の枝 石油類 医薬品・農薬 化学薬品・塗料・ワックス・絵の具 洗浄剤
    家庭ごみの戸別収集 一部実施(原則定点としているが、一部地域で狭路等やむを得ない事情がある場合のみ実施。また、ごみ出しが困難な高齢者や障害のある方などの生活支援の一つとして、御自宅の玄関先までごみの収集に伺う「ごみ収集福祉サービス[まごころ収集]」を実施)
    粗大ごみ収集 あり
    備考
    有料。事前申込制。
    生ごみ処理機助成金制度 なし
    上限金額
    -
    上限比率
    -
    暮らしデータ提供元:生活ガイド.com
    ※行政機関により公表していない地域及びデータがございます。東京23区以外の政令指定都市は、市全体のデータとして表示しています。
    ※提供データには細心の注意を払っておりますが、調査後に変更がある場合があります。 最新の情報につきましては各市区役所までお問い合わせいただくか、自治体HPなどをご確認ください。
    OCN×ドコモ光新規お申込みで合計最大137,280円相当おトク!特典の内訳・適用条件など詳細はこちら

    京都市南区内の各駅の住みやすさ

    他のエリアから探す

    京都市南区の詳細地域から賃貸物件を探す

    戒光寺町上鳥羽石橋町上鳥羽岩ノ本町上鳥羽卯ノ花町上鳥羽大溝町上鳥羽大柳町上鳥羽鴨田町上鳥羽唐戸町上鳥羽川端町上鳥羽勧進橋町上鳥羽北島田町上鳥羽城ケ前町上鳥羽菅田町上鳥羽高畠町上鳥羽町田町上鳥羽角田町上鳥羽塔ノ森東向町上鳥羽奈須野町上鳥羽苗代町上鳥羽西浦町上鳥羽堀子町上鳥羽南戒光町上鳥羽南島田町上鳥羽南塔ノ本町上鳥羽南中ノ坪町上鳥羽南花名町上鳥羽南鉾立町上鳥羽南村山町上鳥羽山ノ本町上鳥羽藁田町唐橋赤金町唐橋芦辺町唐橋井園町唐橋大宮尻町唐橋門脇町唐橋川久保町唐橋経田町唐橋堂ノ前町唐橋西平垣町唐橋花園町唐橋平垣町唐橋琵琶町唐橋南琵琶町唐橋羅城門町吉祥院池ノ内町吉祥院石原上川原町吉祥院石原町吉祥院石原堂ノ後西町吉祥院石原長田町吉祥院稲葉町吉祥院井ノ口町吉祥院内河原町吉祥院御池町吉祥院大河原町吉祥院観音堂町吉祥院観音堂南町吉祥院九条町吉祥院車道町吉祥院定成町吉祥院里ノ内町吉祥院三ノ宮町吉祥院三ノ宮西町吉祥院嶋笠井町吉祥院嶋樫山町吉祥院嶋高町吉祥院清水町吉祥院新田壱ノ段町吉祥院新田弐ノ段町吉祥院砂ノ町吉祥院高畑町吉祥院中河原里北町吉祥院中河原里西町吉祥院中河原里南町吉祥院中河原西屋敷町吉祥院中島町吉祥院長田町吉祥院仁木ノ森町吉祥院西浦町吉祥院西ノ内町吉祥院西ノ庄西浦町吉祥院西ノ庄西中町吉祥院西ノ庄東屋敷町吉祥院西ノ庄淵ノ西町吉祥院西ノ庄向田町吉祥院西ノ庄門口町吉祥院西ノ茶屋町吉祥院這登中町吉祥院這登西町吉祥院這登東町吉祥院東砂ノ町吉祥院東前田町吉祥院船戸町吉祥院前河原町吉祥院前田町吉祥院蒔絵町吉祥院政所町吉祥院南落合町吉祥院宮ノ西町吉祥院宮ノ東町吉祥院向田東町九条町久世大築町久世大薮町久世上久世町久世川原町久世高田町久世築山町久世殿城町久世中久世町1丁目久世中久世町2丁目久世中久世町3丁目久世中久世町4丁目久世中久世町5丁目久世中久町久世東土川町大黒町東寺町東寺東門前町西九条池ノ内町西九条院町西九条大国町西九条開ケ町西九条春日町西九条唐戸町西九条唐橋町西九条川原城町西九条御幸田町西九条蔵王町西九条島町西九条高畠町西九条豊田町西九条南田町西九条西柳ノ内町西九条針小路町西九条比永城町西九条東島町西九条東比永城町西九条東柳ノ内町西九条藤ノ木町西九条森本町西九条柳ノ内町西九条横町八条内田町八条町八条寺内町八条坊門町八条源町東九条明田町東九条石田町東九条宇賀辺町東九条上御霊町東九条上殿田町東九条烏丸町東九条河西町東九条河辺町東九条北烏丸町東九条北河原町東九条北松ノ木町東九条下殿田町東九条中御霊町東九条中殿田町東九条中札辻町東九条西明田町東九条西岩本町東九条西河辺町東九条西御霊町東九条西山王町東九条西札辻町東九条西山町東九条東岩本町東九条東御霊町東九条東山王町東九条東札辻町東九条松田町東九条南石田町東九条南烏丸町東九条南河辺町東九条南河原町東九条南山王町東九条南松ノ木町東九条室町東九条柳下町四ツ塚町

    近辺の市区から探す

    大津市京都市北区京都市上京区京都市左京区京都市中京区京都市東山区京都市下京区京都市右京区京都市伏見区京都市山科区京都市西京区宇治市向日市長岡京市八幡市乙訓郡大山崎町久世郡久御山町三島郡島本町

    周辺の駅から探す

    山陰本線
    京都梅小路京都西丹波口二条円町花園
    近鉄京都線
    京都東寺十条上鳥羽口竹田伏見

    京都府京都市南区で他のジャンルから探す


    掲載情報の著作権は提供元企業等に帰属します。
    Copyright:(C) 2025 Recruit Co., Ltd.
    アプリで簡単 物件探し 大手不動産サイトの情報から一括検!プッシュ通知で物件を見逃さない
    App Storeからダウンロード Google Playで手に入れよう QRコード