アプリで簡単 物件探し 通知 共有 アプリならではの機能を使ってみる
賃貸アパート

京都府京都市中京区織物屋町 二条城前駅 1K 賃貸(賃貸マンション・アパート)

情報提供元
SUUMO
賃料 6.2万円  (管理費等:5000円)
礼金・敷金 なし / なし 保証金/敷引・償却 なし / -
交通
所在地 京都府京都市中京区織物屋町周辺地図
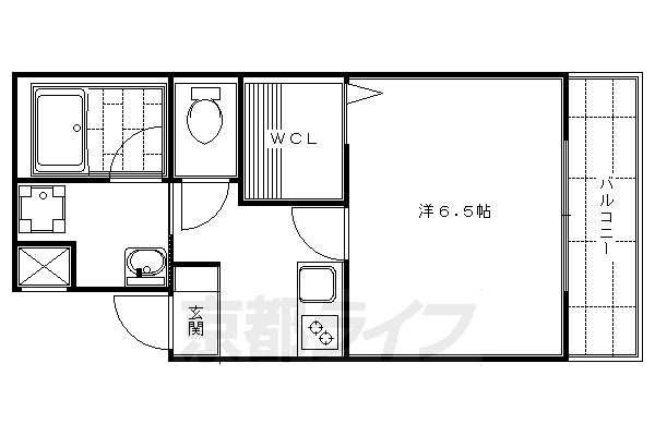
間取り 1K 専有面積 24.4m2
築年月 2006年8月 築年数 築19年5ヶ月
おすすめポイント
全室角部屋!2面採光! 二条城 賃貸 物件情報からエリア情報まで京都の賃貸物件紹介はお任せください!
お問い合わせ先
(株)京都ライフ烏丸五条店
お問い合わせ先
(株)京都ライフ烏丸五条店

詳細情報

賃料 6.2万円 管理費等 5000円
敷金 なし 礼金 なし
保証金 なし 敷引・償却 -
更新料 - 契約期間
カード決済 -
所在地 京都府京都市中京区織物屋町周辺地図
交通
建物名  
間取り 1K(洋6.5 K2.8) 築年月(築年数) 2006年8月(築19年5ヶ月)
専有面積 24.4㎡ 所在階/階数 3階/3階建
建物構造 軽量鉄骨  方位 東 
現況   駐車場 無    近くの駐車場を探す
入居可能時期 2026年2月中旬 住宅保険 あり 2年 17000円
情報提供元 SUUMO[060H100474747188] 情報公開日
情報更新日 次回更新予定日 随時

設備など

2階以上 最上階 角部屋
駐車場(近隣含) - エアコン付き バス・トイレ別
室内洗濯機置き場 追焚機能 - オートロック付き
モニタ付インターホン - フローリング バルコニー
ガスコンロ可 浴室乾燥機 - 24時間セキュリティ -
宅配ボックス - ペット相談可 - 二人入居可 -
設備 冷房・暖房・エアコン・オートロック・バルコニー・バス・トイレ別・トイレ・収納スペース・洗濯機置場・洗面所・CATV・BS端子・フローリング・ガスコンロ可・シャンプードレッサ・システムキッチン・駐輪場・クローゼット・都市ガス・ディンプルキー・浴トイレ別・洗面所独立・コンロ2口以上・シューズボックス・インターネット無料・インターネット対応・室内洗濯機置き場 
リフォーム履歴 -
リノベーション履歴 -
備考 書類代5500円/入居者サポート1100円/月 ハウスクリーニング代2.75万円/退去時/保証会社利用必:初回:月額賃料等の50%、更新時:1万円/1年/更新料:新家賃1ヶ月 更新手数料:11000円/バストイレ別/バルコニー/エアコン/ガスコンロ対応/クロゼット/フローリング/シャワー付洗面台/オートロック/室内洗濯置/シューズボックス/システムキッチン/角住戸/洗面所独立/2口コンロ/駐輪場/押入/CATV/礼金不要/最上階/敷金不要/全居室洋室/CATVインターネット/ディンプルキー/ネット使用料不要/3駅以上利用可/駅徒歩5分以内/上階無し/全居室6畳以上/都市ガス/BS/年度内入居可/IT重説 対応物件/巡回管理/サークルK 堀川御池店(コンビニ)まで154m/京都中央信用金庫西御池支店(銀行)まで312m/西友三条店(スーパー)まで370m/京都二条油小路郵便局(郵便局)まで380m/京都逓信病院(病院)まで723m/京都府警察本部(警察署・交番)まで1100m/地下鉄烏丸線烏丸御池駅徒歩14分/賃貸戸数:9戸 
特記事項 角部屋・管理人巡回・最上階

省エネ性能

エネルギー消費性能 -
断熱性能 -
目安光熱費 -

京都府京都市中京区織物屋町 周辺地図情報

地図
※地図上に表示される物件の位置は付近住所に所在することを表すものであり、実際の物件所在地とは異なる場合がございます。
   正確な物件所在地は、取扱い不動産会社にお問い合わせください。
お問い合わせ先
(株)京都ライフ烏丸五条店

不動産会社情報

お問い合わせ先 商号:(株)京都ライフ烏丸五条店
免許番号:京都府知事(11)第6353号
所在地:京都府京都市下京区大坂町 377
TEL:075-354-0050
取引態様:仲介
管理コード:K09312-301
所属協会など:(公社)近畿地区不動産公正取引協議会加盟、(公社)京都府宅地建物取引業協会会員
共有する
QRコード
お問い合わせ先
(株)京都ライフ烏丸五条店

    京都市中京区の暮らしデータ

    人口などの統計情報

    世帯数 728744世帯
    人口総数 1379529人
    転入者数 85315人
    転入率(人口1000人当たり)
    61.84人
    転出者数 80567人
    転出率(人口1000人当たり)
    58.40人
    土地平均価格
    住宅地
    220880円/m2
    商業地
    1290411円/m2

    結婚・育児の助成金

    子育て関連の独自の取り組み (1)乳幼児の子育て支援機能や学童クラブ機能等を有する児童館設置。(2)こんにちはプレママ事業。(3)児童虐待未然防止に係る医療機関と子どもはぐくみ室及び京北出張所の連携。(4)子ども保健医療相談・事故防止センター設置。(5)京都はぐくみアプリ配信。(6)子育て支援コンシェルジュ育成。(7)骨髄移植手術等により免疫を喪失した子どもへのワクチン再接種費用助成制度。(8)子どもを共に育む京都市民憲章の制定、憲章の実践・普及の促進。(9)【京都安心すまい応援金】未就学の子どもがいる世帯を対象に、自己居住用として既存住宅を購入し、リフォームを行う場合に、最大200万円の応援金を交付。
    出産祝い あり
    公立保育所数 14所(うち0歳児保育を実施している保育所:13所)
    私立保育所数 196所(うち0歳児保育を実施している保育所:188所)
    保育所入所待機児童数 0人
    認定こども園数 83園 預かり保育実施園数 公立:15園 私立:81園
    学校給食 【小学校】完全給食【中学校】完全給食 家庭弁当等との選択制/デリバリー形式[運搬:ランチボックス、内容:完全給食] 給食なし
    公立中学校の学校選択制 未実施
    子ども・学生等医療費助成<通院>対象年齢 中学校卒業まで 子ども・学生等医療費助成<入院>対象年齢 中学校卒業まで

    京都市中京区の治安・ごみ収集情報

    公共料金・インフラ

    ガス料金(22m3使用した場合の月額) 大阪瓦斯株式会社4544円
    水道料金(口径20mmで20m3の月額) 京都市3014円
    下水道料金(20m3を使用した場合の月額) 京都市2013円
    下水道普及率 99.5%

    安心・安全

    建物火災出火件数 158件
    人口10000人当たり
    1.08件
    刑法犯認知件数 8104件
    人口1000人当たり
    5.54件
    ハザード・防災マップ あり

    医療

    一般病院総数 89ヶ所
    一般診療所総数 1622ヶ所
    小児科医師数 397人
    小児人口10000人当たり
    27.26人
    産婦人科医師数 201人
    15~49歳女性人口1万人当たり
    7.16人
    介護保険料基準額(月額) 7160円

    ごみ

    家庭ごみ収集(可燃ごみ) 有料
    備考
    指定ごみ袋有料。
    家庭ごみの分別方式 5分別8種〔燃やすごみ 缶・びん・ペットボトル プラスチック類 小型金属類・スプレー缶 雑がみ〕 拠点回収:移動式拠点回収):古紙(新聞・ダンボール) 雑がみ 紙パック 使用済てんぷら油 古着類 乾電池 ボタン電池 充電式電池 蛍光管 水銀体温計・水銀血圧計 小型家電 磁気テープ類 インクカートリッジ リユースびん 刃物類 使い捨てライター 陶磁器製の食器 せん定枝木の枝 石油類 医薬品・農薬 化学薬品・塗料・ワックス・絵の具 洗浄剤
    家庭ごみの戸別収集 一部実施(原則定点としているが、一部地域で狭路等やむを得ない事情がある場合のみ実施。また、ごみ出しが困難な高齢者や障害のある方などの生活支援の一つとして、御自宅の玄関先までごみの収集に伺う「ごみ収集福祉サービス[まごころ収集]」を実施)
    粗大ごみ収集 あり
    備考
    有料。事前申込制。
    生ごみ処理機助成金制度 なし
    上限金額
    -
    上限比率
    -
    暮らしデータ提供元:生活ガイド.com
    ※行政機関により公表していない地域及びデータがございます。東京23区以外の政令指定都市は、市全体のデータとして表示しています。
    ※提供データには細心の注意を払っておりますが、調査後に変更がある場合があります。 最新の情報につきましては各市区役所までお問い合わせいただくか、自治体HPなどをご確認ください。
    OCN×ドコモ光新規お申込みで合計最大137,280円相当おトク!特典の内訳・適用条件など詳細はこちら

    京都市中京区内の各駅の住みやすさ

    他のエリアから探す

    京都市中京区の詳細地域から賃貸物件を探す

    秋野々町朝倉町姉猪熊町姉大宮町西側姉大宮町東側姉西町姉西洞院町姉東堀川町油屋町油屋町池須町池元町石橋町石橋町一之船入町井筒屋町因幡町今新在家西町岩上町姥柳町梅忠町梅之木町梅之木町梅屋町梅屋町梅屋町占出山町裏寺町榎木町恵比須町夷町海老屋町烏帽子屋町役行者町円福寺町御池之町扇屋町大炊町大炊町大阪材木町大津町押油小路町押西洞院町織物屋町尾張町御供町鏡屋町柿本町鍵屋町鍵屋町頭町鍛冶町鍛冶屋町鍛冶屋町甲屋町釜座町上黒門町上白山町上本能寺前町上松屋町上妙覚寺町亀屋町亀屋町亀屋町亀屋町雁金町瓦町瓦之町観音堂町観音町甘露町菊水鉾町菊屋町菊屋町九町目金吹町空也町楠町薬屋町倉本町車屋町鯉山町古西町小結棚町御所八幡町五丁目坂井町坂本町左京町笹屋町笹屋町指物町指物屋町三条油小路町三条大宮町三条町三坊猪熊町北組三坊猪熊町南組三坊大宮町三坊西洞院町三坊堀川町三本木町三文字町塩屋町塩屋町式阿弥町式部町四坊大宮町清水町清水町下一文字町下瓦町下黒門町下御霊前町下白山町下八文字町下古城町下松屋町下丸屋町下丸屋町下妙覚寺町砂金町正行寺町少将井町猩々町神泉苑町神明町十文字町聚楽廻中町聚楽廻西町聚楽廻東町聚楽廻松下町聚楽廻南町常真横町末丸町杉屋町炭之座町西堂町晴明町瀬戸屋町泉正寺町宗林町高田町高宮町高宮町竹屋町蛸薬師町蛸屋町畳屋町橘町橘町橘柳町龍池町田中町玉植町玉蔵町樽屋町俵屋町俵屋町俵屋町大恩寺町大黒町大文字町大文字町大文字町大文字町大文字町達磨町滕屋町津軽町突抜町突抜町槌屋町槌屋町壺屋町壺屋町壺屋町天守町天神山町等持寺町蟷螂山町堂之前町中魚屋町中之町中之町中之町中之町長浜町七町目仁王門町仁王門突抜町西夷川町西押小路町錦猪熊町錦大宮町錦堀川町西九軒町西革堂町西竹屋町西大黒町西大文字町西錦小路町西ノ京池ノ内町西ノ京内畑町西ノ京右馬寮町西ノ京円町西ノ京大炊御門町西ノ京小倉町西ノ京笠殿町西ノ京上合町西ノ京上平町西ノ京勧学院町西ノ京北円町西ノ京北小路町西ノ京北壺井町西ノ京車坂町西ノ京小堀池町西ノ京小堀町西ノ京左馬寮町西ノ京三条坊町西ノ京鹿垣町西ノ京式部町西ノ京島ノ内町西ノ京下合町西ノ京職司町西ノ京新建町西ノ京塚本町西ノ京月輪町西ノ京壺ノ内町西ノ京銅駝町西ノ京中保町西ノ京中御門西町西ノ京中御門東町西ノ京永本町西ノ京南聖町西ノ京西円町西ノ京西月光町西ノ京西鹿垣町西ノ京西中合町西ノ京伯楽町西ノ京原町西ノ京馬代町西ノ京東月光町西ノ京東中合町西ノ京樋ノ口町西ノ京平町西ノ京藤ノ木町西ノ京船塚町西ノ京北聖町西ノ京星池町西ノ京御輿岡町西ノ京南円町西ノ京南大炊御門町西ノ京南上合町西ノ京南壺井町西ノ京南原町西ノ京南両町西ノ京冷泉町西横町西六角町二条殿町二条西洞院町橋西町橋之町橋東詰町橋弁慶町橋本町場之町柊町光リ堂町東夷川町東玉屋町菱屋町毘沙門町毘沙門町備前島町福長町福屋町藤岡町藤木町藤西町藤本町船屋町舟屋町船屋町古城町弁慶石町鉾田町布袋屋町骨屋之町堀之上町本能寺町桝屋町桝屋町桝屋町桝屋町町頭町松浦町松下町松屋町丸木材木町丸太町丸屋町丸屋町丸屋町御倉町壬生相合町壬生天池町壬生上大竹町壬生賀陽御所町壬生御所ノ内町壬生下溝町壬生朱雀町壬生神明町壬生仙念町壬生高樋町壬生辻町壬生土居ノ内町壬生中川町壬生梛ノ宮町壬生西大竹町壬生西土居ノ内町壬生西檜町壬生花井町壬生馬場町壬生東大竹町壬生東高田町壬生東土居ノ内町壬生東檜町壬生東淵田町壬生檜町壬生淵田町壬生坊城町壬生松原町壬生森前町壬生森町宮木町宮本町妙満寺前町百足屋町百足屋町最上町元竹田町元本能寺町守山町八百屋町八百屋町薬師町柳八幡町山田町山伏山町山本町矢幡町横鍛冶町吉野町柳水町冷泉町六丁目六角油小路町六角大宮町和久屋町和久屋町綿屋町

    近辺の市区から探す

    大津市京都市北区京都市上京区京都市左京区京都市東山区京都市下京区京都市南区京都市右京区京都市伏見区京都市山科区京都市西京区向日市長岡京市

    周辺の駅から探す

    山陰本線
    京都梅小路京都西丹波口二条円町花園太秦嵯峨嵐山
    京都市東西線
    太秦天神川西大路御池二条二条城前烏丸御池京都市役所前三条京阪東山

    京都府京都市中京区で他のジャンルから探す


    掲載情報の著作権は提供元企業等に帰属します。
    Copyright:(C) 2025 Recruit Co., Ltd.
    アプリで簡単 物件探し 大手不動産サイトの情報から一括検!プッシュ通知で物件を見逃さない
    App Storeからダウンロード Google Playで手に入れよう QRコード