アプリで簡単 物件探し 通知 共有 アプリならではの機能を使ってみる
賃貸マンション

是空HORIKAWA 丸太町駅 1LDK 賃貸(賃貸マンション・アパート)

情報提供元
SUUMO
是空HORIKAWA
賃料 12.8万円  (管理費等:7000円)
礼金・敷金 12.8万円 / 12.8万円 保証金/敷引・償却 なし / -
交通
所在地 京都府京都市上京区五町目周辺地図
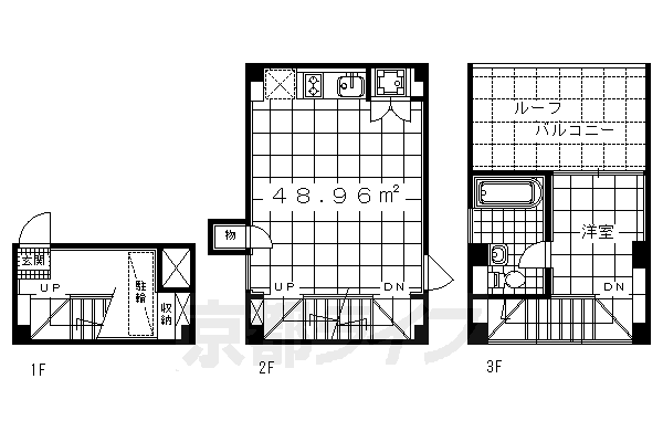
間取り 1LDK 専有面積 48.96m2
築年月 2007年6月 築年数 築18年6ヶ月
おすすめポイント
OMデザイナーズ! ペット飼育OK 物件情報からエリア情報まで京都の賃貸物件紹介はお任せください!

詳細情報

賃料 12.8万円 管理費等 7000円
敷金 12.8万円 礼金 12.8万円
保証金 なし 敷引・償却 -
更新料 - 契約期間
カード決済 -
所在地 京都府京都市上京区五町目周辺地図
交通
建物名 是空HORIKAWA 
間取り 1LDK(洋4.5 LDK10) 築年月(築年数) 2007年6月(築18年6ヶ月)
専有面積 48.96㎡ 所在階/階数 1階/地上9階地下1階建
建物構造 RC  方位 北 
現況   駐車場 無    近くの駐車場を探す
入居可能時期 即時 住宅保険 あり 2年 33000円
情報提供元 SUUMO[060H100470404930] 情報公開日
情報更新日 次回更新予定日 随時

設備など

2階以上 - 最上階 - 角部屋
駐車場(近隣含) - エアコン付き バス・トイレ別
室内洗濯機置き場 追焚機能 - オートロック付き
モニタ付インターホン - フローリング - バルコニー
ガスコンロ可 浴室乾燥機 24時間セキュリティ -
宅配ボックス ペット相談可 二人入居可 -
設備 冷房・暖房・エアコン・オートロック・バルコニー・バス・トイレ別・トイレ・収納スペース・洗濯機置場・エレベーター・BS端子・浴室乾燥機・ガスコンロ可・システムキッチン・宅配BOX・駐輪場・CS・衣類乾燥機・都市ガス・ディンプルキー・浴トイレ別・コンロ2口以上・インターネット対応・室内洗濯機置き場 
リフォーム履歴 -
リノベーション履歴 -
備考 書類代1.1万円/ハウスクリーニング代2.75万円/退去時/ペット相談/更新料:新家賃1ヶ月 更新手数料:無/バストイレ別/バルコニー/エアコン/ガスコンロ対応/浴室乾燥機/オートロック/室内洗濯置/システムキッチン/角住戸/エレベーター/2口コンロ/駐輪場/宅配ボックス/押入/光ファイバー/即入居可/ペット相談/全居室洋室/二人入居相談/デザイナーズ/ディンプルキー/CS/メゾネット/3駅以上利用可/駅徒歩10分以内/都市ガス/BS/高速ネット対応/IT重説 対応物件/京都下立売堀川郵便局(郵便局)まで87m/フレスコ 堀川店(スーパー)まで148m/アイハート 堀川店(スーパー)まで167m/ファミリーマート丸太町猪熊店(コンビニ)まで226m/ローソン丸太町小川店(コンビニ)まで321m/京都第二赤十字病院(病院)まで340m/地下鉄烏丸線烏丸御池駅徒歩20分/賃貸戸数:34戸 
特記事項 ペット相談可・メゾネット・角部屋・デザイナーズ物件

省エネ性能

エネルギー消費性能 -
断熱性能 -
目安光熱費 -

京都府京都市上京区五町目 周辺地図情報

地図
※地図上に表示される物件の位置は付近住所に所在することを表すものであり、実際の物件所在地とは異なる場合がございます。
   正確な物件所在地は、取扱い不動産会社にお問い合わせください。

不動産会社情報

お問い合わせ先 商号:(株)京都ライフ小倉店
免許番号:京都府知事(11)第6353号
所在地:京都府宇治市小倉町 神楽田21-5 アーパネックス小倉ビル1階
TEL:0774-25-6500
取引態様:仲介
管理コード:K36007-106
所属協会など:(公社)近畿地区不動産公正取引協議会加盟、(公社)京都府宅地建物取引業協会会員
共有する
QRコード

    京都市上京区の暮らしデータ

    人口などの統計情報

    世帯数 728744世帯
    人口総数 1379529人
    転入者数 85315人
    転入率(人口1000人当たり)
    61.84人
    転出者数 80567人
    転出率(人口1000人当たり)
    58.40人
    土地平均価格
    住宅地
    220880円/m2
    商業地
    1290411円/m2

    結婚・育児の助成金

    子育て関連の独自の取り組み (1)乳幼児の子育て支援機能や学童クラブ機能等を有する児童館設置。(2)こんにちはプレママ事業。(3)児童虐待未然防止に係る医療機関と子どもはぐくみ室及び京北出張所の連携。(4)子ども保健医療相談・事故防止センター設置。(5)京都はぐくみアプリ配信。(6)子育て支援コンシェルジュ育成。(7)骨髄移植手術等により免疫を喪失した子どもへのワクチン再接種費用助成制度。(8)子どもを共に育む京都市民憲章の制定、憲章の実践・普及の促進。(9)【京都安心すまい応援金】未就学の子どもがいる世帯を対象に、自己居住用として既存住宅を購入し、リフォームを行う場合に、最大200万円の応援金を交付。
    出産祝い あり
    公立保育所数 14所(うち0歳児保育を実施している保育所:13所)
    私立保育所数 196所(うち0歳児保育を実施している保育所:188所)
    保育所入所待機児童数 0人
    認定こども園数 83園 預かり保育実施園数 公立:15園 私立:81園
    学校給食 【小学校】完全給食【中学校】完全給食 家庭弁当等との選択制/デリバリー形式[運搬:ランチボックス、内容:完全給食] 給食なし
    公立中学校の学校選択制 未実施
    子ども・学生等医療費助成<通院>対象年齢 中学校卒業まで 子ども・学生等医療費助成<入院>対象年齢 中学校卒業まで

    京都市上京区の治安・ごみ収集情報

    公共料金・インフラ

    ガス料金(22m3使用した場合の月額) 大阪瓦斯株式会社4544円
    水道料金(口径20mmで20m3の月額) 京都市3014円
    下水道料金(20m3を使用した場合の月額) 京都市2013円
    下水道普及率 99.5%

    安心・安全

    建物火災出火件数 158件
    人口10000人当たり
    1.08件
    刑法犯認知件数 8104件
    人口1000人当たり
    5.54件
    ハザード・防災マップ あり

    医療

    一般病院総数 89ヶ所
    一般診療所総数 1622ヶ所
    小児科医師数 397人
    小児人口10000人当たり
    27.26人
    産婦人科医師数 201人
    15~49歳女性人口1万人当たり
    7.16人
    介護保険料基準額(月額) 7160円

    ごみ

    家庭ごみ収集(可燃ごみ) 有料
    備考
    指定ごみ袋有料。
    家庭ごみの分別方式 5分別8種〔燃やすごみ 缶・びん・ペットボトル プラスチック類 小型金属類・スプレー缶 雑がみ〕 拠点回収:移動式拠点回収):古紙(新聞・ダンボール) 雑がみ 紙パック 使用済てんぷら油 古着類 乾電池 ボタン電池 充電式電池 蛍光管 水銀体温計・水銀血圧計 小型家電 磁気テープ類 インクカートリッジ リユースびん 刃物類 使い捨てライター 陶磁器製の食器 せん定枝木の枝 石油類 医薬品・農薬 化学薬品・塗料・ワックス・絵の具 洗浄剤
    家庭ごみの戸別収集 一部実施(原則定点としているが、一部地域で狭路等やむを得ない事情がある場合のみ実施。また、ごみ出しが困難な高齢者や障害のある方などの生活支援の一つとして、御自宅の玄関先までごみの収集に伺う「ごみ収集福祉サービス[まごころ収集]」を実施)
    粗大ごみ収集 あり
    備考
    有料。事前申込制。
    生ごみ処理機助成金制度 なし
    上限金額
    -
    上限比率
    -
    暮らしデータ提供元:生活ガイド.com
    ※行政機関により公表していない地域及びデータがございます。東京23区以外の政令指定都市は、市全体のデータとして表示しています。
    ※提供データには細心の注意を払っておりますが、調査後に変更がある場合があります。 最新の情報につきましては各市区役所までお問い合わせいただくか、自治体HPなどをご確認ください。
    OCN×ドコモ光新規お申込みで合計最大137,280円相当おトク!特典の内訳・適用条件など詳細はこちら

    京都市上京区内の各駅の住みやすさ

    他のエリアから探す

    京都市上京区の詳細地域から賃貸物件を探す

    相生町愛染寺町飛鳥井町油橋詰町尼ケ崎横町有馬町安楽小路町家永町伊佐町伊勢殿構町伊勢屋町井田町一観音町一条横町一番町一色町一真町一町目一町目一町目五辻町稲葉町戌亥町今薬屋町今図子町今出川町今出川町浮田町内構町姥ケ北町姥ケ寺之前町姥ケ東西町姥ケ西町梅屋町裏築地町裏風呂町榎町夷川町蛭子町蛭子町閻魔前町扇町扇町大猪熊町大猪熊町大上之町大北小路東町大原口町大東町大峰図子町大宮町大宮町岡松町表町鏡石町加賀屋町勘解由小路町柏清盛町梶井町上生洲町上小川町上鍛冶町上片原町上御霊馬場町上御霊前町上立売町上立売東町上塔之段町上之町上堀川町紙屋川町上柳原町亀屋町亀屋町亀屋町烏丸町歓喜寺前町歓喜町観三橘町観世町菊屋町菊屋町北伊勢殿構町北猪熊町北蟹屋町北兼康町北玄蕃町北小路中之町北小路室町北小大門町北新在家町北之御門町北舟橋町北町北町北横町木下突抜町木屋之町清元町桐木町金馬場町薬屋町花開院町継孝院町玄蕃町荒神町荒神町高台院竪町高徳寺町革堂町革堂町革堂西町革堂前之町小伝馬町近衛町近衛町米屋町米屋町小山町坤高町御三軒町御所八幡町五町目五町目町後藤町五番町御霊町西院町西東町幸神町栄町栄町作庵町笹屋4丁目笹屋町1丁目笹屋町2丁目笹屋町3丁目佐竹町三栄町三軒町讃州寺町三町目三町目三丁町三番町七番町信濃町芝大宮町芝之町芝薬師町下石橋町下石橋南半町下小川町下鏡石町下木下町下清蔵口町下竪町下天神町下塔之段町下之町下丸屋町下柳原南半町下山里町下横町社家長屋町主税町相国寺門前町聖天町白竹町白銀町新猪熊町新夷町新烏丸頭町新御霊口町新ン町信富町真如堂突抜町真如堂前町新白水丸町新元町実相院町十念寺前町十四軒町聚楽町上善寺町末之口町末広町杉本町杉若町筋違橋町硯屋町須浜池町須浜町須浜東町瑞光院前町晴明町青龍町清和院町禅昌院町染殿町泰童片原町鷹司町滝ケ鼻町竹園町竹屋町橘町龍前町竪富田町竪社南半町田中町玉屋町玉屋町田丸町田村備前町多門町俵屋町丹波屋町大黒町大黒町大黒屋町大心院町大文字町弾正町茶屋町中書町丁子風呂町突抜町突抜町突抜町築山北半町築山南半町土御門町鶴山町寺今町寺之内竪町出水町藤五郎町東西俵屋町東西町常盤井図子町徳屋町道正町百々町直家町中猪熊町中小川町仲御霊町中務町仲之町仲之町仲之町仲之町中之町中橋詰町中御門横町中社町梨木町納屋町奈良物町西石屋町西五辻北町西五辻東町西今小路町西今町西今出川町西大路町西大路町西上之町西亀屋町西北小路町西北小路町西神明町西上善寺町西千本町西辰巳町西富仲町西中筋町西之口町西橋詰町西船橋町西町西町西町西丸太町西無車小路町西社町西柳町西芦山寺町二神町二町目二町目二本松町如水町秤口町橋西二町目橋本町畠山町花車町春帯町般舟院前町馬喰町東今小路町東今町東魚屋町東裏辻町東桜町東神明町東上善寺町東千本町東立売町東辰巳町東竪町東長者町東橋詰町東橋詰町東堀町東町東町東町東若宮町挽木町菱屋町菱屋町常陸町樋之口町百万遍町瓢箪図子町毘沙門町毘沙門町毘沙門町福島町福大明神町福長町福本町古木町古美濃部町分銅町弁財天町弁天町鳳瑞町堀川上之町堀川町堀出シ町堀之上町木瓜原町牡丹鉾町前之町真倉町桝屋町桝屋町松屋町溝前町南伊勢屋町南蟹屋町南兼康町南佐竹町南新在家町南上善寺町南町南辻町南舟橋町宮垣町妙顕寺前町妙蓮寺前町三芳町武者小路町村雲町室町頭町元4丁目元伊佐町元北小路町元新在家町元真如堂町元頂妙寺町元土御門町元中之町元百万遍町元福大明神町元本満寺町元妙蓮寺町森中町森之木町門跡町薬師町役人町社突抜町社横町柳図子町藪之内町藪之下町山里町山名町山本町行衛町養安町横大宮町吉野町四町目四番町利生町立本寺前町六町目六番町若松町若宮竪町藁屋町

    近辺の市区から探す

    大津市京都市北区京都市左京区京都市中京区京都市東山区京都市下京区京都市南区京都市右京区京都市伏見区京都市山科区京都市西京区向日市長岡京市

    周辺の駅から探す

    山陰本線
    京都梅小路京都西丹波口二条円町花園太秦嵯峨嵐山
    京都市烏丸線
    北山北大路鞍馬口今出川丸太町烏丸御池四条五条京都
    京都市東西線
    太秦天神川西大路御池二条二条城前烏丸御池京都市役所前三条京阪東山

    京都府京都市上京区で他のジャンルから探す


    掲載情報の著作権は提供元企業等に帰属します。
    Copyright:(C) 2025 Recruit Co., Ltd.
    アプリで簡単 物件探し 大手不動産サイトの情報から一括検!プッシュ通知で物件を見逃さない
    App Storeからダウンロード Google Playで手に入れよう QRコード